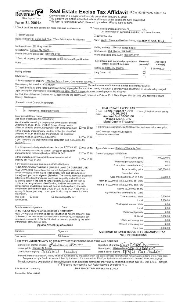
Property
Account |
| Property ID: | 398643 | Abbreviated Legal Description: | SUNLIGHT BCH LOT 28 INCL ADJ TIDES |
| Geographic ID: | S8220-00-00028-0 | Agent Code: | |
| Type: | Real | | |
| Tax Area: | 810 - APPRAISER-S Whid Schl Dist, Diking District#1, improved & 1 acre or less | Land Use Code | 11 |
| Open Space: | N | DFL | N |
| Historic Property: | N | Remodel Property: | N |
| Multi-Family Redevelopment: | N | | |
| Township: | | Section: | |
| Range: | |
Location |
| Address: | 2608 SUNLIGHT BEACH RD CLINTON, WA 98236 | Mapsco: | |
| Neighborhood: | Cycle 4 | Map ID: | 790 |
| Neighborhood CD: | 4 |
Owner |
| Name: | GUSTAFSON TRUSTEE, DOUGLAS | Owner ID: | 137443 |
| Mailing Address: | MARJORIE GUSTAFON TRUSTEE MARJORIE S GUSTAFON REVOCABLE TRUST 725 9TH AVE #203 SEATTLE, WA 98104 | % Ownership: | 100.0000000000% |
| | | Exemptions: | |
Taxes and Assessment Details
Values
| (+) Improvement Homesite Value: | + | $0 | |
| (+) Improvement Non-Homesite Value: | + | $249,093 | |
| (+) Land Homesite Value: | + | $0 | |
| (+) Land Non-Homesite Value: | + | $1,250,480 | |
| (+) Curr Use (HS): | + | $0 | $0 |
| (+) Curr Use (NHS): | + | $0 | $0 |
| | | -------------------------- | |
| (=) Market Value: | = | $1,499,573 | |
| (–) Productivity Loss: | – | $0 | |
| | | -------------------------- | |
| (=) Subtotal: | = | $1,499,573 | |
| (+) Senior Appraised Value: | + | $0 | |
| (+) Non-Senior Appraised Value: | + | $1,499,573 | |
| | | -------------------------- | |
| (=) Total Appraised Value: | = | $1,499,573 | |
| (–) Senior Exemption Loss: | – | $0 | |
| (–) Exemption Loss: | – | $0 | |
| | | -------------------------- | |
| (=) Taxable Value: | = | $1,499,573 | |
Taxing Jurisdiction
| Owner: | GUSTAFSON TRUSTEE, DOUGLAS | | |
| % Ownership: | 100.0000000000% | | |
| Total Value: | $1,499,573 | | |
| Tax Area: | 810 - APPRAISER-S Whid Schl Dist, Diking District#1, improved & 1 acre or less |
| CF | Conservation Futures | 0.0316035091 | $1,499,573 | $1,499,573 | $47.39 | | |
| FIRE3 | Fire & Rescue Dist #3 S Whidbey GEN | 1.2004855531 | $1,499,573 | $1,499,573 | $1,800.22 | | |
| HOBOND | Hospital BOND | 0.1910887512 | $1,499,573 | $1,499,573 | $286.55 | | |
| HOGEN | Hospital GEN | 0.3902502903 | $1,499,573 | $1,499,573 | $585.21 | | |
| CE | County Current Expense | 0.3708482477 | $1,499,573 | $1,499,573 | $556.11 | | |
| CR | County Roads | 0.4584763726 | $1,499,573 | $1,499,573 | $687.52 | | |
| ISLANDEMS | Hospital GEN (EMS) | 0.5000000000 | $1,499,573 | $1,499,573 | $749.79 | | |
| LIB | Library Sno-Isle GEN | 0.3153421757 | $1,499,573 | $1,499,573 | $472.88 | | |
| PORTWHID | Port of S Whidbey GEN | 0.1094540357 | $1,499,573 | $1,499,573 | $164.13 | | |
| SCH206BOND | School 206 BOND | 0.3161759235 | $1,499,573 | $1,499,573 | $474.13 | | |
| SCH206MO | School 206 Enrichment | 0.4547169547 | $1,499,573 | $1,499,573 | $681.88 | | |
| ST | State School | 1.3035497053 | $1,499,573 | $1,499,573 | $1,954.77 | | |
| ST2 | State School Part 2 | 0.8169543533 | $1,499,573 | $1,499,573 | $1,225.08 | | |
| SWHIDPRBD | P & R S Whidbey BOND | 0.0152817568 | $1,499,573 | $1,499,573 | $22.92 | | |
| SWHIDPRBD2 | P & R S Whidbey BOND2 | 0.0138911264 | $1,499,573 | $1,499,573 | $20.83 | | |
| SWHIDPRMT | P & R S Whidbey GEN | 0.2053334452 | $1,499,573 | $1,499,573 | $307.91 | | |
| | Total Tax Rate: | 6.6934522006 | | | | | |
| | | | | Taxes w/Current Exemptions: | $10,037.32 | | |
| | | | | Taxes w/o Exemptions: | $10,037.32 | | |
Improvement / Building
| Improvement #1: | RESIDENTIAL | State Code: | Y | 1917.0 sqft | Value: | $249,093 |
| Bathrooms: | 2 | Bedrooms: | 3 | | Ceiling: | PLYWOOD PAINTED | Exterior Wall/Cover: | WOOD SIDING | | Floor Covering: | CARPET/VINYL 60-40 | Floor Structure: | WOOD W/SUBFLOOR | | Foundation: | CONCRETE | Heating: | WALL HEAT ELECTRIC | | Interior Finish: | PLASTER | Plumbing Fixture Cnt: | 9 | | Roof Slope: | 6" IN 12" | Roof Structure/Cover: | CJ ASPHALT |
|
| | Type | Description | Class CD | Sub Class CD | Year Built | Area |
| | BAS | BASE/MAIN FLOOR | 3 | 0 | 1956 | 958.5 |
| | OP1 | OPEN PORCH SLAB | 3 | 0 | 1956 | 118.0 |
| | OWP | OPEN WOOD PORCH W/STEPS | 3 | 0 | 1956 | 535.0 |
| | DWN | DOWNSTAIRS LIVING AREA | 3 | 0 | 1956 | 958.5 |
Sketch
Property Image
Land
| 1 | LB | LOW BANK | 0.0000 | 0.00 | 50.00 | 0.00 | 1.00 | $1,250,000 | $0 |
| 2 | 55 | TIDES | 0.0000 | 0.00 | 50.00 | 0.00 | 1.00 | $480 | $0 |
Roll Value History
| 2026 | N/A | N/A | N/A | N/A | N/A |
| 2025 | $249,093 | $1,250,480 | $0 | $1,499,573 | $1,499,573 |
| 2024 | $252,276 | $1,365,480 | $0 | $1,617,756 | $1,617,756 |
| 2023 | $255,460 | $1,440,480 | $0 | $1,695,940 | $1,695,940 |
| 2022 | $234,207 | $1,375,480 | $0 | $1,609,687 | $1,609,687 |
| 2021 | $206,165 | $1,250,480 | $0 | $1,456,645 | $1,456,645 |
| 2020 | $201,945 | $1,150,480 | $0 | $1,352,425 | $1,352,425 |
| 2019 | $153,514 | $1,150,480 | $0 | $1,303,994 | $1,303,994 |
| 2018 | $153,987 | $400,480 | $0 | $554,467 | $554,467 |
| 2017 | $154,932 | $400,480 | $0 | $555,412 | $555,412 |
| 2016 | $156,821 | $400,480 | $0 | $557,301 | $557,301 |
| 2015 | $158,710 | $400,480 | $0 | $559,190 | $559,190 |
| 2014 | $137,927 | $400,480 | $0 | $538,407 | $538,407 |
| 2013 | $118,480 | $440,990 | $0 | $559,470 | $559,470 |
| 2012 | $120,263 | $440,990 | $0 | $561,253 | $561,253 |
| 2011 | $122,045 | $440,990 | $0 | $563,035 | $563,035 |
| 2010 | $132,802 | $514,188 | $0 | $646,990 | $646,990 |
| 2009 | $138,508 | $896,112 | $0 | $1,034,620 | $1,034,620 |
| 2008 | $137,797 | $896,112 | $0 | $1,033,909 | $1,033,909 |
| 2007 | $125,567 | $659,227 | $0 | $784,794 | $784,794 |
Deed and Sales History
| 1 | 09/08/2006 | WD | Warranty Deed | FERRIS, DONALD W | M J GUSTAFSON REV TRUST, | | | $265,000.00 | 63913 | 4181387 |
| 2 | 02/21/2003 | QCD | Quit Claim Deed | FERRIS, DONALD W | FERRIS, DONALD W | | | $0.00 | 30698 | 4048751 |
| 3 | 04/01/1986 | WD | Warranty Deed | COCKRILL, FREDERICK E | FERRIS, DONALD W | | | $135,000.00 | 60775 | 86003641 |
| 4 | 12/01/1978 | OTHER | Other - Misc. Documents | Unknown | COCKRILL, FREDERICK E | | | $99,500.00 | 90255 | 346118 |
Payout Agreement
| No payout information available.. |