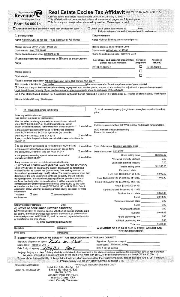
Property
Account |
| Property ID: | 398670 | Abbreviated Legal Description: | SUNLIGHT BCH LOT 31 INCL ADJ TIDES |
| Geographic ID: | S8220-00-00031-0 | Agent Code: | |
| Type: | Real | | |
| Tax Area: | 810 - APPRAISER-S Whid Schl Dist, Diking District#1, improved & 1 acre or less | Land Use Code | 11 |
| Open Space: | N | DFL | N |
| Historic Property: | N | Remodel Property: | N |
| Multi-Family Redevelopment: | N | | |
| Township: | | Section: | |
| Range: | |
Location |
| Address: | 2620 SUNLIGHT BEACH RD CLINTON, WA 98236 | Mapsco: | |
| Neighborhood: | Cycle 4 | Map ID: | 790 |
| Neighborhood CD: | 4 |
Owner |
| Name: | SHEPARD, JOHN | Owner ID: | 183904 |
| Mailing Address: | COYLA SHEPARD 2620 SUNLIGHT BEACH RD CLINTON, WA 98236-9139 | % Ownership: | 100.0000000000% |
| | | Exemptions: | |
Taxes and Assessment Details
Values
| (+) Improvement Homesite Value: | + | $0 | |
| (+) Improvement Non-Homesite Value: | + | $492,922 | |
| (+) Land Homesite Value: | + | $0 | |
| (+) Land Non-Homesite Value: | + | $1,250,000 | |
| (+) Curr Use (HS): | + | $0 | $0 |
| (+) Curr Use (NHS): | + | $0 | $0 |
| | | -------------------------- | |
| (=) Market Value: | = | $1,742,922 | |
| (–) Productivity Loss: | – | $0 | |
| | | -------------------------- | |
| (=) Subtotal: | = | $1,742,922 | |
| (+) Senior Appraised Value: | + | $0 | |
| (+) Non-Senior Appraised Value: | + | $1,742,922 | |
| | | -------------------------- | |
| (=) Total Appraised Value: | = | $1,742,922 | |
| (–) Senior Exemption Loss: | – | $0 | |
| (–) Exemption Loss: | – | $0 | |
| | | -------------------------- | |
| (=) Taxable Value: | = | $1,742,922 | |
Taxing Jurisdiction
| Owner: | SHEPARD, JOHN | | |
| % Ownership: | 100.0000000000% | | |
| Total Value: | $1,742,922 | | |
| Tax Area: | 810 - APPRAISER-S Whid Schl Dist, Diking District#1, improved & 1 acre or less |
| CF | Conservation Futures | 0.0316035091 | $1,742,922 | $1,742,922 | $55.08 | | |
| FIRE3 | Fire & Rescue Dist #3 S Whidbey GEN | 1.2004855531 | $1,742,922 | $1,742,922 | $2,092.35 | | |
| HOBOND | Hospital BOND | 0.1910887512 | $1,742,922 | $1,742,922 | $333.05 | | |
| HOGEN | Hospital GEN | 0.3902502903 | $1,742,922 | $1,742,922 | $680.18 | | |
| CE | County Current Expense | 0.3708482477 | $1,742,922 | $1,742,922 | $646.36 | | |
| CR | County Roads | 0.4584763726 | $1,742,922 | $1,742,922 | $799.09 | | |
| ISLANDEMS | Hospital GEN (EMS) | 0.5000000000 | $1,742,922 | $1,742,922 | $871.46 | | |
| LIB | Library Sno-Isle GEN | 0.3153421757 | $1,742,922 | $1,742,922 | $549.62 | | |
| PORTWHID | Port of S Whidbey GEN | 0.1094540357 | $1,742,922 | $1,742,922 | $190.77 | | |
| SCH206BOND | School 206 BOND | 0.3161759235 | $1,742,922 | $1,742,922 | $551.07 | | |
| SCH206MO | School 206 Enrichment | 0.4547169547 | $1,742,922 | $1,742,922 | $792.54 | | |
| ST | State School | 1.3035497053 | $1,742,922 | $1,742,922 | $2,271.99 | | |
| ST2 | State School Part 2 | 0.8169543533 | $1,742,922 | $1,742,922 | $1,423.89 | | |
| SWHIDPRBD | P & R S Whidbey BOND | 0.0152817568 | $1,742,922 | $1,742,922 | $26.63 | | |
| SWHIDPRBD2 | P & R S Whidbey BOND2 | 0.0138911264 | $1,742,922 | $1,742,922 | $24.21 | | |
| SWHIDPRMT | P & R S Whidbey GEN | 0.2053334452 | $1,742,922 | $1,742,922 | $357.88 | | |
| | Total Tax Rate: | 6.6934522006 | | | | | |
| | | | | Taxes w/Current Exemptions: | $11,666.17 | | |
| | | | | Taxes w/o Exemptions: | $11,666.17 | | |
Improvement / Building
| Improvement #1: | RESIDENTIAL | State Code: | Y | 2324.0 sqft | Value: | $492,922 |
| Bathrooms: | 3 | Bedrooms: | 2 | | Ceiling: | TONGUE & GROOVE | Cooling: | HEAT PUMP/CONV/V | | Exterior Wall/Cover: | WOOD SIDING | Floor Covering: | HARDWOOD 100% | | Floor Structure: | WOOD W/SUBFLOOR | Foundation: | CONCRETE | | Interior Finish: | DRYWALL PAINT | Plumbing Fixture Cnt: | 15 | | Roof Slope: | 8" IN 12" | Roof Structure/Cover: | BEAM ASPHALT |
|
| | Type | Description | Class CD | Sub Class CD | Year Built | Area |
| | BAS | BASE/MAIN FLOOR | 4 | 0 | 2009 | 1392.0 |
| | DWN | DOWNSTAIRS LIVING AREA | 4 | 0 | 2009 | 528.0 |
| | BIG | BUILT IN GARAGE | 4 | 0 | 2009 | 864.0 |
| | OWP | OPEN WOOD PORCH W/STEPS | 4 | 0 | 2009 | 44.0 |
| | OWP | OPEN WOOD PORCH W/STEPS | 4 | 0 | 2009 | 436.0 |
| | OWC | OPEN WOOD PORCH W/STEPS/ROOF/C | 4 | 0 | 2009 | 44.0 |
| | LOF | LOFT | 4 | 0 | 2009 | 404.0 |
Sketch
Property Image
Land
| 1 | LB | LOW BANK | 0.0000 | 0.00 | 50.00 | 0.00 | 1.00 | $1,250,000 | $0 |
Roll Value History
| 2026 | N/A | N/A | N/A | N/A | N/A |
| 2025 | $492,922 | $1,250,000 | $0 | $1,742,922 | $1,742,922 |
| 2024 | $498,573 | $1,365,000 | $0 | $1,863,573 | $1,863,573 |
| 2023 | $504,222 | $1,440,000 | $0 | $1,944,222 | $1,944,222 |
| 2022 | $460,417 | $1,375,000 | $0 | $1,835,417 | $1,835,417 |
| 2021 | $407,294 | $1,250,000 | $0 | $1,657,294 | $1,657,294 |
| 2020 | $386,118 | $1,150,000 | $0 | $1,536,118 | $1,536,118 |
| 2019 | $282,728 | $1,150,000 | $0 | $1,432,728 | $1,432,728 |
| 2018 | $283,511 | $950,000 | $0 | $1,233,511 | $1,233,511 |
| 2017 | $285,068 | $920,000 | $0 | $1,205,068 | $1,205,068 |
| 2016 | $288,202 | $750,000 | $0 | $1,038,202 | $1,038,202 |
| 2015 | $291,335 | $750,000 | $0 | $1,041,335 | $1,041,335 |
| 2014 | $306,971 | $750,000 | $0 | $1,056,971 | $1,056,971 |
| 2013 | $310,236 | $783,610 | $0 | $1,093,846 | $1,093,846 |
| 2012 | $313,500 | $783,610 | $0 | $1,097,110 | $1,097,110 |
| 2011 | $316,767 | $783,610 | $0 | $1,100,377 | $1,100,377 |
| 2010 | $322,309 | $916,618 | $0 | $1,238,927 | $1,238,927 |
| 2009 | $335,601 | $1,265,839 | $0 | $1,601,440 | $1,601,440 |
| 2008 | $52,625 | $1,265,839 | $0 | $1,318,464 | $1,318,464 |
| 2007 | $53,565 | $915,870 | $0 | $969,435 | $969,435 |
Deed and Sales History
| 1 | 08/21/2000 | WD | Warranty Deed | CHARLESTON, MARILYN A | SHEPARD, JOHN | | | $335,455.00 | 3164 | 20014811 |
| 2 | 02/04/2000 | QCD | Quit Claim Deed | ANDERSON, MARGARET A | CHARLESTON, MARILYN A | | | $0.00 | 506 | 20002689 |
| 3 | 09/01/1991 | OTHER | Other - Misc. Documents | CHARLESTON, MARILYN A | ANDERSON, MARGARET A | | | $0.00 | 64463 | 91002947 |
| 4 | 09/01/1991 | QCD | Quit Claim Deed | CHARLESTON, MARILYN A | CHARLESTON, MARILYN A | | | $0.00 | 13336 | 91014189 |
| 5 | 09/01/1991 | QCD | Quit Claim Deed | CHARLESTON, MARILYN A | CHARLESTON, MARILYN A | | | $0.00 | 13337 | 91014190 |
| 6 | 09/01/1991 | QCD | Quit Claim Deed | CHARLESTON, MARILYN A | CHARLESTON, MARILYN A | | | $0.00 | 13711 | 91015884 |
| 7 | 09/01/1991 | QCD | Quit Claim Deed | ANDERSON, RUDOLPH A | CHARLESTON, MARILYN A | | | $0.00 | 13710 | 91015883 |
| 8 | 01/01/1900 | OTHER | Other - Misc. Documents | Unknown | ANDERSON, RUDOLPH A | | | $0.00 | 0 | 0 |
Payout Agreement
| No payout information available.. |