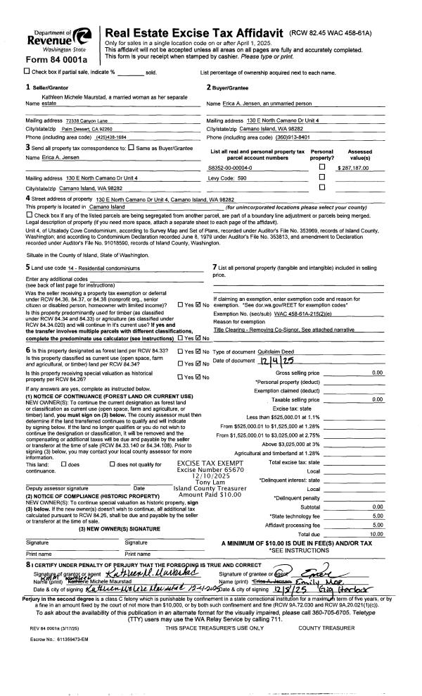
Property
Account |
| Property ID: | 398778 | Abbreviated Legal Description: | SUNLIGHT BCH ADD LOT 1 INCL ADJ TLDS |
| Geographic ID: | S8220-01-00001-0 | Agent Code: | |
| Type: | Real | | |
| Tax Area: | 810 - APPRAISER-S Whid Schl Dist, Diking District#1, improved & 1 acre or less | Land Use Code | 11 |
| Open Space: | N | DFL | N |
| Historic Property: | N | Remodel Property: | N |
| Multi-Family Redevelopment: | N | | |
| Township: | | Section: | |
| Range: | |
Location |
| Address: | 2508 SUNLIGHT BEACH RD CLINTON, WA 98236 | Mapsco: | |
| Neighborhood: | Cycle 4 | Map ID: | 789 |
| Neighborhood CD: | 4 |
Owner |
| Name: | MANSOUR, PETER M | Owner ID: | 260060 |
| Mailing Address: | JUDY N MANSOUR 630 11TH AVE W KIRKLAND, WA 98033 | % Ownership: | 100.0000000000% |
| | | Exemptions: | |
Taxes and Assessment Details
Values
| (+) Improvement Homesite Value: | + | $0 | |
| (+) Improvement Non-Homesite Value: | + | $459,511 | |
| (+) Land Homesite Value: | + | $0 | |
| (+) Land Non-Homesite Value: | + | $1,250,480 | |
| (+) Curr Use (HS): | + | $0 | $0 |
| (+) Curr Use (NHS): | + | $0 | $0 |
| | | -------------------------- | |
| (=) Market Value: | = | $1,709,991 | |
| (–) Productivity Loss: | – | $0 | |
| | | -------------------------- | |
| (=) Subtotal: | = | $1,709,991 | |
| (+) Senior Appraised Value: | + | $0 | |
| (+) Non-Senior Appraised Value: | + | $1,709,991 | |
| | | -------------------------- | |
| (=) Total Appraised Value: | = | $1,709,991 | |
| (–) Senior Exemption Loss: | – | $0 | |
| (–) Exemption Loss: | – | $0 | |
| | | -------------------------- | |
| (=) Taxable Value: | = | $1,709,991 | |
Taxing Jurisdiction
| Owner: | MANSOUR, PETER M | | |
| % Ownership: | 100.0000000000% | | |
| Total Value: | $1,709,991 | | |
| Tax Area: | 810 - APPRAISER-S Whid Schl Dist, Diking District#1, improved & 1 acre or less |
| CF | Conservation Futures | 0.0316035091 | $1,709,991 | $1,709,991 | $54.04 | | |
| FIRE3 | Fire & Rescue Dist #3 S Whidbey GEN | 1.2004855531 | $1,709,991 | $1,709,991 | $2,052.82 | | |
| HOBOND | Hospital BOND | 0.1910887512 | $1,709,991 | $1,709,991 | $326.76 | | |
| HOGEN | Hospital GEN | 0.3902502903 | $1,709,991 | $1,709,991 | $667.32 | | |
| CE | County Current Expense | 0.3708482477 | $1,709,991 | $1,709,991 | $634.15 | | |
| CR | County Roads | 0.4584763726 | $1,709,991 | $1,709,991 | $783.99 | | |
| ISLANDEMS | Hospital GEN (EMS) | 0.5000000000 | $1,709,991 | $1,709,991 | $855.00 | | |
| LIB | Library Sno-Isle GEN | 0.3153421757 | $1,709,991 | $1,709,991 | $539.23 | | |
| PORTWHID | Port of S Whidbey GEN | 0.1094540357 | $1,709,991 | $1,709,991 | $187.17 | | |
| SCH206BOND | School 206 BOND | 0.3161759235 | $1,709,991 | $1,709,991 | $540.66 | | |
| SCH206MO | School 206 Enrichment | 0.4547169547 | $1,709,991 | $1,709,991 | $777.56 | | |
| ST | State School | 1.3035497053 | $1,709,991 | $1,709,991 | $2,229.06 | | |
| ST2 | State School Part 2 | 0.8169543533 | $1,709,991 | $1,709,991 | $1,396.98 | | |
| SWHIDPRBD | P & R S Whidbey BOND | 0.0152817568 | $1,709,991 | $1,709,991 | $26.13 | | |
| SWHIDPRBD2 | P & R S Whidbey BOND2 | 0.0138911264 | $1,709,991 | $1,709,991 | $23.75 | | |
| SWHIDPRMT | P & R S Whidbey GEN | 0.2053334452 | $1,709,991 | $1,709,991 | $351.12 | | |
| | Total Tax Rate: | 6.6934522006 | | | | | |
| | | | | Taxes w/Current Exemptions: | $11,445.74 | | |
| | | | | Taxes w/o Exemptions: | $11,445.74 | | |
Improvement / Building
| Improvement #1: | RESIDENTIAL | State Code: | Y | 3239.9 sqft | Value: | $459,511 |
| Bathrooms: | 4 | Bedrooms: | 4 | | Ceiling: | DRYWALL PAINTED | Exterior Wall/Cover: | WOOD SIDING | | Floor Covering: | CARPET/VINYL 60-40 | Floor Structure: | WOOD W/SUBFLOOR | | Foundation: | CONCRETE | Heating: | BASEBOARD ELECTRIC | | Interior Finish: | DRYWALL PAINT | Plumbing Fixture Cnt: | 15 | | Roof Slope: | 8" IN 12" | Roof Structure/Cover: | CJ ALUMINIUM HEAVY |
|
| | Type | Description | Class CD | Sub Class CD | Year Built | Area |
| | BAS | BASE/MAIN FLOOR | 4 | 0 | 1978 | 1302.8 |
| | AGR | ATTACHED GARAGE | 4 | 0 | 1978 | 552.3 |
| | OWP | OPEN WOOD PORCH W/STEPS | 4 | 0 | 1978 | 75.2 |
| | OWP | OPEN WOOD PORCH W/STEPS | 4 | 0 | 1978 | 370.8 |
| | OWP | OPEN WOOD PORCH W/STEPS | 4 | 0 | 1978 | 64.4 |
| | OWC | OPEN WOOD PORCH W/STEPS/ROOF/C | 4 | 0 | 1978 | 40.3 |
| | UPH | HALF STORY | 4 | 0 | 1978 | 746.0 |
| | DWN | DOWNSTAIRS LIVING AREA | 4 | 0 | 1978 | 1191.1 |
Sketch
Property Image
Land
| 1 | LB | LOW BANK | 0.0000 | 0.00 | 50.00 | 0.00 | 1.00 | $1,250,000 | $0 |
| 2 | 55 | TIDES | 0.0000 | 0.00 | 50.00 | 0.00 | 1.00 | $480 | $0 |
Roll Value History
| 2026 | N/A | N/A | N/A | N/A | N/A |
| 2025 | $459,511 | $1,250,480 | $0 | $1,709,991 | $1,709,991 |
| 2024 | $474,556 | $1,365,480 | $0 | $1,840,036 | $1,840,036 |
| 2023 | $480,620 | $1,440,480 | $0 | $1,921,100 | $1,921,100 |
| 2022 | $440,712 | $1,375,480 | $0 | $1,816,192 | $1,816,192 |
| 2021 | $387,994 | $1,250,480 | $0 | $1,638,474 | $1,638,474 |
| 2020 | $371,517 | $1,150,480 | $0 | $1,521,997 | $1,521,997 |
| 2019 | $293,267 | $1,150,480 | $0 | $1,443,747 | $1,443,747 |
| 2018 | $294,169 | $950,480 | $0 | $1,244,649 | $1,244,649 |
| 2017 | $295,948 | $920,480 | $0 | $1,216,428 | $1,216,428 |
| 2016 | $299,557 | $750,480 | $0 | $1,050,037 | $1,050,037 |
| 2015 | $303,167 | $750,480 | $0 | $1,053,647 | $1,053,647 |
| 2014 | $255,068 | $750,480 | $0 | $1,005,548 | $1,005,548 |
| 2013 | $258,870 | $816,240 | $0 | $1,075,110 | $1,075,110 |
| 2012 | $262,673 | $816,240 | $0 | $1,078,913 | $1,078,913 |
| 2011 | $266,473 | $816,240 | $0 | $1,082,713 | $1,082,713 |
| 2010 | $284,828 | $955,310 | $0 | $1,240,138 | $1,240,138 |
| 2009 | $297,389 | $1,337,234 | $0 | $1,634,623 | $1,634,623 |
| 2008 | $319,312 | $1,337,234 | $0 | $1,656,546 | $1,656,546 |
| 2007 | $323,489 | $962,917 | $0 | $1,286,406 | $1,286,406 |
Deed and Sales History
| 1 | 10/12/2012 | WD | Warranty Deed | FORTGANG, JAY | MANSOUR, PETER M | | | $940,000.00 | 9576 | 4328060 |
| 2 | 05/10/1999 | WD | Warranty Deed | WILLS, BEVERLY A | FORTGANG, JAY | | | $440,000.00 | 91847 | 99011613 |
| 3 | 08/01/1980 | CD | DNU - Correction Deed | WILLS, BEVERLY A | WILLS, BEVERLY A | | | $0.00 | 2702 | 372360 |
| 4 | 07/01/1979 | CD | DNU - Correction Deed | HAMSTAD, A W | WILLS, BEVERLY A | | | $80,000.00 | 93624 | 356116 |
| 5 | 01/01/1900 | OTHER | Other - Misc. Documents | Unknown | HAMSTAD, A W | | | $0.00 | 0 | 0 |
Payout Agreement
| No payout information available.. |