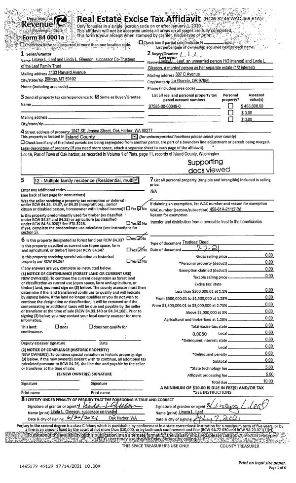
Property
Account |
| Property ID: | 398858 | Abbreviated Legal Description: | SUNLIGHT BCH ADD LOT 9 INCL ADJ TLDS |
| Geographic ID: | S8220-01-00009-0 | Agent Code: | |
| Type: | Real | | |
| Tax Area: | 810 - APPRAISER-S Whid Schl Dist, Diking District#1, improved & 1 acre or less | Land Use Code | 11 |
| Open Space: | N | DFL | N |
| Historic Property: | N | Remodel Property: | N |
| Multi-Family Redevelopment: | N | | |
| Township: | | Section: | |
| Range: | |
Location |
| Address: | 2478 SUNLIGHT BEACH RD CLINTON, WA 98236 | Mapsco: | |
| Neighborhood: | Cycle 4 | Map ID: | 789 |
| Neighborhood CD: | 4 |
Owner |
| Name: | HODGE JR, JACK E | Owner ID: | 195717 |
| Mailing Address: | THERESA A HODGE 39401 224TH AVE SE ENUMCLAW, WA 98022-8982 | % Ownership: | 100.0000000000% |
| | | Exemptions: | |
Taxes and Assessment Details
Values
| (+) Improvement Homesite Value: | + | $0 | |
| (+) Improvement Non-Homesite Value: | + | $1,004,309 | |
| (+) Land Homesite Value: | + | $0 | |
| (+) Land Non-Homesite Value: | + | $1,250,480 | |
| (+) Curr Use (HS): | + | $0 | $0 |
| (+) Curr Use (NHS): | + | $0 | $0 |
| | | -------------------------- | |
| (=) Market Value: | = | $2,254,789 | |
| (–) Productivity Loss: | – | $0 | |
| | | -------------------------- | |
| (=) Subtotal: | = | $2,254,789 | |
| (+) Senior Appraised Value: | + | $0 | |
| (+) Non-Senior Appraised Value: | + | $2,254,789 | |
| | | -------------------------- | |
| (=) Total Appraised Value: | = | $2,254,789 | |
| (–) Senior Exemption Loss: | – | $0 | |
| (–) Exemption Loss: | – | $0 | |
| | | -------------------------- | |
| (=) Taxable Value: | = | $2,254,789 | |
Taxing Jurisdiction
| Owner: | HODGE JR, JACK E | | |
| % Ownership: | 100.0000000000% | | |
| Total Value: | $2,254,789 | | |
| Tax Area: | 810 - APPRAISER-S Whid Schl Dist, Diking District#1, improved & 1 acre or less |
| CF | Conservation Futures | 0.0316035091 | $2,254,789 | $2,254,789 | $71.26 | | |
| FIRE3 | Fire & Rescue Dist #3 S Whidbey GEN | 1.2004855531 | $2,254,789 | $2,254,789 | $2,706.84 | | |
| HOBOND | Hospital BOND | 0.1910887512 | $2,254,789 | $2,254,789 | $430.86 | | |
| HOGEN | Hospital GEN | 0.3902502903 | $2,254,789 | $2,254,789 | $879.93 | | |
| CE | County Current Expense | 0.3708482477 | $2,254,789 | $2,254,789 | $836.18 | | |
| CR | County Roads | 0.4584763726 | $2,254,789 | $2,254,789 | $1,033.77 | | |
| ISLANDEMS | Hospital GEN (EMS) | 0.5000000000 | $2,254,789 | $2,254,789 | $1,127.39 | | |
| LIB | Library Sno-Isle GEN | 0.3153421757 | $2,254,789 | $2,254,789 | $711.03 | | |
| PORTWHID | Port of S Whidbey GEN | 0.1094540357 | $2,254,789 | $2,254,789 | $246.80 | | |
| SCH206BOND | School 206 BOND | 0.3161759235 | $2,254,789 | $2,254,789 | $712.91 | | |
| SCH206MO | School 206 Enrichment | 0.4547169547 | $2,254,789 | $2,254,789 | $1,025.29 | | |
| ST | State School | 1.3035497053 | $2,254,789 | $2,254,789 | $2,939.23 | | |
| ST2 | State School Part 2 | 0.8169543533 | $2,254,789 | $2,254,789 | $1,842.06 | | |
| SWHIDPRBD | P & R S Whidbey BOND | 0.0152817568 | $2,254,789 | $2,254,789 | $34.46 | | |
| SWHIDPRBD2 | P & R S Whidbey BOND2 | 0.0138911264 | $2,254,789 | $2,254,789 | $31.32 | | |
| SWHIDPRMT | P & R S Whidbey GEN | 0.2053334452 | $2,254,789 | $2,254,789 | $462.98 | | |
| | Total Tax Rate: | 6.6934522006 | | | | | |
| | | | | Taxes w/Current Exemptions: | $15,092.31 | | |
| | | | | Taxes w/o Exemptions: | $15,092.31 | | |
Improvement / Building
| Improvement #1: | RESIDENTIAL | State Code: | Y | 2665.2 sqft | Value: | $1,004,309 |
| Bathrooms: | 2 | Bedrooms: | 2 | | Ceiling: | DRYWALL PAINTED | Exterior Wall/Cover: | SHINGLE | | Floor Covering: | HARDWOOD/CARP 80-20 | Floor Structure: | WOOD W/SUBFLOOR | | Foundation: | CONCRETE | Heating: | RADIANT FLOOR | | Interior Finish: | DRYWALL PAINT | Plumbing Fixture Cnt: | 17 | | Roof Slope: | 12" IN 12" | Roof Structure/Cover: | CJ ASPHALT |
|
| | Type | Description | Class CD | Sub Class CD | Year Built | Area |
| | BAS | BASE/MAIN FLOOR | 7 | 0 | 2005 | 1303.8 |
| | OP1 | OPEN PORCH SLAB | 7 | 0 | 2005 | 182.4 |
| | OP1 | OPEN PORCH SLAB | 7 | 0 | 2005 | 888.3 |
| | OP4 | OPEN PORCH W/CEILING-ROOF | 7 | 0 | 2005 | 13.5 |
| | OP4 | OPEN PORCH W/CEILING-ROOF | 7 | 0 | 2005 | 137.2 |
| | BIG | BUILT IN GARAGE | 7 | 0 | 2005 | 344.0 |
| | UTY | STORAGE/UTILITY | 7 | 0 | 2005 | 87.7 |
| | UPS | UPPER STORY | 7 | 0 | 2005 | 1361.4 |
Sketch
Property Image
Land
| 1 | LB | LOW BANK | 0.0000 | 0.00 | 50.00 | 0.00 | 1.00 | $1,250,000 | $0 |
| 2 | 55 | TIDES | 0.0000 | 0.00 | 50.00 | 0.00 | 1.00 | $480 | $0 |
Roll Value History
| 2026 | N/A | N/A | N/A | N/A | N/A |
| 2025 | $1,004,309 | $1,250,480 | $0 | $2,254,789 | $2,254,789 |
| 2024 | $1,015,821 | $1,365,480 | $0 | $2,381,301 | $2,381,301 |
| 2023 | $1,027,332 | $1,440,480 | $0 | $2,467,812 | $2,467,812 |
| 2022 | $938,059 | $1,375,480 | $0 | $2,313,539 | $2,313,539 |
| 2021 | $822,971 | $1,250,480 | $0 | $2,073,451 | $2,073,451 |
| 2020 | $742,375 | $1,150,480 | $0 | $1,892,855 | $1,892,855 |
| 2019 | $623,842 | $1,150,480 | $0 | $1,774,322 | $1,774,322 |
| 2018 | $625,651 | $950,480 | $0 | $1,576,131 | $1,576,131 |
| 2017 | $628,837 | $920,480 | $0 | $1,549,317 | $1,549,317 |
| 2016 | $636,064 | $750,480 | $0 | $1,386,544 | $1,386,544 |
| 2015 | $643,290 | $750,480 | $0 | $1,393,770 | $1,393,770 |
| 2014 | $551,097 | $750,480 | $0 | $1,301,577 | $1,301,577 |
| 2013 | $557,123 | $816,240 | $0 | $1,373,363 | $1,373,363 |
| 2012 | $563,148 | $816,240 | $0 | $1,379,388 | $1,379,388 |
| 2011 | $569,175 | $816,240 | $0 | $1,385,415 | $1,385,415 |
| 2010 | $587,510 | $955,310 | $0 | $1,542,820 | $1,542,820 |
| 2009 | $519,991 | $1,157,399 | $0 | $1,677,390 | $1,677,390 |
| 2008 | $613,296 | $1,337,234 | $0 | $1,950,530 | $1,950,530 |
| 2007 | $620,343 | $962,917 | $0 | $1,583,260 | $1,583,260 |
Deed and Sales History
| 1 | 09/29/2005 | QCD | Quit Claim Deed | HODGE, JACK E | HODGE JR, JACK E | | | $0.00 | 54901 | 4149244 |
| 2 | 03/01/1996 | WD | Warranty Deed | DE, FELICE, S | HODGE, JACK E | | | $325,000.00 | 60896 | 96004718 |
| 3 | 10/01/1978 | OTHER | Other - Misc. Documents | Unknown | DE, FELICE, S | | | $87,500.00 | 84814 | 340542 |
Payout Agreement
| No payout information available.. |