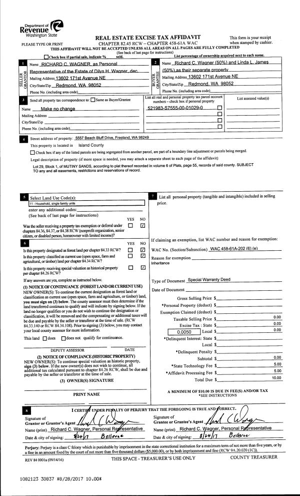
Property
Account |
| Property ID: | 398867 | Abbreviated Legal Description: | SUNLIGHT BCH ADD LOT 10 INCL ADJ TIDES |
| Geographic ID: | S8220-01-00010-0 | Agent Code: | |
| Type: | Real | | |
| Tax Area: | 810 - APPRAISER-S Whid Schl Dist, Diking District#1, improved & 1 acre or less | Land Use Code | 11 |
| Open Space: | N | DFL | N |
| Historic Property: | N | Remodel Property: | N |
| Multi-Family Redevelopment: | N | | |
| Township: | | Section: | |
| Range: | |
Location |
| Address: | 2476 SUNLIGHT BEACH RD CLINTON, WA 98236 | Mapsco: | |
| Neighborhood: | Cycle 4 | Map ID: | 789 |
| Neighborhood CD: | 4 |
Owner |
| Name: | ZOMMERS, PAULS | Owner ID: | 280350 |
| Mailing Address: | 4750 46TH AVE NE SEATTLE, WA 98105 | % Ownership: | 100.0000000000% |
| | | Exemptions: | |
Taxes and Assessment Details
Values
| (+) Improvement Homesite Value: | + | $0 | |
| (+) Improvement Non-Homesite Value: | + | $304,449 | |
| (+) Land Homesite Value: | + | $0 | |
| (+) Land Non-Homesite Value: | + | $1,250,480 | |
| (+) Curr Use (HS): | + | $0 | $0 |
| (+) Curr Use (NHS): | + | $0 | $0 |
| | | -------------------------- | |
| (=) Market Value: | = | $1,554,929 | |
| (–) Productivity Loss: | – | $0 | |
| | | -------------------------- | |
| (=) Subtotal: | = | $1,554,929 | |
| (+) Senior Appraised Value: | + | $0 | |
| (+) Non-Senior Appraised Value: | + | $1,554,929 | |
| | | -------------------------- | |
| (=) Total Appraised Value: | = | $1,554,929 | |
| (–) Senior Exemption Loss: | – | $0 | |
| (–) Exemption Loss: | – | $0 | |
| | | -------------------------- | |
| (=) Taxable Value: | = | $1,554,929 | |
Taxing Jurisdiction
| Owner: | ZOMMERS, PAULS | | |
| % Ownership: | 100.0000000000% | | |
| Total Value: | $1,554,929 | | |
| Tax Area: | 810 - APPRAISER-S Whid Schl Dist, Diking District#1, improved & 1 acre or less |
| CF | Conservation Futures | 0.0316035091 | $1,554,929 | $1,554,929 | $49.14 | | |
| FIRE3 | Fire & Rescue Dist #3 S Whidbey GEN | 1.2004855531 | $1,554,929 | $1,554,929 | $1,866.67 | | |
| HOBOND | Hospital BOND | 0.1910887512 | $1,554,929 | $1,554,929 | $297.13 | | |
| HOGEN | Hospital GEN | 0.3902502903 | $1,554,929 | $1,554,929 | $606.81 | | |
| CE | County Current Expense | 0.3708482477 | $1,554,929 | $1,554,929 | $576.64 | | |
| CR | County Roads | 0.4584763726 | $1,554,929 | $1,554,929 | $712.90 | | |
| ISLANDEMS | Hospital GEN (EMS) | 0.5000000000 | $1,554,929 | $1,554,929 | $777.46 | | |
| LIB | Library Sno-Isle GEN | 0.3153421757 | $1,554,929 | $1,554,929 | $490.33 | | |
| PORTWHID | Port of S Whidbey GEN | 0.1094540357 | $1,554,929 | $1,554,929 | $170.19 | | |
| SCH206BOND | School 206 BOND | 0.3161759235 | $1,554,929 | $1,554,929 | $491.63 | | |
| SCH206MO | School 206 Enrichment | 0.4547169547 | $1,554,929 | $1,554,929 | $707.05 | | |
| ST | State School | 1.3035497053 | $1,554,929 | $1,554,929 | $2,026.93 | | |
| ST2 | State School Part 2 | 0.8169543533 | $1,554,929 | $1,554,929 | $1,270.31 | | |
| SWHIDPRBD | P & R S Whidbey BOND | 0.0152817568 | $1,554,929 | $1,554,929 | $23.76 | | |
| SWHIDPRBD2 | P & R S Whidbey BOND2 | 0.0138911264 | $1,554,929 | $1,554,929 | $21.60 | | |
| SWHIDPRMT | P & R S Whidbey GEN | 0.2053334452 | $1,554,929 | $1,554,929 | $319.28 | | |
| | Total Tax Rate: | 6.6934522006 | | | | | |
| | | | | Taxes w/Current Exemptions: | $10,407.83 | | |
| | | | | Taxes w/o Exemptions: | $10,407.83 | | |
Improvement / Building
| Improvement #1: | RESIDENTIAL | State Code: | Y | 1460.0 sqft | Value: | $304,449 |
| Bathrooms: | 1.25 | Bedrooms: | 3 | | Ceiling: | BEAM PAINTED | Cooling: | HEAT PUMP/CONV/V | | Exterior Wall/Cover: | WOOD SIDING | Floor Covering: | HARDWOOD/CARP 60-40 | | Floor Structure: | WOOD W/SUBFLOOR | Foundation: | CONCRETE BLOCKS | | Interior Finish: | DRYWALL PAINT | Plumbing Fixture Cnt: | 9 | | Roof Slope: | 12" IN 12" | Roof Structure/Cover: | BEAM ASPHALT |
|
| | Type | Description | Class CD | Sub Class CD | Year Built | Area |
| | BAS | BASE/MAIN FLOOR | 3 | 0 | 1935 | 912.0 |
| | OWP | OPEN WOOD PORCH W/STEPS | 3 | 0 | 1935 | 864.0 |
| | OWP | OPEN WOOD PORCH W/STEPS | 3 | 0 | 1935 | 40.0 |
| | ENP | ENCLOSED PORCH | 3 | 0 | 1935 | 209.0 |
| | UPH | HALF STORY | 3 | 0 | 1935 | 548.0 |
| | DGR | DETACHED GARAGE | 3 | 0 | 1935 | 288.0 |
Sketch
Property Image
Land
| 1 | LB | LOW BANK | 0.0000 | 0.00 | 50.00 | 0.00 | 1.00 | $1,250,000 | $0 |
| 2 | 55 | TIDES | 0.0000 | 0.00 | 50.00 | 0.00 | 1.00 | $480 | $0 |
Roll Value History
| 2026 | N/A | N/A | N/A | N/A | N/A |
| 2025 | $304,449 | $1,250,480 | $0 | $1,554,929 | $1,554,929 |
| 2024 | $303,432 | $1,365,480 | $0 | $1,668,912 | $1,668,912 |
| 2023 | $307,309 | $1,440,480 | $0 | $1,747,789 | $1,747,789 |
| 2022 | $281,785 | $1,375,480 | $0 | $1,657,265 | $1,657,265 |
| 2021 | $248,081 | $1,250,480 | $0 | $1,498,561 | $1,498,561 |
| 2020 | $233,106 | $1,150,480 | $0 | $1,383,586 | $1,383,586 |
| 2019 | $170,077 | $1,150,480 | $0 | $1,320,557 | $1,320,557 |
| 2018 | $170,609 | $950,480 | $0 | $1,121,089 | $1,121,089 |
| 2017 | $140,520 | $920,480 | $0 | $1,061,000 | $1,061,000 |
| 2016 | $142,344 | $750,480 | $0 | $892,824 | $892,824 |
| 2015 | $144,169 | $750,480 | $0 | $894,649 | $894,649 |
| 2014 | $116,407 | $750,480 | $0 | $866,887 | $866,887 |
| 2013 | $99,061 | $735,275 | $0 | $834,336 | $834,336 |
| 2012 | $100,639 | $816,240 | $0 | $916,879 | $916,879 |
| 2011 | $102,216 | $816,240 | $0 | $918,456 | $918,456 |
| 2010 | $113,228 | $955,310 | $0 | $1,068,538 | $1,068,538 |
| 2009 | $118,196 | $1,337,234 | $0 | $1,455,430 | $1,455,430 |
| 2008 | $108,741 | $1,337,234 | $0 | $1,445,975 | $1,445,975 |
| 2007 | $110,493 | $962,917 | $0 | $1,073,410 | $1,073,410 |
Deed and Sales History
| 1 | 06/08/2017 | WD | Warranty Deed | STEVENSON, RICHARD H | ZOMMERS, PAULS | | | $1,300,000.00 | 29702 | 4424116 |
| 2 | 01/10/2011 | WD | Warranty Deed | WATKINS, DAVID M & KRISTINE L | STEVENSON, RICHARD H | | | $1,012,500.00 | 3415 | 4289127 |
| 3 | 09/13/2005 | WD | Warranty Deed | HOLT, KAREN | WATKINS, DAVID M & KRISTINE L | | | $1,100,000.00 | 54652 | 4147822 |
| 4 | 05/17/2000 | QCD | Quit Claim Deed | U, S B | HOLT, KAREN | | | $0.00 | 2013 | 20009597 |
| 5 | 02/01/1988 | QCD | Quit Claim Deed | HOLT, PHILLIP E | U, S B | | | $0.00 | 80471 | 88001977 |
| 6 | 01/01/1900 | OTHER | Other - Misc. Documents | Unknown | HOLT, PHILLIP E | | | $0.00 | 0 | 0 |
Payout Agreement
| No payout information available.. |