Property
Account |
| Property ID: | 398901 | Abbreviated Legal Description: | SUNLIGHT BCH ADD LOT 14 INCL ADJ TIDES |
| Geographic ID: | S8220-01-00014-0 | Agent Code: | |
| Type: | Real | | |
| Tax Area: | 850 - APPRAISER-S Whid Schl Dist, Special District, improved & less than 1 acre | Land Use Code | 11 |
| Open Space: | N | DFL | N |
| Historic Property: | N | Remodel Property: | N |
| Multi-Family Redevelopment: | N | | |
| Township: | | Section: | |
| Range: | |
Location |
| Address: | 2462 SUNLIGHT BEACH RD CLINTON, WA 98236 | Mapsco: | |
| Neighborhood: | Cycle 4 | Map ID: | 789 |
| Neighborhood CD: | 4 |
Owner |
| Name: | CRITES, BRIAN | Owner ID: | 290688 |
| Mailing Address: | JOAN CRITES 4903 163RD AVE NE REDMOND, WA 98052 | % Ownership: | 100.0000000000% |
| | | Exemptions: | |
Taxes and Assessment Details
Values
| (+) Improvement Homesite Value: | + | $0 | |
| (+) Improvement Non-Homesite Value: | + | $719,934 | |
| (+) Land Homesite Value: | + | $0 | |
| (+) Land Non-Homesite Value: | + | $1,250,480 | |
| (+) Curr Use (HS): | + | $0 | $0 |
| (+) Curr Use (NHS): | + | $0 | $0 |
| | | -------------------------- | |
| (=) Market Value: | = | $1,970,414 | |
| (–) Productivity Loss: | – | $0 | |
| | | -------------------------- | |
| (=) Subtotal: | = | $1,970,414 | |
| (+) Senior Appraised Value: | + | $0 | |
| (+) Non-Senior Appraised Value: | + | $1,970,414 | |
| | | -------------------------- | |
| (=) Total Appraised Value: | = | $1,970,414 | |
| (–) Senior Exemption Loss: | – | $0 | |
| (–) Exemption Loss: | – | $0 | |
| | | -------------------------- | |
| (=) Taxable Value: | = | $1,970,414 | |
Taxing Jurisdiction
| Owner: | CRITES, BRIAN | | |
| % Ownership: | 100.0000000000% | | |
| Total Value: | $1,970,414 | | |
| Tax Area: | 850 - APPRAISER-S Whid Schl Dist, Special District, improved & less than 1 acre |
| CF | Conservation Futures | 0.0316035091 | $1,970,414 | $1,970,414 | $62.27 | | |
| FIRE3 | Fire & Rescue Dist #3 S Whidbey GEN | 1.2004855531 | $1,970,414 | $1,970,414 | $2,365.45 | | |
| HOBOND | Hospital BOND | 0.1910887512 | $1,970,414 | $1,970,414 | $376.52 | | |
| HOGEN | Hospital GEN | 0.3902502903 | $1,970,414 | $1,970,414 | $768.95 | | |
| CE | County Current Expense | 0.3708482477 | $1,970,414 | $1,970,414 | $730.72 | | |
| CR | County Roads | 0.4584763726 | $1,970,414 | $1,970,414 | $903.39 | | |
| ISLANDEMS | Hospital GEN (EMS) | 0.5000000000 | $1,970,414 | $1,970,414 | $985.21 | | |
| LIB | Library Sno-Isle GEN | 0.3153421757 | $1,970,414 | $1,970,414 | $621.35 | | |
| PORTWHID | Port of S Whidbey GEN | 0.1094540357 | $1,970,414 | $1,970,414 | $215.67 | | |
| SCH206BOND | School 206 BOND | 0.3161759235 | $1,970,414 | $1,970,414 | $623.00 | | |
| SCH206MO | School 206 Enrichment | 0.4547169547 | $1,970,414 | $1,970,414 | $895.98 | | |
| ST | State School | 1.3035497053 | $1,970,414 | $1,970,414 | $2,568.53 | | |
| ST2 | State School Part 2 | 0.8169543533 | $1,970,414 | $1,970,414 | $1,609.74 | | |
| SWHIDPRBD | P & R S Whidbey BOND | 0.0152817568 | $1,970,414 | $1,970,414 | $30.11 | | |
| SWHIDPRBD2 | P & R S Whidbey BOND2 | 0.0138911264 | $1,970,414 | $1,970,414 | $27.37 | | |
| SWHIDPRMT | P & R S Whidbey GEN | 0.2053334452 | $1,970,414 | $1,970,414 | $404.59 | | |
| | Total Tax Rate: | 6.6934522006 | | | | | |
| | | | | Taxes w/Current Exemptions: | $13,188.85 | | |
| | | | | Taxes w/o Exemptions: | $13,188.85 | | |
Improvement / Building
| Improvement #1: | RESIDENTIAL | State Code: | Y | 2361.0 sqft | Value: | $719,934 |
| Bathrooms: | 2.5 | Bedrooms: | 2 | | Ceiling: | DRYWALL PAINTED | Cooling: | HEAT PUMP/CONV/V | | Exterior Wall/Cover: | SHINGLE | Floor Covering: | HARDWOOD 100% | | Floor Structure: | WOOD W/SUBFLOOR | Foundation: | CONCRETE | | Interior Finish: | DRYWALL PAINT | Plumbing Fixture Cnt: | 13 | | Roof Slope: | 10" IN 12" | Roof Structure/Cover: | CJ ASPHALT |
|
| | Type | Description | Class CD | Sub Class CD | Year Built | Area |
| | BAS | BASE/MAIN FLOOR | 6 | 0 | 2014 | 1301.5 |
| | UPS | UPPER STORY | 6 | 0 | 2014 | 1059.5 |
| | OWP | OPEN WOOD PORCH W/STEPS | 6 | 0 | 2014 | 676.5 |
| | OP4 | OPEN PORCH W/CEILING-ROOF | 6 | 0 | 2014 | 30.0 |
| | OWC | OPEN WOOD PORCH W/STEPS/ROOF/C | 6 | 0 | 2014 | 49.0 |
| | OWC | OPEN WOOD PORCH W/STEPS/ROOF/C | 6 | 0 | 2014 | 49.0 |
| | AGR | ATTACHED GARAGE | 6 | 0 | 2014 | 308.0 |
Sketch
Property Image
Land
| 1 | LB | LOW BANK | 0.0000 | 0.00 | 50.00 | 0.00 | 1.00 | $1,250,000 | $0 |
| 2 | 55 | TIDES | 0.0000 | 0.00 | 50.00 | 0.00 | 1.00 | $480 | $0 |
Roll Value History
| 2026 | N/A | N/A | N/A | N/A | N/A |
| 2025 | $719,934 | $1,250,480 | $0 | $1,970,414 | $1,970,414 |
| 2024 | $725,486 | $1,365,480 | $0 | $2,090,966 | $2,090,966 |
| 2023 | $731,431 | $1,440,480 | $0 | $2,171,911 | $2,171,911 |
| 2022 | $667,690 | $1,375,480 | $0 | $2,043,170 | $2,043,170 |
| 2021 | $585,273 | $1,250,480 | $0 | $1,835,753 | $1,835,753 |
| 2020 | $515,042 | $1,150,480 | $0 | $1,665,522 | $1,665,522 |
| 2019 | $522,801 | $1,150,480 | $0 | $1,673,281 | $1,673,281 |
| 2018 | $524,175 | $950,480 | $0 | $1,474,655 | $1,474,655 |
| 2017 | $526,920 | $920,480 | $0 | $1,447,400 | $1,447,400 |
| 2016 | $532,407 | $750,480 | $0 | $1,282,887 | $1,282,887 |
| 2015 | $536,192 | $750,480 | $0 | $1,286,672 | $1,286,672 |
| 2014 | $321,875 | $650,480 | $0 | $972,355 | $972,355 |
| 2013 | $1,349 | $816,240 | $0 | $817,589 | $817,589 |
| 2012 | $1,349 | $816,240 | $0 | $817,589 | $817,589 |
| 2011 | $1,349 | $816,240 | $0 | $817,589 | $817,589 |
| 2010 | $1,349 | $897,004 | $0 | $898,353 | $898,353 |
| 2009 | $1,349 | $1,054,548 | $0 | $1,055,897 | $1,055,897 |
| 2008 | $1,349 | $691,402 | $0 | $692,751 | $692,751 |
| 2007 | $1,349 | $496,429 | $0 | $497,778 | $497,778 |
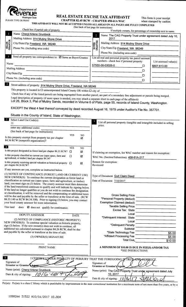
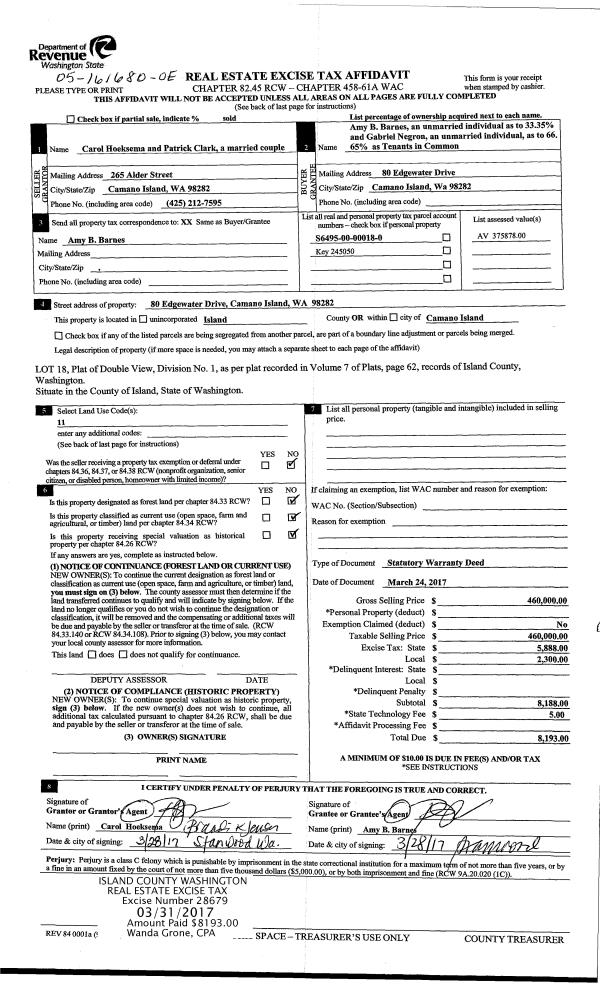
Deed and Sales History
| 1 | 06/28/2019 | WD | Warranty Deed | STOVER, WILLIAM F | CRITES, BRIAN | | | $1,650,000.00 | 39262 | 4466570 |
| 2 | 10/06/2017 | QCD | Quit Claim Deed | STOVER, WILLIAM F | STOVER, WILLIAM F | | | $0.00 | 31458 | 4431835 |
| 3 | 05/05/2017 | QCD | Quit Claim Deed | STOVER, WILLIAM F | STOVER, WILLIAM F | | | $0.00 | 29176 | 4421997 |
| 4 | 07/29/2013 | WD | Warranty Deed | JANSSEN FAM LTD PRTNRSHIP | STOVER, WILLIAM F | | | $670,000.00 | 12235 | 4345358 |
| 5 | 11/01/1995 | WD | Warranty Deed | JANSSEN, IRL H | JANSSEN, FAM L | | | $0.00 | 53965 | 95018200 |
| 6 | 01/01/1900 | OTHER | Other - Misc. Documents | Unknown | JANSSEN, IRL H | | | $0.00 | 0 | 0 |
Payout Agreement
| No payout information available.. |