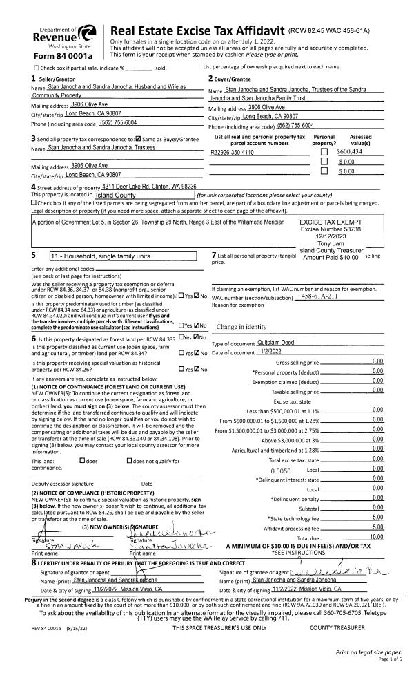
Property
Account |
| Property ID: | 39899 | Abbreviated Legal Description: | 56 - E/2 OF W/2 OF NE SW NE EX RD |
| Geographic ID: | R13332-359-3540 | Agent Code: | |
| Type: | Real | | |
| Tax Area: | 112 - APPRAISER-OH Schl Dist, outside OH, improved, greater than 1 acre | Land Use Code | 11 |
| Open Space: | N | DFL | N |
| Historic Property: | N | Remodel Property: | N |
| Multi-Family Redevelopment: | N | | |
| Township: | 33 | Section: | 32 |
| Range: | R1 |
Location |
| Address: | 1745 NW CROSBY AVE OAK HARBOR, WA 98277 | Mapsco: | |
| Neighborhood: | Cycle 1 | Map ID: | 247 |
| Neighborhood CD: | 1 |
Owner |
| Name: | BEAUGARD, PATRICK A | Owner ID: | 185059 |
| Mailing Address: | PATRICIA D BEAUGARD 1745 CROSBY RD OAK HARBOR, WA 98277-8967 | % Ownership: | 100.0000000000% |
| | | Exemptions: | |
Taxes and Assessment Details
Values
| (+) Improvement Homesite Value: | + | $0 | |
| (+) Improvement Non-Homesite Value: | + | $220,863 | |
| (+) Land Homesite Value: | + | $0 | |
| (+) Land Non-Homesite Value: | + | $290,000 | |
| (+) Curr Use (HS): | + | $0 | $0 |
| (+) Curr Use (NHS): | + | $0 | $0 |
| | | -------------------------- | |
| (=) Market Value: | = | $510,863 | |
| (–) Productivity Loss: | – | $0 | |
| | | -------------------------- | |
| (=) Subtotal: | = | $510,863 | |
| (+) Senior Appraised Value: | + | $0 | |
| (+) Non-Senior Appraised Value: | + | $510,863 | |
| | | -------------------------- | |
| (=) Total Appraised Value: | = | $510,863 | |
| (–) Senior Exemption Loss: | – | $0 | |
| (–) Exemption Loss: | – | $0 | |
| | | -------------------------- | |
| (=) Taxable Value: | = | $510,863 | |
Taxing Jurisdiction
| Owner: | BEAUGARD, PATRICK A | | |
| % Ownership: | 100.0000000000% | | |
| Total Value: | $510,863 | | |
| Tax Area: | 112 - APPRAISER-OH Schl Dist, outside OH, improved, greater than 1 acre |
| CF | Conservation Futures | 0.0316035091 | $510,863 | $510,863 | $16.15 | | |
| CEM1 | Cemetery #1 | 0.0040320932 | $510,863 | $510,863 | $2.06 | | |
| FIRE2 | Fire & Rescue Dist #2 N Whidbey GEN | 0.5475949600 | $510,863 | $510,863 | $279.75 | | |
| HOBOND | Hospital BOND | 0.1910887512 | $510,863 | $510,863 | $97.62 | | |
| HOGEN | Hospital GEN | 0.3902502903 | $510,863 | $510,863 | $199.36 | | |
| CE | County Current Expense | 0.3708482477 | $510,863 | $510,863 | $189.45 | | |
| CR | County Roads | 0.4584763726 | $510,863 | $510,863 | $234.22 | | |
| ISLANDEMS | Hospital GEN (EMS) | 0.5000000000 | $510,863 | $510,863 | $255.43 | | |
| LIB | Library Sno-Isle GEN | 0.3153421757 | $510,863 | $510,863 | $161.10 | | |
| NWHIDPRMT | P & R N Whidbey GEN | 0.2004466701 | $510,863 | $510,863 | $102.40 | | |
| SCH201MO | School 201 Enrichment | 1.8559231640 | $510,863 | $510,863 | $948.12 | | |
| ST | State School | 1.3035497053 | $510,863 | $510,863 | $665.94 | | |
| ST2 | State School Part 2 | 0.8169543533 | $510,863 | $510,863 | $417.35 | | |
| | Total Tax Rate: | 6.9861102925 | | | | | |
| | | | | Taxes w/Current Exemptions: | $3,568.95 | | |
| | | | | Taxes w/o Exemptions: | $3,568.95 | | |
Improvement / Building
| Improvement #1: | RESIDENTIAL | State Code: | Y | 1438.0 sqft | Value: | $220,863 |
| Bathrooms: | 2 | Bedrooms: | 2 | | Ceiling: | DRY WALL SPRAYED | Exterior Wall/Cover: | WOOD SIDING | | Floor Covering: | CARPET/VINYL 60-40 | Floor Structure: | WOOD W/SUBFLOOR | | Foundation: | CONCRETE | Heating: | FHA ELECTRIC | | Interior Finish: | DRYWALL PAINT | Plumbing Fixture Cnt: | 11 | | Roof Slope: | 4" IN 12" | Roof Structure/Cover: | CJ ASPHALT |
|
| | Type | Description | Class CD | Sub Class CD | Year Built | Area |
| | BAS | BASE/MAIN FLOOR | 3 | 0 | 1976 | 1438.0 |
| | OP3 | OPEN PORCH W/ROOF | 3 | 0 | 1976 | 66.0 |
| | AGR | ATTACHED GARAGE | 3 | 0 | 1976 | 462.0 |
Sketch
Property Image
Land
| 1 | 18 | AC (02.01-03.00) | 2.3600 | 102801.60 | 0.00 | 0.00 | 1.00 | $290,000 | $0 |
Roll Value History
| 2026 | N/A | N/A | N/A | N/A | N/A |
| 2025 | $220,863 | $290,000 | $0 | $510,863 | $510,863 |
| 2024 | $223,963 | $280,000 | $0 | $503,963 | $503,963 |
| 2023 | $220,863 | $280,000 | $0 | $500,863 | $500,863 |
| 2022 | $202,805 | $250,000 | $0 | $452,805 | $452,805 |
| 2021 | $178,783 | $210,000 | $0 | $388,783 | $388,783 |
| 2020 | $174,148 | $175,000 | $0 | $349,148 | $349,148 |
| 2019 | $123,673 | $230,000 | $0 | $353,673 | $353,673 |
| 2018 | $124,084 | $190,000 | $0 | $314,084 | $314,084 |
| 2017 | $95,335 | $170,000 | $0 | $265,335 | $265,335 |
| 2016 | $96,979 | $120,000 | $0 | $216,979 | $216,979 |
| 2015 | $98,623 | $100,000 | $0 | $198,623 | $198,623 |
| 2014 | $100,267 | $80,000 | $0 | $180,267 | $180,267 |
| 2013 | $101,910 | $80,000 | $0 | $181,910 | $181,910 |
| 2012 | $103,554 | $102,000 | $0 | $205,554 | $205,554 |
| 2011 | $107,736 | $120,000 | $0 | $227,736 | $227,736 |
| 2010 | $113,857 | $120,000 | $0 | $233,857 | $233,857 |
| 2009 | $119,166 | $132,000 | $0 | $251,166 | $251,166 |
| 2008 | $126,208 | $132,000 | $0 | $258,208 | $258,208 |
| 2007 | $128,148 | $132,000 | $0 | $260,148 | $260,148 |
Deed and Sales History
| 1 | 03/14/2001 | WD | Warranty Deed | MCNICHOL, BETTY M | BEAUGARD, PATRICK A | | | $165,000.00 | 10868 | 20027780 |
| 2 | 09/01/1997 | ESTSEPPROP | Establish Separate Property | MCNICHOL, BETTY M | MCNICHOL, BETTY M | | | $0.00 | 73114 | 97014670 |
| 3 | 01/01/1900 | OTHER | Other - Misc. Documents | Unknown | MCNICHOL, BETTY M | | | $0.00 | 0 | 0 |
Payout Agreement
| No payout information available.. |