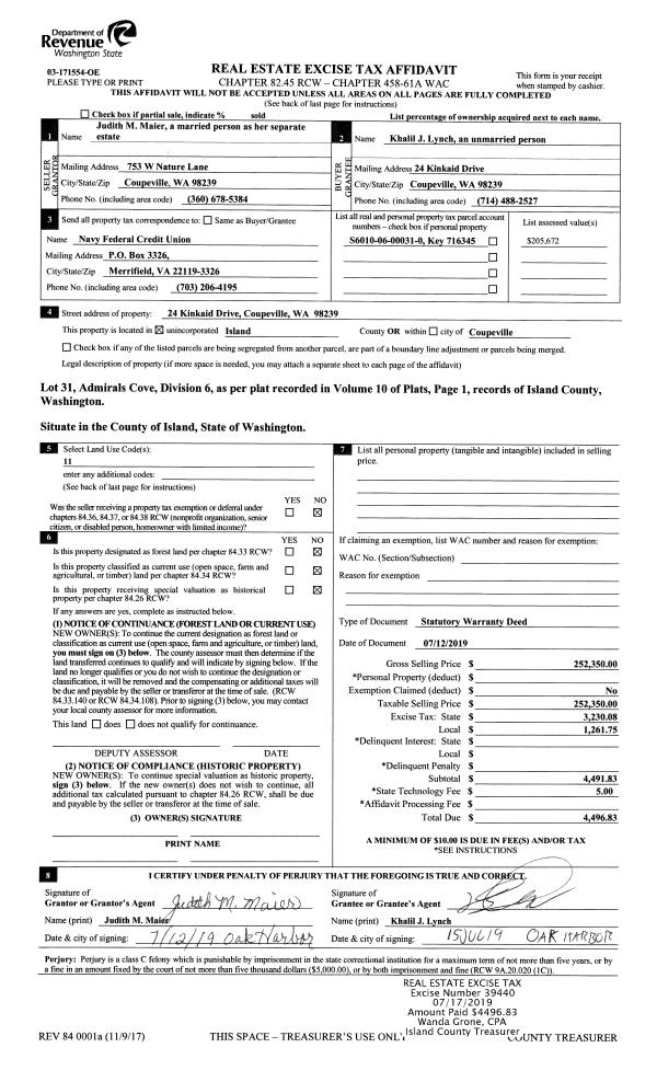
Property
Account |
| Property ID: | 399107 | Abbreviated Legal Description: | SUNLIGHT BCH ADD LOT 34 EX NLY 40' TGW E/2 LOT 35 TGW PT LOT 33 EX NLY 40' LY NWLY OF SELY EDGE OF CONCRETE RETAINING WALL SHOWN ON SURVEY V9 SUR P277 AF#96002463 COMB 4/92 |
| Geographic ID: | S8220-01-00034-2 | Agent Code: | |
| Type: | Real | | |
| Tax Area: | 810 - APPRAISER-S Whid Schl Dist, Diking District#1, improved & 1 acre or less | Land Use Code | 11 |
| Open Space: | N | DFL | N |
| Historic Property: | N | Remodel Property: | N |
| Multi-Family Redevelopment: | N | | |
| Township: | | Section: | |
| Range: | |
Location |
| Address: | 2396 SUNLIGHT BEACH RD CLINTON, WA 98236 | Mapsco: | |
| Neighborhood: | Cycle 4 | Map ID: | 789 |
| Neighborhood CD: | 4 |
Owner |
| Name: | TIBERTI, DEBRA | Owner ID: | 305682 |
| Mailing Address: | 2619 RED ARROW LAS VEGAS, NV 89135 | % Ownership: | 100.0000000000% |
| | | Exemptions: | |
Taxes and Assessment Details
Values
| (+) Improvement Homesite Value: | + | $0 | |
| (+) Improvement Non-Homesite Value: | + | $1,504,525 | |
| (+) Land Homesite Value: | + | $0 | |
| (+) Land Non-Homesite Value: | + | $1,250,000 | |
| (+) Curr Use (HS): | + | $0 | $0 |
| (+) Curr Use (NHS): | + | $0 | $0 |
| | | -------------------------- | |
| (=) Market Value: | = | $2,754,525 | |
| (–) Productivity Loss: | – | $0 | |
| | | -------------------------- | |
| (=) Subtotal: | = | $2,754,525 | |
| (+) Senior Appraised Value: | + | $0 | |
| (+) Non-Senior Appraised Value: | + | $2,754,525 | |
| | | -------------------------- | |
| (=) Total Appraised Value: | = | $2,754,525 | |
| (–) Senior Exemption Loss: | – | $0 | |
| (–) Exemption Loss: | – | $0 | |
| | | -------------------------- | |
| (=) Taxable Value: | = | $2,754,525 | |
Taxing Jurisdiction
| Owner: | TIBERTI, DEBRA | | |
| % Ownership: | 100.0000000000% | | |
| Total Value: | $2,754,525 | | |
| Tax Area: | 810 - APPRAISER-S Whid Schl Dist, Diking District#1, improved & 1 acre or less |
| CF | Conservation Futures | 0.0316035091 | $2,754,525 | $2,754,525 | $87.05 | | |
| FIRE3 | Fire & Rescue Dist #3 S Whidbey GEN | 1.2004855531 | $2,754,525 | $2,754,525 | $3,306.77 | | |
| HOBOND | Hospital BOND | 0.1910887512 | $2,754,525 | $2,754,525 | $526.36 | | |
| HOGEN | Hospital GEN | 0.3902502903 | $2,754,525 | $2,754,525 | $1,074.95 | | |
| CE | County Current Expense | 0.3708482477 | $2,754,525 | $2,754,525 | $1,021.51 | | |
| CR | County Roads | 0.4584763726 | $2,754,525 | $2,754,525 | $1,262.88 | | |
| ISLANDEMS | Hospital GEN (EMS) | 0.5000000000 | $2,754,525 | $2,754,525 | $1,377.26 | | |
| LIB | Library Sno-Isle GEN | 0.3153421757 | $2,754,525 | $2,754,525 | $868.62 | | |
| PORTWHID | Port of S Whidbey GEN | 0.1094540357 | $2,754,525 | $2,754,525 | $301.49 | | |
| SCH206BOND | School 206 BOND | 0.3161759235 | $2,754,525 | $2,754,525 | $870.91 | | |
| SCH206MO | School 206 Enrichment | 0.4547169547 | $2,754,525 | $2,754,525 | $1,252.53 | | |
| ST | State School | 1.3035497053 | $2,754,525 | $2,754,525 | $3,590.66 | | |
| ST2 | State School Part 2 | 0.8169543533 | $2,754,525 | $2,754,525 | $2,250.32 | | |
| SWHIDPRBD | P & R S Whidbey BOND | 0.0152817568 | $2,754,525 | $2,754,525 | $42.09 | | |
| SWHIDPRBD2 | P & R S Whidbey BOND2 | 0.0138911264 | $2,754,525 | $2,754,525 | $38.26 | | |
| SWHIDPRMT | P & R S Whidbey GEN | 0.2053334452 | $2,754,525 | $2,754,525 | $565.60 | | |
| | Total Tax Rate: | 6.6934522006 | | | | | |
| | | | | Taxes w/Current Exemptions: | $18,437.26 | | |
| | | | | Taxes w/o Exemptions: | $18,437.26 | | |
Improvement / Building
| Improvement #1: | RESIDENTIAL | State Code: | Y | 4755.9 sqft | Value: | $1,285,134 |
| Bathrooms: | 4 | Bedrooms: | 2 | | Ceiling: | TONGUE & GROOVE | Exterior Wall/Cover: | SHINGLE | | Floor Covering: | HARDWOOD 100% | Floor Structure: | SLAB ABOVE GRADE | | Foundation: | CONCRETE | Heating: | RADIANT FLOOR | | Interior Finish: | DRYWALL PAINT | Plumbing Fixture Cnt: | 21 | | Roof Slope: | 6" IN 12" | Roof Structure/Cover: | BEAM CONCRETE TILE |
|
| | Type | Description | Class CD | Sub Class CD | Year Built | Area |
| | BAS | BASE/MAIN FLOOR | 7 | 0 | 2000 | 3195.2 |
| | OP4 | OPEN PORCH W/CEILING-ROOF | 7 | 0 | 2000 | 176.0 |
| | OP4 | OPEN PORCH W/CEILING-ROOF | 7 | 0 | 2000 | 483.0 |
| | UTY | STORAGE/UTILITY | 7 | 0 | 2000 | 288.0 |
| | AGR | ATTACHED GARAGE | 7 | 0 | 2000 | 576.0 |
| | UPS | UPPER STORY | 7 | 0 | 2000 | 1114.9 |
| | OWP | OPEN WOOD PORCH W/STEPS | 7 | 0 | 2000 | 176.0 |
| | ENP | ENCLOSED PORCH | 7 | 0 | 2000 | 177.5 |
| | LOF | LOFT | 7 | 0 | 2000 | 445.8 |
| Improvement #2: | RESIDENTIAL | State Code: | Y | 829.2 sqft | Value: | $219,391 |
| Bathrooms: | 1 | Bedrooms: | 1 | | Ceiling: | TONGUE & GROOVE | Exterior Wall/Cover: | SHINGLE | | Floor Covering: | HARDWOOD 100% | Floor Structure: | SLAB ON GRADE | | Foundation: | SLAB/CONCRETE | Heating: | FHA GAS | | Interior Finish: | DRYWALL PAINT | Plumbing Fixture Cnt: | 6 | | Roof Slope: | 8" IN 12" | Roof Structure/Cover: | BEAM WOOD SHAKES |
|
| | Type | Description | Class CD | Sub Class CD | Year Built | Area |
| | BAS | BASE/MAIN FLOOR | 4 | 0 | 1999 | 691.2 |
| | OP4 | OPEN PORCH W/CEILING-ROOF | 4 | 0 | 1999 | 199.0 |
| | OP4 | OPEN PORCH W/CEILING-ROOF | 4 | 0 | 1999 | 66.0 |
| | LOF | LOFT | 4 | 0 | 1999 | 138.0 |
Sketch
Property Image
Land
| 1 | LB | LOW BANK | 0.0000 | 0.00 | 76.00 | 0.00 | 1.00 | $1,250,000 | $0 |
Roll Value History
| 2026 | N/A | N/A | N/A | N/A | N/A |
| 2025 | $1,504,525 | $1,250,000 | $0 | $2,754,525 | $2,754,525 |
| 2024 | $1,523,042 | $1,365,000 | $0 | $2,888,042 | $2,888,042 |
| 2023 | $1,541,557 | $1,440,000 | $0 | $2,981,557 | $2,981,557 |
| 2022 | $1,412,651 | $1,375,000 | $0 | $2,787,651 | $2,787,651 |
| 2021 | $1,242,988 | $1,250,000 | $0 | $2,492,988 | $2,492,988 |
| 2020 | $1,183,474 | $1,150,000 | $0 | $2,333,474 | $2,333,474 |
| 2019 | $1,299,596 | $1,150,000 | $0 | $2,449,596 | $2,449,596 |
| 2018 | $1,801,257 | $1,000,000 | $0 | $2,801,257 | $2,801,257 |
| 2017 | $1,795,615 | $1,000,000 | $0 | $2,795,615 | $2,795,615 |
| 2016 | $1,816,324 | $1,000,000 | $0 | $2,816,324 | $2,816,324 |
| 2015 | $1,837,033 | $1,000,000 | $0 | $2,837,033 | $2,837,033 |
| 2014 | $1,342,943 | $1,000,000 | $0 | $2,342,943 | $2,342,943 |
| 2013 | $1,358,741 | $1,167,720 | $0 | $2,526,461 | $2,526,461 |
| 2012 | $1,374,535 | $1,167,720 | $0 | $2,542,255 | $2,542,255 |
| 2011 | $1,390,332 | $1,167,720 | $0 | $2,558,052 | $2,558,052 |
| 2010 | $1,398,054 | $1,366,769 | $0 | $2,764,823 | $2,764,823 |
| 2009 | $1,457,557 | $1,913,476 | $0 | $3,371,033 | $3,371,033 |
| 2008 | $1,467,190 | $1,913,476 | $0 | $3,380,666 | $3,380,666 |
| 2007 | $1,469,670 | $1,378,159 | $0 | $2,847,829 | $2,847,829 |
Deed and Sales History
| 1 | 08/07/2022 | WD | Warranty Deed | TIBERTI TTEE, RENALDO M | TIBERTI, DEBRA | | | $0.00 | 54140 | 4549595 |
| 2 | 08/08/2019 | QCD | Quit Claim Deed | TIBERTI TTEE, RENALDO M | TIBERTI TTEE, RENALDO M | | | $0.00 | 39834 | 4469244 |
| 3 | 02/18/2019 | WD | Warranty Deed | ALMQUIST, MICHAEL | TIBERTI TTEE, RENALDO M | | | $2,300,000.00 | 37693 | 4459736 |
| 4 | 08/05/2005 | WD | Warranty Deed | WALTERS, SUSAN | ALMQUIST, MICHAEL | | | $3,050,000.00 | 53921 | 4143814 |
| 5 | 08/12/2004 | DECREE | Divorce Decree/Legal Separation | OGDEN, CHARLES B | WALTERS, SUSAN | | | $0.00 | 44171 | 4112057 |
| 6 | 07/01/1997 | ESTSEPPROP | Establish Separate Property | WALTERS, SUSAN & | OGDEN, CHARLES B | | | $0.00 | 72409 | 97011349 |
| 7 | 07/01/1997 | WD | Warranty Deed | OGDEN, CHARLES B | WALTERS, SUSAN & | | | $391,500.00 | 72410 | 97011350 |
| 8 | 10/01/1996 | QCD | Quit Claim Deed | OGDEN, CHARLES B | OGDEN, CHARLES B | | | $0.00 | 63842 | 96018584 |
| 9 | 07/01/1994 | QCD | Quit Claim Deed | OGDEN, CHARLES B | OGDEN, CHARLES B | | | $0.00 | 43726 | 94019474 |
| 10 | 12/01/1992 | QCD | Quit Claim Deed | OGDEN, CHARLES B | OGDEN, CHARLES B | | | $0.00 | 24815 | 92024106 |
| 11 | 10/01/1992 | QCD | Quit Claim Deed | OGDEN, CHARLES B | OGDEN, CHARLES B | | | $0.00 | 24250 | 92020743 |
| 12 | 04/01/1992 | OTHER | Other - Misc. Documents | OGDEN, CHARLES B | OGDEN, CHARLES B | | | $0.00 | 64779 | 92004642 |
| 13 | 07/01/1990 | QCD | Quit Claim Deed | OGDEN, CHARLES B | OGDEN, CHARLES B | | | $0.00 | 4150 | 90013740 |
| 14 | 01/01/1900 | OTHER | Other - Misc. Documents | Unknown | OGDEN, CHARLES B | | | $0.00 | 0 | 0 |
Payout Agreement
| No payout information available.. |