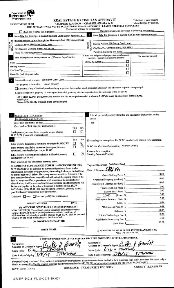
Property
Account |
| Property ID: | 399143 | Abbreviated Legal Description: | SUNLIGHT BCH ADD LOT 37 LY N OF LN: BG W R/W LN RD 25' NWLY FR SE CR LOT 37 S84*W130'TPB S54*W27.31' S69*W TO LN HITD ALSO PT LOT 38 LY SWLY OF LN BG WLY CR L39 N41*W TO HI TIDE |
| Geographic ID: | S8220-01-00038-0 | Agent Code: | |
| Type: | Real | | |
| Tax Area: | 810 - APPRAISER-S Whid Schl Dist, Diking District#1, improved & 1 acre or less | Land Use Code | 11 |
| Open Space: | N | DFL | N |
| Historic Property: | N | Remodel Property: | N |
| Multi-Family Redevelopment: | N | | |
| Township: | | Section: | |
| Range: | |
Location |
| Address: | 2380 SUNLIGHT BEACH RD CLINTON, WA 98236 | Mapsco: | |
| Neighborhood: | Cycle 4 | Map ID: | 789 |
| Neighborhood CD: | 4 |
Owner |
| Name: | HEAVEY, PATRICIA | Owner ID: | 296343 |
| Mailing Address: | ROBERT HEAVEY 2380 SUNLIGHT BEACH RD CLINTON, WA 98236 | % Ownership: | 100.0000000000% |
| | | Exemptions: | |
Taxes and Assessment Details
Values
| (+) Improvement Homesite Value: | + | $0 | |
| (+) Improvement Non-Homesite Value: | + | $717,578 | |
| (+) Land Homesite Value: | + | $0 | |
| (+) Land Non-Homesite Value: | + | $1,500,000 | |
| (+) Curr Use (HS): | + | $0 | $0 |
| (+) Curr Use (NHS): | + | $0 | $0 |
| | | -------------------------- | |
| (=) Market Value: | = | $2,217,578 | |
| (–) Productivity Loss: | – | $0 | |
| | | -------------------------- | |
| (=) Subtotal: | = | $2,217,578 | |
| (+) Senior Appraised Value: | + | $0 | |
| (+) Non-Senior Appraised Value: | + | $2,217,578 | |
| | | -------------------------- | |
| (=) Total Appraised Value: | = | $2,217,578 | |
| (–) Senior Exemption Loss: | – | $0 | |
| (–) Exemption Loss: | – | $0 | |
| | | -------------------------- | |
| (=) Taxable Value: | = | $2,217,578 | |
Taxing Jurisdiction
| Owner: | HEAVEY, PATRICIA | | |
| % Ownership: | 100.0000000000% | | |
| Total Value: | $2,217,578 | | |
| Tax Area: | 810 - APPRAISER-S Whid Schl Dist, Diking District#1, improved & 1 acre or less |
| CF | Conservation Futures | 0.0316035091 | $2,217,578 | $2,217,578 | $70.08 | | |
| FIRE3 | Fire & Rescue Dist #3 S Whidbey GEN | 1.2004855531 | $2,217,578 | $2,217,578 | $2,662.17 | | |
| HOBOND | Hospital BOND | 0.1910887512 | $2,217,578 | $2,217,578 | $423.75 | | |
| HOGEN | Hospital GEN | 0.3902502903 | $2,217,578 | $2,217,578 | $865.41 | | |
| CE | County Current Expense | 0.3708482477 | $2,217,578 | $2,217,578 | $822.38 | | |
| CR | County Roads | 0.4584763726 | $2,217,578 | $2,217,578 | $1,016.71 | | |
| ISLANDEMS | Hospital GEN (EMS) | 0.5000000000 | $2,217,578 | $2,217,578 | $1,108.79 | | |
| LIB | Library Sno-Isle GEN | 0.3153421757 | $2,217,578 | $2,217,578 | $699.30 | | |
| PORTWHID | Port of S Whidbey GEN | 0.1094540357 | $2,217,578 | $2,217,578 | $242.72 | | |
| SCH206BOND | School 206 BOND | 0.3161759235 | $2,217,578 | $2,217,578 | $701.14 | | |
| SCH206MO | School 206 Enrichment | 0.4547169547 | $2,217,578 | $2,217,578 | $1,008.37 | | |
| ST | State School | 1.3035497053 | $2,217,578 | $2,217,578 | $2,890.72 | | |
| ST2 | State School Part 2 | 0.8169543533 | $2,217,578 | $2,217,578 | $1,811.66 | | |
| SWHIDPRBD | P & R S Whidbey BOND | 0.0152817568 | $2,217,578 | $2,217,578 | $33.89 | | |
| SWHIDPRBD2 | P & R S Whidbey BOND2 | 0.0138911264 | $2,217,578 | $2,217,578 | $30.80 | | |
| SWHIDPRMT | P & R S Whidbey GEN | 0.2053334452 | $2,217,578 | $2,217,578 | $455.34 | | |
| | Total Tax Rate: | 6.6934522006 | | | | | |
| | | | | Taxes w/Current Exemptions: | $14,843.23 | | |
| | | | | Taxes w/o Exemptions: | $14,843.23 | | |
Improvement / Building
| Improvement #1: | RESIDENTIAL | State Code: | Y | 5567.0 sqft | Value: | $717,578 |
| Bathrooms: | 2.5 | Bedrooms: | 3 | | Ceiling: | DRYWALL PAINTED | Cooling: | HEAT PUMP/CONV/V | | Exterior Wall/Cover: | SHINGLE | Floor Covering: | VINYL/HARDWOOD 60-40 | | Floor Structure: | WOOD W/SUBFLOOR | Foundation: | CONCRETE | | Interior Finish: | DRYWALL PAINT | Plumbing Fixture Cnt: | 15 | | Roof Slope: | 4" IN 12" | Roof Structure/Cover: | CJ ASPHALT |
|
| | Type | Description | Class CD | Sub Class CD | Year Built | Area |
| | BAS | BASE/MAIN FLOOR | 4 | 0 | 1915 | 2936.5 |
| | OCP | OPEN CARPORT | 4 | 0 | 1915 | 499.5 |
| | OP4 | OPEN PORCH W/CEILING-ROOF | 4 | 0 | 1915 | 48.0 |
| | UTY | STORAGE/UTILITY | 4 | 0 | 1915 | 288.0 |
| | OWP | OPEN WOOD PORCH W/STEPS | 4 | 0 | 1915 | 674.0 |
| | OWR | OPEN WOOD PORCH W/STEPS/ROOF | 4 | 0 | 1915 | 84.5 |
| | DWN | DOWNSTAIRS LIVING AREA | 4 | 0 | 1915 | 2630.5 |
| | DGR | DETACHED GARAGE | 4 | 0 | 1915 | 576.0 |
| | CPD | OPEN CARPORT DIRT FLOOR | 4 | 0 | 1915 | 288.0 |
| | UTY | STORAGE/UTILITY | 4 | 0 | 1915 | 592.0 |
Sketch
Property Image
Land
| 1 | LB | LOW BANK | 0.1033 | 0.00 | 45.00 | 0.00 | 1.00 | $1,500,000 | $0 |
Roll Value History
| 2026 | N/A | N/A | N/A | N/A | N/A |
| 2025 | $717,578 | $1,500,000 | $0 | $2,217,578 | $2,217,578 |
| 2024 | $727,115 | $1,640,000 | $0 | $2,367,115 | $2,367,115 |
| 2023 | $708,789 | $1,730,000 | $0 | $2,438,789 | $2,438,789 |
| 2022 | $650,109 | $1,650,000 | $0 | $2,300,109 | $2,300,109 |
| 2021 | $627,169 | $1,500,000 | $0 | $2,127,169 | $2,127,169 |
| 2020 | $633,837 | $1,500,000 | $0 | $2,133,837 | $2,133,837 |
| 2019 | $494,789 | $1,500,000 | $0 | $1,994,789 | $1,994,789 |
| 2018 | $496,313 | $1,500,000 | $0 | $1,996,313 | $1,996,313 |
| 2017 | $488,325 | $1,500,000 | $0 | $1,988,325 | $1,988,325 |
| 2016 | $494,232 | $1,500,000 | $0 | $1,994,232 | $1,994,232 |
| 2015 | $500,140 | $1,500,000 | $0 | $2,000,140 | $2,000,140 |
| 2014 | $393,826 | $1,500,000 | $0 | $1,893,826 | $1,893,826 |
| 2013 | $399,168 | $1,216,510 | $0 | $1,615,678 | $1,615,678 |
| 2012 | $404,510 | $1,216,510 | $0 | $1,621,020 | $1,621,020 |
| 2011 | $409,852 | $1,216,510 | $0 | $1,626,362 | $1,626,362 |
| 2010 | $445,545 | $1,568,484 | $0 | $2,014,029 | $2,014,029 |
| 2009 | $464,478 | $2,195,878 | $0 | $2,660,356 | $2,660,356 |
| 2008 | $429,530 | $2,195,878 | $0 | $2,625,408 | $2,625,408 |
| 2007 | $430,330 | $1,581,555 | $0 | $2,011,885 | $2,011,885 |
Deed and Sales History
| 1 | 09/28/2020 | WD | Warranty Deed | RADFORD TRUSTEE, VANESSA LUTEY | HEAVEY, PATRICIA | | | $1,850,000.00 | 45015 | 4498175 |
| 2 | 09/12/2011 | WD | Warranty Deed | NORTHERN TRUST NA TRUSTEE | RADFORD TRUSTEE, VANESSA LUTEY | | | $0.00 | 5860 | 4302993 |
| 3 | 10/14/2010 | WD | Warranty Deed | RADFORD, VANESSA LUTEY | NORTHERN TRUST NA TRUSTEE | | | $0.00 | 2674 | 4283515 |
| 4 | 12/28/1999 | ESTSEPPROP | Establish Separate Property | RADFORD, VANESSA LUTEY | RADFORD, VANESSA LUTEY | | | $0.00 | 95326 | 99029359 |
| 5 | 12/20/1999 | WD | Warranty Deed | WILLIS, NELLE STURKEY | RADFORD, VANESSA LUTEY | | | $788,000.00 | 95325 | 99029360 |
| 6 | 04/06/1999 | PRD | Personal Representatives Deed | WILLIS, AVERY W | WILLIS, NELLE STURKEY | | | $0.00 | 91352 | 99008954 |
| 7 | 10/01/1970 | OTHER | Other - Misc. Documents | Unknown | WILLIS, AVERY W | | | $0.00 | 58454 | 2353060 |
Payout Agreement
| No payout information available.. |