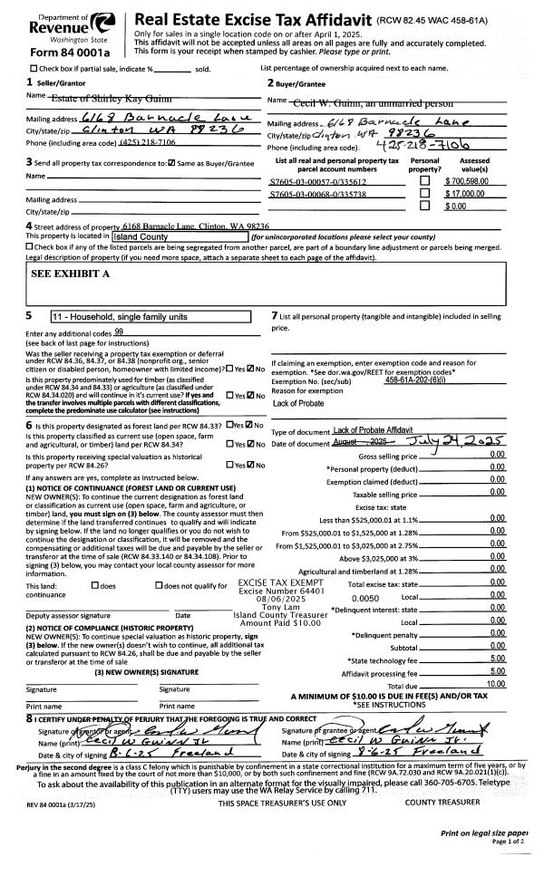
Property
Account |
| Property ID: | 399474 | Abbreviated Legal Description: | SUNLIGHT SH 1 LOT 1 BLK 1 |
| Geographic ID: | S8225-00-01001-0 | Agent Code: | |
| Type: | Real | | |
| Tax Area: | 710 - APPRAISER-S Whid Schl Dist, outside Langley, improved & 1 acre or less | Land Use Code | 11 |
| Open Space: | N | DFL | N |
| Historic Property: | N | Remodel Property: | N |
| Multi-Family Redevelopment: | N | | |
| Township: | | Section: | |
| Range: | |
Location |
| Address: | 2774 EVENING GLORY CT CLINTON, WA 98236 | Mapsco: | |
| Neighborhood: | Cycle 4 | Map ID: | 788 |
| Neighborhood CD: | 4 |
Owner |
| Name: | STELIZA, LLC | Owner ID: | 315294 |
| Mailing Address: | 8307 NE 166TH ST KENMORE, WA 98028 | % Ownership: | 100.0000000000% |
| | | Exemptions: | |
Taxes and Assessment Details
Values
| (+) Improvement Homesite Value: | + | $0 | |
| (+) Improvement Non-Homesite Value: | + | $143,072 | |
| (+) Land Homesite Value: | + | $0 | |
| (+) Land Non-Homesite Value: | + | $250,000 | |
| (+) Curr Use (HS): | + | $0 | $0 |
| (+) Curr Use (NHS): | + | $0 | $0 |
| | | -------------------------- | |
| (=) Market Value: | = | $393,072 | |
| (–) Productivity Loss: | – | $0 | |
| | | -------------------------- | |
| (=) Subtotal: | = | $393,072 | |
| (+) Senior Appraised Value: | + | $0 | |
| (+) Non-Senior Appraised Value: | + | $393,072 | |
| | | -------------------------- | |
| (=) Total Appraised Value: | = | $393,072 | |
| (–) Senior Exemption Loss: | – | $0 | |
| (–) Exemption Loss: | – | $0 | |
| | | -------------------------- | |
| (=) Taxable Value: | = | $393,072 | |
Taxing Jurisdiction
| Owner: | STELIZA, LLC | | |
| % Ownership: | 100.0000000000% | | |
| Total Value: | $393,072 | | |
| Tax Area: | 710 - APPRAISER-S Whid Schl Dist, outside Langley, improved & 1 acre or less |
| CF | Conservation Futures | 0.0316035091 | $393,072 | $393,072 | $12.42 | | |
| FIRE3 | Fire & Rescue Dist #3 S Whidbey GEN | 1.2004855531 | $393,072 | $393,072 | $471.88 | | |
| HOBOND | Hospital BOND | 0.1910887512 | $393,072 | $393,072 | $75.11 | | |
| HOGEN | Hospital GEN | 0.3902502903 | $393,072 | $393,072 | $153.40 | | |
| CE | County Current Expense | 0.3708482477 | $393,072 | $393,072 | $145.77 | | |
| CR | County Roads | 0.4584763726 | $393,072 | $393,072 | $180.21 | | |
| ISLANDEMS | Hospital GEN (EMS) | 0.5000000000 | $393,072 | $393,072 | $196.54 | | |
| LIB | Library Sno-Isle GEN | 0.3153421757 | $393,072 | $393,072 | $123.95 | | |
| PORTWHID | Port of S Whidbey GEN | 0.1094540357 | $393,072 | $393,072 | $43.02 | | |
| SCH206BOND | School 206 BOND | 0.3161759235 | $393,072 | $393,072 | $124.28 | | |
| SCH206MO | School 206 Enrichment | 0.4547169547 | $393,072 | $393,072 | $178.74 | | |
| ST | State School | 1.3035497053 | $393,072 | $393,072 | $512.39 | | |
| ST2 | State School Part 2 | 0.8169543533 | $393,072 | $393,072 | $321.12 | | |
| SWHIDPRBD | P & R S Whidbey BOND | 0.0152817568 | $393,072 | $393,072 | $6.01 | | |
| SWHIDPRBD2 | P & R S Whidbey BOND2 | 0.0138911264 | $393,072 | $393,072 | $5.46 | | |
| SWHIDPRMT | P & R S Whidbey GEN | 0.2053334452 | $393,072 | $393,072 | $80.71 | | |
| | Total Tax Rate: | 6.6934522006 | | | | | |
| | | | | Taxes w/Current Exemptions: | $2,631.01 | | |
| | | | | Taxes w/o Exemptions: | $2,631.01 | | |
Improvement / Building
| Improvement #1: | RESIDENTIAL | State Code: | Y | 1250.0 sqft | Value: | $143,072 |
| Bathrooms: | 1 | Bedrooms: | 2 | | Ceiling: | TONGUE & GROOVE | Exterior Wall/Cover: | WOOD SIDING | | Floor Covering: | CARPET/VINYL 60-40 | Floor Structure: | WOOD W/SUBFLOOR | | Foundation: | CONCRETE | Heating: | BASEBOARD ELECTRIC | | Interior Finish: | PLASTER | Plumbing Fixture Cnt: | 6 | | Roof Slope: | 6" IN 12" | Roof Structure/Cover: | CJ ASPHALT |
|
| | Type | Description | Class CD | Sub Class CD | Year Built | Area |
| | BAS | BASE/MAIN FLOOR | 3 | 0 | 1954 | 1250.0 |
| | AGR | ATTACHED GARAGE | 3 | 0 | 1954 | 380.0 |
| | OWP | OPEN WOOD PORCH W/STEPS | 3 | 0 | 1954 | 309.0 |
Sketch
Property Image
Land
| 1 | 14 | SQ (08001-12000) | 0.0000 | 0.00 | 0.00 | 0.00 | 1.00 | $250,000 | $0 |
Roll Value History
| 2026 | N/A | N/A | N/A | N/A | N/A |
| 2025 | $143,072 | $250,000 | $0 | $393,072 | $393,072 |
Deed and Sales History
| 1 | 01/24/2025 | PRD | Personal Representatives Deed | STELLA M PLUMMER, PR | STELIZA, LLC | | | $0.00 | 62450 | 4581787 |
| 2 | 11/01/1993 | QCD | Quit Claim Deed | SURFACE, WILFRED R | SURFACE, WILFRED R | | | $0.00 | 34570 | 93023860 |
| 3 | 09/01/1993 | OTHER | Other - Misc. Documents | SURFACE, WILFRED R | SURFACE, WILFRED R | | | $0.00 | 65560 | 85007706 |
| 4 | 06/01/1985 | WD | Warranty Deed | WHITEHEAD, E., E | SURFACE, WILFRED R | | | $40,000.00 | 51891 | 85007307 |
| 5 | 04/01/1985 | QCD | Quit Claim Deed | WHITEHEAD, E | WHITEHEAD, E., E | | | $0.00 | 51268 | 85005230 |
| 6 | 04/01/1979 | OTHER | Other - Misc. Documents | Unknown | WHITEHEAD, E | | | $46,000.00 | 91941 | 351499 |
Payout Agreement
| No payout information available.. |