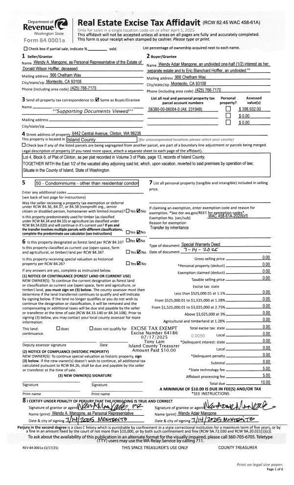
Property
Account |
| Property ID: | 399526 | Abbreviated Legal Description: | SUNLIGHT SH 1 LOT 6 BLK 1 |
| Geographic ID: | S8225-00-01006-0 | Agent Code: | |
| Type: | Real | | |
| Tax Area: | 710 - APPRAISER-S Whid Schl Dist, outside Langley, improved & 1 acre or less | Land Use Code | 11 |
| Open Space: | N | DFL | N |
| Historic Property: | N | Remodel Property: | N |
| Multi-Family Redevelopment: | N | | |
| Township: | | Section: | |
| Range: | |
Location |
| Address: | 2748 EVENING GLORY CT CLINTON, WA 98236 | Mapsco: | |
| Neighborhood: | Cycle 4 | Map ID: | 788 |
| Neighborhood CD: | 4 |
Owner |
| Name: | SURFACE, LUCRECIA | Owner ID: | 315641 |
| Mailing Address: | STELLA M. PLUMMER ELIZA M. COPPS 14625 53RD AVE SE EVERETT, WA 98208-8958 | % Ownership: | 100.0000000000% |
| | | Exemptions: | |
Taxes and Assessment Details
Values
| (+) Improvement Homesite Value: | + | $0 | |
| (+) Improvement Non-Homesite Value: | + | $192,691 | |
| (+) Land Homesite Value: | + | $0 | |
| (+) Land Non-Homesite Value: | + | $330,000 | |
| (+) Curr Use (HS): | + | $0 | $0 |
| (+) Curr Use (NHS): | + | $0 | $0 |
| | | -------------------------- | |
| (=) Market Value: | = | $522,691 | |
| (–) Productivity Loss: | – | $0 | |
| | | -------------------------- | |
| (=) Subtotal: | = | $522,691 | |
| (+) Senior Appraised Value: | + | $0 | |
| (+) Non-Senior Appraised Value: | + | $522,691 | |
| | | -------------------------- | |
| (=) Total Appraised Value: | = | $522,691 | |
| (–) Senior Exemption Loss: | – | $0 | |
| (–) Exemption Loss: | – | $0 | |
| | | -------------------------- | |
| (=) Taxable Value: | = | $522,691 | |
Taxing Jurisdiction
| Owner: | SURFACE, LUCRECIA | | |
| % Ownership: | 100.0000000000% | | |
| Total Value: | $522,691 | | |
| Tax Area: | 710 - APPRAISER-S Whid Schl Dist, outside Langley, improved & 1 acre or less |
| CF | Conservation Futures | 0.0316035091 | $522,691 | $522,691 | $16.52 | | |
| FIRE3 | Fire & Rescue Dist #3 S Whidbey GEN | 1.2004855531 | $522,691 | $522,691 | $627.48 | | |
| HOBOND | Hospital BOND | 0.1910887512 | $522,691 | $522,691 | $99.88 | | |
| HOGEN | Hospital GEN | 0.3902502903 | $522,691 | $522,691 | $203.98 | | |
| CE | County Current Expense | 0.3708482477 | $522,691 | $522,691 | $193.84 | | |
| CR | County Roads | 0.4584763726 | $522,691 | $522,691 | $239.64 | | |
| ISLANDEMS | Hospital GEN (EMS) | 0.5000000000 | $522,691 | $522,691 | $261.35 | | |
| LIB | Library Sno-Isle GEN | 0.3153421757 | $522,691 | $522,691 | $164.83 | | |
| PORTWHID | Port of S Whidbey GEN | 0.1094540357 | $522,691 | $522,691 | $57.21 | | |
| SCH206BOND | School 206 BOND | 0.3161759235 | $522,691 | $522,691 | $165.26 | | |
| SCH206MO | School 206 Enrichment | 0.4547169547 | $522,691 | $522,691 | $237.68 | | |
| ST | State School | 1.3035497053 | $522,691 | $522,691 | $681.35 | | |
| ST2 | State School Part 2 | 0.8169543533 | $522,691 | $522,691 | $427.01 | | |
| SWHIDPRBD | P & R S Whidbey BOND | 0.0152817568 | $522,691 | $522,691 | $7.99 | | |
| SWHIDPRBD2 | P & R S Whidbey BOND2 | 0.0138911264 | $522,691 | $522,691 | $7.26 | | |
| SWHIDPRMT | P & R S Whidbey GEN | 0.2053334452 | $522,691 | $522,691 | $107.33 | | |
| | Total Tax Rate: | 6.6934522006 | | | | | |
| | | | | Taxes w/Current Exemptions: | $3,498.61 | | |
| | | | | Taxes w/o Exemptions: | $3,498.61 | | |
Improvement / Building
| Improvement #1: | RESIDENTIAL | State Code: | Y | 2132.0 sqft | Value: | $192,691 |
| Bathrooms: | 1.5 | Bedrooms: | 3 | | Ceiling: | DRYWALL PAINTED | Exterior Wall/Cover: | WOOD SIDING | | Floor Covering: | CARPET/VINYL 80-20 | Floor Structure: | WOOD W/SUBFLOOR | | Foundation: | CONCRETE | Interior Finish: | DRYWALL PAINT | | Plumbing Fixture Cnt: | 8 | Roof Slope: | 3" IN 12" | | Roof Structure/Cover: | BEAM BUILT-UP ROCK |   |   |
|
| | Type | Description | Class CD | Sub Class CD | Year Built | Area |
| | BAS | BASE/MAIN FLOOR | 3 | 0 | 1968 | 1241.0 |
| | AGR | ATTACHED GARAGE | 3 | 0 | 1968 | 196.0 |
| | BIG | BUILT IN GARAGE | 3 | 0 | 1968 | 350.0 |
| | OWP | OPEN WOOD PORCH W/STEPS | 3 | 0 | 1968 | 518.0 |
| | DWN | DOWNSTAIRS LIVING AREA | 3 | 0 | 1968 | 891.0 |
Sketch
| No sketches available for this property. |
Property Image
Land
| 1 | 14 | SQ (08001-12000) | 0.0000 | 0.00 | 0.00 | 0.00 | 1.00 | $330,000 | $0 |
Roll Value History
| 2026 | N/A | N/A | N/A | N/A | N/A |
| 2025 | $192,691 | $330,000 | $0 | $522,691 | $522,691 |
| 2024 | $196,056 | $310,000 | $0 | $506,056 | $506,056 |
Deed and Sales History
| 1 | 01/24/2025 | PRD | Personal Representatives Deed | ESTATE OF WILFRED R. SURFACE | SURFACE, LUCRECIA | | | $0.00 | 62433 | 4581759 |
| 2 | 09/28/1973 | WD | Warranty Deed | MULLAVEY, JOHN | SURFACE, WILFRED | | | | 0 | 266450 |
Payout Agreement
| No payout information available.. |