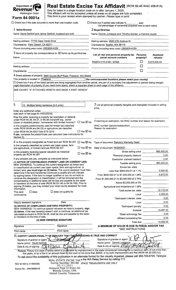
Property
Account |
| Property ID: | 399633 | Abbreviated Legal Description: | SUNLIGHT SH 1 LOT 3 BLK 2 EX RD 124D550 |
| Geographic ID: | S8225-00-02003-0 | Agent Code: | |
| Type: | Real | | |
| Tax Area: | 710 - APPRAISER-S Whid Schl Dist, outside Langley, improved & 1 acre or less | Land Use Code | 11 |
| Open Space: | N | DFL | N |
| Historic Property: | N | Remodel Property: | N |
| Multi-Family Redevelopment: | N | | |
| Township: | | Section: | |
| Range: | |
Location |
| Address: | 2791 EVENING GLORY CT CLINTON, WA 98236 | Mapsco: | |
| Neighborhood: | Cycle 4 | Map ID: | 788 |
| Neighborhood CD: | 4 |
Owner |
| Name: | ADADOW, RICHARD MILLAR | Owner ID: | 293928 |
| Mailing Address: | 2791 EVENING GLORY CT CLINTON, WA 98236 | % Ownership: | 100.0000000000% |
| | | Exemptions: | |
Taxes and Assessment Details
Values
| (+) Improvement Homesite Value: | + | $0 | |
| (+) Improvement Non-Homesite Value: | + | $220,665 | |
| (+) Land Homesite Value: | + | $0 | |
| (+) Land Non-Homesite Value: | + | $250,000 | |
| (+) Curr Use (HS): | + | $0 | $0 |
| (+) Curr Use (NHS): | + | $0 | $0 |
| | | -------------------------- | |
| (=) Market Value: | = | $470,665 | |
| (–) Productivity Loss: | – | $0 | |
| | | -------------------------- | |
| (=) Subtotal: | = | $470,665 | |
| (+) Senior Appraised Value: | + | $0 | |
| (+) Non-Senior Appraised Value: | + | $470,665 | |
| | | -------------------------- | |
| (=) Total Appraised Value: | = | $470,665 | |
| (–) Senior Exemption Loss: | – | $0 | |
| (–) Exemption Loss: | – | $0 | |
| | | -------------------------- | |
| (=) Taxable Value: | = | $470,665 | |
Taxing Jurisdiction
| Owner: | ADADOW, RICHARD MILLAR | | |
| % Ownership: | 100.0000000000% | | |
| Total Value: | $470,665 | | |
| Tax Area: | 710 - APPRAISER-S Whid Schl Dist, outside Langley, improved & 1 acre or less |
| CF | Conservation Futures | 0.0316035091 | $470,665 | $470,665 | $14.87 | | |
| FIRE3 | Fire & Rescue Dist #3 S Whidbey GEN | 1.2004855531 | $470,665 | $470,665 | $565.03 | | |
| HOBOND | Hospital BOND | 0.1910887512 | $470,665 | $470,665 | $89.94 | | |
| HOGEN | Hospital GEN | 0.3902502903 | $470,665 | $470,665 | $183.68 | | |
| CE | County Current Expense | 0.3708482477 | $470,665 | $470,665 | $174.55 | | |
| CR | County Roads | 0.4584763726 | $470,665 | $470,665 | $215.79 | | |
| ISLANDEMS | Hospital GEN (EMS) | 0.5000000000 | $470,665 | $470,665 | $235.33 | | |
| LIB | Library Sno-Isle GEN | 0.3153421757 | $470,665 | $470,665 | $148.42 | | |
| PORTWHID | Port of S Whidbey GEN | 0.1094540357 | $470,665 | $470,665 | $51.52 | | |
| SCH206BOND | School 206 BOND | 0.3161759235 | $470,665 | $470,665 | $148.81 | | |
| SCH206MO | School 206 Enrichment | 0.4547169547 | $470,665 | $470,665 | $214.02 | | |
| ST | State School | 1.3035497053 | $470,665 | $470,665 | $613.54 | | |
| ST2 | State School Part 2 | 0.8169543533 | $470,665 | $470,665 | $384.51 | | |
| SWHIDPRBD | P & R S Whidbey BOND | 0.0152817568 | $470,665 | $470,665 | $7.19 | | |
| SWHIDPRBD2 | P & R S Whidbey BOND2 | 0.0138911264 | $470,665 | $470,665 | $6.54 | | |
| SWHIDPRMT | P & R S Whidbey GEN | 0.2053334452 | $470,665 | $470,665 | $96.64 | | |
| | Total Tax Rate: | 6.6934522006 | | | | | |
| | | | | Taxes w/Current Exemptions: | $3,150.38 | | |
| | | | | Taxes w/o Exemptions: | $3,150.38 | | |
Improvement / Building
| Improvement #1: | RESIDENTIAL | State Code: | Y | 1368.0 sqft | Value: | $220,665 |
| Bathrooms: | 2 | Bedrooms: | 2 | | Ceiling: | DRYWALL PAINTED | Cooling: | HEAT PUMP/CONV/V | | Exterior Wall/Cover: | WOOD SIDING | Floor Covering: | VINYL TILE/CARP 20-80 | | Floor Structure: | WOOD W/SUBFLOOR | Foundation: | CONCRETE | | Interior Finish: | DRYWALL PAINT | Plumbing Fixture Cnt: | 9 | | Roof Slope: | 5" IN 12" | Roof Structure/Cover: | CJ ALUMINIUM HEAVY |
|
| | Type | Description | Class CD | Sub Class CD | Year Built | Area |
| | BAS | BASE/MAIN FLOOR | 3 | 0 | 1989 | 1032.0 |
| | BGR | BASEMENT GARAGE | 3 | 0 | 1989 | 384.0 |
| | OWP | OPEN WOOD PORCH W/STEPS | 3 | 0 | 1989 | 277.0 |
| | DWN | DOWNSTAIRS LIVING AREA | 3 | 0 | 1989 | 336.0 |
Sketch
Property Image
Land
| 1 | 14 | SQ (08001-12000) | 0.0000 | 0.00 | 0.00 | 0.00 | 1.00 | $250,000 | $0 |
Roll Value History
| 2026 | N/A | N/A | N/A | N/A | N/A |
| 2025 | $220,665 | $250,000 | $0 | $470,665 | $470,665 |
| 2024 | $223,762 | $240,000 | $0 | $463,762 | $463,762 |
| 2023 | $218,856 | $210,000 | $0 | $428,856 | $428,856 |
| 2022 | $200,883 | $210,000 | $0 | $410,883 | $410,883 |
| 2021 | $177,033 | $150,000 | $0 | $327,033 | $327,033 |
| 2020 | $168,107 | $180,000 | $0 | $348,107 | $348,107 |
| 2019 | $121,477 | $200,000 | $0 | $321,477 | $321,477 |
| 2018 | $121,880 | $130,000 | $0 | $251,880 | $251,880 |
| 2017 | $122,688 | $120,000 | $0 | $242,688 | $242,688 |
| 2016 | $124,301 | $100,000 | $0 | $224,301 | $224,301 |
| 2015 | $125,916 | $85,000 | $0 | $210,916 | $210,916 |
| 2014 | $119,640 | $85,000 | $0 | $204,640 | $204,640 |
| 2013 | $121,257 | $85,000 | $0 | $206,257 | $206,257 |
| 2012 | $122,873 | $89,250 | $0 | $212,123 | $212,123 |
| 2011 | $124,489 | $105,000 | $0 | $229,489 | $229,489 |
| 2010 | $130,299 | $105,000 | $0 | $235,299 | $235,299 |
| 2009 | $135,961 | $125,000 | $0 | $260,961 | $260,961 |
| 2008 | $130,889 | $139,500 | $0 | $270,389 | $270,389 |
| 2007 | $132,461 | $110,000 | $0 | $242,461 | $242,461 |
Deed and Sales History
| 1 | 04/07/2020 | WD | Warranty Deed | GOLDTHORP TRUSTEE, RODNEY CLARK | ADADOW, RICHARD MILLAR | | | $328,000.00 | 42603 | 4484454 |
| 2 | 05/02/2017 | QCD | Quit Claim Deed | GOLDTHORP, RODNEY C | GOLDTHORP TRUSTEE, RODNEY CLARK | | | $0.00 | 29301 | 4422580 |
| 3 | 02/01/1988 | WD | Warranty Deed | TORFIN, VERNA L | GOLDTHORP, RODNEY C | | | $8,500.00 | 80400 | 88001684 |
| 4 | 01/01/1983 | QCD | Quit Claim Deed | TORFIN, VERNA L | TORFIN, VERNA L | | | $0.00 | 30055 | 404561 |
| 5 | 11/01/1982 | OTHER | Other - Misc. Documents | SHENAMAN, VERNA | TORFIN, VERNA L | | | $0.00 | 59717 | 0 |
| 6 | 08/01/1981 | CD | DNU - Correction Deed | CRAIG, GLORIA | SHENAMAN, VERNA | | | $1.00 | 12989 | 0 |
| 7 | 08/01/1980 | TRUSTEED | Trustee's Deed | GOLDTHORP, GAIL M | CRAIG, GLORIA | | | $12,694.00 | 2632 | 372115 |
| 8 | 07/01/1978 | OTHER | Other - Misc. Documents | Unknown | GOLDTHORP, GAIL M | | | $7,000.00 | 82894 | 334854 |
Payout Agreement
| No payout information available.. |