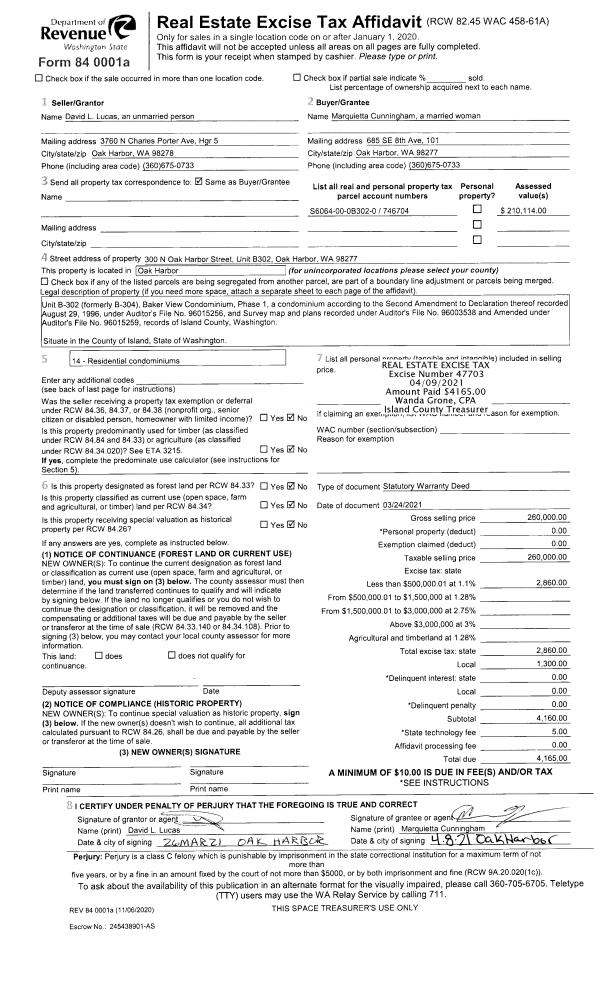
Property
Account |
| Property ID: | 399651 | Abbreviated Legal Description: | SUNLIGHT SH 1 LOT 5 BLK 2 |
| Geographic ID: | S8225-00-02005-0 | Agent Code: | |
| Type: | Real | | |
| Tax Area: | 710 - APPRAISER-S Whid Schl Dist, outside Langley, improved & 1 acre or less | Land Use Code | 11 |
| Open Space: | N | DFL | N |
| Historic Property: | N | Remodel Property: | N |
| Multi-Family Redevelopment: | N | | |
| Township: | | Section: | |
| Range: | |
Location |
| Address: | 2781 EVENING GLORY CT CLINTON, WA 98236 | Mapsco: | |
| Neighborhood: | Cycle 4 | Map ID: | 788 |
| Neighborhood CD: | 4 |
Owner |
| Name: | WORSTER, FRANK E | Owner ID: | 101345 |
| Mailing Address: | DEBORAH W DIX 2781 EVENING GLORY CT CLINTON, WA 98236-9114 | % Ownership: | 100.0000000000% |
| | | Exemptions: | |
Taxes and Assessment Details
Values
| (+) Improvement Homesite Value: | + | $0 | |
| (+) Improvement Non-Homesite Value: | + | $356,682 | |
| (+) Land Homesite Value: | + | $0 | |
| (+) Land Non-Homesite Value: | + | $330,000 | |
| (+) Curr Use (HS): | + | $0 | $0 |
| (+) Curr Use (NHS): | + | $0 | $0 |
| | | -------------------------- | |
| (=) Market Value: | = | $686,682 | |
| (–) Productivity Loss: | – | $0 | |
| | | -------------------------- | |
| (=) Subtotal: | = | $686,682 | |
| (+) Senior Appraised Value: | + | $0 | |
| (+) Non-Senior Appraised Value: | + | $686,682 | |
| | | -------------------------- | |
| (=) Total Appraised Value: | = | $686,682 | |
| (–) Senior Exemption Loss: | – | $0 | |
| (–) Exemption Loss: | – | $0 | |
| | | -------------------------- | |
| (=) Taxable Value: | = | $686,682 | |
Taxing Jurisdiction
| Owner: | WORSTER, FRANK E | | |
| % Ownership: | 100.0000000000% | | |
| Total Value: | $686,682 | | |
| Tax Area: | 710 - APPRAISER-S Whid Schl Dist, outside Langley, improved & 1 acre or less |
| CF | Conservation Futures | 0.0316035091 | $686,682 | $686,682 | $21.70 | | |
| FIRE3 | Fire & Rescue Dist #3 S Whidbey GEN | 1.2004855531 | $686,682 | $686,682 | $824.35 | | |
| HOBOND | Hospital BOND | 0.1910887512 | $686,682 | $686,682 | $131.22 | | |
| HOGEN | Hospital GEN | 0.3902502903 | $686,682 | $686,682 | $267.98 | | |
| CE | County Current Expense | 0.3708482477 | $686,682 | $686,682 | $254.65 | | |
| CR | County Roads | 0.4584763726 | $686,682 | $686,682 | $314.83 | | |
| ISLANDEMS | Hospital GEN (EMS) | 0.5000000000 | $686,682 | $686,682 | $343.34 | | |
| LIB | Library Sno-Isle GEN | 0.3153421757 | $686,682 | $686,682 | $216.54 | | |
| PORTWHID | Port of S Whidbey GEN | 0.1094540357 | $686,682 | $686,682 | $75.16 | | |
| SCH206BOND | School 206 BOND | 0.3161759235 | $686,682 | $686,682 | $217.11 | | |
| SCH206MO | School 206 Enrichment | 0.4547169547 | $686,682 | $686,682 | $312.25 | | |
| ST | State School | 1.3035497053 | $686,682 | $686,682 | $895.12 | | |
| ST2 | State School Part 2 | 0.8169543533 | $686,682 | $686,682 | $560.99 | | |
| SWHIDPRBD | P & R S Whidbey BOND | 0.0152817568 | $686,682 | $686,682 | $10.49 | | |
| SWHIDPRBD2 | P & R S Whidbey BOND2 | 0.0138911264 | $686,682 | $686,682 | $9.54 | | |
| SWHIDPRMT | P & R S Whidbey GEN | 0.2053334452 | $686,682 | $686,682 | $141.00 | | |
| | Total Tax Rate: | 6.6934522006 | | | | | |
| | | | | Taxes w/Current Exemptions: | $4,596.27 | | |
| | | | | Taxes w/o Exemptions: | $4,596.27 | | |
Improvement / Building
| Improvement #1: | RESIDENTIAL | State Code: | Y | 2278.0 sqft | Value: | $356,682 |
| Bathrooms: | 3 | Bedrooms: | 2 | | Ceiling: | DRYWALL PAINTED | Cooling: | HEAT PUMP/CONV/V | | Exterior Wall/Cover: | WOOD SIDING | Floor Covering: | HARDWOOD/CARP 60-40 | | Floor Structure: | WOOD W/SUBFLOOR | Foundation: | CONCRETE | | Interior Finish: | DRYWALL PAINT | Plumbing Fixture Cnt: | 12 | | Roof Slope: | 6" IN 12" | Roof Structure/Cover: | CJ ALUMINIUM HEAVY |
|
| | Type | Description | Class CD | Sub Class CD | Year Built | Area |
| | BAS | BASE/MAIN FLOOR | 3 | 0 | 1991 | 1588.0 |
| | BIG | BUILT IN GARAGE | 3 | 0 | 1991 | 810.0 |
| | OWP | OPEN WOOD PORCH W/STEPS | 3 | 0 | 1991 | 647.8 |
| | DWN | DOWNSTAIRS LIVING AREA | 3 | 0 | 1991 | 690.0 |
Sketch
Property Image
Land
| 1 | 14 | SQ (08001-12000) | 0.3400 | 14810.40 | 0.00 | 0.00 | 1.00 | $330,000 | $0 |
Roll Value History
| 2026 | N/A | N/A | N/A | N/A | N/A |
| 2025 | $356,682 | $330,000 | $0 | $686,682 | $686,682 |
| 2024 | $361,127 | $310,000 | $0 | $671,127 | $671,127 |
| 2023 | $365,571 | $300,000 | $0 | $665,571 | $665,571 |
| 2022 | $335,053 | $280,000 | $0 | $615,053 | $615,053 |
| 2021 | $294,856 | $210,000 | $0 | $504,856 | $504,856 |
| 2020 | $284,355 | $180,000 | $0 | $464,355 | $464,355 |
| 2019 | $219,303 | $200,000 | $0 | $419,303 | $419,303 |
| 2018 | $219,947 | $130,000 | $0 | $349,947 | $349,947 |
| 2017 | $220,257 | $120,000 | $0 | $340,257 | $340,257 |
| 2016 | $195,843 | $100,000 | $0 | $295,843 | $295,843 |
| 2015 | $198,260 | $85,000 | $0 | $283,260 | $283,260 |
| 2014 | $194,732 | $85,000 | $0 | $279,732 | $279,732 |
| 2013 | $197,228 | $106,250 | $0 | $303,478 | $303,478 |
| 2012 | $199,725 | $106,250 | $0 | $305,975 | $305,975 |
| 2011 | $202,223 | $125,000 | $0 | $327,223 | $327,223 |
| 2010 | $212,937 | $125,000 | $0 | $337,937 | $337,937 |
| 2009 | $222,323 | $150,000 | $0 | $372,323 | $372,323 |
| 2008 | $225,330 | $150,000 | $0 | $375,330 | $375,330 |
| 2007 | $228,341 | $110,000 | $0 | $338,341 | $338,341 |
Deed and Sales History
| 1 | 07/01/1995 | WD | Warranty Deed | SANDYS, PAUL L | WORSTER, FRANK E | | | $178,950.00 | 52553 | 95011760 |
| 2 | 12/01/1991 | WD | Warranty Deed | SANDYS, PAUL L | SANDYS, PAUL L | | | $155,000.00 | 14355 | 91019002 |
| 3 | 12/01/1991 | WD | Warranty Deed | SMITH, JAMES S | SANDYS, PAUL L | | | $0.00 | 14397 | 91019228 |
| 4 | 01/01/1991 | QCD | Quit Claim Deed | RICHARDS, SIDNEY B | SMITH, JAMES S | | | $0.00 | 10151 | 91000775 |
| 5 | 03/01/1979 | OTHER | Other - Misc. Documents | Unknown | RICHARDS, SIDNEY B | | | $9,500.00 | 91052 | 348757 |
Payout Agreement
| No payout information available.. |