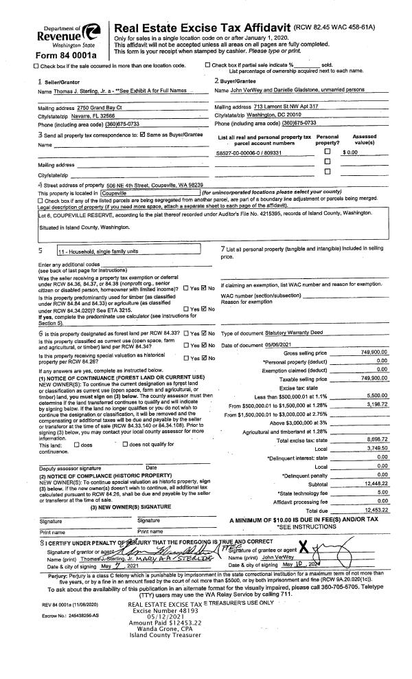
Property
Account |
| Property ID: | 399697 | Abbreviated Legal Description: | SUNLIGHT SH 1 LOT 9 BLK 2 |
| Geographic ID: | S8225-00-02009-0 | Agent Code: | |
| Type: | Real | | |
| Tax Area: | 710 - APPRAISER-S Whid Schl Dist, outside Langley, improved & 1 acre or less | Land Use Code | 11 |
| Open Space: | N | DFL | N |
| Historic Property: | N | Remodel Property: | N |
| Multi-Family Redevelopment: | N | | |
| Township: | | Section: | |
| Range: | |
Location |
| Address: | 2759 EVENING GLORY CT CLINTON, WA 98236 | Mapsco: | |
| Neighborhood: | Cycle 4 | Map ID: | 788 |
| Neighborhood CD: | 4 |
Owner |
| Name: | REMBOLD, ERIC JAMES | Owner ID: | 24333 |
| Mailing Address: | PAMELA KIRK 1011 221ST AVE SE SAMMAMISH, WA 98075-7114 | % Ownership: | 100.0000000000% |
| | | Exemptions: | |
Taxes and Assessment Details
Values
| (+) Improvement Homesite Value: | + | $0 | |
| (+) Improvement Non-Homesite Value: | + | $190,331 | |
| (+) Land Homesite Value: | + | $0 | |
| (+) Land Non-Homesite Value: | + | $330,000 | |
| (+) Curr Use (HS): | + | $0 | $0 |
| (+) Curr Use (NHS): | + | $0 | $0 |
| | | -------------------------- | |
| (=) Market Value: | = | $520,331 | |
| (–) Productivity Loss: | – | $0 | |
| | | -------------------------- | |
| (=) Subtotal: | = | $520,331 | |
| (+) Senior Appraised Value: | + | $0 | |
| (+) Non-Senior Appraised Value: | + | $520,331 | |
| | | -------------------------- | |
| (=) Total Appraised Value: | = | $520,331 | |
| (–) Senior Exemption Loss: | – | $0 | |
| (–) Exemption Loss: | – | $0 | |
| | | -------------------------- | |
| (=) Taxable Value: | = | $520,331 | |
Taxing Jurisdiction
| Owner: | REMBOLD, ERIC JAMES | | |
| % Ownership: | 100.0000000000% | | |
| Total Value: | $520,331 | | |
| Tax Area: | 710 - APPRAISER-S Whid Schl Dist, outside Langley, improved & 1 acre or less |
| CF | Conservation Futures | 0.0316035091 | $520,331 | $520,331 | $16.44 | | |
| FIRE3 | Fire & Rescue Dist #3 S Whidbey GEN | 1.2004855531 | $520,331 | $520,331 | $624.65 | | |
| HOBOND | Hospital BOND | 0.1910887512 | $520,331 | $520,331 | $99.43 | | |
| HOGEN | Hospital GEN | 0.3902502903 | $520,331 | $520,331 | $203.06 | | |
| CE | County Current Expense | 0.3708482477 | $520,331 | $520,331 | $192.96 | | |
| CR | County Roads | 0.4584763726 | $520,331 | $520,331 | $238.56 | | |
| ISLANDEMS | Hospital GEN (EMS) | 0.5000000000 | $520,331 | $520,331 | $260.17 | | |
| LIB | Library Sno-Isle GEN | 0.3153421757 | $520,331 | $520,331 | $164.08 | | |
| PORTWHID | Port of S Whidbey GEN | 0.1094540357 | $520,331 | $520,331 | $56.95 | | |
| SCH206BOND | School 206 BOND | 0.3161759235 | $520,331 | $520,331 | $164.52 | | |
| SCH206MO | School 206 Enrichment | 0.4547169547 | $520,331 | $520,331 | $236.60 | | |
| ST | State School | 1.3035497053 | $520,331 | $520,331 | $678.28 | | |
| ST2 | State School Part 2 | 0.8169543533 | $520,331 | $520,331 | $425.09 | | |
| SWHIDPRBD | P & R S Whidbey BOND | 0.0152817568 | $520,331 | $520,331 | $7.95 | | |
| SWHIDPRBD2 | P & R S Whidbey BOND2 | 0.0138911264 | $520,331 | $520,331 | $7.23 | | |
| SWHIDPRMT | P & R S Whidbey GEN | 0.2053334452 | $520,331 | $520,331 | $106.84 | | |
| | Total Tax Rate: | 6.6934522006 | | | | | |
| | | | | Taxes w/Current Exemptions: | $3,482.81 | | |
| | | | | Taxes w/o Exemptions: | $3,482.81 | | |
Improvement / Building
| Improvement #1: | RESIDENTIAL | State Code: | Y | 1662.0 sqft | Value: | $190,331 |
| Bathrooms: | 1.75 | Bedrooms: | 2 | | Ceiling: | DRYWALL PAINTED | Cooling: | HEAT PUMP/CONV/V | | Exterior Wall/Cover: | PLY/HARDBOARD T-111 | Floor Covering: | CARPET/VINYL 80-20 | | Floor Structure: | WOOD W/SUBFLOOR | Foundation: | CONCRETE | | Interior Finish: | DRYWALL PAINT | Plumbing Fixture Cnt: | 10 | | Roof Slope: | FLAT | Roof Structure/Cover: | BEAM BUILT-UP ROCK |
|
| | Type | Description | Class CD | Sub Class CD | Year Built | Area |
| | BAS | BASE/MAIN FLOOR | 3 | 0 | 1977 | 846.0 |
| | OCP | OPEN CARPORT | 3 | 0 | 1977 | 148.8 |
| | UTY | STORAGE/UTILITY | 3 | 0 | 1977 | 148.8 |
| | OWP | OPEN WOOD PORCH W/STEPS | 3 | 0 | 1977 | 329.2 |
| | DWN | DOWNSTAIRS LIVING AREA | 3 | 0 | 1977 | 816.0 |
| | UTY | STORAGE/UTILITY | 3 | 0 | 1977 | 161.0 |
Sketch
Property Image
Land
| 1 | 14 | SQ (08001-12000) | 0.0000 | 0.00 | 0.00 | 0.00 | 1.00 | $330,000 | $0 |
Roll Value History
| 2026 | N/A | N/A | N/A | N/A | N/A |
| 2025 | $190,331 | $330,000 | $0 | $520,331 | $520,331 |
| 2024 | $193,341 | $310,000 | $0 | $503,341 | $503,341 |
| 2023 | $196,351 | $300,000 | $0 | $496,351 | $496,351 |
| 2022 | $178,310 | $280,000 | $0 | $458,310 | $458,310 |
| 2021 | $157,394 | $210,000 | $0 | $367,394 | $367,394 |
| 2020 | $145,790 | $180,000 | $0 | $325,790 | $325,790 |
| 2019 | $105,788 | $200,000 | $0 | $305,788 | $305,788 |
| 2018 | $106,179 | $130,000 | $0 | $236,179 | $236,179 |
| 2017 | $106,948 | $120,000 | $0 | $226,948 | $226,948 |
| 2016 | $108,519 | $110,000 | $0 | $218,519 | $218,519 |
| 2015 | $110,093 | $100,000 | $0 | $210,093 | $210,093 |
| 2014 | $107,082 | $106,250 | $0 | $213,332 | $213,332 |
| 2013 | $108,694 | $106,250 | $0 | $214,944 | $214,944 |
| 2012 | $110,308 | $106,250 | $0 | $216,558 | $216,558 |
| 2011 | $111,920 | $125,000 | $0 | $236,920 | $236,920 |
| 2010 | $121,506 | $125,000 | $0 | $246,506 | $246,506 |
| 2009 | $127,095 | $150,000 | $0 | $277,095 | $277,095 |
| 2008 | $129,317 | $150,000 | $0 | $279,317 | $279,317 |
| 2007 | $131,579 | $110,000 | $0 | $241,579 | $241,579 |
Deed and Sales History
| 1 | 06/16/2004 | WD | Warranty Deed | WEST, DUANE L | REMBOLD, ERIC JAMES | | | $200,000.00 | 42690 | 4104378 |
| 2 | 01/01/1900 | OTHER | Other - Misc. Documents | Unknown | WEST, DUANE L | | | $0.00 | 0 | 0 |
Payout Agreement
| No payout information available.. |