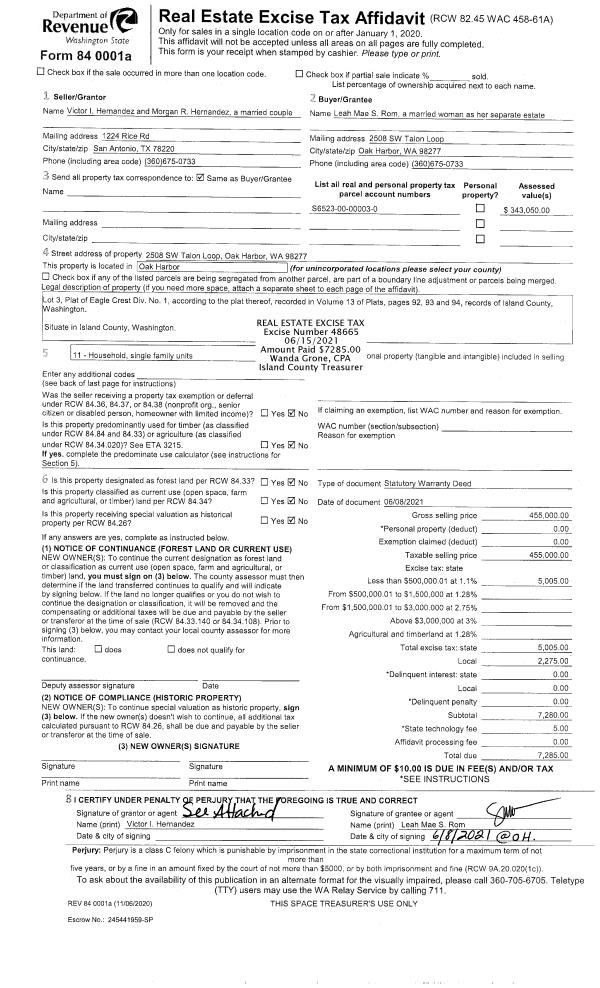
Property
Account |
| Property ID: | 399731 | Abbreviated Legal Description: | SUNLIGHT SH 1 LOTS 13 & 14 BLK 2 LOT 14 |
| Geographic ID: | S8225-00-02013-0 | Agent Code: | |
| Type: | Real | | |
| Tax Area: | 710 - APPRAISER-S Whid Schl Dist, outside Langley, improved & 1 acre or less | Land Use Code | 11 |
| Open Space: | N | DFL | N |
| Historic Property: | N | Remodel Property: | N |
| Multi-Family Redevelopment: | N | | |
| Township: | | Section: | |
| Range: | |
Location |
| Address: | 2745 EVENING GLORY CT CLINTON, WA 98236 | Mapsco: | |
| Neighborhood: | Cycle 4 | Map ID: | 788 |
| Neighborhood CD: | 4 |
Owner |
| Name: | GITHENS, JOHN D | Owner ID: | 315761 |
| Mailing Address: | ANNA LLEWELLYN RHYS 2745 EVENING GLORY CT CLINTON, WA 98236 | % Ownership: | 100.0000000000% |
| | | Exemptions: | |
Taxes and Assessment Details
Values
| (+) Improvement Homesite Value: | + | $0 | |
| (+) Improvement Non-Homesite Value: | + | $373,017 | |
| (+) Land Homesite Value: | + | $0 | |
| (+) Land Non-Homesite Value: | + | $330,000 | |
| (+) Curr Use (HS): | + | $0 | $0 |
| (+) Curr Use (NHS): | + | $0 | $0 |
| | | -------------------------- | |
| (=) Market Value: | = | $703,017 | |
| (–) Productivity Loss: | – | $0 | |
| | | -------------------------- | |
| (=) Subtotal: | = | $703,017 | |
| (+) Senior Appraised Value: | + | $0 | |
| (+) Non-Senior Appraised Value: | + | $703,017 | |
| | | -------------------------- | |
| (=) Total Appraised Value: | = | $703,017 | |
| (–) Senior Exemption Loss: | – | $0 | |
| (–) Exemption Loss: | – | $0 | |
| | | -------------------------- | |
| (=) Taxable Value: | = | $703,017 | |
Taxing Jurisdiction
| Owner: | GITHENS, JOHN D | | |
| % Ownership: | 100.0000000000% | | |
| Total Value: | $703,017 | | |
| Tax Area: | 710 - APPRAISER-S Whid Schl Dist, outside Langley, improved & 1 acre or less |
| CF | Conservation Futures | 0.0316035091 | $703,017 | $703,017 | $22.22 | | |
| FIRE3 | Fire & Rescue Dist #3 S Whidbey GEN | 1.2004855531 | $703,017 | $703,017 | $843.96 | | |
| HOBOND | Hospital BOND | 0.1910887512 | $703,017 | $703,017 | $134.34 | | |
| HOGEN | Hospital GEN | 0.3902502903 | $703,017 | $703,017 | $274.35 | | |
| CE | County Current Expense | 0.3708482477 | $703,017 | $703,017 | $260.71 | | |
| CR | County Roads | 0.4584763726 | $703,017 | $703,017 | $322.32 | | |
| ISLANDEMS | Hospital GEN (EMS) | 0.5000000000 | $703,017 | $703,017 | $351.51 | | |
| LIB | Library Sno-Isle GEN | 0.3153421757 | $703,017 | $703,017 | $221.69 | | |
| PORTWHID | Port of S Whidbey GEN | 0.1094540357 | $703,017 | $703,017 | $76.95 | | |
| SCH206BOND | School 206 BOND | 0.3161759235 | $703,017 | $703,017 | $222.28 | | |
| SCH206MO | School 206 Enrichment | 0.4547169547 | $703,017 | $703,017 | $319.67 | | |
| ST | State School | 1.3035497053 | $703,017 | $703,017 | $916.42 | | |
| ST2 | State School Part 2 | 0.8169543533 | $703,017 | $703,017 | $574.33 | | |
| SWHIDPRBD | P & R S Whidbey BOND | 0.0152817568 | $703,017 | $703,017 | $10.74 | | |
| SWHIDPRBD2 | P & R S Whidbey BOND2 | 0.0138911264 | $703,017 | $703,017 | $9.77 | | |
| SWHIDPRMT | P & R S Whidbey GEN | 0.2053334452 | $703,017 | $703,017 | $144.35 | | |
| | Total Tax Rate: | 6.6934522006 | | | | | |
| | | | | Taxes w/Current Exemptions: | $4,705.61 | | |
| | | | | Taxes w/o Exemptions: | $4,705.61 | | |
Improvement / Building
| Improvement #1: | RESIDENTIAL | State Code: | Y | 2648.0 sqft | Value: | $373,017 |
| Bathrooms: | 2.75 | Bedrooms: | 2 | | Ceiling: | DRYWALL PAINTED | Cooling: | HEAT PUMP/CONV/V | | Exterior Wall/Cover: | CEMENT FIBER | Floor Covering: | HARDWOOD/CARP 60-40 | | Floor Structure: | WOOD W/SUBFLOOR | Foundation: | CONCRETE | | Interior Finish: | DRYWALL PAINT | Plumbing Fixture Cnt: | 15 | | Roof Slope: | 4" IN 12" | Roof Structure/Cover: | CJ ASPHALT |
|
| | Type | Description | Class CD | Sub Class CD | Year Built | Area |
| | BAS | BASE/MAIN FLOOR | 3 | 0 | 1981 | 1374.0 |
| | DWN | DOWNSTAIRS LIVING AREA | 3 | 0 | 1981 | 1274.0 |
| | AGR | ATTACHED GARAGE | 3 | 0 | 1981 | 340.0 |
| | OWP | OPEN WOOD PORCH W/STEPS | 3 | 0 | 1981 | 563.0 |
Sketch
Property Image
Land
| 1 | 15 | SQ (12001-21780) | 0.0000 | 0.00 | 0.00 | 0.00 | 1.00 | $330,000 | $0 |
Roll Value History
| 2026 | N/A | N/A | N/A | N/A | N/A |
| 2025 | $373,017 | $330,000 | $0 | $703,017 | $703,017 |
| 2024 | $377,723 | $310,000 | $0 | $687,723 | $687,723 |
| 2023 | $382,431 | $300,000 | $0 | $682,431 | $682,431 |
| 2022 | $350,554 | $280,000 | $0 | $630,554 | $630,554 |
| 2021 | $303,334 | $210,000 | $0 | $513,334 | $513,334 |
| 2020 | $288,677 | $180,000 | $0 | $468,677 | $468,677 |
| 2019 | $224,486 | $200,000 | $0 | $424,486 | $424,486 |
| 2018 | $225,161 | $220,000 | $0 | $445,161 | $445,161 |
| 2017 | $226,508 | $200,000 | $0 | $426,508 | $426,508 |
| 2016 | $182,876 | $200,000 | $0 | $382,876 | $382,876 |
| 2015 | $185,027 | $200,000 | $0 | $385,027 | $385,027 |
| 2014 | $183,617 | $200,000 | $0 | $383,617 | $383,617 |
| 2013 | $185,831 | $200,000 | $0 | $385,831 | $385,831 |
| 2012 | $188,042 | $140,250 | $0 | $328,292 | $328,292 |
| 2011 | $190,255 | $165,000 | $0 | $355,255 | $355,255 |
| 2010 | $195,334 | $165,000 | $0 | $360,334 | $360,334 |
| 2009 | $203,539 | $200,000 | $0 | $403,539 | $403,539 |
| 2008 | $205,779 | $150,000 | $0 | $355,779 | $355,779 |
| 2007 | $172,100 | $110,000 | $0 | $282,100 | $282,100 |
Deed and Sales History
| 1 | 03/31/2025 | | | GITHENS, JOHN D | GITHENS, JOHN D | | | | 89465 | |
| 2 | 07/11/2016 | WD | Warranty Deed | HANNA, DOUGLAS J | GITHENS, JOHN D | | | $432,500.00 | 25232 | 4403163 |
| 3 | 06/28/2007 | WD | Warranty Deed | HANNA, DOUGLAS J | HANNA, DOUGLAS J | | | $0.00 | 72508 | 4207951 |
| 4 | 06/28/2007 | WD | Warranty Deed | O'NEIL, LAURA | HANNA, DOUGLAS J | | | $500,000.00 | 72487 | 4207812 |
| 5 | 03/15/2005 | QCD | Quit Claim Deed | O'NEIL, LAURA | O'NEIL, LAURA | | | $0.00 | 50968 | 4128120 |
| 6 | 06/22/2004 | WD | Warranty Deed | STUEMPGES, CLARK L | O'NEIL, LAURA | | | $170,000.00 | 43163 | 4106880 |
| 7 | 09/01/1990 | QCD | Quit Claim Deed | STUEMPGES, CLARK L | STUEMPGES, CLARK L | | | $0.00 | 5474 | 90018261 |
| 8 | 07/01/1982 | OTHER | Other - Misc. Documents | STUEMPGES, CLARK L | STUEMPGES, CLARK L | | | $0.00 | 59574 | 0 |
| 9 | 11/01/1981 | EXECUTORD | Executor Deed | ANDERSON, ALBERT L | STUEMPGES, CLARK L | | | $18,000.00 | 13641 | 390594 |
| 10 | 01/01/1900 | OTHER | Other - Misc. Documents | Unknown | ANDERSON, ALBERT L | | | $0.00 | 0 | 0 |
Payout Agreement
| No payout information available.. |