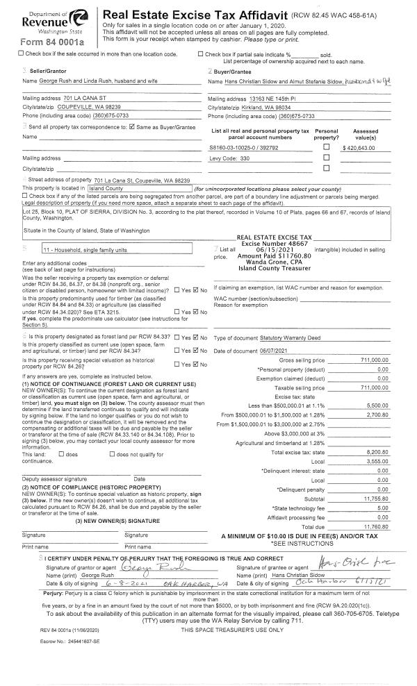
Property
Account |
| Property ID: | 399759 | Abbreviated Legal Description: | SUNLIGHT SH 1 LOT 15 BLK 2 |
| Geographic ID: | S8225-00-02015-0 | Agent Code: | |
| Type: | Real | | |
| Tax Area: | 710 - APPRAISER-S Whid Schl Dist, outside Langley, improved & 1 acre or less | Land Use Code | 11 |
| Open Space: | N | DFL | N |
| Historic Property: | N | Remodel Property: | N |
| Multi-Family Redevelopment: | N | | |
| Township: | | Section: | |
| Range: | |
Location |
| Address: | 2735 EVENING GLORY CT CLINTON, WA 98236 | Mapsco: | |
| Neighborhood: | Cycle 4 | Map ID: | 788 |
| Neighborhood CD: | 4 |
Owner |
| Name: | LITWILLER, BRANDON | Owner ID: | 24338 |
| Mailing Address: | PO BOX 347 CLINTON, WA 98236 | % Ownership: | 100.0000000000% |
| | | Exemptions: | |
Taxes and Assessment Details
Values
| (+) Improvement Homesite Value: | + | $0 | |
| (+) Improvement Non-Homesite Value: | + | $344,500 | |
| (+) Land Homesite Value: | + | $0 | |
| (+) Land Non-Homesite Value: | + | $330,000 | |
| (+) Curr Use (HS): | + | $0 | $0 |
| (+) Curr Use (NHS): | + | $0 | $0 |
| | | -------------------------- | |
| (=) Market Value: | = | $674,500 | |
| (–) Productivity Loss: | – | $0 | |
| | | -------------------------- | |
| (=) Subtotal: | = | $674,500 | |
| (+) Senior Appraised Value: | + | $0 | |
| (+) Non-Senior Appraised Value: | + | $674,500 | |
| | | -------------------------- | |
| (=) Total Appraised Value: | = | $674,500 | |
| (–) Senior Exemption Loss: | – | $0 | |
| (–) Exemption Loss: | – | $0 | |
| | | -------------------------- | |
| (=) Taxable Value: | = | $674,500 | |
Taxing Jurisdiction
| Owner: | LITWILLER, BRANDON | | |
| % Ownership: | 100.0000000000% | | |
| Total Value: | $674,500 | | |
| Tax Area: | 710 - APPRAISER-S Whid Schl Dist, outside Langley, improved & 1 acre or less |
| CF | Conservation Futures | 0.0316035091 | $674,500 | $674,500 | $21.32 | | |
| FIRE3 | Fire & Rescue Dist #3 S Whidbey GEN | 1.2004855531 | $674,500 | $674,500 | $809.73 | | |
| HOBOND | Hospital BOND | 0.1910887512 | $674,500 | $674,500 | $128.89 | | |
| HOGEN | Hospital GEN | 0.3902502903 | $674,500 | $674,500 | $263.22 | | |
| CE | County Current Expense | 0.3708482477 | $674,500 | $674,500 | $250.14 | | |
| CR | County Roads | 0.4584763726 | $674,500 | $674,500 | $309.24 | | |
| ISLANDEMS | Hospital GEN (EMS) | 0.5000000000 | $674,500 | $674,500 | $337.25 | | |
| LIB | Library Sno-Isle GEN | 0.3153421757 | $674,500 | $674,500 | $212.70 | | |
| PORTWHID | Port of S Whidbey GEN | 0.1094540357 | $674,500 | $674,500 | $73.83 | | |
| SCH206BOND | School 206 BOND | 0.3161759235 | $674,500 | $674,500 | $213.26 | | |
| SCH206MO | School 206 Enrichment | 0.4547169547 | $674,500 | $674,500 | $306.71 | | |
| ST | State School | 1.3035497053 | $674,500 | $674,500 | $879.24 | | |
| ST2 | State School Part 2 | 0.8169543533 | $674,500 | $674,500 | $551.04 | | |
| SWHIDPRBD | P & R S Whidbey BOND | 0.0152817568 | $674,500 | $674,500 | $10.31 | | |
| SWHIDPRBD2 | P & R S Whidbey BOND2 | 0.0138911264 | $674,500 | $674,500 | $9.37 | | |
| SWHIDPRMT | P & R S Whidbey GEN | 0.2053334452 | $674,500 | $674,500 | $138.50 | | |
| | Total Tax Rate: | 6.6934522006 | | | | | |
| | | | | Taxes w/Current Exemptions: | $4,514.75 | | |
| | | | | Taxes w/o Exemptions: | $4,514.75 | | |
Improvement / Building
| Improvement #1: | RESIDENTIAL | State Code: | Y | 2074.0 sqft | Value: | $344,500 |
| Bathrooms: | 2 | Bedrooms: | 2 | | Ceiling: | DRYWALL PAINTED | Exterior Wall/Cover: | CEMENT FIBER | | Floor Covering: | CERAMIC TILE/HWD 40/60 | Floor Structure: | WOOD W/SUBFLOOR | | Foundation: | CONCRETE | Heating: | BASEBOARD ELECTRIC | | Interior Finish: | DRYWALL PAINT | Plumbing Fixture Cnt: | 14 | | Roof Slope: | 3" IN 12" | Roof Structure/Cover: | CJ ASPHALT |
|
| | Type | Description | Class CD | Sub Class CD | Year Built | Area |
| | BAS | BASE/MAIN FLOOR | 3 | 0 | 1983 | 1210.0 |
| | OWP | OPEN WOOD PORCH W/STEPS | 3 | 0 | 1983 | 745.0 |
| | OP4 | OPEN PORCH W/CEILING-ROOF | 3 | 0 | 1983 | 90.0 |
| | DWN | DOWNSTAIRS LIVING AREA | 3 | 0 | 1983 | 864.0 |
| | UB8 | BASEMENT UNFINISHED 8" | 3 | 0 | 1983 | 216.0 |
| | OWC | OPEN WOOD PORCH W/STEPS/ROOF/C | 3 | 0 | 1983 | 48.0 |
Sketch
Property Image
Land
| 1 | 14 | SQ (08001-12000) | 0.0000 | 0.00 | 0.00 | 0.00 | 1.00 | $330,000 | $0 |
Roll Value History
| 2026 | N/A | N/A | N/A | N/A | N/A |
| 2025 | $344,500 | $330,000 | $0 | $674,500 | $674,500 |
| 2024 | $355,418 | $310,000 | $0 | $665,418 | $665,418 |
| 2023 | $359,636 | $300,000 | $0 | $659,636 | $659,636 |
| 2022 | $329,486 | $280,000 | $0 | $609,486 | $609,486 |
| 2021 | $289,827 | $210,000 | $0 | $499,827 | $499,827 |
| 2020 | $273,243 | $180,000 | $0 | $453,243 | $453,243 |
| 2019 | $189,597 | $250,000 | $0 | $439,597 | $439,597 |
| 2018 | $190,167 | $220,000 | $0 | $410,167 | $410,167 |
| 2017 | $191,305 | $200,000 | $0 | $391,305 | $391,305 |
| 2016 | $193,583 | $200,000 | $0 | $393,583 | $393,583 |
| 2015 | $195,860 | $200,000 | $0 | $395,860 | $395,860 |
| 2014 | $193,583 | $200,000 | $0 | $393,583 | $393,583 |
| 2013 | $115,705 | $200,000 | $0 | $315,705 | $315,705 |
| 2012 | $117,336 | $140,250 | $0 | $257,586 | $257,586 |
| 2011 | $118,964 | $165,000 | $0 | $283,964 | $283,964 |
| 2010 | $125,973 | $165,000 | $0 | $290,973 | $290,973 |
| 2009 | $129,828 | $200,000 | $0 | $329,828 | $329,828 |
| 2008 | $131,479 | $150,000 | $0 | $281,479 | $281,479 |
| 2007 | $133,129 | $135,000 | $0 | $268,129 | $268,129 |
Deed and Sales History
| 1 | 06/24/2009 | WD | Warranty Deed | WILLIAMS, FELICIA A | LITWILLER, BRANDON | | | $262,500.00 | 91413 | 4254729 |
| 2 | 05/01/1993 | QCD | Quit Claim Deed | WILLIAMS, FELICIA A | WILLIAMS, FELICIA A | | | $0.00 | 31706 | 93008762 |
| 3 | 11/01/1990 | OTHER | Other - Misc. Documents | PETERSON, FAYE J | WILLIAMS, FELICIA A | | | $0.00 | 63944 | 0 |
| 4 | 02/01/1985 | WD | Warranty Deed | SAZANAMI, TOMOYOSHI | PETERSON, FAYE J | | | $65,800.00 | 50503 | 85002261 |
| 5 | 12/01/1982 | REC | Real Estate Contract | SWENSON, C J | SAZANAMI, TOMOYOSHI | | | $18,000.00 | 22809 | 402923 |
| 6 | 01/01/1900 | OTHER | Other - Misc. Documents | Unknown | SWENSON, C J | | | $0.00 | 0 | 0 |
Payout Agreement
| No payout information available.. |