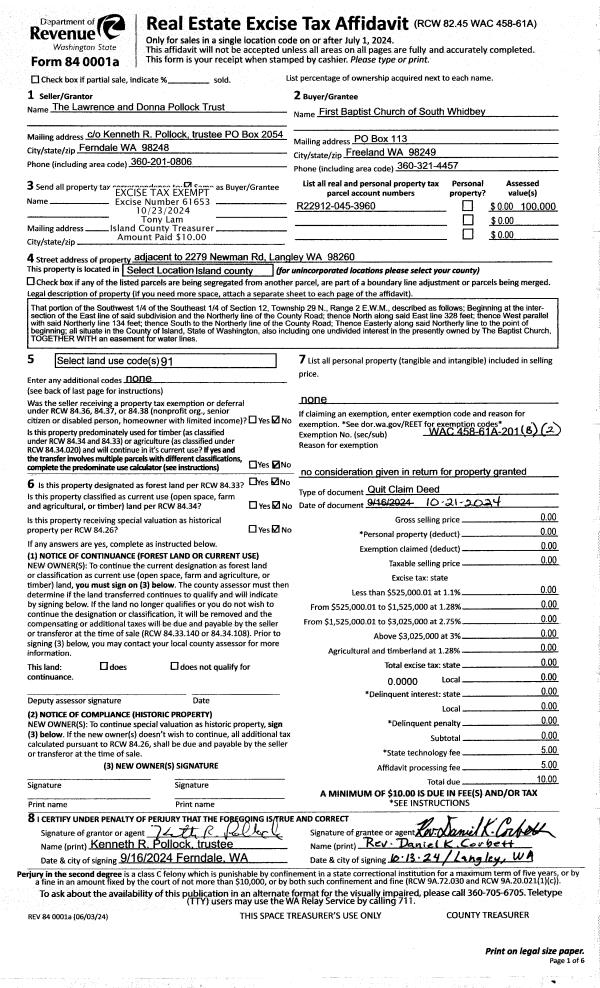
Property
Account |
| Property ID: | 399955 | Abbreviated Legal Description: | SUNLIGHT SH 2 LOT 15 & 16 COMB 6/3/83 |
| Geographic ID: | S8225-02-00016-0 | Agent Code: | |
| Type: | Real | | |
| Tax Area: | 710 - APPRAISER-S Whid Schl Dist, outside Langley, improved & 1 acre or less | Land Use Code | 11 |
| Open Space: | N | DFL | N |
| Historic Property: | N | Remodel Property: | N |
| Multi-Family Redevelopment: | N | | |
| Township: | | Section: | |
| Range: | |
Location |
| Address: | 6223 SUNLIGHT SHORES LN CLINTON, WA 98236 | Mapsco: | |
| Neighborhood: | Cycle 4 | Map ID: | 791 |
| Neighborhood CD: | 4 |
Owner |
| Name: | GUNDERSON, JEANNETTE | Owner ID: | 311531 |
| Mailing Address: | DANIEL FLINT 6223 SUNLIGHT SHORES LN CLINTON, WA 98236 | % Ownership: | 100.0000000000% |
| | | Exemptions: | |
Taxes and Assessment Details
Values
| (+) Improvement Homesite Value: | + | $0 | |
| (+) Improvement Non-Homesite Value: | + | $425,027 | |
| (+) Land Homesite Value: | + | $0 | |
| (+) Land Non-Homesite Value: | + | $240,000 | |
| (+) Curr Use (HS): | + | $0 | $0 |
| (+) Curr Use (NHS): | + | $0 | $0 |
| | | -------------------------- | |
| (=) Market Value: | = | $665,027 | |
| (–) Productivity Loss: | – | $0 | |
| | | -------------------------- | |
| (=) Subtotal: | = | $665,027 | |
| (+) Senior Appraised Value: | + | $0 | |
| (+) Non-Senior Appraised Value: | + | $665,027 | |
| | | -------------------------- | |
| (=) Total Appraised Value: | = | $665,027 | |
| (–) Senior Exemption Loss: | – | $0 | |
| (–) Exemption Loss: | – | $0 | |
| | | -------------------------- | |
| (=) Taxable Value: | = | $665,027 | |
Taxing Jurisdiction
| Owner: | GUNDERSON, JEANNETTE | | |
| % Ownership: | 100.0000000000% | | |
| Total Value: | $665,027 | | |
| Tax Area: | 710 - APPRAISER-S Whid Schl Dist, outside Langley, improved & 1 acre or less |
| CF | Conservation Futures | 0.0316035091 | $665,027 | $665,027 | $21.02 | | |
| FIRE3 | Fire & Rescue Dist #3 S Whidbey GEN | 1.2004855531 | $665,027 | $665,027 | $798.36 | | |
| HOBOND | Hospital BOND | 0.1910887512 | $665,027 | $665,027 | $127.08 | | |
| HOGEN | Hospital GEN | 0.3902502903 | $665,027 | $665,027 | $259.53 | | |
| CE | County Current Expense | 0.3708482477 | $665,027 | $665,027 | $246.62 | | |
| CR | County Roads | 0.4584763726 | $665,027 | $665,027 | $304.90 | | |
| ISLANDEMS | Hospital GEN (EMS) | 0.5000000000 | $665,027 | $665,027 | $332.51 | | |
| LIB | Library Sno-Isle GEN | 0.3153421757 | $665,027 | $665,027 | $209.71 | | |
| PORTWHID | Port of S Whidbey GEN | 0.1094540357 | $665,027 | $665,027 | $72.79 | | |
| SCH206BOND | School 206 BOND | 0.3161759235 | $665,027 | $665,027 | $210.27 | | |
| SCH206MO | School 206 Enrichment | 0.4547169547 | $665,027 | $665,027 | $302.40 | | |
| ST | State School | 1.3035497053 | $665,027 | $665,027 | $866.90 | | |
| ST2 | State School Part 2 | 0.8169543533 | $665,027 | $665,027 | $543.30 | | |
| SWHIDPRBD | P & R S Whidbey BOND | 0.0152817568 | $665,027 | $665,027 | $10.16 | | |
| SWHIDPRBD2 | P & R S Whidbey BOND2 | 0.0138911264 | $665,027 | $665,027 | $9.24 | | |
| SWHIDPRMT | P & R S Whidbey GEN | 0.2053334452 | $665,027 | $665,027 | $136.55 | | |
| | Total Tax Rate: | 6.6934522006 | | | | | |
| | | | | Taxes w/Current Exemptions: | $4,451.34 | | |
| | | | | Taxes w/o Exemptions: | $4,451.34 | | |
Improvement / Building
| Improvement #1: | RESIDENTIAL | State Code: | Y | 2496.0 sqft | Value: | $425,027 |
| Bathrooms: | 3 | Bedrooms: | 3 | | Ceiling: | DRYWALL PAINTED | Exterior Wall/Cover: | PLY/HARDBOARD T-111 | | Floor Covering: | HARDWOOD/CARP 60-40 | Floor Structure: | WOOD W/SUBFLOOR | | Foundation: | CONCRETE | Heating: | HEAT PUMP | | Interior Finish: | DRYWALL PAINT | Plumbing Fixture Cnt: | 12 | | Roof Slope: | 4" IN 12" | Roof Structure/Cover: | CJ ALUMINIUM HEAVY |
|
| | Type | Description | Class CD | Sub Class CD | Year Built | Area |
| | BAS | BASE/MAIN FLOOR | 3 | 0 | 1981 | 1768.0 |
| | DGR | DETACHED GARAGE | 3 | 0 | 1981 | 1107.0 |
| | ENP | ENCLOSED PORCH | 3 | 0 | 1981 | 180.0 |
| | UPS | UPPER STORY | 3 | 0 | 1981 | 728.0 |
| | OWP | OPEN WOOD PORCH W/STEPS | 3 | 0 | 1981 | 140.0 |
| | OWR | OPEN WOOD PORCH W/STEPS/ROOF | 3 | 0 | 1981 | 280.0 |
| | OWR | OPEN WOOD PORCH W/STEPS/ROOF | 3 | 0 | 1981 | 16.0 |
Sketch
| No sketches available for this property. |
Property Image
Land
| 1 | 16 | AC (00.51-01.00) | 0.0000 | 0.00 | 0.00 | 0.00 | 1.00 | $240,000 | $0 |
Roll Value History
| 2026 | N/A | N/A | N/A | N/A | N/A |
| 2025 | $425,027 | $240,000 | $0 | $665,027 | $665,027 |
| 2024 | $357,833 | $250,000 | $0 | $607,833 | $607,833 |
| 2023 | $362,588 | $250,000 | $0 | $612,588 | $612,588 |
| 2022 | $332,648 | $240,000 | $0 | $572,648 | $572,648 |
| 2021 | $292,982 | $130,000 | $0 | $422,982 | $422,982 |
| 2020 | $272,069 | $130,000 | $0 | $402,069 | $402,069 |
| 2019 | $213,452 | $130,000 | $0 | $343,452 | $343,452 |
| 2018 | $214,153 | $130,000 | $0 | $344,153 | $344,153 |
| 2017 | $213,050 | $120,000 | $0 | $333,050 | $333,050 |
| 2016 | $215,818 | $100,000 | $0 | $315,818 | $315,818 |
| 2015 | $218,584 | $85,000 | $0 | $303,584 | $303,584 |
| 2014 | $211,675 | $106,250 | $0 | $317,925 | $317,925 |
| 2013 | $214,485 | $106,250 | $0 | $320,735 | $320,735 |
| 2012 | $217,294 | $106,250 | $0 | $323,544 | $323,544 |
| 2011 | $220,107 | $125,000 | $0 | $345,107 | $345,107 |
| 2010 | $224,388 | $125,000 | $0 | $349,388 | $349,388 |
| 2009 | $234,207 | $150,000 | $0 | $384,207 | $384,207 |
| 2008 | $237,552 | $170,000 | $0 | $407,552 | $407,552 |
| 2007 | $240,530 | $135,000 | $0 | $375,530 | $375,530 |
Deed and Sales History
| 1 | 02/23/2024 | WD | Warranty Deed | DOWNEY, MICHAEL S | GUNDERSON, JEANNETTE | | | $600,000.00 | 59291 | 4569785 |
| 2 | 09/02/1999 | ESTSEPPROP | Establish Separate Property | DOWNEY, MICHAEL & | DOWNEY, MICHAEL S | | | $0.00 | 93690 | 99020813 |
| 3 | 09/02/1999 | ESTSEPPROP | Establish Separate Property | Unknown | DOWNEY, MICHAEL S | | | $0.00 | 93690 | 99020813 |
| 4 | 01/01/1990 | QCD | Quit Claim Deed | DOWNEY, MICHAEL | DOWNEY, MICHAEL & | | | $0.00 | 937 | 90003030 |
| 5 | 06/01/1983 | OTHER | Other - Misc. Documents | DOWNEY, MICHAEL | DOWNEY, MICHAEL | | | $0.00 | 60075 | 0 |
| 6 | 04/01/1981 | CD | DNU - Correction Deed | DOWNEY, ELIN | DOWNEY, MICHAEL | | | $0.00 | 11648 | 383587 |
| 7 | 11/01/1978 | OTHER | Other - Misc. Documents | DOWNEY, MICHAEL S | DOWNEY, ELIN | | | $6,695.00 | 85493 | 342774 |
Payout Agreement
| No payout information available.. |