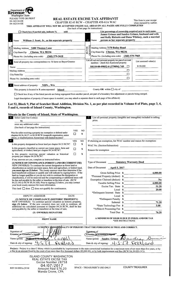
Property
Account |
| Property ID: | 399982 | Abbreviated Legal Description: | SUNLIGHT SH 2 LOT 19 |
| Geographic ID: | S8225-02-00019-0 | Agent Code: | |
| Type: | Real | | |
| Tax Area: | 710 - APPRAISER-S Whid Schl Dist, outside Langley, improved & 1 acre or less | Land Use Code | 11 |
| Open Space: | N | DFL | N |
| Historic Property: | N | Remodel Property: | N |
| Multi-Family Redevelopment: | N | | |
| Township: | | Section: | |
| Range: | |
Location |
| Address: | 6233 SUNLIGHT SHORES LN CLINTON, WA 98236 | Mapsco: | |
| Neighborhood: | Cycle 4 | Map ID: | 791 |
| Neighborhood CD: | 4 |
Owner |
| Name: | BLOOM, JACOB M | Owner ID: | 279597 |
| Mailing Address: | 6233 SUNLIGHT SHORES LN CLINTON, WA 98236 | % Ownership: | 100.0000000000% |
| | | Exemptions: | |
Taxes and Assessment Details
Values
| (+) Improvement Homesite Value: | + | $0 | |
| (+) Improvement Non-Homesite Value: | + | $301,276 | |
| (+) Land Homesite Value: | + | $0 | |
| (+) Land Non-Homesite Value: | + | $240,000 | |
| (+) Curr Use (HS): | + | $0 | $0 |
| (+) Curr Use (NHS): | + | $0 | $0 |
| | | -------------------------- | |
| (=) Market Value: | = | $541,276 | |
| (–) Productivity Loss: | – | $0 | |
| | | -------------------------- | |
| (=) Subtotal: | = | $541,276 | |
| (+) Senior Appraised Value: | + | $0 | |
| (+) Non-Senior Appraised Value: | + | $541,276 | |
| | | -------------------------- | |
| (=) Total Appraised Value: | = | $541,276 | |
| (–) Senior Exemption Loss: | – | $0 | |
| (–) Exemption Loss: | – | $0 | |
| | | -------------------------- | |
| (=) Taxable Value: | = | $541,276 | |
Taxing Jurisdiction
| Owner: | BLOOM, JACOB M | | |
| % Ownership: | 100.0000000000% | | |
| Total Value: | $541,276 | | |
| Tax Area: | 710 - APPRAISER-S Whid Schl Dist, outside Langley, improved & 1 acre or less |
| CF | Conservation Futures | 0.0316035091 | $541,276 | $541,276 | $17.11 | | |
| FIRE3 | Fire & Rescue Dist #3 S Whidbey GEN | 1.2004855531 | $541,276 | $541,276 | $649.79 | | |
| HOBOND | Hospital BOND | 0.1910887512 | $541,276 | $541,276 | $103.43 | | |
| HOGEN | Hospital GEN | 0.3902502903 | $541,276 | $541,276 | $211.23 | | |
| CE | County Current Expense | 0.3708482477 | $541,276 | $541,276 | $200.73 | | |
| CR | County Roads | 0.4584763726 | $541,276 | $541,276 | $248.16 | | |
| ISLANDEMS | Hospital GEN (EMS) | 0.5000000000 | $541,276 | $541,276 | $270.64 | | |
| LIB | Library Sno-Isle GEN | 0.3153421757 | $541,276 | $541,276 | $170.69 | | |
| PORTWHID | Port of S Whidbey GEN | 0.1094540357 | $541,276 | $541,276 | $59.24 | | |
| SCH206BOND | School 206 BOND | 0.3161759235 | $541,276 | $541,276 | $171.14 | | |
| SCH206MO | School 206 Enrichment | 0.4547169547 | $541,276 | $541,276 | $246.13 | | |
| ST | State School | 1.3035497053 | $541,276 | $541,276 | $705.58 | | |
| ST2 | State School Part 2 | 0.8169543533 | $541,276 | $541,276 | $442.20 | | |
| SWHIDPRBD | P & R S Whidbey BOND | 0.0152817568 | $541,276 | $541,276 | $8.27 | | |
| SWHIDPRBD2 | P & R S Whidbey BOND2 | 0.0138911264 | $541,276 | $541,276 | $7.52 | | |
| SWHIDPRMT | P & R S Whidbey GEN | 0.2053334452 | $541,276 | $541,276 | $111.14 | | |
| | Total Tax Rate: | 6.6934522006 | | | | | |
| | | | | Taxes w/Current Exemptions: | $3,623.00 | | |
| | | | | Taxes w/o Exemptions: | $3,623.00 | | |
Improvement / Building
| Improvement #1: | RESIDENTIAL | State Code: | Y | 1849.0 sqft | Value: | $301,276 |
| Bathrooms: | 2.5 | Bedrooms: | 3 | | Ceiling: | DRYWALL PAINTED | Exterior Wall/Cover: | CEMENT FIBER | | Floor Covering: | CARPET/VINYL 60-40 | Floor Structure: | WOOD W/SUBFLOOR | | Foundation: | CONCRETE | Heating: | WALL HEAT ELECTRIC | | Interior Finish: | DRYWALL PAINT | Plumbing Fixture Cnt: | 12 | | Roof Slope: | 4" IN 12" | Roof Structure/Cover: | CJ ASPHALT |
|
| | Type | Description | Class CD | Sub Class CD | Year Built | Area |
| | BAS | BASE/MAIN FLOOR | 3 | 0 | 2008 | 1057.0 |
| | BIG | BUILT IN GARAGE | 3 | 0 | 2008 | 528.0 |
| | UPS | UPPER STORY | 3 | 0 | 2008 | 792.0 |
| | OWC | OPEN WOOD PORCH W/STEPS/ROOF/C | 3 | 0 | 2008 | 137.0 |
| | OWP | OPEN WOOD PORCH W/STEPS | 3 | 0 | 2008 | 60.0 |
Sketch
Property Image
Land
| 1 | 14 | SQ (08001-12000) | 0.0000 | 0.00 | 0.00 | 0.00 | 1.00 | $240,000 | $0 |
Roll Value History
| 2026 | N/A | N/A | N/A | N/A | N/A |
| 2025 | $301,276 | $240,000 | $0 | $541,276 | $541,276 |
| 2024 | $304,854 | $250,000 | $0 | $554,854 | $554,854 |
| 2023 | $308,430 | $250,000 | $0 | $558,430 | $558,430 |
| 2022 | $282,531 | $240,000 | $0 | $522,531 | $522,531 |
| 2021 | $248,500 | $130,000 | $0 | $378,500 | $378,500 |
| 2020 | $242,069 | $130,000 | $0 | $372,069 | $372,069 |
| 2019 | $179,014 | $130,000 | $0 | $309,014 | $309,014 |
| 2018 | $179,509 | $130,000 | $0 | $309,509 | $309,509 |
| 2017 | $180,502 | $120,000 | $0 | $300,502 | $300,502 |
| 2016 | $182,484 | $100,000 | $0 | $282,484 | $282,484 |
| 2015 | $184,469 | $85,000 | $0 | $269,469 | $269,469 |
| 2014 | $192,068 | $85,000 | $0 | $277,068 | $277,068 |
| 2013 | $194,133 | $59,500 | $0 | $253,633 | $253,633 |
| 2012 | $196,199 | $59,500 | $0 | $255,699 | $255,699 |
| 2011 | $198,264 | $70,000 | $0 | $268,264 | $268,264 |
| 2010 | $205,353 | $70,000 | $0 | $275,353 | $275,353 |
| 2009 | $211,701 | $75,000 | $0 | $286,701 | $286,701 |
| 2008 | $213,159 | $81,000 | $0 | $294,159 | $294,159 |
| 2007 | $0 | $60,000 | $0 | $60,000 | $60,000 |
Deed and Sales History
| 1 | 03/27/2017 | QCD | Quit Claim Deed | BLOOM, JACOB M | BLOOM, JACOB M | | | $0.00 | 29016 | 4421372 |
| 2 | 10/29/2007 | QCD | Quit Claim Deed | BLOOM ET AL, KENNETH M | BLOOM, JACOB M | | | $85,000.00 | 73617 | 4215305 |
| 3 | 07/30/2007 | QCD | Quit Claim Deed | BLOOM, KENNETH M | BLOOM ET AL, KENNETH M | | | $0.00 | 72567 | 4208333 |
| 4 | 06/18/2007 | WD | Warranty Deed | WALKER, ELLIOTT J/LAURA R | BLOOM, KENNETH M | | | $85,000.00 | 72071 | 4205209 |
| 5 | 04/04/2004 | WD | Warranty Deed | HASLUND, LEIF B | WALKER, ELLIOTT J/LAURA R | | | $32,000.00 | 41690 | 4098609 |
| 6 | 07/01/1978 | OTHER | Other - Misc. Documents | Unknown | HASLUND, LEIF B | | | $5,500.00 | 83229 | 335859 |
Payout Agreement
| No payout information available.. |