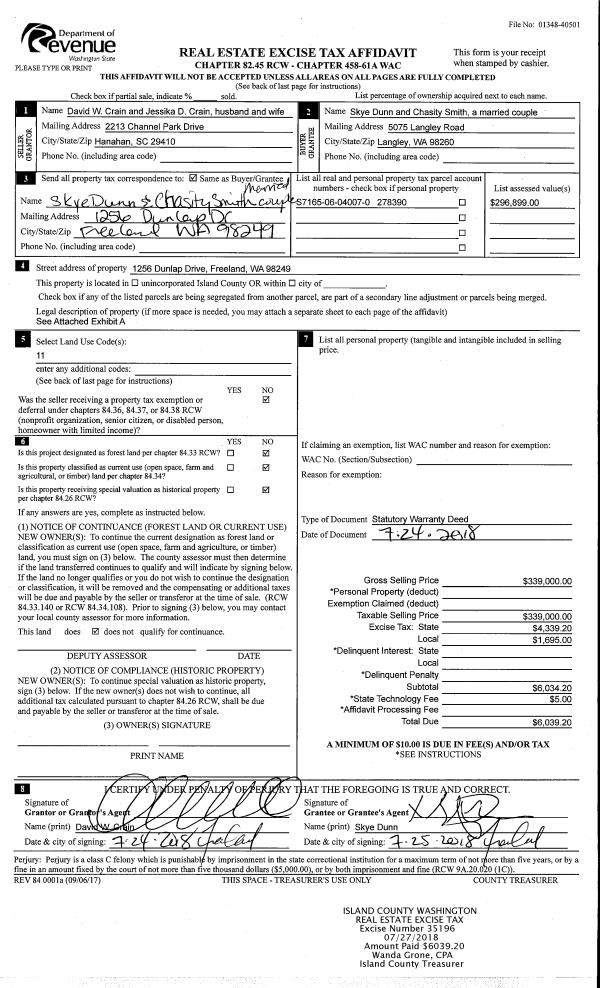
Property
Account |
| Property ID: | 400097 | Abbreviated Legal Description: | SUNLIGHT SH 2 LOT 30 |
| Geographic ID: | S8225-02-00030-0 | Agent Code: | |
| Type: | Real | | |
| Tax Area: | 710 - APPRAISER-S Whid Schl Dist, outside Langley, improved & 1 acre or less | Land Use Code | 11 |
| Open Space: | N | DFL | N |
| Historic Property: | N | Remodel Property: | N |
| Multi-Family Redevelopment: | N | | |
| Township: | | Section: | |
| Range: | |
Location |
| Address: | 2879 SUNLIGHT DR CLINTON, WA 98236 | Mapsco: | |
| Neighborhood: | Cycle 4 | Map ID: | 791 |
| Neighborhood CD: | 4 |
Owner |
| Name: | DUPUIS, BARBARA | Owner ID: | 301522 |
| Mailing Address: | 2879 SUNLIGHT DR CLINTON, WA 98236 | % Ownership: | 100.0000000000% |
| | | Exemptions: | SNR/DSBL |
Taxes and Assessment Details
Values
| (+) Improvement Homesite Value: | + | $159,027 | |
| (+) Improvement Non-Homesite Value: | + | $0 | |
| (+) Land Homesite Value: | + | $240,000 | |
| (+) Land Non-Homesite Value: | + | $0 | |
| (+) Curr Use (HS): | + | $0 | $0 |
| (+) Curr Use (NHS): | + | $0 | $0 |
| | | -------------------------- | |
| (=) Market Value: | = | $399,027 | |
| (–) Productivity Loss: | – | $0 | |
| | | -------------------------- | |
| (=) Subtotal: | = | $399,027 | |
| (+) Senior Appraised Value: | + | $389,742 | |
| (+) Non-Senior Appraised Value: | + | $0 | |
| | | -------------------------- | |
| (=) Total Appraised Value: | = | $389,742 | |
| (–) Senior Exemption Loss: | – | $233,845 | |
| (–) Exemption Loss: | – | $0 | |
| | | -------------------------- | |
| (=) Taxable Value: | = | $155,897 | |
Taxing Jurisdiction
| Owner: | DUPUIS, BARBARA | | |
| % Ownership: | 100.0000000000% | | |
| Total Value: | $399,027 | | |
| Tax Area: | 710 - APPRAISER-S Whid Schl Dist, outside Langley, improved & 1 acre or less |
| CF | Conservation Futures | 0.0316035091 | $399,027 | $155,897 | $4.93 | | |
| FIRE3 | Fire & Rescue Dist #3 S Whidbey GEN | 1.2004855531 | $399,027 | $155,897 | $187.15 | | |
| HOBOND | Hospital BOND | 0.0000000000 | $399,027 | $0 | $0.00 | | |
| HOGEN | Hospital GEN | 0.3902502903 | $399,027 | $155,897 | $60.84 | | |
| CE | County Current Expense | 0.3708482477 | $399,027 | $155,897 | $57.81 | | |
| CR | County Roads | 0.4584763726 | $399,027 | $155,897 | $71.48 | | |
| ISLANDEMS | Hospital GEN (EMS) | 0.5000000000 | $399,027 | $155,897 | $77.95 | | |
| LIB | Library Sno-Isle GEN | 0.3153421757 | $399,027 | $155,897 | $49.16 | | |
| PORTWHID | Port of S Whidbey GEN | 0.1094540357 | $399,027 | $155,897 | $17.06 | | |
| SCH206BOND | School 206 BOND | 0.3161759235 | $399,027 | $155,897 | $49.29 | | |
| SCH206MO | School 206 Enrichment | 0.0000000000 | $399,027 | $0 | $0.00 | | |
| ST | State School | 1.3035497053 | $399,027 | $155,897 | $203.22 | | |
| ST2 | State School Part 2 | 0.0000000000 | $399,027 | $0 | $0.00 | | |
| SWHIDPRBD | P & R S Whidbey BOND | 0.0000000000 | $399,027 | $0 | $0.00 | | |
| SWHIDPRBD2 | P & R S Whidbey BOND2 | 0.0000000000 | $399,027 | $0 | $0.00 | | |
| SWHIDPRMT | P & R S Whidbey GEN | 0.2053334452 | $399,027 | $155,897 | $32.01 | | |
| | Total Tax Rate: | 5.2015192582 | | | | | |
| | | | | Taxes w/Current Exemptions: | $810.90 | | |
| | | | | Taxes w/o Exemptions: | $2,670.86 | | |
Improvement / Building
| Improvement #1: | RESIDENTIAL | State Code: | Y | 784.0 sqft | Value: | $159,027 |
| Bathrooms: | 1 | Bedrooms: | 2 | | Ceiling: | TONGUE & GROOVE | Cooling: | HEAT PUMP/CONV/V | | Exterior Wall/Cover: | PLY/HARDBOARD T-111 | Floor Covering: | VINYL/HARDWOOD 20-80 | | Floor Structure: | WOOD W/SUBFLOOR | Foundation: | CONCRETE | | Interior Finish: | DRYWALL PAINT | Plumbing Fixture Cnt: | 6 | | Roof Slope: | 4" IN 12" | Roof Structure/Cover: | BEAM WOOD SHAKES |
|
| | Type | Description | Class CD | Sub Class CD | Year Built | Area |
| | BAS | BASE/MAIN FLOOR | 3 | 0 | 1975 | 784.0 |
| | OWP | OPEN WOOD PORCH W/STEPS | 3 | 0 | 1975 | 353.7 |
Sketch
Property Image
Land
| 1 | 16 | AC (00.51-01.00) | 0.0000 | 27007.20 | 0.00 | 0.00 | 1.00 | $240,000 | $0 |
Roll Value History
| 2026 | N/A | N/A | N/A | N/A | N/A |
| 2025 | $159,027 | $240,000 | $0 | $399,027 | $155,897 |
| 2024 | $161,141 | $250,000 | $0 | $411,141 | $155,897 |
| 2023 | $163,253 | $250,000 | $0 | $413,253 | $155,897 |
| 2022 | $149,742 | $240,000 | $0 | $389,742 | $155,897 |
| 2021 | $131,874 | $130,000 | $0 | $261,874 | $261,874 |
| 2020 | $112,552 | $130,000 | $0 | $242,552 | $242,552 |
| 2019 | $79,721 | $130,000 | $0 | $209,721 | $209,721 |
| 2018 | $77,866 | $130,000 | $0 | $207,866 | $207,866 |
| 2017 | $64,291 | $120,000 | $0 | $184,291 | $184,291 |
| 2016 | $65,250 | $100,000 | $0 | $165,250 | $165,250 |
| 2015 | $66,211 | $85,000 | $0 | $151,211 | $151,211 |
| 2014 | $63,040 | $106,250 | $0 | $169,290 | $169,290 |
| 2013 | $64,041 | $106,250 | $0 | $170,291 | $170,291 |
| 2012 | $65,041 | $106,250 | $0 | $171,291 | $171,291 |
| 2011 | $66,042 | $125,000 | $0 | $191,042 | $191,042 |
| 2010 | $70,441 | $125,000 | $0 | $195,441 | $195,441 |
| 2009 | $73,602 | $150,000 | $0 | $223,602 | $223,602 |
| 2008 | $74,612 | $170,000 | $0 | $244,612 | $244,612 |
| 2007 | $75,623 | $135,000 | $0 | $210,623 | $210,623 |
Deed and Sales History
| 1 | 10/11/2021 | QCD | Quit Claim Deed | LAFLEUR, ALAN | DUPUIS, BARBARA | | | $295,000.00 | 50437 | 45301292 |
| 2 | 05/01/2018 | WD | Warranty Deed | PARKERSON, NANCY | LAFLEUR, ALAN | | | $250,000.00 | 33952 | 4443741 |
| 3 | 03/08/2011 | PRD | Personal Representatives Deed | PARKERSON, VICTOR L | PARKERSON, NANCY | | | $0.00 | 4162 | 4293827 |
| 4 | 04/13/1998 | WD | Warranty Deed | KRZYZANIAK, MARYANNE | PARKERSON, VICTOR L | | | $105,000.00 | 81425 | 98007734 |
| 5 | 05/01/1994 | WD | Warranty Deed | FELT, RICHARD O | KRZYZANIAK, MARYANNE | | | $83,500.00 | 42195 | 94012589 |
| 6 | 06/01/1990 | WD | Warranty Deed | HERRING, WILLIAM A | FELT, RICHARD O | | | $69,000.00 | 3764 | 90012276 |
| 7 | 09/01/1984 | WD | Warranty Deed | BEIHN, HARRY J | HERRING, WILLIAM A | | | $46,500.00 | 42766 | 84003409 |
| 8 | 01/01/1900 | OTHER | Other - Misc. Documents | Unknown | BEIHN, HARRY J | | | $0.00 | 0 | 0 |
Payout Agreement
| No payout information available.. |