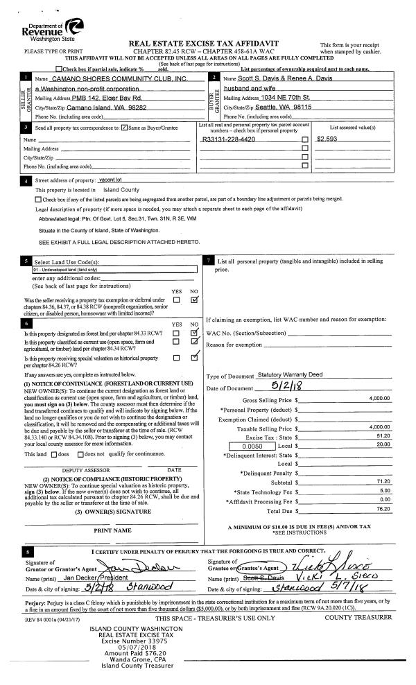
Property
Account |
| Property ID: | 400159 | Abbreviated Legal Description: | SUNLIGHT SH 2 LOT 36 |
| Geographic ID: | S8225-02-00036-0 | Agent Code: | |
| Type: | Real | | |
| Tax Area: | 710 - APPRAISER-S Whid Schl Dist, outside Langley, improved & 1 acre or less | Land Use Code | 11 |
| Open Space: | N | DFL | N |
| Historic Property: | N | Remodel Property: | N |
| Multi-Family Redevelopment: | N | | |
| Township: | | Section: | |
| Range: | |
Location |
| Address: | 2878 SUNLIGHT DR CLINTON, WA 98236 | Mapsco: | |
| Neighborhood: | Cycle 4 | Map ID: | 791 |
| Neighborhood CD: | 4 |
Owner |
| Name: | STEELE, ELIZABETH | Owner ID: | 284582 |
| Mailing Address: | 2878 SUNLIGHT DR CLINTON, WA 98236 | % Ownership: | 100.0000000000% |
| | | Exemptions: | |
Taxes and Assessment Details
Values
| (+) Improvement Homesite Value: | + | $0 | |
| (+) Improvement Non-Homesite Value: | + | $112,234 | |
| (+) Land Homesite Value: | + | $0 | |
| (+) Land Non-Homesite Value: | + | $240,000 | |
| (+) Curr Use (HS): | + | $0 | $0 |
| (+) Curr Use (NHS): | + | $0 | $0 |
| | | -------------------------- | |
| (=) Market Value: | = | $352,234 | |
| (–) Productivity Loss: | – | $0 | |
| | | -------------------------- | |
| (=) Subtotal: | = | $352,234 | |
| (+) Senior Appraised Value: | + | $0 | |
| (+) Non-Senior Appraised Value: | + | $352,234 | |
| | | -------------------------- | |
| (=) Total Appraised Value: | = | $352,234 | |
| (–) Senior Exemption Loss: | – | $0 | |
| (–) Exemption Loss: | – | $0 | |
| | | -------------------------- | |
| (=) Taxable Value: | = | $352,234 | |
Taxing Jurisdiction
| Owner: | STEELE, ELIZABETH | | |
| % Ownership: | 100.0000000000% | | |
| Total Value: | $352,234 | | |
| Tax Area: | 710 - APPRAISER-S Whid Schl Dist, outside Langley, improved & 1 acre or less |
| CF | Conservation Futures | 0.0316035091 | $352,234 | $352,234 | $11.13 | | |
| FIRE3 | Fire & Rescue Dist #3 S Whidbey GEN | 1.2004855531 | $352,234 | $352,234 | $422.85 | | |
| HOBOND | Hospital BOND | 0.1910887512 | $352,234 | $352,234 | $67.31 | | |
| HOGEN | Hospital GEN | 0.3902502903 | $352,234 | $352,234 | $137.46 | | |
| CE | County Current Expense | 0.3708482477 | $352,234 | $352,234 | $130.63 | | |
| CR | County Roads | 0.4584763726 | $352,234 | $352,234 | $161.49 | | |
| ISLANDEMS | Hospital GEN (EMS) | 0.5000000000 | $352,234 | $352,234 | $176.12 | | |
| LIB | Library Sno-Isle GEN | 0.3153421757 | $352,234 | $352,234 | $111.07 | | |
| PORTWHID | Port of S Whidbey GEN | 0.1094540357 | $352,234 | $352,234 | $38.55 | | |
| SCH206BOND | School 206 BOND | 0.3161759235 | $352,234 | $352,234 | $111.37 | | |
| SCH206MO | School 206 Enrichment | 0.4547169547 | $352,234 | $352,234 | $160.17 | | |
| ST | State School | 1.3035497053 | $352,234 | $352,234 | $459.15 | | |
| ST2 | State School Part 2 | 0.8169543533 | $352,234 | $352,234 | $287.76 | | |
| SWHIDPRBD | P & R S Whidbey BOND | 0.0152817568 | $352,234 | $352,234 | $5.38 | | |
| SWHIDPRBD2 | P & R S Whidbey BOND2 | 0.0138911264 | $352,234 | $352,234 | $4.89 | | |
| SWHIDPRMT | P & R S Whidbey GEN | 0.2053334452 | $352,234 | $352,234 | $72.33 | | |
| | Total Tax Rate: | 6.6934522006 | | | | | |
| | | | | Taxes w/Current Exemptions: | $2,357.66 | | |
| | | | | Taxes w/o Exemptions: | $2,357.66 | | |
Improvement / Building
| Improvement #1: | RESIDENTIAL | State Code: | Y | 584.0 sqft | Value: | $112,234 |
| Bathrooms: | 1 | Bedrooms: | 1 | | Ceiling: | TONGUE & GROOVE | Cooling: | HEAT PUMP/CONV/V | | Exterior Wall/Cover: | WOOD SIDING | Floor Covering: | HARDWOOD/CARP 20-80 | | Floor Structure: | WOOD W/SUBFLOOR | Foundation: | WOOD BLOCKS | | Interior Finish: | DRYWALL PAINT | Plumbing Fixture Cnt: | 6 | | Roof Slope: | 6" IN 12" | Roof Structure/Cover: | BEAM ALUMINUM HEAVY |
|
| | Type | Description | Class CD | Sub Class CD | Year Built | Area |
| | BAS | BASE/MAIN FLOOR | 2 | 0 | 1950 | 584.0 |
| | OWP | OPEN WOOD PORCH W/STEPS | 2 | 0 | 1950 | 157.5 |
| | OWP | OPEN WOOD PORCH W/STEPS | 2 | 0 | 1950 | 140.0 |
Sketch
Property Image
Land
| 1 | 15 | SQ (12001-21780) | 0.0000 | 0.00 | 0.00 | 0.00 | 1.00 | $240,000 | $0 |
Roll Value History
| 2026 | N/A | N/A | N/A | N/A | N/A |
| 2025 | $112,234 | $240,000 | $0 | $352,234 | $352,234 |
| 2024 | $117,383 | $250,000 | $0 | $367,383 | $367,383 |
| 2023 | $118,776 | $250,000 | $0 | $368,776 | $368,776 |
| 2022 | $108,812 | $240,000 | $0 | $348,812 | $348,812 |
| 2021 | $95,718 | $130,000 | $0 | $225,718 | $225,718 |
| 2020 | $92,922 | $130,000 | $0 | $222,922 | $222,922 |
| 2019 | $66,335 | $130,000 | $0 | $196,335 | $196,335 |
| 2018 | $66,521 | $130,000 | $0 | $196,521 | $196,521 |
| 2017 | $51,392 | $120,000 | $0 | $171,392 | $171,392 |
| 2016 | $52,126 | $100,000 | $0 | $152,126 | $152,126 |
| 2015 | $52,861 | $85,000 | $0 | $137,861 | $137,861 |
| 2014 | $36,666 | $85,000 | $0 | $121,666 | $121,666 |
| 2013 | $37,429 | $85,000 | $0 | $122,429 | $122,429 |
| 2012 | $38,195 | $89,250 | $0 | $127,445 | $29,118 |
| 2011 | $38,959 | $105,000 | $0 | $143,959 | $29,118 |
| 2010 | $47,377 | $105,000 | $0 | $152,377 | $29,118 |
| 2009 | $48,951 | $125,873 | $0 | $174,824 | $29,117 |
| 2008 | $49,134 | $139,844 | $0 | $188,978 | $29,117 |
| 2007 | $50,242 | $89,320 | $0 | $139,562 | $29,117 |
Deed and Sales History
| 1 | 04/04/2018 | QCD | Quit Claim Deed | STEELE JTWROS, ELIZABETH | STEELE, ELIZABETH | | | $0.00 | 33660 | 4442547 |
| 2 | 01/03/2018 | WD | Warranty Deed | GUTHRIE, DONALD J | STEELE JTWROS, ELIZABETH | | | $190,000.00 | 32688 | 4437870 |
| 3 | 03/10/2014 | SPWARDEED | Special Warranty Deed | MIHALOEW, ONA | GUTHRIE, DONALD J | | | $104,750.00 | 14548 | 4356411 |
| 4 | 08/05/2003 | WD | Warranty Deed | COE, JORDAN T | MIHALOEW, ONA | | | $94,500.00 | 33551 | 4070855 |
| 5 | 11/01/1996 | WD | Warranty Deed | JOHNSON, DIANE C | COE, JORDAN T | | | $65,000.00 | 64209 | 96020524 |
| 6 | 01/01/1985 | REC | Real Estate Contract | MOORE, PATRICK | JOHNSON, DIANE C | | | $27,000.00 | 50011 | 85000045 |
| 7 | 01/01/1900 | OTHER | Other - Misc. Documents | Unknown | MOORE, PATRICK | | | $0.00 | 0 | 0 |
Payout Agreement
| No payout information available.. |