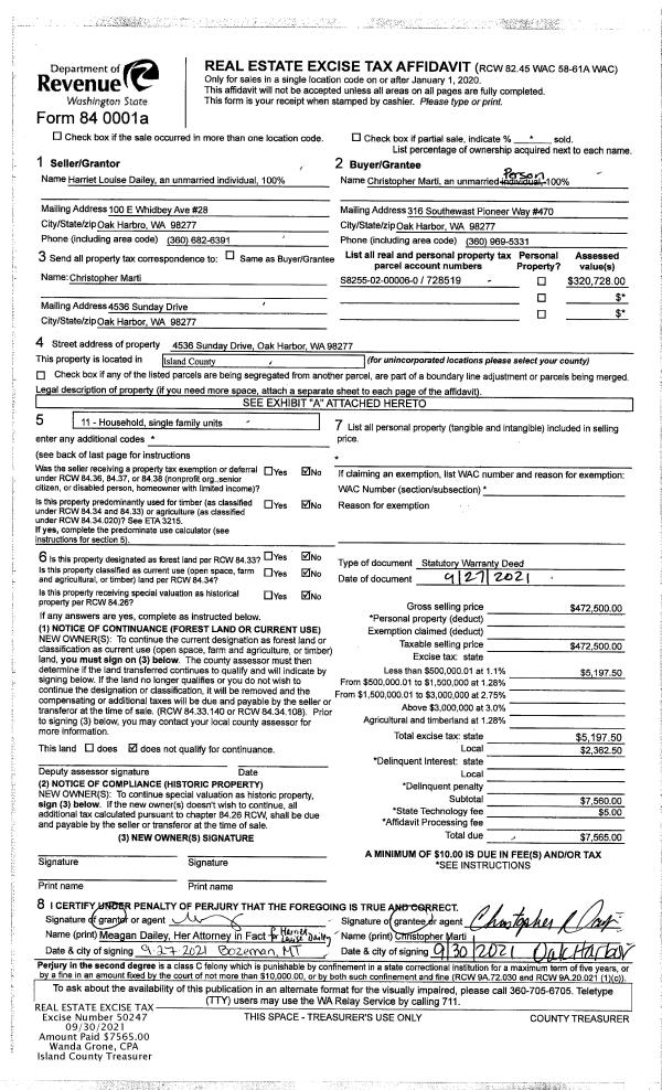
Property
Account |
| Property ID: | 400195 | Abbreviated Legal Description: | SUNLIGHT SH 2 LOT 40 |
| Geographic ID: | S8225-02-00040-0 | Agent Code: | |
| Type: | Real | | |
| Tax Area: | 710 - APPRAISER-S Whid Schl Dist, outside Langley, improved & 1 acre or less | Land Use Code | 11 |
| Open Space: | N | DFL | N |
| Historic Property: | N | Remodel Property: | N |
| Multi-Family Redevelopment: | N | | |
| Township: | | Section: | |
| Range: | |
Location |
| Address: | 2863 LONGHOUSE LN CLINTON, WA 98236 | Mapsco: | |
| Neighborhood: | Cycle 4 | Map ID: | 791 |
| Neighborhood CD: | 4 |
Owner |
| Name: | REULAND JTWROS, NOEL | Owner ID: | 279743 |
| Mailing Address: | DEBRA REULAND JTWROS PO BOX 910 FREELAND, WA 98249 | % Ownership: | 100.0000000000% |
| | | Exemptions: | |
Taxes and Assessment Details
Values
| (+) Improvement Homesite Value: | + | $0 | |
| (+) Improvement Non-Homesite Value: | + | $192,951 | |
| (+) Land Homesite Value: | + | $0 | |
| (+) Land Non-Homesite Value: | + | $240,000 | |
| (+) Curr Use (HS): | + | $0 | $0 |
| (+) Curr Use (NHS): | + | $0 | $0 |
| | | -------------------------- | |
| (=) Market Value: | = | $432,951 | |
| (–) Productivity Loss: | – | $0 | |
| | | -------------------------- | |
| (=) Subtotal: | = | $432,951 | |
| (+) Senior Appraised Value: | + | $0 | |
| (+) Non-Senior Appraised Value: | + | $432,951 | |
| | | -------------------------- | |
| (=) Total Appraised Value: | = | $432,951 | |
| (–) Senior Exemption Loss: | – | $0 | |
| (–) Exemption Loss: | – | $0 | |
| | | -------------------------- | |
| (=) Taxable Value: | = | $432,951 | |
Taxing Jurisdiction
| Owner: | REULAND JTWROS, NOEL | | |
| % Ownership: | 100.0000000000% | | |
| Total Value: | $432,951 | | |
| Tax Area: | 710 - APPRAISER-S Whid Schl Dist, outside Langley, improved & 1 acre or less |
| CF | Conservation Futures | 0.0316035091 | $432,951 | $432,951 | $13.68 | | |
| FIRE3 | Fire & Rescue Dist #3 S Whidbey GEN | 1.2004855531 | $432,951 | $432,951 | $519.75 | | |
| HOBOND | Hospital BOND | 0.1910887512 | $432,951 | $432,951 | $82.73 | | |
| HOGEN | Hospital GEN | 0.3902502903 | $432,951 | $432,951 | $168.96 | | |
| CE | County Current Expense | 0.3708482477 | $432,951 | $432,951 | $160.56 | | |
| CR | County Roads | 0.4584763726 | $432,951 | $432,951 | $198.50 | | |
| ISLANDEMS | Hospital GEN (EMS) | 0.5000000000 | $432,951 | $432,951 | $216.48 | | |
| LIB | Library Sno-Isle GEN | 0.3153421757 | $432,951 | $432,951 | $136.53 | | |
| PORTWHID | Port of S Whidbey GEN | 0.1094540357 | $432,951 | $432,951 | $47.39 | | |
| SCH206BOND | School 206 BOND | 0.3161759235 | $432,951 | $432,951 | $136.89 | | |
| SCH206MO | School 206 Enrichment | 0.4547169547 | $432,951 | $432,951 | $196.87 | | |
| ST | State School | 1.3035497053 | $432,951 | $432,951 | $564.37 | | |
| ST2 | State School Part 2 | 0.8169543533 | $432,951 | $432,951 | $353.70 | | |
| SWHIDPRBD | P & R S Whidbey BOND | 0.0152817568 | $432,951 | $432,951 | $6.62 | | |
| SWHIDPRBD2 | P & R S Whidbey BOND2 | 0.0138911264 | $432,951 | $432,951 | $6.01 | | |
| SWHIDPRMT | P & R S Whidbey GEN | 0.2053334452 | $432,951 | $432,951 | $88.90 | | |
| | Total Tax Rate: | 6.6934522006 | | | | | |
| | | | | Taxes w/Current Exemptions: | $2,897.94 | | |
| | | | | Taxes w/o Exemptions: | $2,897.94 | | |
Improvement / Building
| Improvement #1: | RESIDENTIAL | State Code: | Y | 792.0 sqft | Value: | $192,951 |
| Bathrooms: | 1 | Bedrooms: | 2 | | Ceiling: | DRYWALL PAINTED | Exterior Wall/Cover: | PLY/HARDBOARD T-111 | | Floor Covering: | COLORED CONCRETE | Floor Structure: | WOOD W/SUBFLOOR | | Foundation: | CONCRETE | Heating: | RAD STEAM-GAS | | Interior Finish: | DRYWALL PAINT | Plumbing Fixture Cnt: | 7 | | Roof Slope: | 8" IN 12" | Roof Structure/Cover: | CJ ASPHALT |
|
| | Type | Description | Class CD | Sub Class CD | Year Built | Area |
| | BAS | BASE/MAIN FLOOR | 3 | 0 | 2006 | 792.0 |
| | OP4 | OPEN PORCH W/CEILING-ROOF | 3 | 0 | 2006 | 180.0 |
| | OP4 | OPEN PORCH W/CEILING-ROOF | 3 | 0 | 2006 | 108.0 |
| | DGR | DETACHED GARAGE | 3 | 0 | 2006 | 324.0 |
Sketch
Property Image
Land
| 1 | 16 | AC (00.51-01.00) | 0.0000 | 0.00 | 0.00 | 0.00 | 1.00 | $240,000 | $0 |
Roll Value History
| 2026 | N/A | N/A | N/A | N/A | N/A |
| 2025 | $192,951 | $240,000 | $0 | $432,951 | $432,951 |
| 2024 | $195,163 | $250,000 | $0 | $445,163 | $445,163 |
| 2023 | $197,374 | $250,000 | $0 | $447,374 | $447,374 |
| 2022 | $180,232 | $240,000 | $0 | $420,232 | $420,232 |
| 2021 | $158,118 | $130,000 | $0 | $288,118 | $288,118 |
| 2020 | $145,761 | $130,000 | $0 | $275,761 | $275,761 |
| 2019 | $101,601 | $130,000 | $0 | $231,601 | $231,601 |
| 2018 | $101,889 | $130,000 | $0 | $231,889 | $231,889 |
| 2017 | $102,465 | $120,000 | $0 | $222,465 | $222,465 |
| 2016 | $103,616 | $100,000 | $0 | $203,616 | $203,616 |
| 2015 | $104,768 | $85,000 | $0 | $189,768 | $189,768 |
| 2014 | $106,958 | $106,250 | $0 | $213,208 | $213,208 |
| 2013 | $108,014 | $106,250 | $0 | $214,264 | $214,264 |
| 2012 | $109,069 | $106,250 | $0 | $215,319 | $215,319 |
| 2011 | $110,125 | $125,000 | $0 | $235,125 | $235,125 |
| 2010 | $108,127 | $125,000 | $0 | $233,127 | $233,127 |
| 2009 | $112,259 | $150,000 | $0 | $262,259 | $262,259 |
| 2008 | $112,014 | $170,000 | $0 | $282,014 | $282,014 |
| 2007 | $155,715 | $91,451 | $0 | $247,166 | $247,166 |
Deed and Sales History
| 1 | 08/05/2025 | WD | Warranty Deed | REULAND JTWROS, NOEL | SEYMOUR, ALEX | | | $555,000.00 | 64424 | 4589352 |
| 2 | 04/28/2017 | WD | Warranty Deed | BINFORD, RYAN | REULAND JTWROS, NOEL | | | $261,130.00 | 29157 | 4421900 |
| 3 | 02/16/2011 | BARGSLD | Bargain And Sale Deed | FEDERAL NATIONAL MORTGAGE ASSOCIATION | BINFORD, RYAN | | | $179,900.00 | 3827 | 4292049 |
| 4 | 12/08/2010 | TRUSTEED | Trustee's Deed | THOMPSEN, HANS O | FEDERAL NATIONAL MORTGAGE ASSOCIATION | | | $262,331.00 | 3091 | 4286604 |
| 5 | 12/06/2007 | WD | Warranty Deed | RANGER PACIFIC, INC, | THOMPSEN, HANS O | | | $297,300.00 | 73956 | 4217643 |
| 6 | 11/14/2007 | QCD | Quit Claim Deed | ANGER, RONALD B | RANGER PACIFIC, INC, | | | $0.00 | 73955 | 4217642 |
| 7 | 08/13/2007 | QCD | Quit Claim Deed | RANGER PACIFIC LLC, | ANGER, RONALD B | | | $0.00 | 72769 | 4209540 |
| 8 | 01/24/2007 | QCD | Quit Claim Deed | ANGER, RONALD B | RANGER PACIFIC LLC, | | | $0.00 | 70249 | 4192585 |
| 9 | 08/23/2006 | WD | Warranty Deed | ENDRES, GARY ROBERT | ANGER, RONALD B | | | $69,000.00 | 63674 | 4179992 |
| 10 | 03/18/2005 | WD | Warranty Deed | DALEY, RICHARD B | ENDRES, GARY ROBERT | | | $60,000.00 | 51118 | 1428925 |
| 11 | 12/01/1997 | QCD | Quit Claim Deed | DALEY, RICK | DALEY, RICHARD B | | | $0.00 | 74563 | 97021670 |
| 12 | 09/01/1995 | REC | Real Estate Contract | ASHER, CARL E | DALEY, RICK | | | $500.00 | 53411 | 0 |
| 13 | 02/01/1991 | WD | Warranty Deed | GABELEIN, DUANE L | ASHER, CARL E | | | $30,000.00 | 10619 | 91002820 |
| 14 | 01/01/1900 | OTHER | Other - Misc. Documents | GABELEIN, DUANE L | GABELEIN, DUANE L | | | $0.00 | 0 | 0 |
| 15 | 01/01/1900 | OTHER | Other - Misc. Documents | Unknown | GABELEIN, DUANE L | | | $0.00 | 0 | 0 |
Payout Agreement
| No payout information available.. |