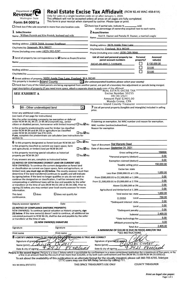
Property
Account |
| Property ID: | 400248 | Abbreviated Legal Description: | SUNLIGHT SHORES #2 LOTS 45 & 46 |
| Geographic ID: | S8225-02-00045-0 | Agent Code: | |
| Type: | Real | | |
| Tax Area: | 710 - APPRAISER-S Whid Schl Dist, outside Langley, improved & 1 acre or less | Land Use Code | 11 |
| Open Space: | N | DFL | N |
| Historic Property: | N | Remodel Property: | N |
| Multi-Family Redevelopment: | N | | |
| Township: | | Section: | |
| Range: | |
Location |
| Address: | 2868 LONGHOUSE LN CLINTON, WA 98236 | Mapsco: | |
| Neighborhood: | Cycle 4 | Map ID: | 791 |
| Neighborhood CD: | 4 |
Owner |
| Name: | HENN, BROOKE A | Owner ID: | 293345 |
| Mailing Address: | ANDREW E HESS 2868 LONGHOUSE LN CLINTON, WA 98236 | % Ownership: | 100.0000000000% |
| | | Exemptions: | |
Taxes and Assessment Details
Values
| (+) Improvement Homesite Value: | + | $0 | |
| (+) Improvement Non-Homesite Value: | + | $152,992 | |
| (+) Land Homesite Value: | + | $0 | |
| (+) Land Non-Homesite Value: | + | $240,000 | |
| (+) Curr Use (HS): | + | $0 | $0 |
| (+) Curr Use (NHS): | + | $0 | $0 |
| | | -------------------------- | |
| (=) Market Value: | = | $392,992 | |
| (–) Productivity Loss: | – | $0 | |
| | | -------------------------- | |
| (=) Subtotal: | = | $392,992 | |
| (+) Senior Appraised Value: | + | $0 | |
| (+) Non-Senior Appraised Value: | + | $392,992 | |
| | | -------------------------- | |
| (=) Total Appraised Value: | = | $392,992 | |
| (–) Senior Exemption Loss: | – | $0 | |
| (–) Exemption Loss: | – | $0 | |
| | | -------------------------- | |
| (=) Taxable Value: | = | $392,992 | |
Taxing Jurisdiction
| Owner: | HENN, BROOKE A | | |
| % Ownership: | 100.0000000000% | | |
| Total Value: | $392,992 | | |
| Tax Area: | 710 - APPRAISER-S Whid Schl Dist, outside Langley, improved & 1 acre or less |
| CF | Conservation Futures | 0.0316035091 | $392,992 | $392,992 | $12.42 | | |
| FIRE3 | Fire & Rescue Dist #3 S Whidbey GEN | 1.2004855531 | $392,992 | $392,992 | $471.78 | | |
| HOBOND | Hospital BOND | 0.1910887512 | $392,992 | $392,992 | $75.10 | | |
| HOGEN | Hospital GEN | 0.3902502903 | $392,992 | $392,992 | $153.37 | | |
| CE | County Current Expense | 0.3708482477 | $392,992 | $392,992 | $145.74 | | |
| CR | County Roads | 0.4584763726 | $392,992 | $392,992 | $180.18 | | |
| ISLANDEMS | Hospital GEN (EMS) | 0.5000000000 | $392,992 | $392,992 | $196.50 | | |
| LIB | Library Sno-Isle GEN | 0.3153421757 | $392,992 | $392,992 | $123.93 | | |
| PORTWHID | Port of S Whidbey GEN | 0.1094540357 | $392,992 | $392,992 | $43.01 | | |
| SCH206BOND | School 206 BOND | 0.3161759235 | $392,992 | $392,992 | $124.25 | | |
| SCH206MO | School 206 Enrichment | 0.4547169547 | $392,992 | $392,992 | $178.70 | | |
| ST | State School | 1.3035497053 | $392,992 | $392,992 | $512.28 | | |
| ST2 | State School Part 2 | 0.8169543533 | $392,992 | $392,992 | $321.06 | | |
| SWHIDPRBD | P & R S Whidbey BOND | 0.0152817568 | $392,992 | $392,992 | $6.01 | | |
| SWHIDPRBD2 | P & R S Whidbey BOND2 | 0.0138911264 | $392,992 | $392,992 | $5.46 | | |
| SWHIDPRMT | P & R S Whidbey GEN | 0.2053334452 | $392,992 | $392,992 | $80.69 | | |
| | Total Tax Rate: | 6.6934522006 | | | | | |
| | | | | Taxes w/Current Exemptions: | $2,630.48 | | |
| | | | | Taxes w/o Exemptions: | $2,630.48 | | |
Improvement / Building
| Improvement #1: | RESIDENTIAL | State Code: | Y | 936.0 sqft | Value: | $152,992 |
| Bathrooms: | 1 | Bedrooms: | 2 | | Ceiling: | DRYWALL PAINTED | Exterior Wall/Cover: | PLY/HARDBOARD T-111 | | Floor Covering: | CARPET/VINYL 60-40 | Floor Structure: | WOOD W/SUBFLOOR | | Foundation: | CONCRETE | Heating: | BASEBOARD ELECTRIC | | Interior Finish: | DRYWALL PAINT | Plumbing Fixture Cnt: | 6 | | Roof Slope: | 5" IN 12" | Roof Structure/Cover: | CJ ASPHALT |
|
| | Type | Description | Class CD | Sub Class CD | Year Built | Area |
| | BAS | BASE/MAIN FLOOR | 3 | 0 | 1982 | 936.0 |
| | CPD | OPEN CARPORT DIRT FLOOR | 3 | 0 | 1982 | 276.0 |
| | OWP | OPEN WOOD PORCH W/STEPS | 3 | 0 | 1982 | 347.8 |
| | OWR | OPEN WOOD PORCH W/STEPS/ROOF | 3 | 0 | 1982 | 96.0 |
Sketch
Property Image
Land
| 1 | 16 | AC (00.51-01.00) | 0.7900 | 34412.40 | 0.00 | 0.00 | 1.00 | $240,000 | $0 |
Roll Value History
| 2026 | N/A | N/A | N/A | N/A | N/A |
| 2025 | $152,992 | $240,000 | $0 | $392,992 | $392,992 |
| 2024 | $158,315 | $250,000 | $0 | $408,315 | $408,315 |
| 2023 | $160,393 | $250,000 | $0 | $410,393 | $410,393 |
| 2022 | $147,113 | $240,000 | $0 | $387,113 | $387,113 |
| 2021 | $129,562 | $130,000 | $0 | $259,562 | $259,562 |
| 2020 | $107,354 | $130,000 | $0 | $237,354 | $237,354 |
| 2019 | $76,075 | $130,000 | $0 | $206,075 | $206,075 |
| 2018 | $76,350 | $130,000 | $0 | $206,350 | $206,350 |
| 2017 | $76,898 | $120,000 | $0 | $196,898 | $196,898 |
| 2016 | $77,998 | $100,000 | $0 | $177,998 | $177,998 |
| 2015 | $79,095 | $85,000 | $0 | $164,095 | $164,095 |
| 2014 | $76,173 | $106,250 | $0 | $182,423 | $182,423 |
| 2013 | $77,241 | $106,250 | $0 | $183,491 | $183,491 |
| 2012 | $78,311 | $106,250 | $0 | $184,561 | $184,561 |
| 2011 | $79,381 | $125,000 | $0 | $204,381 | $204,381 |
| 2010 | $84,229 | $125,000 | $0 | $209,229 | $209,229 |
| 2009 | $86,864 | $150,000 | $0 | $236,864 | $236,864 |
| 2008 | $89,920 | $158,100 | $0 | $248,020 | $248,020 |
| 2007 | $86,466 | $129,699 | $0 | $216,165 | $216,165 |
Deed and Sales History
| 1 | 01/29/2020 | WD | Warranty Deed | DAVIS, THOMAS E | HENN, BROOKE A | | | $280,450.00 | 41959 | 4480426 |
| 2 | 06/08/2005 | WD | Warranty Deed | SCHULZ, CHARLES L | DAVIS, THOMAS E | | | $170,505.00 | 53043 | 4139062 |
| 3 | 09/01/1993 | QCD | Quit Claim Deed | SCHULZ, CHARLES L | SCHULZ, CHARLES L | | | $0.00 | 33889 | 93020223 |
| 4 | 05/01/1986 | WD | Warranty Deed | NIXON, DONALD R | SCHULZ, CHARLES L | | | $51,900.00 | 61296 | 86006117 |
| 5 | 11/01/1979 | EXECUTORD | Executor Deed | HOECK, SCOTT | NIXON, DONALD R | | | $15,000.00 | 95741 | 362565 |
| 6 | 06/01/1979 | EXECUTORD | Executor Deed | SHUKSAN, CORP | HOECK, SCOTT | | | $11,000.00 | 93087 | 354591 |
| 7 | 01/01/1900 | OTHER | Other - Misc. Documents | Unknown | SHUKSAN, CORP | | | $0.00 | 53855 | 0 |
Payout Agreement
| No payout information available.. |