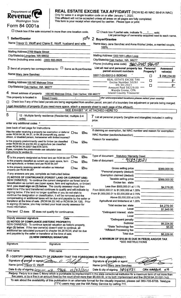
Property
Account |
| Property ID: | 400293 | Abbreviated Legal Description: | SUNLIGHT SH 2 LOT 50 |
| Geographic ID: | S8225-02-00050-0 | Agent Code: | |
| Type: | Real | | |
| Tax Area: | 719 - APPRAISER-S Whid Schl Dist, outside Langley, vacant & 50 acres or less | Land Use Code | 99 |
| Open Space: | N | DFL | N |
| Historic Property: | N | Remodel Property: | N |
| Multi-Family Redevelopment: | N | | |
| Township: | | Section: | |
| Range: | |
Location |
| Address: | | Mapsco: | |
| Neighborhood: | Cycle 4 | Map ID: | 791 |
| Neighborhood CD: | 4 |
Owner |
| Name: | BREWSTER, ROBERT E / GLORIA L | Owner ID: | 137682 |
| Mailing Address: | PO BOX 756 FREELAND, WA 98249 | % Ownership: | 100.0000000000% |
| | | Exemptions: | |
Taxes and Assessment Details
Values
| (+) Improvement Homesite Value: | + | $0 | |
| (+) Improvement Non-Homesite Value: | + | $0 | |
| (+) Land Homesite Value: | + | $0 | |
| (+) Land Non-Homesite Value: | + | $75,000 | |
| (+) Curr Use (HS): | + | $0 | $0 |
| (+) Curr Use (NHS): | + | $0 | $0 |
| | | -------------------------- | |
| (=) Market Value: | = | $75,000 | |
| (–) Productivity Loss: | – | $0 | |
| | | -------------------------- | |
| (=) Subtotal: | = | $75,000 | |
| (+) Senior Appraised Value: | + | $0 | |
| (+) Non-Senior Appraised Value: | + | $75,000 | |
| | | -------------------------- | |
| (=) Total Appraised Value: | = | $75,000 | |
| (–) Senior Exemption Loss: | – | $0 | |
| (–) Exemption Loss: | – | $0 | |
| | | -------------------------- | |
| (=) Taxable Value: | = | $75,000 | |
Taxing Jurisdiction
| Owner: | BREWSTER, ROBERT E / GLORIA L | | |
| % Ownership: | 100.0000000000% | | |
| Total Value: | $75,000 | | |
| Tax Area: | 719 - APPRAISER-S Whid Schl Dist, outside Langley, vacant & 50 acres or less |
| CF | Conservation Futures | 0.0316035091 | $75,000 | $75,000 | $2.37 | | |
| HOBOND | Hospital BOND | 0.1910887512 | $75,000 | $75,000 | $14.33 | | |
| HOGEN | Hospital GEN | 0.3902502903 | $75,000 | $75,000 | $29.27 | | |
| CE | County Current Expense | 0.3708482477 | $75,000 | $75,000 | $27.81 | | |
| CR | County Roads | 0.4584763726 | $75,000 | $75,000 | $34.39 | | |
| ISLANDEMS | Hospital GEN (EMS) | 0.5000000000 | $75,000 | $75,000 | $37.50 | | |
| LIB | Library Sno-Isle GEN | 0.3153421757 | $75,000 | $75,000 | $23.65 | | |
| PORTWHID | Port of S Whidbey GEN | 0.1094540357 | $75,000 | $75,000 | $8.21 | | |
| SCH206BOND | School 206 BOND | 0.3161759235 | $75,000 | $75,000 | $23.71 | | |
| SCH206MO | School 206 Enrichment | 0.4547169547 | $75,000 | $75,000 | $34.10 | | |
| ST | State School | 1.3035497053 | $75,000 | $75,000 | $97.77 | | |
| ST2 | State School Part 2 | 0.8169543533 | $75,000 | $75,000 | $61.27 | | |
| SWHIDPRBD | P & R S Whidbey BOND | 0.0152817568 | $75,000 | $75,000 | $1.15 | | |
| SWHIDPRBD2 | P & R S Whidbey BOND2 | 0.0138911264 | $75,000 | $75,000 | $1.04 | | |
| SWHIDPRMT | P & R S Whidbey GEN | 0.2053334452 | $75,000 | $75,000 | $15.40 | | |
| | Total Tax Rate: | 5.4929666475 | | | | | |
| | | | | Taxes w/Current Exemptions: | $411.97 | | |
| | | | | Taxes w/o Exemptions: | $411.97 | | |
Improvement / Building
Sketch
| No sketches available for this property. |
Property Image
Land
| 1 | 16 | AC (00.51-01.00) | 0.0000 | 0.00 | 0.00 | 0.00 | 1.00 | $75,000 | $0 |
Roll Value History
| 2026 | N/A | N/A | N/A | N/A | N/A |
| 2025 | $0 | $75,000 | $0 | $75,000 | $75,000 |
| 2024 | $0 | $80,000 | $0 | $80,000 | $80,000 |
| 2023 | $0 | $80,000 | $0 | $80,000 | $80,000 |
| 2022 | $0 | $70,000 | $0 | $70,000 | $70,000 |
| 2021 | $0 | $60,000 | $0 | $60,000 | $60,000 |
| 2020 | $0 | $60,000 | $0 | $60,000 | $60,000 |
| 2019 | $0 | $70,000 | $0 | $70,000 | $70,000 |
| 2018 | $0 | $70,000 | $0 | $70,000 | $70,000 |
| 2017 | $0 | $70,000 | $0 | $70,000 | $70,000 |
| 2016 | $0 | $70,000 | $0 | $70,000 | $70,000 |
| 2015 | $0 | $70,000 | $0 | $70,000 | $70,000 |
| 2014 | $0 | $70,000 | $0 | $70,000 | $70,000 |
| 2013 | $0 | $70,000 | $0 | $70,000 | $70,000 |
| 2012 | $0 | $70,000 | $0 | $70,000 | $70,000 |
| 2011 | $0 | $70,000 | $0 | $70,000 | $70,000 |
| 2010 | $0 | $70,000 | $0 | $70,000 | $70,000 |
| 2009 | $0 | $75,000 | $0 | $75,000 | $75,000 |
| 2008 | $0 | $65,000 | $0 | $65,000 | $65,000 |
| 2007 | $0 | $65,000 | $0 | $65,000 | $65,000 |
Deed and Sales History
| 1 | 01/01/1998 | WD | Warranty Deed | DOYLE, SUSAN/TERRAENCE | BREWSTER, ROBERT E | | | $30,000.00 | 80159 | 98000727 |
| 2 | 12/01/1997 | QCD | Quit Claim Deed | BOSTER, MARY F | DOYLE, SUSAN/TERRAENCE | | | $0.00 | 80157 | 98000726 |
| 3 | 02/01/1997 | QCD | Quit Claim Deed | DOYLE, TERRENCE R | BOSTER, MARY F | | | $0.00 | 70388 | 97001749 |
| 4 | 05/01/1993 | WD | Warranty Deed | PETERMAN, LON | DOYLE, TERRENCE R | | | $22,500.00 | 31797 | 93009459 |
| 5 | 02/01/1979 | OTHER | Other - Misc. Documents | Unknown | PETERMAN, LON | | | $49,500.00 | 90627 | 347318 |
Payout Agreement
| No payout information available.. |