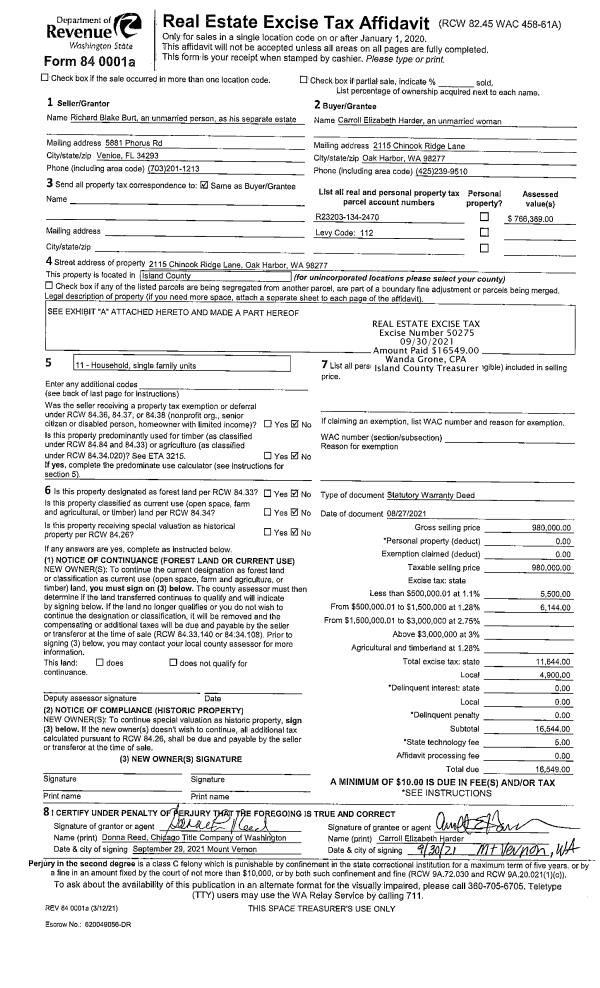
Property
Account |
| Property ID: | 400319 | Abbreviated Legal Description: | SUNLIGHT SH 2 LOT 52 |
| Geographic ID: | S8225-02-00052-0 | Agent Code: | |
| Type: | Real | | |
| Tax Area: | 710 - APPRAISER-S Whid Schl Dist, outside Langley, improved & 1 acre or less | Land Use Code | 11 |
| Open Space: | N | DFL | N |
| Historic Property: | N | Remodel Property: | N |
| Multi-Family Redevelopment: | N | | |
| Township: | | Section: | |
| Range: | |
Location |
| Address: | 2812 SUNLIGHT DR CLINTON, WA 98236 | Mapsco: | |
| Neighborhood: | Cycle 4 | Map ID: | 791 |
| Neighborhood CD: | 4 |
Owner |
| Name: | JOHNSON, JASON | Owner ID: | 305364 |
| Mailing Address: | 1702 EAST CADLEFISH LN LANGLEY, WA 98260 | % Ownership: | 100.0000000000% |
| | | Exemptions: | |
Taxes and Assessment Details
Values
| (+) Improvement Homesite Value: | + | $0 | |
| (+) Improvement Non-Homesite Value: | + | $177,877 | |
| (+) Land Homesite Value: | + | $0 | |
| (+) Land Non-Homesite Value: | + | $240,000 | |
| (+) Curr Use (HS): | + | $0 | $0 |
| (+) Curr Use (NHS): | + | $0 | $0 |
| | | -------------------------- | |
| (=) Market Value: | = | $417,877 | |
| (–) Productivity Loss: | – | $0 | |
| | | -------------------------- | |
| (=) Subtotal: | = | $417,877 | |
| (+) Senior Appraised Value: | + | $0 | |
| (+) Non-Senior Appraised Value: | + | $417,877 | |
| | | -------------------------- | |
| (=) Total Appraised Value: | = | $417,877 | |
| (–) Senior Exemption Loss: | – | $0 | |
| (–) Exemption Loss: | – | $0 | |
| | | -------------------------- | |
| (=) Taxable Value: | = | $417,877 | |
Taxing Jurisdiction
| Owner: | JOHNSON, JASON | | |
| % Ownership: | 100.0000000000% | | |
| Total Value: | $417,877 | | |
| Tax Area: | 710 - APPRAISER-S Whid Schl Dist, outside Langley, improved & 1 acre or less |
| CF | Conservation Futures | 0.0316035091 | $417,877 | $417,877 | $13.21 | | |
| FIRE3 | Fire & Rescue Dist #3 S Whidbey GEN | 1.2004855531 | $417,877 | $417,877 | $501.66 | | |
| HOBOND | Hospital BOND | 0.1910887512 | $417,877 | $417,877 | $79.85 | | |
| HOGEN | Hospital GEN | 0.3902502903 | $417,877 | $417,877 | $163.08 | | |
| CE | County Current Expense | 0.3708482477 | $417,877 | $417,877 | $154.97 | | |
| CR | County Roads | 0.4584763726 | $417,877 | $417,877 | $191.59 | | |
| ISLANDEMS | Hospital GEN (EMS) | 0.5000000000 | $417,877 | $417,877 | $208.94 | | |
| LIB | Library Sno-Isle GEN | 0.3153421757 | $417,877 | $417,877 | $131.77 | | |
| PORTWHID | Port of S Whidbey GEN | 0.1094540357 | $417,877 | $417,877 | $45.74 | | |
| SCH206BOND | School 206 BOND | 0.3161759235 | $417,877 | $417,877 | $132.12 | | |
| SCH206MO | School 206 Enrichment | 0.4547169547 | $417,877 | $417,877 | $190.02 | | |
| ST | State School | 1.3035497053 | $417,877 | $417,877 | $544.72 | | |
| ST2 | State School Part 2 | 0.8169543533 | $417,877 | $417,877 | $341.39 | | |
| SWHIDPRBD | P & R S Whidbey BOND | 0.0152817568 | $417,877 | $417,877 | $6.39 | | |
| SWHIDPRBD2 | P & R S Whidbey BOND2 | 0.0138911264 | $417,877 | $417,877 | $5.80 | | |
| SWHIDPRMT | P & R S Whidbey GEN | 0.2053334452 | $417,877 | $417,877 | $85.80 | | |
| | Total Tax Rate: | 6.6934522006 | | | | | |
| | | | | Taxes w/Current Exemptions: | $2,797.05 | | |
| | | | | Taxes w/o Exemptions: | $2,797.05 | | |
Improvement / Building
| Improvement #1: | RESIDENTIAL | State Code: | Y | 1040.0 sqft | Value: | $177,877 |
| Bathrooms: | 2 | Bedrooms: | 3 | | Ceiling: | ACOUSTIC FURRED | Exterior Wall/Cover: | WOOD SIDING | | Floor Covering: | CARPET/VINYL 80-20 | Floor Structure: | WOOD W/SUBFLOOR | | Foundation: | CONCRETE | Heating: | BASEBOARD ELECTRIC | | Interior Finish: | DRYWALL PAINT | Plumbing Fixture Cnt: | 9 | | Roof Slope: | 4" IN 12" | Roof Structure/Cover: | CJ ALUMINIUM HEAVY |
|
| | Type | Description | Class CD | Sub Class CD | Year Built | Area |
| | BAS | BASE/MAIN FLOOR | 3 | 0 | 1955 | 1040.0 |
| | OP3 | OPEN PORCH W/ROOF | 3 | 0 | 1955 | 72.0 |
| | UTY | STORAGE/UTILITY | 3 | 0 | 1955 | 54.0 |
| | OWP | OPEN WOOD PORCH W/STEPS | 3 | 0 | 1955 | 80.0 |
| | OWR | OPEN WOOD PORCH W/STEPS/ROOF | 3 | 0 | 1955 | 114.0 |
Sketch
Property Image
Land
| 1 | 16 | AC (00.51-01.00) | 0.0000 | 0.00 | 0.00 | 0.00 | 1.00 | $240,000 | $0 |
Roll Value History
| 2026 | N/A | N/A | N/A | N/A | N/A |
| 2025 | $177,877 | $240,000 | $0 | $417,877 | $417,877 |
| 2024 | $183,682 | $250,000 | $0 | $433,682 | $433,682 |
| 2023 | $186,123 | $250,000 | $0 | $436,123 | $436,123 |
| 2022 | $170,747 | $240,000 | $0 | $410,747 | $410,747 |
| 2021 | $150,399 | $130,000 | $0 | $280,399 | $280,399 |
| 2020 | $125,979 | $130,000 | $0 | $255,979 | $255,979 |
| 2019 | $88,355 | $130,000 | $0 | $218,355 | $218,355 |
| 2018 | $88,674 | $130,000 | $0 | $218,674 | $218,674 |
| 2017 | $89,312 | $120,000 | $0 | $209,312 | $209,312 |
| 2016 | $90,588 | $100,000 | $0 | $190,588 | $190,588 |
| 2015 | $91,863 | $85,000 | $0 | $176,863 | $176,863 |
| 2014 | $93,140 | $106,250 | $0 | $199,390 | $199,390 |
| 2013 | $75,407 | $106,250 | $0 | $181,657 | $181,657 |
| 2012 | $76,753 | $106,250 | $0 | $183,003 | $183,003 |
| 2011 | $78,099 | $125,000 | $0 | $203,099 | $203,099 |
| 2010 | $83,321 | $125,000 | $0 | $208,321 | $208,321 |
| 2009 | $87,198 | $150,000 | $0 | $237,198 | $237,198 |
| 2008 | $84,269 | $170,000 | $0 | $254,269 | $254,269 |
| 2007 | $89,855 | $135,000 | $0 | $224,855 | $224,855 |
Deed and Sales History
| 1 | 08/04/2022 | WD | Warranty Deed | UHLIG, GARY L | JOHNSON, JASON | | | $399,000.00 | 54058 | 4549244 |
| 2 | 08/08/2013 | WD | Warranty Deed | THOMPSON TRUSTEE, MICHAEL T | UHLIG, GARY L | | | $169,000.00 | 12341 | 4346030 |
| 3 | 12/21/2007 | QCD | Quit Claim Deed | THOMPSON, MICHAEL T | THOMPSON TRUSTEE, MICHAEL T | | | $0.00 | 74077 | 4218589 |
| 4 | 01/01/1995 | QCD | Quit Claim Deed | THOMPSON, MICHAEL T | THOMPSON, MICHAEL T | | | $0.00 | 50548 | 95002635 |
| 5 | 04/01/1991 | WD | Warranty Deed | SUNLIGHT, SHORES C | THOMPSON, MICHAEL T | | | $19,000.00 | 11321 | 91005678 |
| 6 | 12/01/1988 | SHERIFFD | Sheriff Deed | SUNLIGHT, SHORES C | SUNLIGHT, SHORES C | | | $0.00 | 90231 | 89000825 |
| 7 | 03/01/1986 | QCD | Quit Claim Deed | MILLER, LILLIAN E | SUNLIGHT, SHORES C | | | $0.00 | 60768 | 86003598 |
| 8 | 07/01/1965 | TRUSTEED | Trustee's Deed | SHUKSAN, CORPORATION | MILLER, LILLIAN E | | | $0.00 | 19248 | 0 |
| 9 | 01/01/1900 | OTHER | Other - Misc. Documents | Unknown | SHUKSAN, CORPORATION | | | $0.00 | 0 | 0 |
Payout Agreement
| No payout information available.. |