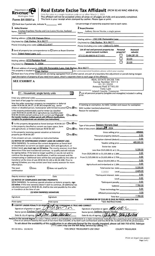
Property
Account |
| Property ID: | 400346 | Abbreviated Legal Description: | SUNNY HILL LOT 1 |
| Geographic ID: | S8230-00-00001-0 | Agent Code: | |
| Type: | Real | | |
| Tax Area: | 510 - APPRAISER-Stan/Cam Schl Dist, improved & 1 acre or less | Land Use Code | 11 |
| Open Space: | N | DFL | N |
| Historic Property: | N | Remodel Property: | N |
| Multi-Family Redevelopment: | N | | |
| Township: | | Section: | |
| Range: | |
Location |
| Address: | 695 VALLEY ST CAMANO ISLAND, WA 98282 | Mapsco: | |
| Neighborhood: | North Camano | Map ID: | 577 |
| Neighborhood CD: | 06-C |
Owner |
| Name: | PEARSON, BARAK | Owner ID: | 276004 |
| Mailing Address: | KIMBERELEY PEARSON 695 VALLEY ST CAMANO ISLAND, WA 98282 | % Ownership: | 100.0000000000% |
| | | Exemptions: | |
Taxes and Assessment Details
Values
| (+) Improvement Homesite Value: | + | $0 | |
| (+) Improvement Non-Homesite Value: | + | $214,126 | |
| (+) Land Homesite Value: | + | $0 | |
| (+) Land Non-Homesite Value: | + | $230,000 | |
| (+) Curr Use (HS): | + | $0 | $0 |
| (+) Curr Use (NHS): | + | $0 | $0 |
| | | -------------------------- | |
| (=) Market Value: | = | $444,126 | |
| (–) Productivity Loss: | – | $0 | |
| | | -------------------------- | |
| (=) Subtotal: | = | $444,126 | |
| (+) Senior Appraised Value: | + | $0 | |
| (+) Non-Senior Appraised Value: | + | $444,126 | |
| | | -------------------------- | |
| (=) Total Appraised Value: | = | $444,126 | |
| (–) Senior Exemption Loss: | – | $0 | |
| (–) Exemption Loss: | – | $0 | |
| | | -------------------------- | |
| (=) Taxable Value: | = | $444,126 | |
Taxing Jurisdiction
| Owner: | PEARSON, BARAK | | |
| % Ownership: | 100.0000000000% | | |
| Total Value: | $444,126 | | |
| Tax Area: | 510 - APPRAISER-Stan/Cam Schl Dist, improved & 1 acre or less |
| CF | Conservation Futures | 0.0316035091 | $444,126 | $444,126 | $14.04 | | |
| EMS1 | Fire & Rescue Dist #1 Camano GEN (EMS) | 0.3677864386 | $444,126 | $444,126 | $163.34 | | |
| FIRE1 | Fire & Rescue Dist #1 Camano GEN | 1.2502910536 | $444,126 | $444,126 | $555.29 | | |
| FIRE1BOND | Fire & Rescue Dist #1 Camano BOND | 0.1570001679 | $444,126 | $444,126 | $69.73 | | |
| CE | County Current Expense | 0.3708482477 | $444,126 | $444,126 | $164.70 | | |
| CR | County Roads | 0.4584763726 | $444,126 | $444,126 | $203.62 | | |
| LCIB | Library Sno-Isle BOND (Camano Island) | 0.0396325772 | $444,126 | $444,126 | $17.60 | | |
| LIB | Library Sno-Isle GEN | 0.3153421757 | $444,126 | $444,126 | $140.05 | | |
| SCH205_401 | School 205-401 Enrichment | 1.2698420524 | $444,126 | $444,126 | $563.97 | | |
| SCH205BOND | School 205-401 BOND | 0.9396497583 | $444,126 | $444,126 | $417.32 | | |
| ST | State School | 1.3035497053 | $444,126 | $444,126 | $578.94 | | |
| ST2 | State School Part 2 | 0.8169543533 | $444,126 | $444,126 | $362.83 | | |
| | Total Tax Rate: | 7.3209764117 | | | | | |
| | | | | Taxes w/Current Exemptions: | $3,251.43 | | |
| | | | | Taxes w/o Exemptions: | $3,251.43 | | |
Improvement / Building
| Improvement #1: | RESIDENTIAL | State Code: | Y | 1002.0 sqft | Value: | $214,126 |
| Bathrooms: | 2 | Bedrooms: | 2 | | Ceiling: | DRYWALL PAINTED | Cooling: | HEAT PUMP/CONV/V | | Exterior Wall/Cover: | PLY/HARDBOARD T-111 | Floor Covering: | CARPET/VINYL 60-40 | | Floor Structure: | WOOD W/SUBFLOOR | Foundation: | CONCRETE | | Interior Finish: | DRYWALL PAINT | Plumbing Fixture Cnt: | 9 | | Roof Slope: | 4" IN 12" | Roof Structure/Cover: | CJ ASPHALT |
|
| | Type | Description | Class CD | Sub Class CD | Year Built | Area |
| | BAS | BASE/MAIN FLOOR | 3 | 0 | 1994 | 1002.0 |
| | OP4 | OPEN PORCH W/CEILING-ROOF | 3 | 0 | 1994 | 18.0 |
| | AGR | ATTACHED GARAGE | 3 | 0 | 1994 | 470.0 |
| | OWP | OPEN WOOD PORCH W/STEPS | 3 | 0 | 1994 | 313.0 |
Sketch
Property Image
Land
| 1 | 13 | SQ (06001-08000) | 0.0000 | 0.00 | 0.00 | 0.00 | 1.00 | $230,000 | $0 |
Roll Value History
| 2026 | N/A | N/A | N/A | N/A | N/A |
| 2025 | $214,126 | $230,000 | $0 | $444,126 | $444,126 |
| 2024 | $216,638 | $230,000 | $0 | $446,638 | $446,638 |
| 2023 | $219,150 | $230,000 | $0 | $449,150 | $449,150 |
| 2022 | $183,274 | $210,000 | $0 | $393,274 | $393,274 |
| 2021 | $155,552 | $150,000 | $0 | $305,552 | $305,552 |
| 2020 | $150,943 | $130,000 | $0 | $280,943 | $280,943 |
| 2019 | $104,673 | $120,000 | $0 | $224,673 | $224,673 |
| 2018 | $104,976 | $100,000 | $0 | $204,976 | $204,976 |
| 2017 | $105,583 | $100,000 | $0 | $205,583 | $205,583 |
| 2016 | $98,606 | $90,000 | $0 | $188,606 | $188,606 |
| 2015 | $99,853 | $66,400 | $0 | $166,253 | $166,253 |
| 2014 | $101,101 | $66,400 | $0 | $167,501 | $167,501 |
| 2013 | $102,350 | $66,400 | $0 | $168,750 | $168,750 |
| 2012 | $103,598 | $66,400 | $0 | $169,998 | $169,998 |
| 2011 | $104,845 | $83,000 | $0 | $187,845 | $187,845 |
| 2010 | $106,822 | $83,000 | $0 | $189,822 | $189,822 |
| 2009 | $111,281 | $100,000 | $0 | $211,281 | $211,281 |
| 2008 | $112,849 | $100,000 | $0 | $212,849 | $212,849 |
| 2007 | $114,394 | $100,000 | $0 | $214,394 | $214,394 |
Deed and Sales History
| 1 | 07/07/2016 | WD | Warranty Deed | REECE, DENNIS | PEARSON, BARAK | | | $219,500.00 | 25178 | 4402890 |
| 2 | 06/07/2000 | WD | Warranty Deed | WOLF, THEODORE E | REECE, DENNIS | | | $117,000.00 | 2197 | 20010506 |
| 3 | 07/01/1993 | QCD | Quit Claim Deed | WOLF, THEODORE E | WOLF, THEODORE E | | | $0.00 | 32745 | 93014236 |
| 4 | 07/01/1993 | QCD | Quit Claim Deed | WOLF, LELA E | WOLF, THEODORE E | | | $0.00 | 32746 | 93014237 |
| 5 | 10/01/1991 | WD | Warranty Deed | HOLBECK, CONST & | WOLF, LELA E | | | $10,000.00 | 13701 | 91015890 |
| 6 | 08/01/1991 | WD | Warranty Deed | SCHWENK, ROBERT L | HOLBECK, CONST & | | | $8,508.00 | 13064 | 91013075 |
| 7 | 03/01/1979 | OTHER | Other - Misc. Documents | Unknown | SCHWENK, ROBERT L | | | $70,000.00 | 90920 | 348345 |
Payout Agreement
| No payout information available.. |