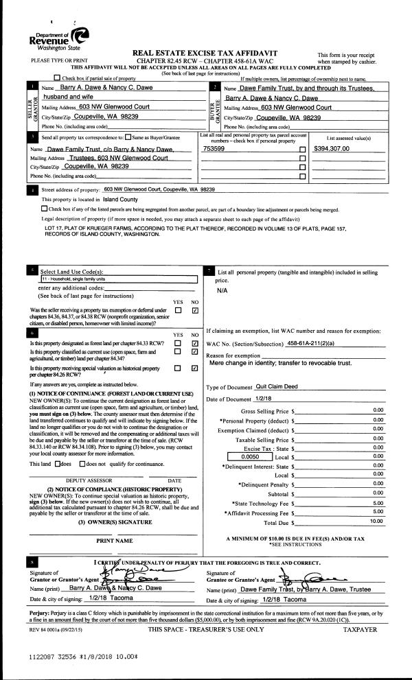
Property
Account |
| Property ID: | 400550 | Abbreviated Legal Description: | SUNNY LN HGTS LOT 4 |
| Geographic ID: | S8235-00-00004-0 | Agent Code: | |
| Type: | Real | | |
| Tax Area: | 512 - APPRAISER-Stan/Cam Schl Dist, improved, greater than 1 acre | Land Use Code | 11 |
| Open Space: | N | DFL | N |
| Historic Property: | N | Remodel Property: | N |
| Multi-Family Redevelopment: | N | | |
| Township: | | Section: | |
| Range: | |
Location |
| Address: | 738 SUNNY LN CAMANO ISLAND, WA 98282 | Mapsco: | |
| Neighborhood: | Cycle 5 | Map ID: | 455 |
| Neighborhood CD: | 5 |
Owner |
| Name: | BLANK TTEE, DOUGLAS D | Owner ID: | 306247 |
| Mailing Address: | KATHLEEN S. BLANK TTEE PO BOX 688 STANWOOD, WA 98292 | % Ownership: | 100.0000000000% |
| | | Exemptions: | |
Taxes and Assessment Details
Values
| (+) Improvement Homesite Value: | + | $0 | |
| (+) Improvement Non-Homesite Value: | + | $577,987 | |
| (+) Land Homesite Value: | + | $0 | |
| (+) Land Non-Homesite Value: | + | $260,000 | |
| (+) Curr Use (HS): | + | $0 | $0 |
| (+) Curr Use (NHS): | + | $0 | $0 |
| | | -------------------------- | |
| (=) Market Value: | = | $837,987 | |
| (–) Productivity Loss: | – | $0 | |
| | | -------------------------- | |
| (=) Subtotal: | = | $837,987 | |
| (+) Senior Appraised Value: | + | $0 | |
| (+) Non-Senior Appraised Value: | + | $837,987 | |
| | | -------------------------- | |
| (=) Total Appraised Value: | = | $837,987 | |
| (–) Senior Exemption Loss: | – | $0 | |
| (–) Exemption Loss: | – | $0 | |
| | | -------------------------- | |
| (=) Taxable Value: | = | $837,987 | |
Taxing Jurisdiction
| Owner: | BLANK TTEE, DOUGLAS D | | |
| % Ownership: | 100.0000000000% | | |
| Total Value: | $837,987 | | |
| Tax Area: | 512 - APPRAISER-Stan/Cam Schl Dist, improved, greater than 1 acre |
| CF | Conservation Futures | 0.0316035091 | $837,987 | $837,987 | $26.48 | | |
| EMS1 | Fire & Rescue Dist #1 Camano GEN (EMS) | 0.3677864386 | $837,987 | $837,987 | $308.20 | | |
| FIRE1 | Fire & Rescue Dist #1 Camano GEN | 1.2502910536 | $837,987 | $837,987 | $1,047.73 | | |
| FIRE1BOND | Fire & Rescue Dist #1 Camano BOND | 0.1570001679 | $837,987 | $837,987 | $131.56 | | |
| CE | County Current Expense | 0.3708482477 | $837,987 | $837,987 | $310.77 | | |
| CR | County Roads | 0.4584763726 | $837,987 | $837,987 | $384.20 | | |
| LCIB | Library Sno-Isle BOND (Camano Island) | 0.0396325772 | $837,987 | $837,987 | $33.21 | | |
| LIB | Library Sno-Isle GEN | 0.3153421757 | $837,987 | $837,987 | $264.25 | | |
| SCH205_401 | School 205-401 Enrichment | 1.2698420524 | $837,987 | $837,987 | $1,064.11 | | |
| SCH205BOND | School 205-401 BOND | 0.9396497583 | $837,987 | $837,987 | $787.41 | | |
| ST | State School | 1.3035497053 | $837,987 | $837,987 | $1,092.36 | | |
| ST2 | State School Part 2 | 0.8169543533 | $837,987 | $837,987 | $684.60 | | |
| | Total Tax Rate: | 7.3209764117 | | | | | |
| | | | | Taxes w/Current Exemptions: | $6,134.88 | | |
| | | | | Taxes w/o Exemptions: | $6,134.88 | | |
Improvement / Building
| Improvement #1: | RESIDENTIAL | State Code: | Y | 2715.0 sqft | Value: | $577,987 |
| Bathrooms: | 2.5 | Bedrooms: | 3 | | Ceiling: | DRYWALL PAINTED | Cooling: | HEAT PUMP/CONV/V | | Exterior Wall/Cover: | CEMENT FIBER | Floor Covering: | CARPET/VINYL 60-40 | | Floor Structure: | WOOD W/SUBFLOOR | Foundation: | CONCRETE | | Interior Finish: | DRYWALL PAINT | Plumbing Fixture Cnt: | 14 | | Roof Slope: | 6" IN 12" | Roof Structure/Cover: | CJ ASPHALT |
|
| | Type | Description | Class CD | Sub Class CD | Year Built | Area |
| | BAS | BASE/MAIN FLOOR | 4 | 0 | 2020 | 2715.0 |
| | AGR | ATTACHED GARAGE | 4 | 0 | 2020 | 960.0 |
| | OWR | OPEN WOOD PORCH W/STEPS/ROOF | 4 | 0 | 2020 | 70.0 |
| | oPOL | POLE BARN | 4 | 0 | 2020 | 650.0 |
| | OP4 | OPEN PORCH W/CEILING-ROOF | 4 | 0 | 2020 | 50.0 |
Sketch
Property Image
Land
| 1 | 18 | AC (02.01-03.00) | 2.3000 | 100188.00 | 0.00 | 0.00 | 1.00 | $260,000 | $0 |
Roll Value History
| 2026 | N/A | N/A | N/A | N/A | N/A |
| 2025 | $577,987 | $260,000 | $0 | $837,987 | $837,987 |
| 2024 | $582,480 | $260,000 | $0 | $842,480 | $842,480 |
| 2023 | $586,974 | $260,000 | $0 | $846,974 | $846,974 |
| 2022 | $538,476 | $260,000 | $0 | $798,476 | $798,476 |
| 2021 | $482,721 | $180,000 | $0 | $662,721 | $662,721 |
| 2020 | $474,827 | $180,000 | $0 | $654,827 | $654,827 |
| 2019 | $0 | $90,000 | $0 | $90,000 | $90,000 |
| 2018 | $0 | $80,000 | $0 | $80,000 | $80,000 |
| 2017 | $0 | $80,000 | $0 | $80,000 | $80,000 |
| 2016 | $0 | $75,000 | $0 | $75,000 | $75,000 |
| 2015 | $0 | $112,000 | $0 | $112,000 | $112,000 |
| 2014 | $0 | $112,000 | $0 | $112,000 | $112,000 |
| 2013 | $0 | $112,000 | $0 | $112,000 | $112,000 |
| 2012 | $0 | $112,000 | $0 | $112,000 | $112,000 |
| 2011 | $0 | $112,000 | $0 | $112,000 | $112,000 |
| 2010 | $0 | $112,000 | $0 | $112,000 | $112,000 |
| 2009 | $0 | $135,000 | $0 | $135,000 | $135,000 |
| 2008 | $0 | $145,000 | $0 | $145,000 | $145,000 |
| 2007 | $0 | $140,000 | $0 | $140,000 | $140,000 |
Deed and Sales History
| 1 | 09/08/2022 | QCD | Quit Claim Deed | BLANK, DOUGLAS D | BLANK TTEE, DOUGLAS D | | | $0.00 | 54625 | 4551564 |
| 2 | 01/23/2018 | WD | Warranty Deed | FALKANGER, RUTH E | BLANK, DOUGLAS D | | | $83,000.00 | 32720 | 4438077 |
| 3 | 08/26/2003 | CPADC | Comm Prop Agmnt & Death Cert | FALKANGER, FRED C | FALKANGER, RUTH E | | | $0.00 | 20562 | 4384011 |
| 4 | 06/12/2003 | WD | Warranty Deed | GREEK, CONSTRUCTION C | FALKANGER, FRED C | | | $55,000.00 | 32544 | 4063205 |
| 5 | 12/01/1996 | QCD | Quit Claim Deed | PHILLIPS, JOHN L | GREEK, CONSTRUCTION C | | | $0.00 | 64429 | 96021588 |
| 6 | 12/01/1996 | WD | Warranty Deed | HARBISON, DANNY L | PHILLIPS, JOHN L | | | $17,500.00 | 64430 | 96021589 |
| 7 | 09/01/1996 | WD | Warranty Deed | BIGLEMAN, WILLIAM S | HARBISON, DANNY L | | | $30,000.00 | 63224 | 96015738 |
| 8 | 09/01/1995 | DECREE | Divorce Decree/Legal Separation | BIGLEMAN, WILLIAM S | BIGLEMAN, WILLIAM S | | | $0.00 | 53318 | 95015258 |
| 9 | 09/01/1990 | WD | Warranty Deed | SCHMOLL, GEORGE | BIGLEMAN, WILLIAM S | | | $16,000.00 | 5404 | 90018060 |
| 10 | 10/01/1979 | EZ | Easement | WILTSHIRE, H J | SCHMOLL, GEORGE | | | $8,500.00 | 95287 | 361133 |
| 11 | 01/01/1900 | OTHER | Other - Misc. Documents | Unknown | WILTSHIRE, H J | | | $0.00 | 0 | 0 |
Payout Agreement
| No payout information available.. |