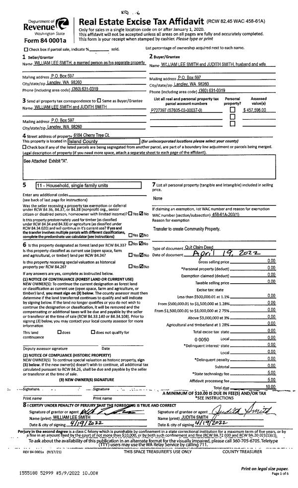
Property
Account |
| Property ID: | 400701 | Abbreviated Legal Description: | SUNNY SH AC LOT 25 INCL ADJ TIDES TGW & SUBJ TO EZ AF#89015649 |
| Geographic ID: | S8240-00-00025-0 | Agent Code: | |
| Type: | Real | | |
| Tax Area: | 542 - APPRAISER-Stan/Cam Schl Dist, Special Dist, improved, greater than 1 acre | Land Use Code | 11 |
| Open Space: | N | DFL | N |
| Historic Property: | N | Remodel Property: | N |
| Multi-Family Redevelopment: | N | | |
| Township: | | Section: | |
| Range: | |
Location |
| Address: | 1268 TALAGWA LN CAMANO ISLAND, WA 98282 | Mapsco: | |
| Neighborhood: | Cycle 5 | Map ID: | 850 |
| Neighborhood CD: | 5 |
Owner |
| Name: | ESTES, ALAN R | Owner ID: | 67703 |
| Mailing Address: | CHERYL A ESTES 1268 TALAGWA LN CAMANO ISLAND, WA 98282 | % Ownership: | 100.0000000000% |
| | | Exemptions: | |
Taxes and Assessment Details
Values
| (+) Improvement Homesite Value: | + | $0 | |
| (+) Improvement Non-Homesite Value: | + | $657,400 | |
| (+) Land Homesite Value: | + | $0 | |
| (+) Land Non-Homesite Value: | + | $626,000 | |
| (+) Curr Use (HS): | + | $0 | $0 |
| (+) Curr Use (NHS): | + | $0 | $0 |
| | | -------------------------- | |
| (=) Market Value: | = | $1,283,400 | |
| (–) Productivity Loss: | – | $0 | |
| | | -------------------------- | |
| (=) Subtotal: | = | $1,283,400 | |
| (+) Senior Appraised Value: | + | $0 | |
| (+) Non-Senior Appraised Value: | + | $1,283,400 | |
| | | -------------------------- | |
| (=) Total Appraised Value: | = | $1,283,400 | |
| (–) Senior Exemption Loss: | – | $0 | |
| (–) Exemption Loss: | – | $0 | |
| | | -------------------------- | |
| (=) Taxable Value: | = | $1,283,400 | |
Taxing Jurisdiction
| Owner: | ESTES, ALAN R | | |
| % Ownership: | 100.0000000000% | | |
| Total Value: | $1,283,400 | | |
| Tax Area: | 542 - APPRAISER-Stan/Cam Schl Dist, Special Dist, improved, greater than 1 acre |
| CF | Conservation Futures | 0.0316035091 | $1,283,400 | $1,283,400 | $40.56 | | |
| EMS1 | Fire & Rescue Dist #1 Camano GEN (EMS) | 0.3677864386 | $1,283,400 | $1,283,400 | $472.02 | | |
| FIRE1 | Fire & Rescue Dist #1 Camano GEN | 1.2502910536 | $1,283,400 | $1,283,400 | $1,604.62 | | |
| FIRE1BOND | Fire & Rescue Dist #1 Camano BOND | 0.1570001679 | $1,283,400 | $1,283,400 | $201.49 | | |
| CE | County Current Expense | 0.3708482477 | $1,283,400 | $1,283,400 | $475.95 | | |
| CR | County Roads | 0.4584763726 | $1,283,400 | $1,283,400 | $588.41 | | |
| LCIB | Library Sno-Isle BOND (Camano Island) | 0.0396325772 | $1,283,400 | $1,283,400 | $50.86 | | |
| LIB | Library Sno-Isle GEN | 0.3153421757 | $1,283,400 | $1,283,400 | $404.71 | | |
| SCH205_401 | School 205-401 Enrichment | 1.2698420524 | $1,283,400 | $1,283,400 | $1,629.72 | | |
| SCH205BOND | School 205-401 BOND | 0.9396497583 | $1,283,400 | $1,283,400 | $1,205.95 | | |
| ST | State School | 1.3035497053 | $1,283,400 | $1,283,400 | $1,672.98 | | |
| ST2 | State School Part 2 | 0.8169543533 | $1,283,400 | $1,283,400 | $1,048.48 | | |
| | Total Tax Rate: | 7.3209764117 | | | | | |
| | | | | Taxes w/Current Exemptions: | $9,395.75 | | |
| | | | | Taxes w/o Exemptions: | $9,395.75 | | |
Improvement / Building
| Improvement #1: | RESIDENTIAL | State Code: | Y | 2652.5 sqft | Value: | $657,400 |
| Bathrooms: | 3 | Bedrooms: | 3 | | Ceiling: | DRYWALL PAINTED | Cooling: | HEAT PUMP/CONV/V | | Exterior Wall/Cover: | WOOD SIDING | Floor Covering: | HARDWOOD/CARP 60-40 | | Floor Structure: | WOOD W/SUBFLOOR | Foundation: | CONCRETE | | Interior Finish: | DRYWALL PAINT | Plumbing Fixture Cnt: | 11 | | Roof Slope: | 8" IN 12" | Roof Structure/Cover: | CJ ASPHALT |
|
| | Type | Description | Class CD | Sub Class CD | Year Built | Area |
| | BAS | BASE/MAIN FLOOR | 4 | 0 | 1993 | 2652.5 |
| | OP4 | OPEN PORCH W/CEILING-ROOF | 4 | 0 | 1993 | 99.0 |
| | AGR | ATTACHED GARAGE | 4 | 0 | 1993 | 750.0 |
| | OWP | OPEN WOOD PORCH W/STEPS | 4 | 0 | 1993 | 1209.9 |
| | OWC | OPEN WOOD PORCH W/STEPS/ROOF/C | 4 | 0 | 1993 | 145.6 |
| | DGR | DETACHED GARAGE | 4 | 0 | 1993 | 1296.0 |
| | UTY | STORAGE/UTILITY | 4 | 0 | 1993 | 96.0 |
Sketch
Property Image
Land
| 1 | HB | HIGH BLUFF | 3.1600 | 137649.60 | 100.00 | 0.00 | 1.00 | $625,000 | $0 |
| 2 | 55 | TIDES | 0.0000 | 0.00 | 100.00 | 0.00 | 1.00 | $1,000 | $0 |
Roll Value History
| 2026 | N/A | N/A | N/A | N/A | N/A |
| 2025 | $657,400 | $626,000 | $0 | $1,283,400 | $1,283,400 |
| 2024 | $665,694 | $601,000 | $0 | $1,266,694 | $1,266,694 |
| 2023 | $673,989 | $576,000 | $0 | $1,249,989 | $1,249,989 |
| 2022 | $617,826 | $526,000 | $0 | $1,143,826 | $1,143,826 |
| 2021 | $495,132 | $401,000 | $0 | $896,132 | $896,132 |
| 2020 | $492,974 | $251,000 | $0 | $743,974 | $743,974 |
| 2019 | $379,552 | $301,000 | $0 | $680,552 | $680,552 |
| 2018 | $380,750 | $276,000 | $0 | $656,750 | $656,750 |
| 2017 | $383,077 | $251,000 | $0 | $634,077 | $634,077 |
| 2016 | $387,866 | $251,000 | $0 | $638,866 | $638,866 |
| 2015 | $378,621 | $201,000 | $0 | $579,621 | $579,621 |
| 2014 | $383,240 | $201,000 | $0 | $584,240 | $584,240 |
| 2013 | $387,858 | $224,482 | $0 | $612,340 | $612,340 |
| 2012 | $392,478 | $224,482 | $0 | $616,960 | $616,960 |
| 2011 | $397,096 | $280,352 | $0 | $677,448 | $677,448 |
| 2010 | $413,708 | $311,391 | $0 | $725,099 | $725,099 |
| 2009 | $431,547 | $334,887 | $0 | $766,434 | $766,434 |
| 2008 | $438,411 | $334,887 | $0 | $773,298 | $773,298 |
| 2007 | $445,409 | $334,187 | $0 | $779,596 | $779,596 |
Deed and Sales History
| 1 | 09/21/2000 | WD | Warranty Deed | SMITH, STEVE C | ESTES, ALAN R | | | $534,000.00 | 3375 | 20017316 |
| 2 | 10/01/1989 | WD | Warranty Deed | CLEVEN, LEONARD N | SMITH, STEVE C | | | $93,500.00 | 94823 | 89015658 |
| 3 | 01/01/1900 | OTHER | Other - Misc. Documents | Unknown | CLEVEN, LEONARD N | | | $0.00 | 0 | 0 |
Payout Agreement
| No payout information available.. |