Property
Account |
| Property ID: | 400710 | Abbreviated Legal Description: | SUNNY SH AC LOT 26 INCL ADJ TIDES TGW & SUB EZ AF#89015649 |
| Geographic ID: | S8240-00-00026-0 | Agent Code: | |
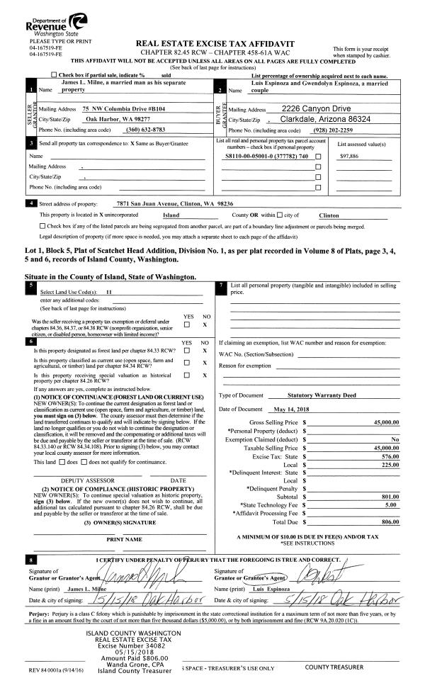
| Type: | Real | | |
| Tax Area: | 542 - APPRAISER-Stan/Cam Schl Dist, Special Dist, improved, greater than 1 acre | Land Use Code | 11 |
| Open Space: | N | DFL | N |
| Historic Property: | N | Remodel Property: | N |
| Multi-Family Redevelopment: | N | | |
| Township: | | Section: | |
| Range: | |
Location |
| Address: | 1262 TALAGWA LN CAMANO ISLAND, WA 98282 | Mapsco: | |
| Neighborhood: | Cycle 5 | Map ID: | 850 |
| Neighborhood CD: | 5 |
Owner |
| Name: | KRISTOF, JOHN L | Owner ID: | 286541 |
| Mailing Address: | TERRLE L JOHNSTON 1262 TALAGWA LN CAMANO ISLAND, WA 98282 | % Ownership: | 100.0000000000% |
| | | Exemptions: | |
Taxes and Assessment Details
Values
| (+) Improvement Homesite Value: | + | $0 | |
| (+) Improvement Non-Homesite Value: | + | $599,493 | |
| (+) Land Homesite Value: | + | $0 | |
| (+) Land Non-Homesite Value: | + | $626,000 | |
| (+) Curr Use (HS): | + | $0 | $0 |
| (+) Curr Use (NHS): | + | $0 | $0 |
| | | -------------------------- | |
| (=) Market Value: | = | $1,225,493 | |
| (–) Productivity Loss: | – | $0 | |
| | | -------------------------- | |
| (=) Subtotal: | = | $1,225,493 | |
| (+) Senior Appraised Value: | + | $0 | |
| (+) Non-Senior Appraised Value: | + | $1,225,493 | |
| | | -------------------------- | |
| (=) Total Appraised Value: | = | $1,225,493 | |
| (–) Senior Exemption Loss: | – | $0 | |
| (–) Exemption Loss: | – | $0 | |
| | | -------------------------- | |
| (=) Taxable Value: | = | $1,225,493 | |
Taxing Jurisdiction
| Owner: | KRISTOF, JOHN L | | |
| % Ownership: | 100.0000000000% | | |
| Total Value: | $1,225,493 | | |
| Tax Area: | 542 - APPRAISER-Stan/Cam Schl Dist, Special Dist, improved, greater than 1 acre |
| CF | Conservation Futures | 0.0316035091 | $1,225,493 | $1,225,493 | $38.73 | | |
| EMS1 | Fire & Rescue Dist #1 Camano GEN (EMS) | 0.3677864386 | $1,225,493 | $1,225,493 | $450.72 | | |
| FIRE1 | Fire & Rescue Dist #1 Camano GEN | 1.2502910536 | $1,225,493 | $1,225,493 | $1,532.22 | | |
| FIRE1BOND | Fire & Rescue Dist #1 Camano BOND | 0.1570001679 | $1,225,493 | $1,225,493 | $192.40 | | |
| CE | County Current Expense | 0.3708482477 | $1,225,493 | $1,225,493 | $454.47 | | |
| CR | County Roads | 0.4584763726 | $1,225,493 | $1,225,493 | $561.86 | | |
| LCIB | Library Sno-Isle BOND (Camano Island) | 0.0396325772 | $1,225,493 | $1,225,493 | $48.57 | | |
| LIB | Library Sno-Isle GEN | 0.3153421757 | $1,225,493 | $1,225,493 | $386.45 | | |
| SCH205_401 | School 205-401 Enrichment | 1.2698420524 | $1,225,493 | $1,225,493 | $1,556.18 | | |
| SCH205BOND | School 205-401 BOND | 0.9396497583 | $1,225,493 | $1,225,493 | $1,151.53 | | |
| ST | State School | 1.3035497053 | $1,225,493 | $1,225,493 | $1,597.49 | | |
| ST2 | State School Part 2 | 0.8169543533 | $1,225,493 | $1,225,493 | $1,001.17 | | |
| | Total Tax Rate: | 7.3209764117 | | | | | |
| | | | | Taxes w/Current Exemptions: | $8,971.79 | | |
| | | | | Taxes w/o Exemptions: | $8,971.79 | | |
Improvement / Building
| Improvement #1: | RESIDENTIAL | State Code: | Y | 2910.2 sqft | Value: | $599,493 |
| Bathrooms: | 2.5 | Bedrooms: | 3 | | Ceiling: | DRYWALL PAINTED | Cooling: | HEAT PUMP/CONV/V | | Exterior Wall/Cover: | PLY/HARDBOARD T-111 | Floor Covering: | CERAMIC TILE/CPT 40-60 | | Floor Structure: | WOOD W/SUBFLOOR | Foundation: | CONCRETE | | Interior Finish: | DRYWALL PAINT | Plumbing Fixture Cnt: | 12 | | Roof Slope: | 5" IN 12" | Roof Structure/Cover: | CJ ASPHALT |
|
| | Type | Description | Class CD | Sub Class CD | Year Built | Area |
| | BAS | BASE/MAIN FLOOR | 4 | 0 | 1993 | 2203.5 |
| | OP4 | OPEN PORCH W/CEILING-ROOF | 4 | 0 | 1993 | 513.0 |
| | UPS | UPPER STORY | 4 | 0 | 1993 | 505.7 |
| | OWP | OPEN WOOD PORCH W/STEPS | 4 | 0 | 1993 | 793.3 |
| | OWC | OPEN WOOD PORCH W/STEPS/ROOF/C | 4 | 0 | 1993 | 431.8 |
| | DGR | DETACHED GARAGE | 4 | 0 | 1993 | 765.3 |
| | LOF | LOFT | 4 | 0 | 1993 | 201.0 |
| | UTY | STORAGE/UTILITY | 4 | 0 | 1993 | 140.0 |
Sketch
Property Image
Land
| 1 | HB | HIGH BLUFF | 3.0600 | 133293.60 | 50.00 | 0.00 | 1.00 | $625,000 | $0 |
| 2 | 55 | TIDES | 0.0000 | 0.00 | 100.00 | 0.00 | 1.00 | $1,000 | $0 |
Roll Value History
| 2026 | N/A | N/A | N/A | N/A | N/A |
| 2025 | $599,493 | $626,000 | $0 | $1,225,493 | $1,225,493 |
| 2024 | $606,966 | $601,000 | $0 | $1,207,966 | $1,207,966 |
| 2023 | $614,435 | $576,000 | $0 | $1,190,435 | $1,190,435 |
| 2022 | $563,144 | $526,000 | $0 | $1,089,144 | $1,089,144 |
| 2021 | $465,839 | $401,000 | $0 | $866,839 | $866,839 |
| 2020 | $455,959 | $251,000 | $0 | $706,959 | $706,959 |
| 2019 | $357,756 | $301,000 | $0 | $658,756 | $658,756 |
| 2018 | $322,996 | $276,000 | $0 | $598,996 | $598,996 |
| 2017 | $324,947 | $251,000 | $0 | $575,947 | $575,947 |
| 2016 | $328,977 | $251,000 | $0 | $579,977 | $579,977 |
| 2015 | $315,304 | $201,000 | $0 | $516,304 | $446,304 |
| 2014 | $318,842 | $201,000 | $0 | $519,842 | $519,842 |
| 2013 | $322,380 | $224,482 | $0 | $546,862 | $546,862 |
| 2012 | $325,918 | $224,482 | $0 | $550,400 | $550,400 |
| 2011 | $329,457 | $280,352 | $0 | $609,809 | $539,809 |
| 2010 | $335,433 | $311,391 | $0 | $646,824 | $576,824 |
| 2009 | $340,163 | $334,887 | $0 | $675,050 | $605,050 |
| 2008 | $344,256 | $334,887 | $0 | $679,143 | $271,657 |
| 2007 | $348,465 | $334,187 | $0 | $682,652 | $682,652 |
Deed and Sales History
| 1 | 08/15/2018 | WD | Warranty Deed | KOSTELYK TTEE, MAXINE L | KRISTOF, JOHN L | | | $825,000.00 | 35546 | 4450242 |
| 2 | 10/19/2008 | PRD | Personal Representatives Deed | JOHNSON-KOSTELYK, MAXINE L | KOSTELYK TTEE, MAXINE L | | | $0.00 | 83071 | 4240827 |
| 3 | 10/01/1989 | WD | Warranty Deed | JOHNSON-KOSTELYK, MAXINE L | JOHNSON-KOSTELYK, MAXINE L | | | $96,500.00 | 94821 | 89015655 |
| 4 | 10/01/1989 | QCD | Quit Claim Deed | CLEVEN, LEONARD N | JOHNSON-KOSTELYK, MAXINE L | | | $0.00 | 94822 | 89015656 |
| 5 | 09/01/1989 | WD | Warranty Deed | LAIRD, NORTON T | CLEVEN, LEONARD N | | | $86,500.00 | 94820 | 89015648 |
| 6 | 04/01/1988 | QCD | Quit Claim Deed | LAMOREAUX, MARY | LAIRD, NORTON T | | | $0.00 | 81132 | 88004276 |
| 7 | 03/01/1987 | WD | Warranty Deed | CLEVEN, LEONARD N | LAMOREAUX, MARY | | | $86,500.00 | 70693 | 87003772 |
| 8 | 01/01/1900 | OTHER | Other - Misc. Documents | Unknown | CLEVEN, LEONARD N | | | $0.00 | 0 | 0 |
Payout Agreement
| No payout information available.. |