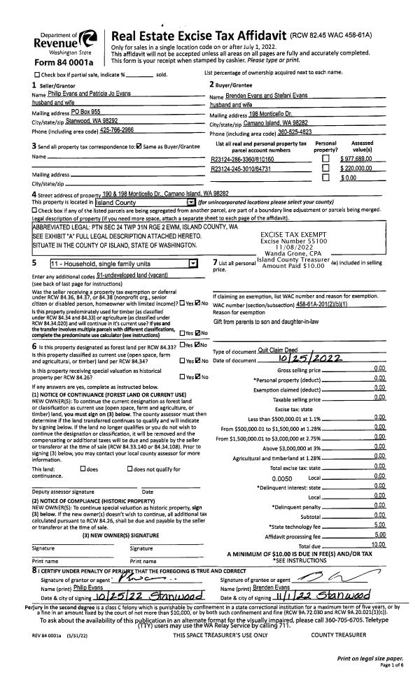
Property
Account |
| Property ID: | 400854 | Abbreviated Legal Description: | SUNNY SH AC SWLY 200' OF LOT 33 EX SELY 20' INCL 1/3 INT IN SELY 20' & 1/3 INT IN TIDES ADJ TO SELY 20' |
| Geographic ID: | S8240-00-00033-4 | Agent Code: | |
| Type: | Real | | |
| Tax Area: | 549 - APPRAISER-Stan/Cam Schl Dist, Special Dist, vacant & 50 acres or less | Land Use Code | 99 |
| Open Space: | N | DFL | N |
| Historic Property: | N | Remodel Property: | N |
| Multi-Family Redevelopment: | N | | |
| Township: | | Section: | |
| Range: | |
Location |
| Address: | | Mapsco: | |
| Neighborhood: | Cycle 5 | Map ID: | 850 |
| Neighborhood CD: | 5 |
Owner |
| Name: | MCGARY, JASON ANDREW | Owner ID: | 299990 |
| Mailing Address: | SHANNON ANTONIA MCGARY 13033 NE 144TH PL KIRKLAND, WA 98034 | % Ownership: | 100.0000000000% |
| | | Exemptions: | |
Taxes and Assessment Details
Values
| (+) Improvement Homesite Value: | + | $0 | |
| (+) Improvement Non-Homesite Value: | + | $0 | |
| (+) Land Homesite Value: | + | $0 | |
| (+) Land Non-Homesite Value: | + | $100,000 | |
| (+) Curr Use (HS): | + | $0 | $0 |
| (+) Curr Use (NHS): | + | $0 | $0 |
| | | -------------------------- | |
| (=) Market Value: | = | $100,000 | |
| (–) Productivity Loss: | – | $0 | |
| | | -------------------------- | |
| (=) Subtotal: | = | $100,000 | |
| (+) Senior Appraised Value: | + | $0 | |
| (+) Non-Senior Appraised Value: | + | $100,000 | |
| | | -------------------------- | |
| (=) Total Appraised Value: | = | $100,000 | |
| (–) Senior Exemption Loss: | – | $0 | |
| (–) Exemption Loss: | – | $0 | |
| | | -------------------------- | |
| (=) Taxable Value: | = | $100,000 | |
Taxing Jurisdiction
| Owner: | MCGARY, JASON ANDREW | | |
| % Ownership: | 100.0000000000% | | |
| Total Value: | $100,000 | | |
| Tax Area: | 549 - APPRAISER-Stan/Cam Schl Dist, Special Dist, vacant & 50 acres or less |
| CF | Conservation Futures | 0.0316035091 | $100,000 | $100,000 | $3.16 | | |
| EMS1 | Fire & Rescue Dist #1 Camano GEN (EMS) | 0.3677864386 | $100,000 | $100,000 | $36.78 | | |
| CE | County Current Expense | 0.3708482477 | $100,000 | $100,000 | $37.08 | | |
| CR | County Roads | 0.4584763726 | $100,000 | $100,000 | $45.85 | | |
| LCIB | Library Sno-Isle BOND (Camano Island) | 0.0396325772 | $100,000 | $100,000 | $3.96 | | |
| LIB | Library Sno-Isle GEN | 0.3153421757 | $100,000 | $100,000 | $31.53 | | |
| SCH205_401 | School 205-401 Enrichment | 1.2698420524 | $100,000 | $100,000 | $126.98 | | |
| SCH205BOND | School 205-401 BOND | 0.9396497583 | $100,000 | $100,000 | $93.96 | | |
| ST | State School | 1.3035497053 | $100,000 | $100,000 | $130.35 | | |
| ST2 | State School Part 2 | 0.8169543533 | $100,000 | $100,000 | $81.70 | | |
| | Total Tax Rate: | 5.9136851902 | | | | | |
| | | | | Taxes w/Current Exemptions: | $591.35 | | |
| | | | | Taxes w/o Exemptions: | $591.35 | | |
Improvement / Building
Sketch
| No sketches available for this property. |
Property Image
Land
| 1 | 15 | SQ (12001-21780) | 0.3500 | 15246.00 | 0.00 | 0.00 | 1.00 | $100,000 | $0 |
Roll Value History
| 2026 | N/A | N/A | N/A | N/A | N/A |
| 2025 | $0 | $100,000 | $0 | $100,000 | $100,000 |
| 2024 | $0 | $90,000 | $0 | $90,000 | $90,000 |
| 2023 | $0 | $70,000 | $0 | $70,000 | $70,000 |
| 2022 | $0 | $60,000 | $0 | $60,000 | $60,000 |
| 2021 | $0 | $50,000 | $0 | $50,000 | $50,000 |
| 2020 | $0 | $35,000 | $0 | $35,000 | $35,000 |
| 2019 | $0 | $10,000 | $0 | $10,000 | $10,000 |
| 2018 | $0 | $10,000 | $0 | $10,000 | $10,000 |
| 2017 | $0 | $10,000 | $0 | $10,000 | $10,000 |
| 2016 | $0 | $10,000 | $0 | $10,000 | $10,000 |
| 2015 | $0 | $13,280 | $0 | $13,280 | $13,280 |
| 2014 | $0 | $13,280 | $0 | $13,280 | $13,280 |
| 2013 | $0 | $13,280 | $0 | $13,280 | $13,280 |
| 2012 | $0 | $13,280 | $0 | $13,280 | $13,280 |
| 2011 | $0 | $13,280 | $0 | $13,280 | $13,280 |
| 2010 | $0 | $13,280 | $0 | $13,280 | $13,280 |
| 2009 | $0 | $14,600 | $0 | $14,600 | $14,600 |
| 2008 | $0 | $16,040 | $0 | $16,040 | $16,040 |
| 2007 | $0 | $20,060 | $0 | $20,060 | $20,060 |
Deed and Sales History
| 1 | 05/16/2022 | WD | Warranty Deed | WILLIAMS, MARK | MCGARY, JASON ANDREW | | | $50,000.00 | 53161 | 4545415 |
| 2 | 03/11/2004 | WD | Warranty Deed | JONES, ORAN N | WILLIAMS, MARK | | | $14,000.00 | 41150 | 4095236 |
| 3 | 09/26/2003 | WD | Warranty Deed | WILSON SCHULTZ, KARLA | JONES, ORAN N | | | $11,000.00 | 34384 | 4077234 |
| 4 | 12/09/1998 | QCD | Quit Claim Deed | WEDDLE, ELLEN | WILSON SCHULTZ, KARLA | | | $0.00 | 84951 | 98027274 |
| 5 | 12/01/1992 | REC | Real Estate Contract | Unknown | WEDDLE, ELLEN E | | | $12,000.00 | 24830 | 92023831 |
| 6 | 12/01/1992 | REC | Real Estate Contract | WALEN, MRS H | WEDDLE, ELLEN | | | $12,000.00 | 24830 | 92023831 |
| 7 | 01/01/1900 | OTHER | Other - Misc. Documents | WEDDLE, ELLEN E | WALEN, MRS H | | | $0.00 | 0 | 0 |
Payout Agreement
| No payout information available.. |