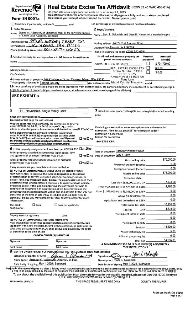
Property
Account |
| Property ID: | 401327 | Abbreviated Legal Description: | SUNNY SH AC PT LOT 53: BG SE CR L53 S58*W136.7' N35*W50'TPB N58*E TO ELN L53 N35*W50' S58*W TP N35*W FR TPB S35*E TPB INCL ADJ TIDES VAC EZ AF#90017427 |
| Geographic ID: | S8240-00-00053-3 | Agent Code: | |
| Type: | Real | | |
| Tax Area: | 540 - APPRAISER-Stan/Cam Schl Dist, Special Dist, improved & less than 1 acre | Land Use Code | 11 |
| Open Space: | N | DFL | N |
| Historic Property: | N | Remodel Property: | N |
| Multi-Family Redevelopment: | N | | |
| Township: | | Section: | |
| Range: | |
Location |
| Address: | 2871 TILLICUM BEACH DR CAMANO ISLAND, WA 98282 | Mapsco: | |
| Neighborhood: | 58RecamWF-East Cam | Map ID: | 866 |
| Neighborhood CD: | 58RecamWF |
Owner |
| Name: | LAINE PROPERTIES LLC | Owner ID: | 315015 |
| Mailing Address: | 7921 WADE RD ARLINGTON, WA 98223 | % Ownership: | 100.0000000000% |
| | | Exemptions: | |
Taxes and Assessment Details
Values
| (+) Improvement Homesite Value: | + | $0 | |
| (+) Improvement Non-Homesite Value: | + | $435,212 | |
| (+) Land Homesite Value: | + | $0 | |
| (+) Land Non-Homesite Value: | + | $725,500 | |
| (+) Curr Use (HS): | + | $0 | $0 |
| (+) Curr Use (NHS): | + | $0 | $0 |
| | | -------------------------- | |
| (=) Market Value: | = | $1,160,712 | |
| (–) Productivity Loss: | – | $0 | |
| | | -------------------------- | |
| (=) Subtotal: | = | $1,160,712 | |
| (+) Senior Appraised Value: | + | $0 | |
| (+) Non-Senior Appraised Value: | + | $1,160,712 | |
| | | -------------------------- | |
| (=) Total Appraised Value: | = | $1,160,712 | |
| (–) Senior Exemption Loss: | – | $0 | |
| (–) Exemption Loss: | – | $0 | |
| | | -------------------------- | |
| (=) Taxable Value: | = | $1,160,712 | |
Taxing Jurisdiction
| Owner: | LAINE PROPERTIES LLC | | |
| % Ownership: | 100.0000000000% | | |
| Total Value: | $1,160,712 | | |
| Tax Area: | 540 - APPRAISER-Stan/Cam Schl Dist, Special Dist, improved & less than 1 acre |
| CF | Conservation Futures | 0.0316035091 | $1,160,712 | $1,160,712 | $36.68 | | |
| EMS1 | Fire & Rescue Dist #1 Camano GEN (EMS) | 0.3677864386 | $1,160,712 | $1,160,712 | $426.89 | | |
| FIRE1 | Fire & Rescue Dist #1 Camano GEN | 1.2502910536 | $1,160,712 | $1,160,712 | $1,451.23 | | |
| FIRE1BOND | Fire & Rescue Dist #1 Camano BOND | 0.1570001679 | $1,160,712 | $1,160,712 | $182.23 | | |
| CE | County Current Expense | 0.3708482477 | $1,160,712 | $1,160,712 | $430.45 | | |
| CR | County Roads | 0.4584763726 | $1,160,712 | $1,160,712 | $532.16 | | |
| LCIB | Library Sno-Isle BOND (Camano Island) | 0.0396325772 | $1,160,712 | $1,160,712 | $46.00 | | |
| LIB | Library Sno-Isle GEN | 0.3153421757 | $1,160,712 | $1,160,712 | $366.02 | | |
| SCH205_401 | School 205-401 Enrichment | 1.2698420524 | $1,160,712 | $1,160,712 | $1,473.92 | | |
| SCH205BOND | School 205-401 BOND | 0.9396497583 | $1,160,712 | $1,160,712 | $1,090.66 | | |
| ST | State School | 1.3035497053 | $1,160,712 | $1,160,712 | $1,513.05 | | |
| ST2 | State School Part 2 | 0.8169543533 | $1,160,712 | $1,160,712 | $948.25 | | |
| | Total Tax Rate: | 7.3209764117 | | | | | |
| | | | | Taxes w/Current Exemptions: | $8,497.54 | | |
| | | | | Taxes w/o Exemptions: | $8,497.54 | | |
Improvement / Building
| Improvement #1: | RESIDENTIAL | State Code: | Y | 1807.4 sqft | Value: | $435,212 |
| Bathrooms: | 2 | Bedrooms: | 2 | | Ceiling: | DRYWALL PAINTED | Cooling: | HEAT PUMP/CONV/V | | Exterior Wall/Cover: | CEMENT FIBER | Floor Covering: | CERAMIC TILE/CPT 40-60 | | Floor Structure: | WOOD W/SUBFLOOR | Foundation: | CONCRETE | | Interior Finish: | DRYWALL PAINT | Plumbing Fixture Cnt: | 10 | | Roof Slope: | 6" IN 12" | Roof Structure/Cover: | BEAM ASPHALT |
|
| | Type | Description | Class CD | Sub Class CD | Year Built | Area |
| | BAS | BASE/MAIN FLOOR | 4 | 0 | 1967 | 978.6 |
| | OP4 | OPEN PORCH W/CEILING-ROOF | 4 | 0 | 1967 | 167.2 |
| | OP4 | OPEN PORCH W/CEILING-ROOF | 4 | 0 | 1967 | 130.0 |
| | DWN | DOWNSTAIRS LIVING AREA | 4 | 0 | 1967 | 828.8 |
| | OWP | OPEN WOOD PORCH W/STEPS | 4 | 0 | 1967 | 170.0 |
| | UTY | STORAGE/UTILITY | 4 | 0 | 1967 | 168.0 |
| | OWP | OPEN WOOD PORCH W/STEPS | 4 | 0 | 1967 | 252.0 |
| | UTY | STORAGE/UTILITY | 4 | 0 | 1967 | 100.0 |
Sketch
| No sketches available for this property. |
Property Image
Land
| 1 | LB | LOW BANK | 0.0000 | 0.00 | 50.00 | 0.00 | 1.00 | $725,000 | $0 |
| 2 | 55 | TIDES | 0.0000 | 0.00 | 50.00 | 0.00 | 1.00 | $500 | $0 |
Roll Value History
| 2026 | N/A | N/A | N/A | N/A | N/A |
| 2025 | $435,212 | $725,500 | $0 | $1,160,712 | $1,160,712 |
| 2024 | $412,100 | $725,500 | $0 | $1,137,600 | $1,137,600 |
| 2023 | $415,563 | $725,500 | $0 | $1,141,063 | $1,141,063 |
| 2022 | $379,645 | $700,500 | $0 | $1,080,145 | $1,080,145 |
| 2021 | $305,182 | $550,500 | $0 | $855,682 | $855,682 |
| 2020 | $296,962 | $450,500 | $0 | $747,462 | $747,462 |
| 2019 | $222,512 | $500,500 | $0 | $723,012 | $723,012 |
| 2018 | $223,114 | $500,500 | $0 | $723,614 | $723,614 |
| 2017 | $224,271 | $320,500 | $0 | $544,771 | $544,771 |
| 2016 | $226,683 | $320,500 | $0 | $547,183 | $547,183 |
| 2015 | $234,161 | $300,500 | $0 | $534,661 | $534,661 |
| 2014 | $236,681 | $300,500 | $0 | $537,181 | $537,181 |
| 2013 | $239,200 | $318,642 | $0 | $557,842 | $557,842 |
| 2012 | $241,721 | $318,642 | $0 | $560,363 | $560,363 |
| 2011 | $244,241 | $398,178 | $0 | $642,419 | $642,419 |
| 2010 | $251,711 | $398,178 | $0 | $649,889 | $649,889 |
| 2009 | $262,314 | $424,690 | $0 | $687,004 | $687,004 |
| 2008 | $67,480 | $490,970 | $0 | $558,450 | $558,450 |
| 2007 | $138,005 | $490,620 | $0 | $628,625 | $628,625 |
Deed and Sales History
| 1 | 12/23/2024 | WD | Warranty Deed | SCHUELLER, KENNETH E | LAINE PROPERTIES LLC | | | $1,500,000.00 | 62216 | 4580855 |
| 2 | 08/28/2007 | WD | Warranty Deed | AMMERMAN, EUGENE L | SCHUELLER, KENNETH E | | | $772,000.00 | 73033 | 4211264 |
| 3 | 02/01/1987 | WD | Warranty Deed | KNOTT, CHARLES D | AMMERMAN, EUGENE L | | | $125,000.00 | 70485 | 87002965 |
| 4 | 02/01/1979 | OTHER | Other - Misc. Documents | Unknown | KNOTT, CHARLES D | | | $78,000.00 | 91469 | 350064 |
Payout Agreement
| No payout information available.. |