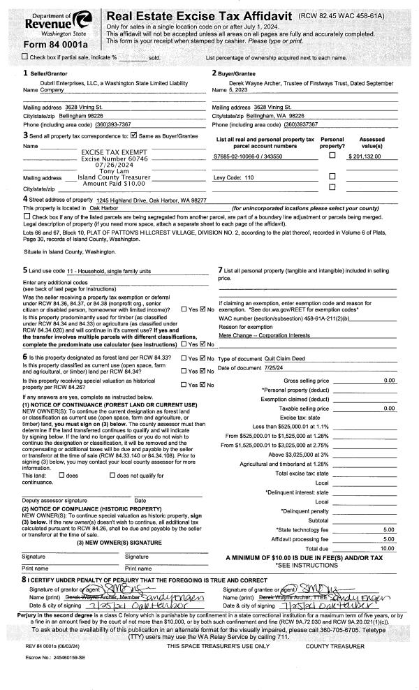
Property
Account |
| Property ID: | 40137 | Abbreviated Legal Description: | 64 - SW SW SW NW TGW & SUB EZ (LOT C SP 74-067 AF#301447) |
| Geographic ID: | R13333-281-0160 | Agent Code: | |
| Type: | Real | | |
| Tax Area: | 112 - APPRAISER-OH Schl Dist, outside OH, improved, greater than 1 acre | Land Use Code | 11 |
| Open Space: | N | DFL | N |
| Historic Property: | N | Remodel Property: | N |
| Multi-Family Redevelopment: | N | | |
| Township: | 33 | Section: | 33 |
| Range: | R1 |
Location |
| Address: | 1569 WILDBERRY LN OAK HARBOR, WA 98277 | Mapsco: | |
| Neighborhood: | Cycle 1 | Map ID: | 250 |
| Neighborhood CD: | 1 |
Owner |
| Name: | NOLL, JAMES P | Owner ID: | 290176 |
| Mailing Address: | MAXINE C SPINKS 1569 WILDBERRY LN OAK HARBOR, WA 98277 | % Ownership: | 100.0000000000% |
| | | Exemptions: | |
Taxes and Assessment Details
Values
| (+) Improvement Homesite Value: | + | $0 | |
| (+) Improvement Non-Homesite Value: | + | $814,546 | |
| (+) Land Homesite Value: | + | $0 | |
| (+) Land Non-Homesite Value: | + | $290,000 | |
| (+) Curr Use (HS): | + | $0 | $0 |
| (+) Curr Use (NHS): | + | $0 | $0 |
| | | -------------------------- | |
| (=) Market Value: | = | $1,104,546 | |
| (–) Productivity Loss: | – | $0 | |
| | | -------------------------- | |
| (=) Subtotal: | = | $1,104,546 | |
| (+) Senior Appraised Value: | + | $0 | |
| (+) Non-Senior Appraised Value: | + | $1,104,546 | |
| | | -------------------------- | |
| (=) Total Appraised Value: | = | $1,104,546 | |
| (–) Senior Exemption Loss: | – | $0 | |
| (–) Exemption Loss: | – | $0 | |
| | | -------------------------- | |
| (=) Taxable Value: | = | $1,104,546 | |
Taxing Jurisdiction
| Owner: | NOLL, JAMES P | | |
| % Ownership: | 100.0000000000% | | |
| Total Value: | $1,104,546 | | |
| Tax Area: | 112 - APPRAISER-OH Schl Dist, outside OH, improved, greater than 1 acre |
| CF | Conservation Futures | 0.0316035091 | $1,104,546 | $1,104,546 | $34.91 | | |
| CEM1 | Cemetery #1 | 0.0040320932 | $1,104,546 | $1,104,546 | $4.45 | | |
| FIRE2 | Fire & Rescue Dist #2 N Whidbey GEN | 0.5475949600 | $1,104,546 | $1,104,546 | $604.84 | | |
| HOBOND | Hospital BOND | 0.1910887512 | $1,104,546 | $1,104,546 | $211.07 | | |
| HOGEN | Hospital GEN | 0.3902502903 | $1,104,546 | $1,104,546 | $431.05 | | |
| CE | County Current Expense | 0.3708482477 | $1,104,546 | $1,104,546 | $409.62 | | |
| CR | County Roads | 0.4584763726 | $1,104,546 | $1,104,546 | $506.41 | | |
| ISLANDEMS | Hospital GEN (EMS) | 0.5000000000 | $1,104,546 | $1,104,546 | $552.27 | | |
| LIB | Library Sno-Isle GEN | 0.3153421757 | $1,104,546 | $1,104,546 | $348.31 | | |
| NWHIDPRMT | P & R N Whidbey GEN | 0.2004466701 | $1,104,546 | $1,104,546 | $221.40 | | |
| SCH201MO | School 201 Enrichment | 1.8559231640 | $1,104,546 | $1,104,546 | $2,049.95 | | |
| ST | State School | 1.3035497053 | $1,104,546 | $1,104,546 | $1,439.83 | | |
| ST2 | State School Part 2 | 0.8169543533 | $1,104,546 | $1,104,546 | $902.36 | | |
| | Total Tax Rate: | 6.9861102925 | | | | | |
| | | | | Taxes w/Current Exemptions: | $7,716.47 | | |
| | | | | Taxes w/o Exemptions: | $7,716.47 | | |
Improvement / Building
| Improvement #1: | RESIDENTIAL | State Code: | Y | 4283.9 sqft | Value: | $814,546 |
| Bathrooms: | 3.5 | Bedrooms: | 5 | | Ceiling: | DRYWALL PAINTED | Cooling: | HEAT PUMP/CONV/V | | Exterior Wall/Cover: | CEMENT FIBER | Floor Covering: | CERAMIC TILE/CPT 40-60 | | Floor Structure: | WOOD W/SUBFLOOR | Foundation: | CONCRETE BLOCKS | | Interior Finish: | DRYWALL PAINT | Plumbing Fixture Cnt: | 18 | | Roof Slope: | 12" IN 12" | Roof Structure/Cover: | CJ ASPHALT |
|
| | Type | Description | Class CD | Sub Class CD | Year Built | Area |
| | BAS | BASE/MAIN FLOOR | 5 | 0 | 2000 | 2174.4 |
| | DWN | DOWNSTAIRS LIVING AREA | 5 | 0 | 2000 | 1131.0 |
| | OP4 | OPEN PORCH W/CEILING-ROOF | 5 | 0 | 2000 | 72.0 |
| | DGR | DETACHED GARAGE | 5 | 0 | 2000 | 1472.0 |
| | UPS | UPPER STORY | 5 | 0 | 2000 | 978.5 |
| | OWP | OPEN WOOD PORCH W/STEPS | 5 | 0 | 2000 | 471.7 |
| | ENP | ENCLOSED PORCH | 5 | 0 | 2000 | 150.6 |
Sketch
Property Image
Land
| 1 | 18 | AC (02.01-03.00) | 0.0000 | 0.00 | 0.00 | 0.00 | 1.00 | $290,000 | $0 |
Roll Value History
| 2026 | N/A | N/A | N/A | N/A | N/A |
| 2025 | $814,546 | $290,000 | $0 | $1,104,546 | $1,104,546 |
| 2024 | $824,450 | $280,000 | $0 | $1,104,450 | $1,104,450 |
| 2023 | $814,182 | $280,000 | $0 | $1,094,182 | $1,094,182 |
| 2022 | $746,134 | $250,000 | $0 | $996,134 | $996,134 |
| 2021 | $656,731 | $210,000 | $0 | $866,731 | $866,731 |
| 2020 | $640,431 | $175,000 | $0 | $815,431 | $815,431 |
| 2019 | $562,504 | $230,000 | $0 | $792,504 | $792,504 |
| 2018 | $564,115 | $200,000 | $0 | $764,115 | $764,115 |
| 2017 | $550,706 | $170,000 | $0 | $720,706 | $720,706 |
| 2016 | $557,423 | $120,000 | $0 | $677,423 | $677,423 |
| 2015 | $564,140 | $110,000 | $0 | $674,140 | $674,140 |
| 2014 | $570,853 | $100,000 | $0 | $670,853 | $670,853 |
| 2013 | $577,571 | $100,000 | $0 | $677,571 | $677,571 |
| 2012 | $410,465 | $109,650 | $0 | $520,115 | $520,115 |
| 2011 | $421,059 | $129,000 | $0 | $550,059 | $550,059 |
| 2010 | $428,125 | $129,000 | $0 | $557,125 | $557,125 |
| 2009 | $446,299 | $142,000 | $0 | $588,299 | $588,299 |
| 2008 | $461,086 | $145,000 | $0 | $606,086 | $606,086 |
| 2007 | $461,665 | $145,000 | $0 | $606,665 | $606,665 |
Deed and Sales History
| 1 | 06/07/2019 | QCD | Quit Claim Deed | NOLL, JAMES P | NOLL, JAMES P | | | $0.00 | 38901 | 4465057 |
| 2 | 08/29/2018 | QCD | Quit Claim Deed | NOLL TRUSTEE, JAMES P | NOLL, JAMES P | | | $0.00 | 35774 | 4451199 |
| 3 | 04/20/2014 | TRUSTEED | Trustee's Deed | NOLL, JAMES P | NOLL TRUSTEE, JAMES P | | | $0.00 | 14988 | 4358211 |
| 4 | 02/18/2014 | TRUSTEED | Trustee's Deed | NOLL TRUSTEE, JAMES P | NOLL, JAMES P | | | $0.00 | 14406 | 4355791 |
| 5 | 04/01/2013 | TRUSTEED | Trustee's Deed | NOLL TRUSTEE, GLADYS N | NOLL TRUSTEE, JAMES P | | | $0.00 | 10941 | 4337123 |
| 6 | 04/01/2013 | TRUSTEED | Trustee's Deed | NOLL, JAMES P | NOLL TRUSTEE, GLADYS N | | | $0.00 | 10940 | 4337122 |
| 7 | 12/18/2012 | WD | Warranty Deed | ZAHRT, MARCUS L | NOLL, JAMES P | | | $764,900.00 | 10026 | 4330588 |
| 8 | 07/01/1994 | WD | Warranty Deed | WESTER, EDWARD H | ZAHRT, MARCUS L | | | $48,500.00 | 42849 | 94015590 |
| 9 | 07/01/1991 | DECREE | Divorce Decree/Legal Separation | WESTER, EDWARD H | WESTER, EDWARD H | | | $0.00 | 12425 | 91010361 |
| 10 | 06/01/1989 | WD | Warranty Deed | EISCHENS, GEORGE J | WESTER, EDWARD H | | | $20,000.00 | 92191 | 89007488 |
| 11 | 01/01/1900 | OTHER | Other - Misc. Documents | Unknown | EISCHENS, GEORGE J | | | $0.00 | 0 | 0 |
Payout Agreement
| No payout information available.. |