Property
Account |
| Property ID: | 401407 | Abbreviated Legal Description: | SUNNY SH AC LOT 56 LY W OF SIERRA VISTA #1 SUB EZ AF#343566 |
| Geographic ID: | S8240-00-00056-1 | Agent Code: | |
| Type: | Real | | |
| Tax Area: | 540 - APPRAISER-Stan/Cam Schl Dist, Special Dist, improved & less than 1 acre | Land Use Code | 11 |
| Open Space: | N | DFL | N |
| Historic Property: | N | Remodel Property: | N |
| Multi-Family Redevelopment: | N | | |
| Township: | | Section: | |
| Range: | |
Location |
| Address: | 2931 S EAST CAMANO DR CAMANO ISLAND, WA 98282 | Mapsco: | |
| Neighborhood: | 58RecamS-East Cam | Map ID: | 866 |
| Neighborhood CD: | 58RecamS |
Owner |
| Name: | CUNNINGHAM, CYNTHIA A | Owner ID: | 284938 |
| Mailing Address: | PATRICK J CUNNINGHAM 2931 S EAST CAMANO DR CAMANO ISLAND, WA 98282 | % Ownership: | 100.0000000000% |
| | | Exemptions: | |
Taxes and Assessment Details
Values
| (+) Improvement Homesite Value: | + | $0 | |
| (+) Improvement Non-Homesite Value: | + | $211,834 | |
| (+) Land Homesite Value: | + | $0 | |
| (+) Land Non-Homesite Value: | + | $230,000 | |
| (+) Curr Use (HS): | + | $0 | $0 |
| (+) Curr Use (NHS): | + | $0 | $0 |
| | | -------------------------- | |
| (=) Market Value: | = | $441,834 | |
| (–) Productivity Loss: | – | $0 | |
| | | -------------------------- | |
| (=) Subtotal: | = | $441,834 | |
| (+) Senior Appraised Value: | + | $0 | |
| (+) Non-Senior Appraised Value: | + | $441,834 | |
| | | -------------------------- | |
| (=) Total Appraised Value: | = | $441,834 | |
| (–) Senior Exemption Loss: | – | $0 | |
| (–) Exemption Loss: | – | $0 | |
| | | -------------------------- | |
| (=) Taxable Value: | = | $441,834 | |
Taxing Jurisdiction
| Owner: | CUNNINGHAM, CYNTHIA A | | |
| % Ownership: | 100.0000000000% | | |
| Total Value: | $441,834 | | |
| Tax Area: | 540 - APPRAISER-Stan/Cam Schl Dist, Special Dist, improved & less than 1 acre |
| CF | Conservation Futures | 0.0316035091 | $441,834 | $441,834 | $13.96 | | |
| EMS1 | Fire & Rescue Dist #1 Camano GEN (EMS) | 0.3677864386 | $441,834 | $441,834 | $162.50 | | |
| FIRE1 | Fire & Rescue Dist #1 Camano GEN | 1.2502910536 | $441,834 | $441,834 | $552.42 | | |
| FIRE1BOND | Fire & Rescue Dist #1 Camano BOND | 0.1570001679 | $441,834 | $441,834 | $69.37 | | |
| CE | County Current Expense | 0.3708482477 | $441,834 | $441,834 | $163.85 | | |
| CR | County Roads | 0.4584763726 | $441,834 | $441,834 | $202.57 | | |
| LCIB | Library Sno-Isle BOND (Camano Island) | 0.0396325772 | $441,834 | $441,834 | $17.51 | | |
| LIB | Library Sno-Isle GEN | 0.3153421757 | $441,834 | $441,834 | $139.33 | | |
| SCH205_401 | School 205-401 Enrichment | 1.2698420524 | $441,834 | $441,834 | $561.06 | | |
| SCH205BOND | School 205-401 BOND | 0.9396497583 | $441,834 | $441,834 | $415.17 | | |
| ST | State School | 1.3035497053 | $441,834 | $441,834 | $575.95 | | |
| ST2 | State School Part 2 | 0.8169543533 | $441,834 | $441,834 | $360.96 | | |
| | Total Tax Rate: | 7.3209764117 | | | | | |
| | | | | Taxes w/Current Exemptions: | $3,234.65 | | |
| | | | | Taxes w/o Exemptions: | $3,234.65 | | |
Improvement / Building
| Improvement #1: | RESIDENTIAL | State Code: | Y | 1163.0 sqft | Value: | $211,834 |
| Bathrooms: | 1 | Bedrooms: | 3 | | Ceiling: | DRYWALL PAINTED | Exterior Wall/Cover: | WOOD SIDING | | Floor Covering: | CARPET/VINYL 80-20 | Floor Structure: | WOOD W/SUBFLOOR | | Foundation: | CONCRETE | Heating: | WALL HEAT ELECTRIC | | Interior Finish: | DRYWALL PAINT | Plumbing Fixture Cnt: | 6 | | Roof Slope: | 3" IN 12" | Roof Structure/Cover: | CJ ASPHALT |
|
| | Type | Description | Class CD | Sub Class CD | Year Built | Area |
| | BAS | BASE/MAIN FLOOR | 3 | 0 | 1991 | 1163.0 |
| | UTY | STORAGE/UTILITY | 3 | 0 | 1991 | 140.0 |
| | OP1 | OPEN PORCH SLAB | 3 | 0 | 1991 | 335.0 |
| | OCP | OPEN CARPORT | 3 | 0 | 1991 | 220.0 |
| | AGR | ATTACHED GARAGE | 3 | 0 | 1991 | 460.0 |
Sketch
Property Image
Land
| 1 | 16 | AC (00.51-01.00) | 0.5200 | 22651.20 | 0.00 | 0.00 | 1.00 | $230,000 | $0 |
Roll Value History
| 2026 | N/A | N/A | N/A | N/A | N/A |
| 2025 | $211,834 | $230,000 | $0 | $441,834 | $441,834 |
| 2024 | $214,541 | $210,000 | $0 | $424,541 | $424,541 |
| 2023 | $217,249 | $210,000 | $0 | $427,249 | $427,249 |
| 2022 | $199,180 | $170,000 | $0 | $369,180 | $369,180 |
| 2021 | $166,514 | $130,000 | $0 | $296,514 | $296,514 |
| 2020 | $162,478 | $110,000 | $0 | $272,478 | $272,478 |
| 2019 | $117,355 | $140,000 | $0 | $257,355 | $257,355 |
| 2018 | $113,382 | $130,000 | $0 | $243,382 | $243,382 |
| 2017 | $100,193 | $135,000 | $0 | $235,193 | $235,193 |
| 2016 | $101,549 | $75,000 | $0 | $176,549 | $176,549 |
| 2015 | $109,087 | $50,000 | $0 | $159,087 | $159,087 |
| 2014 | $110,511 | $50,000 | $0 | $160,511 | $160,511 |
| 2013 | $111,933 | $50,000 | $0 | $161,933 | $161,933 |
| 2012 | $113,357 | $66,400 | $0 | $179,757 | $179,757 |
| 2011 | $114,781 | $83,000 | $0 | $197,781 | $197,781 |
| 2010 | $119,204 | $83,000 | $0 | $202,204 | $202,204 |
| 2009 | $114,517 | $110,027 | $0 | $224,544 | $224,544 |
| 2008 | $126,022 | $99,000 | $0 | $225,022 | $225,022 |
| 2007 | $127,499 | $110,000 | $0 | $237,499 | $237,499 |
Deed and Sales History
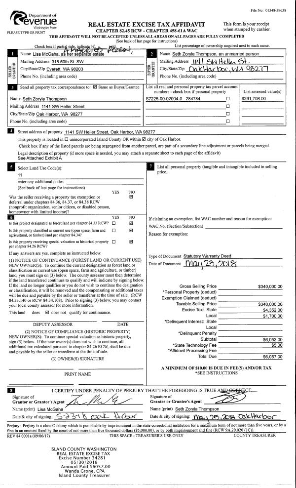
| 1 | 05/01/2018 | WD | Warranty Deed | MOREY, DWAYNE E | CUNNINGHAM, CYNTHIA A | | | $286,000.00 | 34010 | 4443983 |
| 2 | 11/13/2000 | WD | Warranty Deed | FLEMING, JAY & | MOREY, DWAYNE E | | | $129,000.00 | 4356 | 20020050 |
| 3 | 06/01/1997 | WD | Warranty Deed | WALLACE, STEVE B | FLEMING, JAY & | | | $117,550.00 | 72093 | 97009841 |
| 4 | 10/01/1993 | WD | Warranty Deed | RAMO, INC | WALLACE, STEVE B | | | $114,000.00 | 34133 | 93021612 |
| 5 | 12/01/1990 | QCD | Quit Claim Deed | HILD, TODD M | RAMO, INC | | | $0.00 | 6711 | 90023454 |
| 6 | 12/01/1990 | WD | Warranty Deed | Unknown | HILD, TODD M | | | $20,000.00 | 10044 | 91000310 |
Payout Agreement
| No payout information available.. |