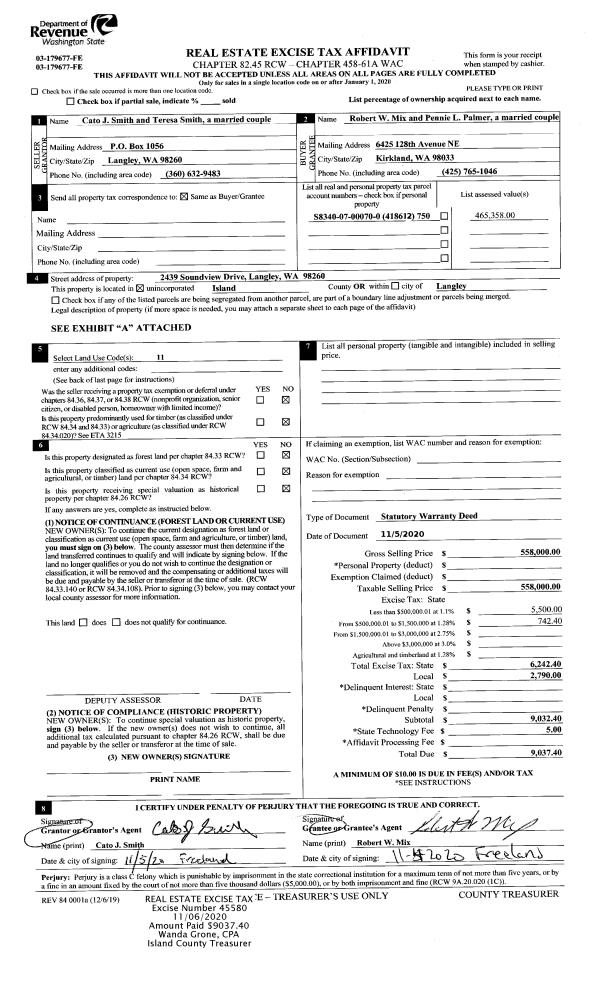
Property
Account |
| Property ID: | 401639 | Abbreviated Legal Description: | SUNNY SH AC LOT 75: BG NW CR LT 75 N47*E10'TPB N47*E328.16' S42*E150' S47*W327.79' N42*W150'TPB SP 71-026 |
| Geographic ID: | S8240-00-00075-4 | Agent Code: | |
| Type: | Real | | |
| Tax Area: | 542 - APPRAISER-Stan/Cam Schl Dist, Special Dist, improved, greater than 1 acre | Land Use Code | 11 |
| Open Space: | N | DFL | N |
| Historic Property: | N | Remodel Property: | N |
| Multi-Family Redevelopment: | N | | |
| Township: | | Section: | |
| Range: | |
Location |
| Address: | 2869 PARK DR CAMANO ISLAND, WA 98282 | Mapsco: | |
| Neighborhood: | Cycle 5 | Map ID: | 865 |
| Neighborhood CD: | 5 |
Owner |
| Name: | MILLER, JACK CLYDE | Owner ID: | 293702 |
| Mailing Address: | DEBORA CAROL MILLER 2869 PARK DR CAMANO ISLAND, WA 98282 | % Ownership: | 100.0000000000% |
| | | Exemptions: | |
Taxes and Assessment Details
Values
| (+) Improvement Homesite Value: | + | $0 | |
| (+) Improvement Non-Homesite Value: | + | $365,378 | |
| (+) Land Homesite Value: | + | $0 | |
| (+) Land Non-Homesite Value: | + | $250,000 | |
| (+) Curr Use (HS): | + | $0 | $0 |
| (+) Curr Use (NHS): | + | $0 | $0 |
| | | -------------------------- | |
| (=) Market Value: | = | $615,378 | |
| (–) Productivity Loss: | – | $0 | |
| | | -------------------------- | |
| (=) Subtotal: | = | $615,378 | |
| (+) Senior Appraised Value: | + | $0 | |
| (+) Non-Senior Appraised Value: | + | $615,378 | |
| | | -------------------------- | |
| (=) Total Appraised Value: | = | $615,378 | |
| (–) Senior Exemption Loss: | – | $0 | |
| (–) Exemption Loss: | – | $0 | |
| | | -------------------------- | |
| (=) Taxable Value: | = | $615,378 | |
Taxing Jurisdiction
| Owner: | MILLER, JACK CLYDE | | |
| % Ownership: | 100.0000000000% | | |
| Total Value: | $615,378 | | |
| Tax Area: | 542 - APPRAISER-Stan/Cam Schl Dist, Special Dist, improved, greater than 1 acre |
| CF | Conservation Futures | 0.0316035091 | $615,378 | $615,378 | $19.45 | | |
| EMS1 | Fire & Rescue Dist #1 Camano GEN (EMS) | 0.3677864386 | $615,378 | $615,378 | $226.33 | | |
| FIRE1 | Fire & Rescue Dist #1 Camano GEN | 1.2502910536 | $615,378 | $615,378 | $769.40 | | |
| FIRE1BOND | Fire & Rescue Dist #1 Camano BOND | 0.1570001679 | $615,378 | $615,378 | $96.61 | | |
| CE | County Current Expense | 0.3708482477 | $615,378 | $615,378 | $228.21 | | |
| CR | County Roads | 0.4584763726 | $615,378 | $615,378 | $282.14 | | |
| LCIB | Library Sno-Isle BOND (Camano Island) | 0.0396325772 | $615,378 | $615,378 | $24.39 | | |
| LIB | Library Sno-Isle GEN | 0.3153421757 | $615,378 | $615,378 | $194.05 | | |
| SCH205_401 | School 205-401 Enrichment | 1.2698420524 | $615,378 | $615,378 | $781.43 | | |
| SCH205BOND | School 205-401 BOND | 0.9396497583 | $615,378 | $615,378 | $578.24 | | |
| ST | State School | 1.3035497053 | $615,378 | $615,378 | $802.18 | | |
| ST2 | State School Part 2 | 0.8169543533 | $615,378 | $615,378 | $502.74 | | |
| | Total Tax Rate: | 7.3209764117 | | | | | |
| | | | | Taxes w/Current Exemptions: | $4,505.17 | | |
| | | | | Taxes w/o Exemptions: | $4,505.17 | | |
Improvement / Building
| Improvement #1: | RESIDENTIAL | State Code: | Y | 1344.0 sqft | Value: | $365,378 |
| Bathrooms: | 2 | Bedrooms: | 3 | | Ceiling: | DRYWALL PAINTED | Cooling: | HEAT PUMP/CONV/V | | Exterior Wall/Cover: | CEMENT FIBER | Floor Covering: | CERAMIC TILE/CPT 40-60 | | Floor Structure: | WOOD W/SUBFLOOR | Foundation: | CONCRETE | | Interior Finish: | DRYWALL PAINT | Plumbing Fixture Cnt: | 11 | | Roof Slope: | 8" IN 12" | Roof Structure/Cover: | CJ ASPHALT |
|
| | Type | Description | Class CD | Sub Class CD | Year Built | Area |
| | BAS | BASE/MAIN FLOOR | 3 | 0 | 2019 | 1344.0 |
| | AGR | ATTACHED GARAGE | 3 | 0 | 2019 | 440.0 |
| | OWP | OPEN WOOD PORCH W/STEPS | 3 | 0 | 2019 | 168.0 |
| | DGR | DETACHED GARAGE | 3 | 0 | 2019 | 720.0 |
| | OWC | OPEN WOOD PORCH W/STEPS/ROOF/C | 3 | 0 | 2019 | 66.0 |
| | UTY | STORAGE/UTILITY | 3 | 0 | 2019 | 120.0 |
| | CPD | OPEN CARPORT DIRT FLOOR | 3 | 0 | 2019 | 300.0 |
Sketch
Property Image
Land
| 1 | 17 | AC (01.01-02.00) | 1.2300 | 53578.80 | 0.00 | 0.00 | 1.00 | $250,000 | $0 |
Roll Value History
| 2026 | N/A | N/A | N/A | N/A | N/A |
| 2025 | $365,378 | $250,000 | $0 | $615,378 | $615,378 |
| 2024 | $368,323 | $220,000 | $0 | $588,323 | $588,323 |
| 2023 | $371,269 | $220,000 | $0 | $591,269 | $591,269 |
| 2022 | $338,864 | $190,000 | $0 | $528,864 | $528,864 |
| 2021 | $286,986 | $150,000 | $0 | $436,986 | $436,986 |
| 2020 | $275,541 | $140,000 | $0 | $415,541 | $415,541 |
| 2019 | $0 | $65,000 | $0 | $65,000 | $65,000 |
| 2018 | $0 | $65,000 | $0 | $65,000 | $65,000 |
| 2017 | $0 | $65,000 | $0 | $65,000 | $65,000 |
| 2016 | $0 | $65,000 | $0 | $65,000 | $65,000 |
| 2015 | $0 | $50,000 | $0 | $50,000 | $50,000 |
| 2014 | $0 | $50,000 | $0 | $50,000 | $50,000 |
| 2013 | $0 | $50,000 | $0 | $50,000 | $50,000 |
| 2012 | $0 | $55,800 | $0 | $55,800 | $55,800 |
| 2011 | $0 | $55,800 | $0 | $55,800 | $55,800 |
| 2010 | $0 | $55,800 | $0 | $55,800 | $55,800 |
| 2009 | $0 | $86,400 | $0 | $86,400 | $86,400 |
| 2008 | $0 | $71,280 | $0 | $71,280 | $71,280 |
| 2007 | $0 | $70,000 | $0 | $70,000 | $70,000 |
Deed and Sales History
| 1 | 03/03/2020 | WD | Warranty Deed | FLOORS & MORE, INC. | MILLER, JACK CLYDE | | | $475,000.00 | 42330 | 4482691 |
| 2 | 03/14/2019 | WD | Warranty Deed | RODRIQUEZ, LORENZO H | FLOORS & MORE, INC. | | | $75,000.00 | 37911 | 4460703 |
Payout Agreement
| No payout information available.. |