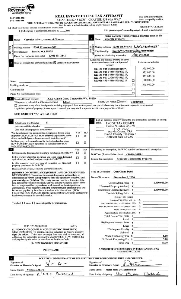
Property
Account |
| Property ID: | 401737 | Abbreviated Legal Description: | SUNNY SH AC PT LOT 76: BG MST ELY CR LOT 76 S47*W270.98' TPB S47*W135.49' N42*W400.55' N47*E135.49' S42*E400.44' TPB TGW & SUBJ TO EZ (TR C SP 74-023) |
| Geographic ID: | S8240-00-00076-7 | Agent Code: | |
| Type: | Real | | |
| Tax Area: | 542 - APPRAISER-Stan/Cam Schl Dist, Special Dist, improved, greater than 1 acre | Land Use Code | 11 |
| Open Space: | N | DFL | N |
| Historic Property: | N | Remodel Property: | N |
| Multi-Family Redevelopment: | N | | |
| Township: | | Section: | |
| Range: | |
Location |
| Address: | 1261 KENDALS PLACE CAMANO ISLAND, WA 98282 | Mapsco: | |
| Neighborhood: | Cycle 5 | Map ID: | 865 |
| Neighborhood CD: | 5 |
Owner |
| Name: | KIRBY, JUDY (50%) | Owner ID: | 293697 |
| Mailing Address: | CORINNA KOCH-HOWARD (50%) 5809 66TH NE MARYSVILLE, WA 98270 | % Ownership: | 100.0000000000% |
| | | Exemptions: | |
Taxes and Assessment Details
Values
| (+) Improvement Homesite Value: | + | $0 | |
| (+) Improvement Non-Homesite Value: | + | $363,568 | |
| (+) Land Homesite Value: | + | $0 | |
| (+) Land Non-Homesite Value: | + | $250,000 | |
| (+) Curr Use (HS): | + | $0 | $0 |
| (+) Curr Use (NHS): | + | $0 | $0 |
| | | -------------------------- | |
| (=) Market Value: | = | $613,568 | |
| (–) Productivity Loss: | – | $0 | |
| | | -------------------------- | |
| (=) Subtotal: | = | $613,568 | |
| (+) Senior Appraised Value: | + | $0 | |
| (+) Non-Senior Appraised Value: | + | $613,568 | |
| | | -------------------------- | |
| (=) Total Appraised Value: | = | $613,568 | |
| (–) Senior Exemption Loss: | – | $0 | |
| (–) Exemption Loss: | – | $0 | |
| | | -------------------------- | |
| (=) Taxable Value: | = | $613,568 | |
Taxing Jurisdiction
| Owner: | KIRBY, JUDY (50%) | | |
| % Ownership: | 100.0000000000% | | |
| Total Value: | $613,568 | | |
| Tax Area: | 542 - APPRAISER-Stan/Cam Schl Dist, Special Dist, improved, greater than 1 acre |
| CF | Conservation Futures | 0.0316035091 | $613,568 | $613,568 | $19.39 | | |
| EMS1 | Fire & Rescue Dist #1 Camano GEN (EMS) | 0.3677864386 | $613,568 | $613,568 | $225.66 | | |
| FIRE1 | Fire & Rescue Dist #1 Camano GEN | 1.2502910536 | $613,568 | $613,568 | $767.14 | | |
| FIRE1BOND | Fire & Rescue Dist #1 Camano BOND | 0.1570001679 | $613,568 | $613,568 | $96.33 | | |
| CE | County Current Expense | 0.3708482477 | $613,568 | $613,568 | $227.54 | | |
| CR | County Roads | 0.4584763726 | $613,568 | $613,568 | $281.31 | | |
| LCIB | Library Sno-Isle BOND (Camano Island) | 0.0396325772 | $613,568 | $613,568 | $24.32 | | |
| LIB | Library Sno-Isle GEN | 0.3153421757 | $613,568 | $613,568 | $193.48 | | |
| SCH205_401 | School 205-401 Enrichment | 1.2698420524 | $613,568 | $613,568 | $779.13 | | |
| SCH205BOND | School 205-401 BOND | 0.9396497583 | $613,568 | $613,568 | $576.54 | | |
| ST | State School | 1.3035497053 | $613,568 | $613,568 | $799.82 | | |
| ST2 | State School Part 2 | 0.8169543533 | $613,568 | $613,568 | $501.26 | | |
| | Total Tax Rate: | 7.3209764117 | | | | | |
| | | | | Taxes w/Current Exemptions: | $4,491.92 | | |
| | | | | Taxes w/o Exemptions: | $4,491.92 | | |
Improvement / Building
| Improvement #1: | RESIDENTIAL | State Code: | Y | 2095.9 sqft | Value: | $363,568 |
| Bathrooms: | 2.5 | Bedrooms: | 3 | | Ceiling: | DRYWALL PAINTED | Exterior Wall/Cover: | PLY/HARDBOARD T-111 | | Floor Covering: | CARPET/VINYL 80-20 | Floor Structure: | WOOD W/SUBFLOOR | | Foundation: | CONCRETE | Heating: | WALL HEAT ELECTRIC | | Interior Finish: | DRYWALL PAINT | Plumbing Fixture Cnt: | 13 | | Roof Slope: | 8" IN 12" | Roof Structure/Cover: | CJ ASPHALT |
|
| | Type | Description | Class CD | Sub Class CD | Year Built | Area |
| | BAS | BASE/MAIN FLOOR | 4 | 0 | 1994 | 1183.3 |
| | OP4 | OPEN PORCH W/CEILING-ROOF | 4 | 0 | 1994 | 47.3 |
| | AGR | ATTACHED GARAGE | 4 | 0 | 1994 | 518.4 |
| | UTY | STORAGE/UTILITY | 4 | 0 | 1994 | 159.6 |
| | UPS | UPPER STORY | 4 | 0 | 1994 | 912.6 |
| | OWC | OPEN WOOD PORCH W/STEPS/ROOF/C | 4 | 0 | 1994 | 399.2 |
Sketch
Property Image
Land
| 1 | 17 | AC (01.01-02.00) | 1.2400 | 54014.40 | 0.00 | 0.00 | 1.00 | $250,000 | $0 |
Roll Value History
| 2026 | N/A | N/A | N/A | N/A | N/A |
| 2025 | $363,568 | $250,000 | $0 | $613,568 | $613,568 |
| 2024 | $368,465 | $220,000 | $0 | $588,465 | $588,465 |
| 2023 | $373,361 | $220,000 | $0 | $593,361 | $593,361 |
| 2022 | $342,516 | $190,000 | $0 | $532,516 | $532,516 |
| 2021 | $262,553 | $150,000 | $0 | $412,553 | $412,553 |
| 2020 | $259,203 | $140,000 | $0 | $399,203 | $399,203 |
| 2019 | $196,676 | $170,000 | $0 | $366,676 | $366,676 |
| 2018 | $197,296 | $130,000 | $0 | $327,296 | $327,296 |
| 2017 | $198,445 | $75,000 | $0 | $273,445 | $273,445 |
| 2016 | $200,924 | $75,000 | $0 | $275,924 | $275,924 |
| 2015 | $206,241 | $50,000 | $0 | $256,241 | $256,241 |
| 2014 | $208,756 | $50,000 | $0 | $258,756 | $258,756 |
| 2013 | $211,272 | $50,000 | $0 | $261,272 | $261,272 |
| 2012 | $213,788 | $74,400 | $0 | $288,188 | $288,188 |
| 2011 | $216,303 | $93,000 | $0 | $309,303 | $309,303 |
| 2010 | $226,676 | $93,000 | $0 | $319,676 | $319,676 |
| 2009 | $236,348 | $120,000 | $0 | $356,348 | $356,348 |
| 2008 | $239,212 | $99,000 | $0 | $338,212 | $338,212 |
| 2007 | $242,102 | $110,000 | $0 | $352,102 | $352,102 |
Deed and Sales History
| 1 | 12/26/2012 | QCD | Quit Claim Deed | KIRBY, JUDY | KIRBY, JUDY (50%) | | | $0.00 | 42324 | 4482657 |
| 2 | 12/26/2012 | QCD | Quit Claim Deed | KIRBY, JUDY | KOCH-HOWARD, CORINNA | | | $0.00 | 9893 | 4330019 |
| 3 | 08/26/2003 | WD | Warranty Deed | KOCH, RONALD L | KIRBY, JUDY | | | $110,000.00 | 33909 | 4073430 |
| 4 | 06/01/1994 | WD | Warranty Deed | KOCH, RICHARD M | KOCH, RONALD L | | | $13,000.00 | 42267 | 94012935 |
| 5 | 08/01/1993 | WD | Warranty Deed | EDGE, E L | KOCH, RICHARD M | | | $10,500.00 | 33108 | 93016128 |
| 6 | 01/01/1900 | OTHER | Other - Misc. Documents | Unknown | EDGE, E L | | | $0.00 | 0 | 0 |
Payout Agreement
| No payout information available.. |