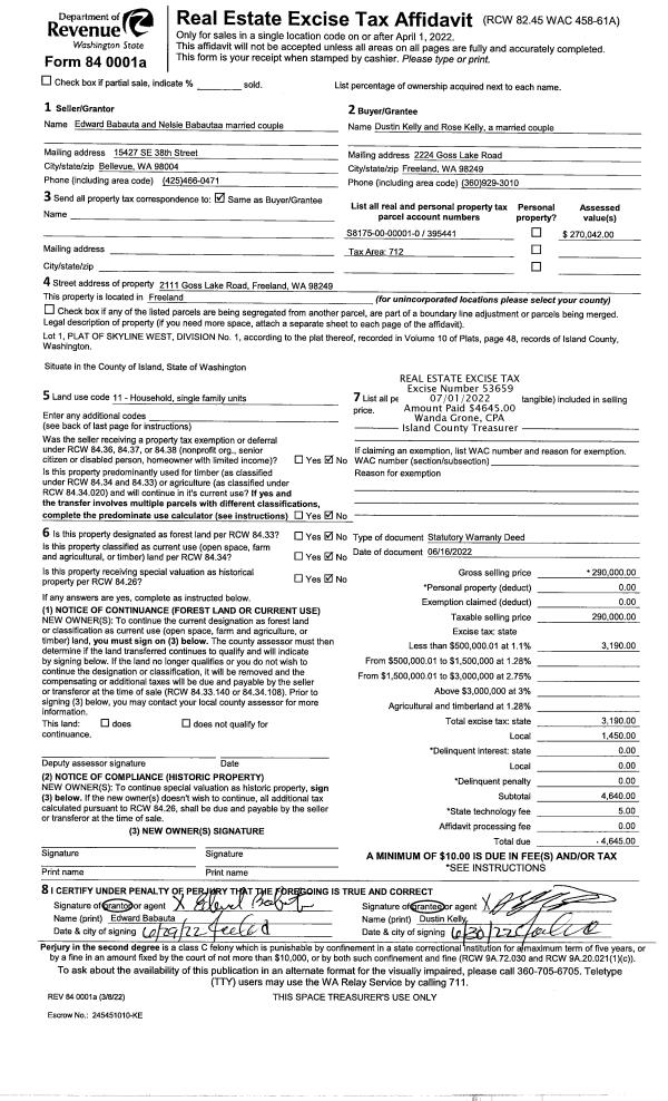
Property
Account |
| Property ID: | 401880 | Abbreviated Legal Description: | SUNNY SH AC SELY 400' OF NELY 505' OF LOT 83 EX SELY 200' (TR 2 SP 76-85 AF#309312) |
| Geographic ID: | S8240-00-00083-6 | Agent Code: | |
| Type: | Real | | |
| Tax Area: | 542 - APPRAISER-Stan/Cam Schl Dist, Special Dist, improved, greater than 1 acre | Land Use Code | 11 |
| Open Space: | N | DFL | N |
| Historic Property: | N | Remodel Property: | N |
| Multi-Family Redevelopment: | N | | |
| Township: | | Section: | |
| Range: | |
Location |
| Address: | 2638 S EAST CAMANO DR CAMANO ISLAND, WA 98282 | Mapsco: | |
| Neighborhood: | Cycle 5 | Map ID: | 852 |
| Neighborhood CD: | 5 |
Owner |
| Name: | ROWELL, BUDDY | Owner ID: | 196765 |
| Mailing Address: | DEARLENE D ROWELL 2638 SE CAMANO DR CAMANO ISLAND, WA 98282-8238 | % Ownership: | 100.0000000000% |
| | | Exemptions: | |
Taxes and Assessment Details
Values
| (+) Improvement Homesite Value: | + | $0 | |
| (+) Improvement Non-Homesite Value: | + | $494,052 | |
| (+) Land Homesite Value: | + | $0 | |
| (+) Land Non-Homesite Value: | + | $270,000 | |
| (+) Curr Use (HS): | + | $0 | $0 |
| (+) Curr Use (NHS): | + | $0 | $0 |
| | | -------------------------- | |
| (=) Market Value: | = | $764,052 | |
| (–) Productivity Loss: | – | $0 | |
| | | -------------------------- | |
| (=) Subtotal: | = | $764,052 | |
| (+) Senior Appraised Value: | + | $0 | |
| (+) Non-Senior Appraised Value: | + | $764,052 | |
| | | -------------------------- | |
| (=) Total Appraised Value: | = | $764,052 | |
| (–) Senior Exemption Loss: | – | $0 | |
| (–) Exemption Loss: | – | $0 | |
| | | -------------------------- | |
| (=) Taxable Value: | = | $764,052 | |
Taxing Jurisdiction
| Owner: | ROWELL, BUDDY | | |
| % Ownership: | 100.0000000000% | | |
| Total Value: | $764,052 | | |
| Tax Area: | 542 - APPRAISER-Stan/Cam Schl Dist, Special Dist, improved, greater than 1 acre |
| CF | Conservation Futures | 0.0316035091 | $764,052 | $764,052 | $24.15 | | |
| EMS1 | Fire & Rescue Dist #1 Camano GEN (EMS) | 0.3677864386 | $764,052 | $764,052 | $281.01 | | |
| FIRE1 | Fire & Rescue Dist #1 Camano GEN | 1.2502910536 | $764,052 | $764,052 | $955.29 | | |
| FIRE1BOND | Fire & Rescue Dist #1 Camano BOND | 0.1570001679 | $764,052 | $764,052 | $119.96 | | |
| CE | County Current Expense | 0.3708482477 | $764,052 | $764,052 | $283.35 | | |
| CR | County Roads | 0.4584763726 | $764,052 | $764,052 | $350.30 | | |
| LCIB | Library Sno-Isle BOND (Camano Island) | 0.0396325772 | $764,052 | $764,052 | $30.28 | | |
| LIB | Library Sno-Isle GEN | 0.3153421757 | $764,052 | $764,052 | $240.94 | | |
| SCH205_401 | School 205-401 Enrichment | 1.2698420524 | $764,052 | $764,052 | $970.23 | | |
| SCH205BOND | School 205-401 BOND | 0.9396497583 | $764,052 | $764,052 | $717.94 | | |
| ST | State School | 1.3035497053 | $764,052 | $764,052 | $995.98 | | |
| ST2 | State School Part 2 | 0.8169543533 | $764,052 | $764,052 | $624.20 | | |
| | Total Tax Rate: | 7.3209764117 | | | | | |
| | | | | Taxes w/Current Exemptions: | $5,593.63 | | |
| | | | | Taxes w/o Exemptions: | $5,593.63 | | |
Improvement / Building
| Improvement #1: | RESIDENTIAL | State Code: | Y | 2224.1 sqft | Value: | $494,052 |
| Bathrooms: | 2 | Bedrooms: | 3 | | Ceiling: | DRYWALL PAINTED | Cooling: | HEAT PUMP/CONV/V | | Exterior Wall/Cover: | CEMENT FIBER | Floor Covering: | HARDWOOD/CARP 80-20 | | Floor Structure: | WOOD W/SUBFLOOR | Foundation: | CONCRETE | | Interior Finish: | DRYWALL PAINT | Plumbing Fixture Cnt: | 10 | | Roof Slope: | 12" IN 12" | Roof Structure/Cover: | CJ ASPHALT |
|
| | Type | Description | Class CD | Sub Class CD | Year Built | Area |
| | BAS | BASE/MAIN FLOOR | 4 | 0 | 2007 | 1789.1 |
| | BIG | BUILT IN GARAGE | 4 | 0 | 2007 | 579.9 |
| | UPH | HALF STORY | 4 | 0 | 2007 | 435.0 |
| | OWC | OPEN WOOD PORCH W/STEPS/ROOF/C | 4 | 0 | 2007 | 139.9 |
| | OWC | OPEN WOOD PORCH W/STEPS/ROOF/C | 4 | 0 | 2007 | 136.8 |
Sketch
Property Image
Land
| 1 | 18 | AC (02.01-03.00) | 2.3200 | 101059.20 | 0.00 | 0.00 | 1.00 | $270,000 | $0 |
Roll Value History
| 2026 | N/A | N/A | N/A | N/A | N/A |
| 2025 | $494,052 | $270,000 | $0 | $764,052 | $764,052 |
| 2024 | $499,715 | $270,000 | $0 | $769,715 | $769,715 |
| 2023 | $505,376 | $240,000 | $0 | $745,376 | $745,376 |
| 2022 | $461,473 | $230,000 | $0 | $691,473 | $691,473 |
| 2021 | $415,573 | $150,000 | $0 | $565,573 | $565,573 |
| 2020 | $407,112 | $140,000 | $0 | $547,112 | $547,112 |
| 2019 | $306,426 | $170,000 | $0 | $476,426 | $476,426 |
| 2018 | $307,275 | $150,000 | $0 | $457,275 | $457,275 |
| 2017 | $286,404 | $105,000 | $0 | $391,404 | $391,404 |
| 2016 | $289,552 | $105,000 | $0 | $394,552 | $394,552 |
| 2015 | $282,256 | $50,000 | $0 | $332,256 | $332,256 |
| 2014 | $285,344 | $50,000 | $0 | $335,344 | $335,344 |
| 2013 | $288,433 | $50,000 | $0 | $338,433 | $338,433 |
| 2012 | $291,522 | $74,400 | $0 | $365,922 | $365,922 |
| 2011 | $294,609 | $93,000 | $0 | $387,609 | $387,609 |
| 2010 | $304,562 | $93,000 | $0 | $397,562 | $397,562 |
| 2009 | $329,779 | $120,000 | $0 | $449,779 | $449,779 |
| 2008 | $339,756 | $99,000 | $0 | $438,756 | $438,756 |
| 2007 | $343,404 | $110,000 | $0 | $453,404 | $453,404 |
Deed and Sales History
| 1 | 05/03/2006 | WD | Warranty Deed | HARRIS, KEVIN T | ROWELL, BUDDY | | | $140,000.00 | 61974 | 4169558 |
| 2 | 01/01/1994 | OTHER | Other - Misc. Documents | HARRIS, KEVIN T | HARRIS, KEVIN T | | | $0.00 | 11111111 | 0 |
| 3 | 02/01/1990 | WD | Warranty Deed | BEDDOES, HARRY G | HARRIS, KEVIN T | | | $35,000.00 | 968 | 90003163 |
| 4 | 04/01/1981 | CD | DNU - Correction Deed | BELANICH, DARRYL N | BEDDOES, HARRY G | | | $1.00 | 11291 | 382365 |
| 5 | 10/01/1980 | TRUSTEED | Trustee's Deed | ERICKSON, WILLIAM A | BELANICH, DARRYL N | | | $25,000.00 | 3407 | 374983 |
| 6 | 06/01/1979 | EZ | Easement | ERICKSON, W A | ERICKSON, WILLIAM A | | | $15,500.00 | 927510 | 3535410 |
| 7 | 06/01/1979 | CD | DNU - Correction Deed | RICHARDS, ROYAL A | ERICKSON, W A | | | $0.00 | 93024 | 354412 |
| 8 | 08/01/1978 | OTHER | Other - Misc. Documents | RICHARDS, ROYAL A | RICHARDS, ROYAL A | | | $12,000.00 | 842410 | 3389900 |
| 9 | 08/01/1978 | OTHER | Other - Misc. Documents | Unknown | RICHARDS, ROYAL A | | | $12,000.00 | 842410 | 3389900 |
Payout Agreement
| No payout information available.. |