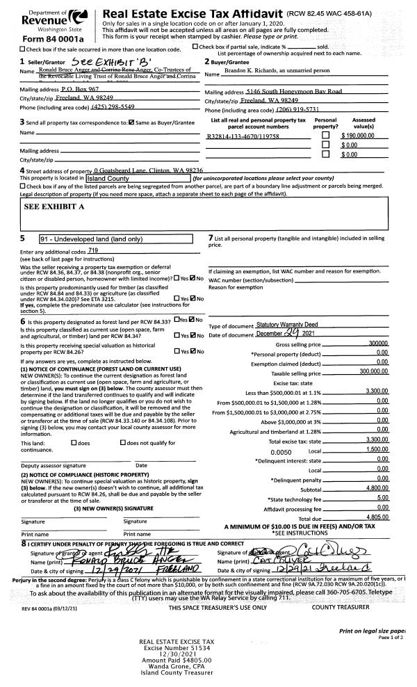
Property
Account |
| Property ID: | 402120 | Abbreviated Legal Description: | SUNNY SH AC 2 LOT 8 INCL ADJ TIDES |
| Geographic ID: | S8240-02-00008-0 | Agent Code: | |
| Type: | Real | | |
| Tax Area: | 542 - APPRAISER-Stan/Cam Schl Dist, Special Dist, improved, greater than 1 acre | Land Use Code | 11 |
| Open Space: | N | DFL | N |
| Historic Property: | N | Remodel Property: | N |
| Multi-Family Redevelopment: | N | | |
| Township: | | Section: | |
| Range: | |
Location |
| Address: | 2665 S EAST CAMANO DR CAMANO ISLAND, WA 98282 | Mapsco: | |
| Neighborhood: | Cycle 5 | Map ID: | 850 |
| Neighborhood CD: | 5 |
Owner |
| Name: | RICHEY, MICHAEL | Owner ID: | 67848 |
| Mailing Address: | ALETHA J MARTZ 2665 S EAST CAMANO DR CAMANO ISLAND, WA 98282-8238 | % Ownership: | 100.0000000000% |
| | | Exemptions: | |
Taxes and Assessment Details
Values
| (+) Improvement Homesite Value: | + | $0 | |
| (+) Improvement Non-Homesite Value: | + | $579,434 | |
| (+) Land Homesite Value: | + | $0 | |
| (+) Land Non-Homesite Value: | + | $575,980 | |
| (+) Curr Use (HS): | + | $0 | $0 |
| (+) Curr Use (NHS): | + | $0 | $0 |
| | | -------------------------- | |
| (=) Market Value: | = | $1,155,414 | |
| (–) Productivity Loss: | – | $0 | |
| | | -------------------------- | |
| (=) Subtotal: | = | $1,155,414 | |
| (+) Senior Appraised Value: | + | $0 | |
| (+) Non-Senior Appraised Value: | + | $1,155,414 | |
| | | -------------------------- | |
| (=) Total Appraised Value: | = | $1,155,414 | |
| (–) Senior Exemption Loss: | – | $0 | |
| (–) Exemption Loss: | – | $0 | |
| | | -------------------------- | |
| (=) Taxable Value: | = | $1,155,414 | |
Taxing Jurisdiction
| Owner: | RICHEY, MICHAEL | | |
| % Ownership: | 100.0000000000% | | |
| Total Value: | $1,155,414 | | |
| Tax Area: | 542 - APPRAISER-Stan/Cam Schl Dist, Special Dist, improved, greater than 1 acre |
| CF | Conservation Futures | 0.0316035091 | $1,155,414 | $1,155,414 | $36.52 | | |
| EMS1 | Fire & Rescue Dist #1 Camano GEN (EMS) | 0.3677864386 | $1,155,414 | $1,155,414 | $424.95 | | |
| FIRE1 | Fire & Rescue Dist #1 Camano GEN | 1.2502910536 | $1,155,414 | $1,155,414 | $1,444.60 | | |
| FIRE1BOND | Fire & Rescue Dist #1 Camano BOND | 0.1570001679 | $1,155,414 | $1,155,414 | $181.40 | | |
| CE | County Current Expense | 0.3708482477 | $1,155,414 | $1,155,414 | $428.48 | | |
| CR | County Roads | 0.4584763726 | $1,155,414 | $1,155,414 | $529.73 | | |
| LCIB | Library Sno-Isle BOND (Camano Island) | 0.0396325772 | $1,155,414 | $1,155,414 | $45.79 | | |
| LIB | Library Sno-Isle GEN | 0.3153421757 | $1,155,414 | $1,155,414 | $364.35 | | |
| SCH205_401 | School 205-401 Enrichment | 1.2698420524 | $1,155,414 | $1,155,414 | $1,467.19 | | |
| SCH205BOND | School 205-401 BOND | 0.9396497583 | $1,155,414 | $1,155,414 | $1,085.68 | | |
| ST | State School | 1.3035497053 | $1,155,414 | $1,155,414 | $1,506.14 | | |
| ST2 | State School Part 2 | 0.8169543533 | $1,155,414 | $1,155,414 | $943.92 | | |
| | Total Tax Rate: | 7.3209764117 | | | | | |
| | | | | Taxes w/Current Exemptions: | $8,458.75 | | |
| | | | | Taxes w/o Exemptions: | $8,458.75 | | |
Improvement / Building
| Improvement #1: | RESIDENTIAL | State Code: | Y | 3406.1 sqft | Value: | $579,434 |
| Bathrooms: | 2.5 | Bedrooms: | 4 | | Ceiling: | DRYWALL PAINTED | Cooling: | HEAT PUMP/CONV/V | | Exterior Wall/Cover: | CEMENT FIBER | Floor Covering: | HARDWOOD/CARP 20-80 | | Floor Structure: | WOOD W/SUBFLOOR | Foundation: | CONCRETE | | Interior Finish: | DRYWALL PAINT | Plumbing Fixture Cnt: | 11 | | Roof Slope: | 12" IN 12" | Roof Structure/Cover: | CJ ASPHALT |
|
| | Type | Description | Class CD | Sub Class CD | Year Built | Area |
| | BAS | BASE/MAIN FLOOR | 4 | 0 | 1996 | 1670.6 |
| | OP2 | OPEN PORCH W/STEPS | 4 | 0 | 1996 | 700.5 |
| | OP4 | OPEN PORCH W/CEILING-ROOF | 4 | 0 | 1996 | 56.0 |
| | AGR | ATTACHED GARAGE | 4 | 0 | 1996 | 698.7 |
| | UPS | UPPER STORY | 4 | 0 | 1996 | 1735.5 |
| | OWP | OPEN WOOD PORCH W/STEPS | 4 | 0 | 1996 | 309.1 |
Sketch
Property Image
Land
| 1 | HB | HIGH BLUFF | 1.2900 | 56192.40 | 98.00 | 0.00 | 1.00 | $575,000 | $0 |
| 2 | 55 | TIDES | 0.0000 | 0.00 | 98.00 | 0.00 | 1.00 | $980 | $0 |
Roll Value History
| 2026 | N/A | N/A | N/A | N/A | N/A |
| 2025 | $579,434 | $575,980 | $0 | $1,155,414 | $1,155,414 |
| 2024 | $586,394 | $575,980 | $0 | $1,162,374 | $1,162,374 |
| 2023 | $593,353 | $550,980 | $0 | $1,144,333 | $1,144,333 |
| 2022 | $543,565 | $475,980 | $0 | $1,019,545 | $1,019,545 |
| 2021 | $362,482 | $400,980 | $0 | $763,462 | $763,462 |
| 2020 | $354,515 | $285,980 | $0 | $640,495 | $640,495 |
| 2019 | $280,751 | $300,980 | $0 | $581,731 | $581,731 |
| 2018 | $281,637 | $250,980 | $0 | $532,617 | $532,617 |
| 2017 | $283,408 | $250,980 | $0 | $534,388 | $534,388 |
| 2016 | $286,950 | $250,980 | $0 | $537,930 | $537,930 |
| 2015 | $282,024 | $200,980 | $0 | $483,004 | $483,004 |
| 2014 | $285,544 | $200,980 | $0 | $486,524 | $486,524 |
| 2013 | $289,064 | $222,373 | $0 | $511,437 | $511,437 |
| 2012 | $292,584 | $222,373 | $0 | $514,957 | $514,957 |
| 2011 | $296,105 | $277,721 | $0 | $573,826 | $573,826 |
| 2010 | $309,210 | $308,470 | $0 | $617,680 | $617,680 |
| 2009 | $321,899 | $331,746 | $0 | $653,645 | $653,645 |
| 2008 | $326,039 | $331,746 | $0 | $657,785 | $657,785 |
| 2007 | $330,176 | $331,060 | $0 | $661,236 | $661,236 |
Deed and Sales History
| 1 | 12/10/1998 | QCD | Quit Claim Deed | RICHEY, MICHAEL & | RICHEY, MICHAEL | | | $0.00 | 85066 | 98027772 |
| 2 | 03/01/1995 | WD | Warranty Deed | NATOLI, ROYCE | RICHEY, MICHAEL & | | | $90,000.00 | 50790 | 95003878 |
| 3 | 01/01/1900 | OTHER | Other - Misc. Documents | Unknown | NATOLI, ROYCE | | | $0.00 | 0 | 0 |
Payout Agreement
| No payout information available.. |