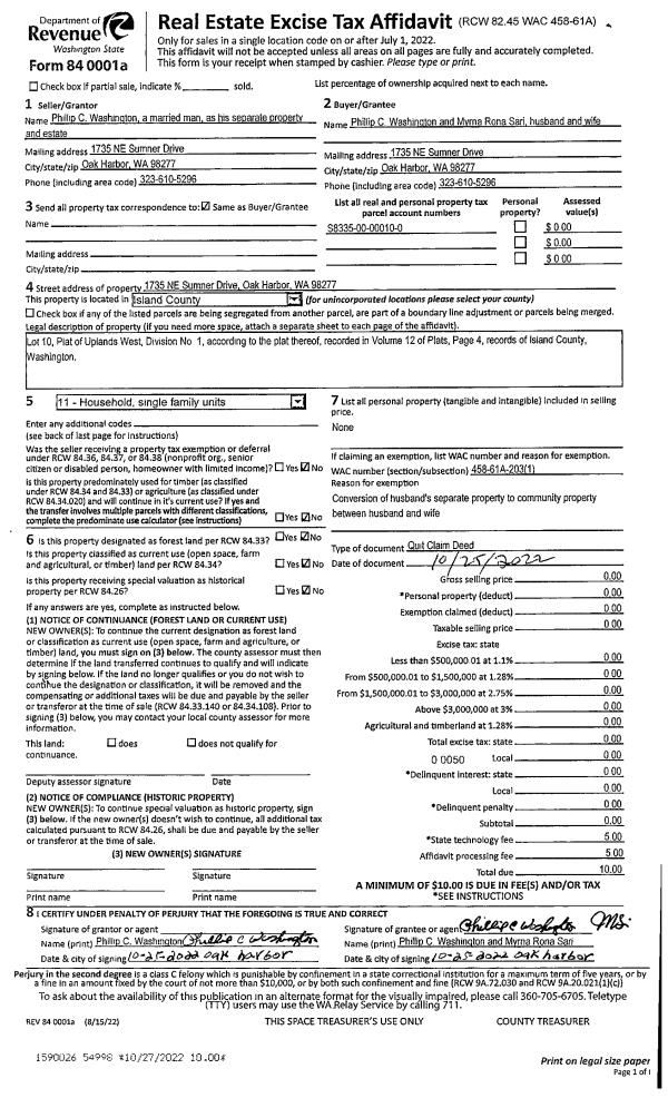
Property
Account |
| Property ID: | 402139 | Abbreviated Legal Description: | SUNNY SH AC 2 LOT 9 INCL ADJ TIDES |
| Geographic ID: | S8240-02-00009-0 | Agent Code: | |
| Type: | Real | | |
| Tax Area: | 549 - APPRAISER-Stan/Cam Schl Dist, Special Dist, vacant & 50 acres or less | Land Use Code | 99 |
| Open Space: | N | DFL | N |
| Historic Property: | N | Remodel Property: | N |
| Multi-Family Redevelopment: | N | | |
| Township: | | Section: | |
| Range: | |
Location |
| Address: | | Mapsco: | |
| Neighborhood: | Cycle 5 | Map ID: | 850 |
| Neighborhood CD: | 5 |
Owner |
| Name: | BROSSARD TTEE, ELLIOTT | Owner ID: | 303798 |
| Mailing Address: | JULAINE BROSSARD TTEE 8728 124TH AVE NE KIRKLAND, WA 98033 | % Ownership: | 100.0000000000% |
| | | Exemptions: | |
Taxes and Assessment Details
Values
| (+) Improvement Homesite Value: | + | $0 | |
| (+) Improvement Non-Homesite Value: | + | $0 | |
| (+) Land Homesite Value: | + | $0 | |
| (+) Land Non-Homesite Value: | + | $275,970 | |
| (+) Curr Use (HS): | + | $0 | $0 |
| (+) Curr Use (NHS): | + | $0 | $0 |
| | | -------------------------- | |
| (=) Market Value: | = | $275,970 | |
| (–) Productivity Loss: | – | $0 | |
| | | -------------------------- | |
| (=) Subtotal: | = | $275,970 | |
| (+) Senior Appraised Value: | + | $0 | |
| (+) Non-Senior Appraised Value: | + | $275,970 | |
| | | -------------------------- | |
| (=) Total Appraised Value: | = | $275,970 | |
| (–) Senior Exemption Loss: | – | $0 | |
| (–) Exemption Loss: | – | $0 | |
| | | -------------------------- | |
| (=) Taxable Value: | = | $275,970 | |
Taxing Jurisdiction
| Owner: | BROSSARD TTEE, ELLIOTT | | |
| % Ownership: | 100.0000000000% | | |
| Total Value: | $275,970 | | |
| Tax Area: | 549 - APPRAISER-Stan/Cam Schl Dist, Special Dist, vacant & 50 acres or less |
| CF | Conservation Futures | 0.0316035091 | $275,970 | $275,970 | $8.72 | | |
| EMS1 | Fire & Rescue Dist #1 Camano GEN (EMS) | 0.3677864386 | $275,970 | $275,970 | $101.50 | | |
| CE | County Current Expense | 0.3708482477 | $275,970 | $275,970 | $102.34 | | |
| CR | County Roads | 0.4584763726 | $275,970 | $275,970 | $126.53 | | |
| LCIB | Library Sno-Isle BOND (Camano Island) | 0.0396325772 | $275,970 | $275,970 | $10.94 | | |
| LIB | Library Sno-Isle GEN | 0.3153421757 | $275,970 | $275,970 | $87.02 | | |
| SCH205_401 | School 205-401 Enrichment | 1.2698420524 | $275,970 | $275,970 | $350.44 | | |
| SCH205BOND | School 205-401 BOND | 0.9396497583 | $275,970 | $275,970 | $259.32 | | |
| ST | State School | 1.3035497053 | $275,970 | $275,970 | $359.74 | | |
| ST2 | State School Part 2 | 0.8169543533 | $275,970 | $275,970 | $225.45 | | |
| | Total Tax Rate: | 5.9136851902 | | | | | |
| | | | | Taxes w/Current Exemptions: | $1,632.00 | | |
| | | | | Taxes w/o Exemptions: | $1,632.00 | | |
Improvement / Building
Sketch
| No sketches available for this property. |
Property Image
Land
| 1 | HB | HIGH BLUFF | 1.1300 | 49222.80 | 97.00 | 0.00 | 1.00 | $275,000 | $0 |
| 2 | 55 | TIDES | 0.0000 | 0.00 | 97.00 | 0.00 | 1.00 | $970 | $0 |
Roll Value History
| 2026 | N/A | N/A | N/A | N/A | N/A |
| 2025 | $0 | $275,970 | $0 | $275,970 | $275,970 |
| 2024 | $0 | $275,970 | $0 | $275,970 | $275,970 |
| 2023 | $0 | $250,970 | $0 | $250,970 | $250,970 |
| 2022 | $0 | $225,970 | $0 | $225,970 | $225,970 |
| 2021 | $0 | $175,970 | $0 | $175,970 | $175,970 |
| 2020 | $0 | $175,970 | $0 | $175,970 | $175,970 |
| 2019 | $0 | $175,970 | $0 | $175,970 | $175,970 |
| 2018 | $0 | $175,970 | $0 | $175,970 | $175,970 |
| 2017 | $0 | $175,970 | $0 | $175,970 | $175,970 |
| 2016 | $0 | $175,970 | $0 | $175,970 | $175,970 |
| 2015 | $0 | $150,970 | $0 | $150,970 | $150,970 |
| 2014 | $0 | $150,970 | $0 | $150,970 | $150,970 |
| 2013 | $0 | $145,929 | $0 | $145,929 | $145,929 |
| 2012 | $0 | $145,929 | $0 | $145,929 | $145,929 |
| 2011 | $0 | $182,169 | $0 | $182,169 | $182,169 |
| 2010 | $0 | $259,826 | $0 | $259,826 | $259,826 |
| 2009 | $0 | $261,533 | $0 | $261,533 | $261,533 |
| 2008 | $0 | $252,090 | $0 | $252,090 | $252,090 |
| 2007 | $0 | $251,411 | $0 | $251,411 | $251,411 |
Deed and Sales History
| 1 | 06/14/2022 | WD | Warranty Deed | CAIN, KEVIN M | BROSSARD TTEE, ELLIOTT | | | $0.00 | 53606 | 4547245 |
| 2 | 06/14/2022 | WD | Warranty Deed | CAIN, KEVIN M | BROSSARD TTEE, ELLIOTT | | | $0.00 | 53615 | 4547279 |
| 3 | 06/14/2022 | WD | Warranty Deed | CAIN, KEVIN M | BROSSARD TTEE, ELLIOTT | | | $275,000.00 | 53495 | 4546785 |
| 4 | 07/28/2020 | WD | Warranty Deed | HOLTUM, RANDY S | CAIN, KEVIN M | | | $175,000.00 | 44055 | 4492724 |
| 5 | 08/01/1988 | QCD | Quit Claim Deed | HOLTUM, RANDY S | HOLTUM, JOHN W | | | $0.00 | 82738 | 88010318 |
| 6 | 08/01/1988 | QCD | Quit Claim Deed | HOLTUM, JOHN W | HOLTUM, RANDY S | | | $0.00 | 90953 | 89003350 |
| 7 | 06/01/1983 | PACD | Purchaser's Assignment | CHRISTENSEN, RUSSELL C | HOLTUM, JOHN W | | | $28,849.00 | 31952 | 412192 |
| 8 | 01/01/1900 | OTHER | Other - Misc. Documents | Unknown | CHRISTENSEN, RUSSELL C | | | $0.00 | 0 | 0 |
Payout Agreement
| No payout information available.. |