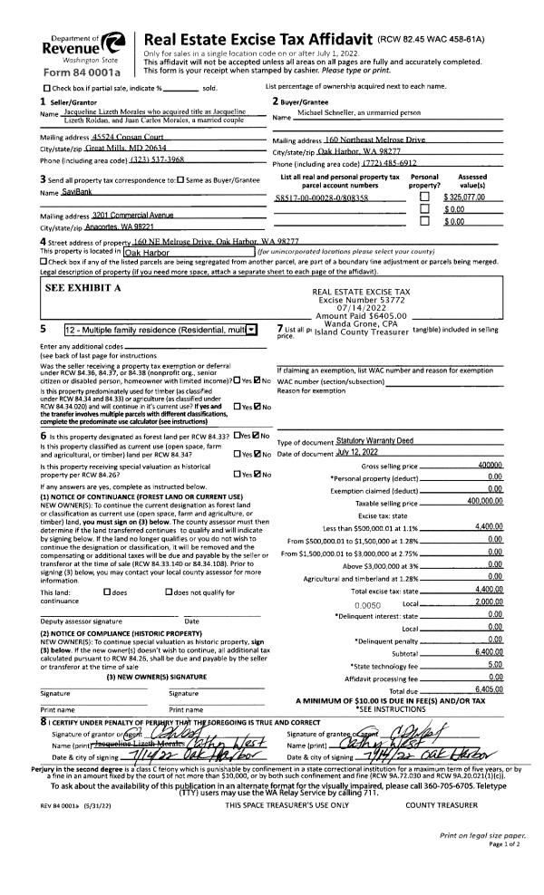
Property
Account |
| Property ID: | 402148 | Abbreviated Legal Description: | SUNNY SH AC 2 LOT 10 INCL ADJ TIDES |
| Geographic ID: | S8240-02-00010-0 | Agent Code: | |
| Type: | Real | | |
| Tax Area: | 542 - APPRAISER-Stan/Cam Schl Dist, Special Dist, improved, greater than 1 acre | Land Use Code | 11 |
| Open Space: | N | DFL | N |
| Historic Property: | N | Remodel Property: | N |
| Multi-Family Redevelopment: | N | | |
| Township: | | Section: | |
| Range: | |
Location |
| Address: | 2675 S EAST CAMANO DR CAMANO ISLAND, WA 98282 | Mapsco: | |
| Neighborhood: | Cycle 5 | Map ID: | 850 |
| Neighborhood CD: | 5 |
Owner |
| Name: | BROSSARD TTEE, ELLIOTT | Owner ID: | 303798 |
| Mailing Address: | JULAINE BROSSARD TTEE 8728 124TH AVE NE KIRKLAND, WA 98033 | % Ownership: | 100.0000000000% |
| | | Exemptions: | |
Taxes and Assessment Details
Values
| (+) Improvement Homesite Value: | + | $0 | |
| (+) Improvement Non-Homesite Value: | + | $692,005 | |
| (+) Land Homesite Value: | + | $0 | |
| (+) Land Non-Homesite Value: | + | $575,980 | |
| (+) Curr Use (HS): | + | $0 | $0 |
| (+) Curr Use (NHS): | + | $0 | $0 |
| | | -------------------------- | |
| (=) Market Value: | = | $1,267,985 | |
| (–) Productivity Loss: | – | $0 | |
| | | -------------------------- | |
| (=) Subtotal: | = | $1,267,985 | |
| (+) Senior Appraised Value: | + | $0 | |
| (+) Non-Senior Appraised Value: | + | $1,267,985 | |
| | | -------------------------- | |
| (=) Total Appraised Value: | = | $1,267,985 | |
| (–) Senior Exemption Loss: | – | $0 | |
| (–) Exemption Loss: | – | $0 | |
| | | -------------------------- | |
| (=) Taxable Value: | = | $1,267,985 | |
Taxing Jurisdiction
| Owner: | BROSSARD TTEE, ELLIOTT | | |
| % Ownership: | 100.0000000000% | | |
| Total Value: | $1,267,985 | | |
| Tax Area: | 542 - APPRAISER-Stan/Cam Schl Dist, Special Dist, improved, greater than 1 acre |
| CF | Conservation Futures | 0.0316035091 | $1,267,985 | $1,267,985 | $40.07 | | |
| EMS1 | Fire & Rescue Dist #1 Camano GEN (EMS) | 0.3677864386 | $1,267,985 | $1,267,985 | $466.35 | | |
| FIRE1 | Fire & Rescue Dist #1 Camano GEN | 1.2502910536 | $1,267,985 | $1,267,985 | $1,585.35 | | |
| FIRE1BOND | Fire & Rescue Dist #1 Camano BOND | 0.1570001679 | $1,267,985 | $1,267,985 | $199.07 | | |
| CE | County Current Expense | 0.3708482477 | $1,267,985 | $1,267,985 | $470.23 | | |
| CR | County Roads | 0.4584763726 | $1,267,985 | $1,267,985 | $581.34 | | |
| LCIB | Library Sno-Isle BOND (Camano Island) | 0.0396325772 | $1,267,985 | $1,267,985 | $50.25 | | |
| LIB | Library Sno-Isle GEN | 0.3153421757 | $1,267,985 | $1,267,985 | $399.85 | | |
| SCH205_401 | School 205-401 Enrichment | 1.2698420524 | $1,267,985 | $1,267,985 | $1,610.14 | | |
| SCH205BOND | School 205-401 BOND | 0.9396497583 | $1,267,985 | $1,267,985 | $1,191.46 | | |
| ST | State School | 1.3035497053 | $1,267,985 | $1,267,985 | $1,652.88 | | |
| ST2 | State School Part 2 | 0.8169543533 | $1,267,985 | $1,267,985 | $1,035.89 | | |
| | Total Tax Rate: | 7.3209764117 | | | | | |
| | | | | Taxes w/Current Exemptions: | $9,282.88 | | |
| | | | | Taxes w/o Exemptions: | $9,282.88 | | |
Improvement / Building
| Improvement #1: | RESIDENTIAL | State Code: | Y | 3141.0 sqft | Value: | $692,005 |
| Bathrooms: | 2.5 | Bedrooms: | 3 | | Ceiling: | TONGUE & GROOVE | Cooling: | HEAT PUMP/CONV/V | | Exterior Wall/Cover: | CEMENT FIBER | Floor Covering: | HARDWOOD/CARP 60-40 | | Floor Structure: | SLAB ON GRADE | Foundation: | SLAB | | Heating: | RADIANT FLOOR | Interior Finish: | DRYWALL PAINT | | Plumbing Fixture Cnt: | 16 | Roof Slope: | 5" IN 12" | | Roof Structure/Cover: | BEAM ALUMINUM HEAVY |   |   |
|
| | Type | Description | Class CD | Sub Class CD | Year Built | Area |
| | BAS | BASE/MAIN FLOOR | 4 | 0 | 2018 | 1602.0 |
| | UPS | UPPER STORY | 4 | 0 | 2018 | 931.0 |
| | UB8 | BASEMENT UNFINISHED 8" | 4 | 0 | 2018 | 999.0 |
| | OWR | OPEN WOOD PORCH W/STEPS/ROOF | 4 | 0 | 2018 | 374.0 |
| | UPH | HALF STORY | 4 | 0 | 2018 | 608.0 |
| | BIG | BUILT IN GARAGE | 4 | 0 | 2018 | 576.1 |
Sketch
Property Image
Land
| 1 | HB | HIGH BLUFF | 1.4000 | 60984.00 | 98.00 | 0.00 | 1.00 | $575,000 | $0 |
| 2 | 55 | TIDES | 0.0000 | 0.00 | 98.00 | 0.00 | 1.00 | $980 | $0 |
Roll Value History
| 2026 | N/A | N/A | N/A | N/A | N/A |
| 2025 | $692,005 | $575,980 | $0 | $1,267,985 | $1,267,985 |
| 2024 | $697,631 | $575,980 | $0 | $1,273,611 | $1,273,611 |
| 2023 | $703,257 | $550,980 | $0 | $1,254,237 | $1,254,237 |
| 2022 | $641,899 | $475,980 | $0 | $1,117,879 | $1,117,879 |
| 2021 | $523,183 | $400,980 | $0 | $924,163 | $924,163 |
| 2020 | $418,528 | $285,980 | $0 | $704,508 | $704,508 |
| 2019 | $339,906 | $300,980 | $0 | $640,886 | $640,886 |
| 2018 | $342,475 | $250,980 | $0 | $593,455 | $593,455 |
| 2017 | $0 | $175,980 | $0 | $175,980 | $175,980 |
| 2016 | $0 | $175,980 | $0 | $175,980 | $175,980 |
| 2015 | $0 | $150,980 | $0 | $150,980 | $150,980 |
| 2014 | $0 | $150,980 | $0 | $150,980 | $150,980 |
| 2013 | $0 | $79,076 | $0 | $79,076 | $79,076 |
| 2012 | $0 | $79,076 | $0 | $79,076 | $79,076 |
| 2011 | $0 | $98,600 | $0 | $98,600 | $98,600 |
| 2010 | $0 | $139,457 | $0 | $139,457 | $139,457 |
| 2009 | $0 | $140,568 | $0 | $140,568 | $140,568 |
| 2008 | $0 | $134,689 | $0 | $134,689 | $134,689 |
| 2007 | $0 | $134,003 | $0 | $134,003 | $134,003 |
Deed and Sales History
| 1 | 02/10/2022 | QCD | Quit Claim Deed | BROSSARD, ELLIOTT | BROSSARD TTEE, ELLIOTT | | | $0.00 | 52669 | 4543122 |
| 2 | 10/22/2021 | WD | Warranty Deed | CAIN, KEVIN M | BROSSARD, ELLIOTT | | | $1,100,000.00 | 50652 | 4532501 |
| 3 | 07/06/2020 | WD | Warranty Deed | MITCHELL, JOSHUA | CAIN, KEVIN M | | | $845,000.00 | 43767 | 4491113 |
| 4 | 01/03/2017 | WD | Warranty Deed | LORETTA, PATRICK D | MITCHELL, JOSHUA | | | $138,500.00 | 27659 | 4414754 |
| 5 | 07/10/2008 | WD | Warranty Deed | NESTOR, MICHAEL P | LORETTA, PATRICK D | | | $278,000.00 | 81869 | 4232979 |
| 6 | 10/03/2006 | WD | Warranty Deed | HARE, BONNIE | NESTOR, MICHAEL P | | | $110,000.00 | 64331 | 4183564 |
| 7 | 08/07/2006 | PRD | Personal Representatives Deed | HARE, BONNIE - | HARE, BONNIE | | | $0.00 | 63545 | 4179196 |
| 8 | 12/01/1994 | WD | Warranty Deed | FROGGATT, TERRY A | HARE, BONNIE - | | | $90,000.00 | 45244 | 94026400 |
| 9 | 12/01/1978 | OTHER | Other - Misc. Documents | Unknown | FROGGATT, TERRY A | | | $13,000.00 | 90163 | 345860 |
Payout Agreement
| No payout information available.. |