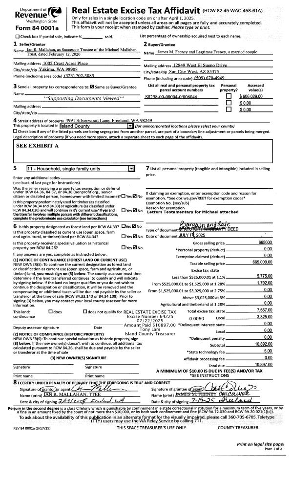
Property
Account |
| Property ID: | 402825 | Abbreviated Legal Description: | SUNRISE HILLS LOT 27 TGW & SUB EZ AF#92020203 |
| Geographic ID: | S8255-00-00027-0 | Agent Code: | |
| Type: | Real | | |
| Tax Area: | 110 - APPRAISER-OH Schl Dist, outside OH, improved & 1 acre or less | Land Use Code | 11 |
| Open Space: | N | DFL | N |
| Historic Property: | N | Remodel Property: | N |
| Multi-Family Redevelopment: | N | | |
| Township: | | Section: | |
| Range: | |
Location |
| Address: | 4501 LARSON DR OAK HARBOR, WA 98277 | Mapsco: | |
| Neighborhood: | Cycle 6 | Map ID: | 584 |
| Neighborhood CD: | 6 |
Owner |
| Name: | ST. PETER, TIMOTHY D | Owner ID: | 314316 |
| Mailing Address: | SHELLEY L ST. PETER 1213 HEMLOCK ST MILTON, WA 98354 | % Ownership: | 100.0000000000% |
| | | Exemptions: | |
Taxes and Assessment Details
Values
| (+) Improvement Homesite Value: | + | $0 | |
| (+) Improvement Non-Homesite Value: | + | $4,000 | |
| (+) Land Homesite Value: | + | $0 | |
| (+) Land Non-Homesite Value: | + | $140,000 | |
| (+) Curr Use (HS): | + | $0 | $0 |
| (+) Curr Use (NHS): | + | $0 | $0 |
| | | -------------------------- | |
| (=) Market Value: | = | $144,000 | |
| (–) Productivity Loss: | – | $0 | |
| | | -------------------------- | |
| (=) Subtotal: | = | $144,000 | |
| (+) Senior Appraised Value: | + | $0 | |
| (+) Non-Senior Appraised Value: | + | $144,000 | |
| | | -------------------------- | |
| (=) Total Appraised Value: | = | $144,000 | |
| (–) Senior Exemption Loss: | – | $0 | |
| (–) Exemption Loss: | – | $0 | |
| | | -------------------------- | |
| (=) Taxable Value: | = | $144,000 | |
Taxing Jurisdiction
| Owner: | ST. PETER, TIMOTHY D | | |
| % Ownership: | 100.0000000000% | | |
| Total Value: | $144,000 | | |
| Tax Area: | 110 - APPRAISER-OH Schl Dist, outside OH, improved & 1 acre or less |
| CF | Conservation Futures | 0.0316035091 | $144,000 | $144,000 | $4.55 | | |
| CEM1 | Cemetery #1 | 0.0040320932 | $144,000 | $144,000 | $0.58 | | |
| FIRE2 | Fire & Rescue Dist #2 N Whidbey GEN | 0.5475949600 | $144,000 | $144,000 | $78.85 | | |
| HOBOND | Hospital BOND | 0.1910887512 | $144,000 | $144,000 | $27.52 | | |
| HOGEN | Hospital GEN | 0.3902502903 | $144,000 | $144,000 | $56.20 | | |
| CE | County Current Expense | 0.3708482477 | $144,000 | $144,000 | $53.40 | | |
| CR | County Roads | 0.4584763726 | $144,000 | $144,000 | $66.02 | | |
| ISLANDEMS | Hospital GEN (EMS) | 0.5000000000 | $144,000 | $144,000 | $72.00 | | |
| LIB | Library Sno-Isle GEN | 0.3153421757 | $144,000 | $144,000 | $45.41 | | |
| NWHIDPRMT | P & R N Whidbey GEN | 0.2004466701 | $144,000 | $144,000 | $28.86 | | |
| SCH201MO | School 201 Enrichment | 1.8559231640 | $144,000 | $144,000 | $267.25 | | |
| ST | State School | 1.3035497053 | $144,000 | $144,000 | $187.71 | | |
| ST2 | State School Part 2 | 0.8169543533 | $144,000 | $144,000 | $117.64 | | |
| | Total Tax Rate: | 6.9861102925 | | | | | |
| | | | | Taxes w/Current Exemptions: | $1,005.99 | | |
| | | | | Taxes w/o Exemptions: | $1,005.99 | | |
Improvement / Building
| Improvement #1: | RESIDENTIAL | State Code: | Y | 0.0 sqft | Value: | $4,000 |
Sketch
| No sketches available for this property. |
Property Image
Land
| 1 | 15 | SQ (12001-21780) | 0.0000 | 0.00 | 0.00 | 0.00 | 1.00 | $140,000 | $0 |
Roll Value History
| 2026 | N/A | N/A | N/A | N/A | N/A |
| 2025 | $4,000 | $140,000 | $0 | $144,000 | $144,000 |
| 2024 | $4,000 | $140,000 | $0 | $144,000 | $144,000 |
| 2023 | $4,000 | $140,000 | $0 | $144,000 | $144,000 |
| 2022 | $4,000 | $140,000 | $0 | $144,000 | $144,000 |
| 2021 | $4,000 | $100,000 | $0 | $104,000 | $104,000 |
| 2020 | $4,000 | $90,000 | $0 | $94,000 | $94,000 |
| 2019 | $4,000 | $135,000 | $0 | $139,000 | $139,000 |
| 2018 | $4,000 | $135,000 | $0 | $139,000 | $139,000 |
| 2017 | $4,000 | $135,000 | $0 | $139,000 | $139,000 |
| 2016 | $4,000 | $90,000 | $0 | $94,000 | $94,000 |
| 2015 | $4,000 | $90,000 | $0 | $94,000 | $94,000 |
| 2014 | $4,000 | $90,000 | $0 | $94,000 | $94,000 |
| 2013 | $4,000 | $89,250 | $0 | $93,250 | $93,250 |
| 2012 | $4,000 | $89,250 | $0 | $93,250 | $93,250 |
| 2011 | $4,000 | $105,000 | $0 | $109,000 | $109,000 |
| 2010 | $4,000 | $105,000 | $0 | $109,000 | $109,000 |
| 2009 | $4,000 | $130,000 | $0 | $134,000 | $134,000 |
| 2008 | $4,000 | $134,000 | $0 | $138,000 | $138,000 |
| 2007 | $4,000 | $134,000 | $0 | $138,000 | $138,000 |
Deed and Sales History
| 1 | 10/22/2024 | WD | Warranty Deed | HENDERSON, RICHARD | ST. PETER, TIMOTHY D | | | $184,000.00 | 61643 | 4578537 |
| 2 | 12/20/2004 | WD | Warranty Deed | DUNLAP, WILLIAM M | HENDERSON, RICHARD | | | $95,000.00 | 45996 | 4121739 |
| 3 | 05/01/1993 | WD | Warranty Deed | NEWHOUSE, JEFFERY A | DUNLAP, WILLIAM M | | | $73,500.00 | 32136 | 93011070 |
| 4 | 12/01/1989 | WD | Warranty Deed | NEWHOUSE, JEFFERY A | NEWHOUSE, JEFFERY A | | | $40,000.00 | 95719 | 89018364 |
| 5 | 12/01/1989 | QCD | Quit Claim Deed | DILL, JOHN I | NEWHOUSE, JEFFERY A | | | $0.00 | 95720 | 89018365 |
| 6 | 01/01/1982 | PACD | Purchaser's Assignment | DILL, JOHN I | DILL, JOHN I | | | $1.00 | 20719 | 394627 |
| 7 | 04/01/1973 | CD | DNU - Correction Deed | STOVALL, HARRY J | DILL, JOHN I | | | $0.00 | 46757 | 0 |
| 8 | 01/01/1900 | OTHER | Other - Misc. Documents | Unknown | STOVALL, HARRY J | | | $0.00 | 0 | 0 |
Payout Agreement
| No payout information available.. |