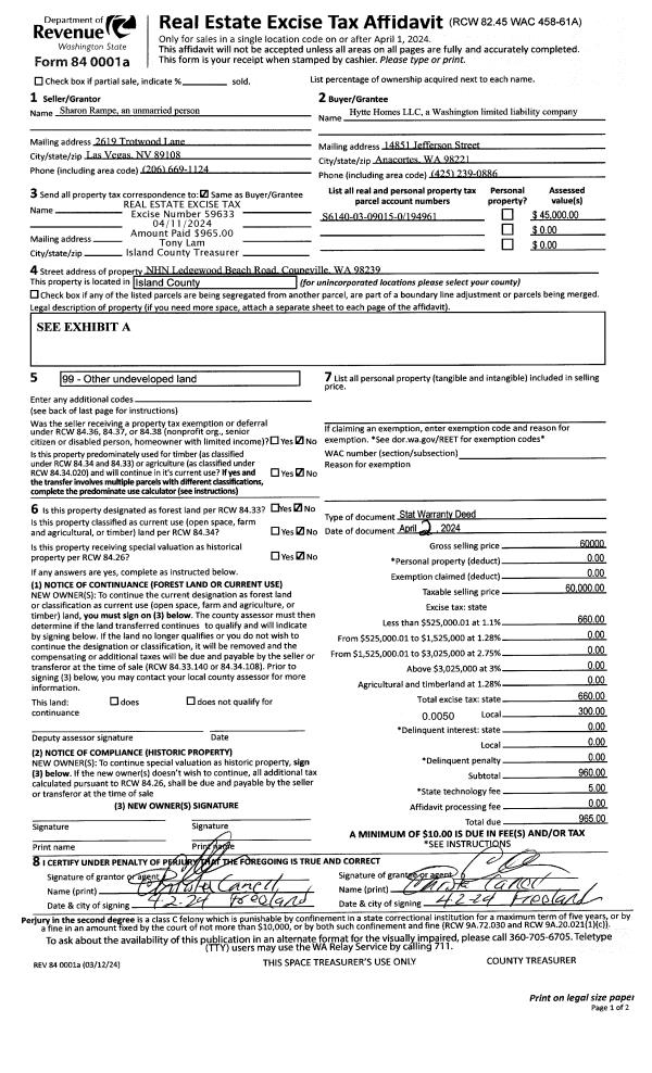
Property
Account |
| Property ID: | 40333 | Abbreviated Legal Description: | AC CORR 41 - IN SE NE:BG SW CR SE NE E75' N PAR/WLN SD SUB 400' TPB N PAR/WLN TO SLN RD #11 ELY ALG SLN TO WLN RD AF#129773 SLY ALG WLN TP |
| Geographic ID: | R13333-341-4110 | Agent Code: | |
| Type: | Real | | |
| Tax Area: | 119 - APPRAISER-OH Schl Dist, outside OH, vacant & 50 acres or less | Land Use Code | 83 |
| Open Space: | Y | DFL | N |
| Historic Property: | N | Remodel Property: | N |
| Multi-Family Redevelopment: | N | | |
| Township: | 33 | Section: | 33 |
| Range: | R1 |
Location |
| Address: | | Mapsco: | |
| Neighborhood: | Cycle 1 | Map ID: | 251 |
| Neighborhood CD: | 1 |
Owner |
| Name: | STEEL, GABRIEL SAMUEL | Owner ID: | 300155 |
| Mailing Address: | JOANA MAE T STEEL 2659 AIRLINE WAY OAK HARBOR, WA 98277 | % Ownership: | 100.0000000000% |
| | | Exemptions: | |
Taxes and Assessment Details
Values
| (+) Improvement Homesite Value: | + | $0 | |
| (+) Improvement Non-Homesite Value: | + | $0 | |
| (+) Land Homesite Value: | + | $0 | |
| (+) Land Non-Homesite Value: | + | $0 | |
| (+) Curr Use (HS): | + | $0 | $0 |
| (+) Curr Use (NHS): | + | $180,000 | $1,533 |
| | | -------------------------- | |
| (=) Market Value: | = | $180,000 | |
| (–) Productivity Loss: | – | $178,467 | |
| | | -------------------------- | |
| (=) Subtotal: | = | $1,533 | |
| (+) Senior Appraised Value: | + | $0 | |
| (+) Non-Senior Appraised Value: | + | $1,533 | |
| | | -------------------------- | |
| (=) Total Appraised Value: | = | $1,533 | |
| (–) Senior Exemption Loss: | – | $0 | |
| (–) Exemption Loss: | – | $0 | |
| | | -------------------------- | |
| (=) Taxable Value: | = | $1,533 | |
Taxing Jurisdiction
| Owner: | STEEL, GABRIEL SAMUEL | | |
| % Ownership: | 100.0000000000% | | |
| Total Value: | $180,000 | | |
| Tax Area: | 119 - APPRAISER-OH Schl Dist, outside OH, vacant & 50 acres or less |
| CF | Conservation Futures | 0.0316035091 | $1,533 | $1,533 | $0.05 | | |
| CEM1 | Cemetery #1 | 0.0040320932 | $1,533 | $1,533 | $0.01 | | |
| HOBOND | Hospital BOND | 0.1910887512 | $1,533 | $1,533 | $0.29 | | |
| HOGEN | Hospital GEN | 0.3902502903 | $1,533 | $1,533 | $0.60 | | |
| CE | County Current Expense | 0.3708482477 | $1,533 | $1,533 | $0.57 | | |
| CR | County Roads | 0.4584763726 | $1,533 | $1,533 | $0.70 | | |
| ISLANDEMS | Hospital GEN (EMS) | 0.5000000000 | $1,533 | $1,533 | $0.77 | | |
| LIB | Library Sno-Isle GEN | 0.3153421757 | $1,533 | $1,533 | $0.48 | | |
| NWHIDPRMT | P & R N Whidbey GEN | 0.2004466701 | $1,533 | $1,533 | $0.31 | | |
| SCH201MO | School 201 Enrichment | 1.8559231640 | $1,533 | $1,533 | $2.85 | | |
| ST | State School | 1.3035497053 | $1,533 | $1,533 | $2.00 | | |
| ST2 | State School Part 2 | 0.8169543533 | $1,533 | $1,533 | $1.25 | | |
| | Total Tax Rate: | 6.4385153325 | | | | | |
| | | | | Taxes w/Current Exemptions: | $9.88 | | |
| | | | | Taxes w/o Exemptions: | $9.88 | | |
Improvement / Building
Sketch
| No sketches available for this property. |
Property Image
Land
| 1 | 18 | AC (02.01-03.00) | 2.5100 | 109335.60 | 0.00 | 0.00 | 1.00 | $180,000 | $1,533 |
Roll Value History
| 2026 | N/A | N/A | N/A | N/A | N/A |
| 2025 | $0 | $180,000 | $1,533 | $1,533 | $1,533 |
| 2024 | $0 | $170,000 | $1,533 | $1,533 | $1,533 |
| 2023 | $0 | $170,000 | $1,533 | $1,533 | $1,533 |
| 2022 | $0 | $140,000 | $1,533 | $1,533 | $1,533 |
| 2021 | $0 | $140,000 | $1,533 | $1,533 | $1,533 |
| 2020 | $0 | $150,000 | $1,533 | $1,533 | $1,533 |
| 2019 | $0 | $150,000 | $1,533 | $1,533 | $1,533 |
| 2018 | $0 | $130,000 | $1,533 | $1,533 | $1,533 |
| 2017 | $0 | $80,000 | $1,533 | $1,533 | $1,533 |
| 2016 | $0 | $80,000 | $1,533 | $1,533 | $1,533 |
| 2015 | $0 | $80,000 | $1,533 | $1,533 | $1,533 |
| 2014 | $0 | $70,000 | $1,533 | $1,533 | $1,533 |
| 2013 | $0 | $55,000 | $1,533 | $1,533 | $1,533 |
| 2012 | $0 | $68,000 | $1,533 | $1,533 | $1,533 |
| 2011 | $0 | $80,000 | $1,533 | $1,533 | $1,533 |
| 2010 | $0 | $80,000 | $1,533 | $1,533 | $1,533 |
| 2009 | $0 | $90,000 | $1,533 | $1,533 | $1,533 |
| 2008 | $0 | $145,000 | $1,533 | $1,533 | $1,533 |
| 2007 | $0 | $145,000 | $1,533 | $1,533 | $1,533 |
Deed and Sales History
| 1 | 07/07/2021 | WD | Warranty Deed | FORBES, JIMMY L | STEEL, GABRIEL SAMUEL | | | $784,000.00 | 49098 | 4524033 |
|   | |
| 2 | 03/07/2002 | WD | Warranty Deed | DESKEY, LOUISE T | FORBES, JIMMY L | | | $0.00 | 21501 | 4017725 |
| 3 | 03/01/1987 | QCD | Quit Claim Deed | DESKEY, LOUISE T | DESKEY, LOUISE T | | | $0.00 | 62097 | 86006932 |
| 4 | 03/01/1982 | QCD | Quit Claim Deed | DESKEY, D S | DESKEY, LOUISE T | | | $0.00 | 59462 | 12908 |
| 5 | 03/01/1979 | REC | Real Estate Contract | Unknown | DESKEY, D S | | | $0.00 | 90872 | 348180 |
Payout Agreement
| No payout information available.. |