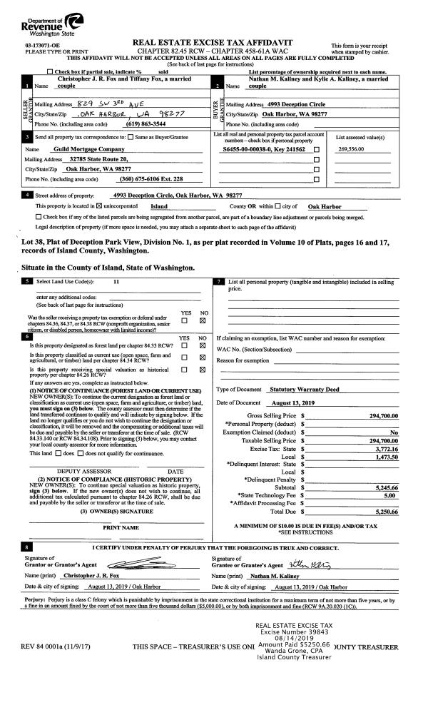
Property
Account |
| Property ID: | 403450 | Abbreviated Legal Description: | Sunset Ridge - 1,s Lot 4 W/2,s Blk 1;s TR A SP 71-017 LOT A BLA 464-18 AF#4456682s |
| Geographic ID: | S8265-00-01004-1 | Agent Code: | |
| Type: | Real | | |
| Tax Area: | 112 - APPRAISER-OH Schl Dist, outside OH, improved, greater than 1 acre | Land Use Code | 11 |
| Open Space: | N | DFL | N |
| Historic Property: | N | Remodel Property: | N |
| Multi-Family Redevelopment: | N | | |
| Township: | | Section: | |
| Range: | |
Location |
| Address: | 160 E SLEEPER RD OAK HARBOR, WA 98277 | Mapsco: | |
| Neighborhood: | Cycle 6 | Map ID: | 610 |
| Neighborhood CD: | 6 |
Owner |
| Name: | RENEAU, BENJAMIN | Owner ID: | 316335 |
| Mailing Address: | 160 E SLEEPER ROAD OAK HARBOR, WA 98277 | % Ownership: | 100.0000000000% |
| | | Exemptions: | |
Taxes and Assessment Details
Values
| (+) Improvement Homesite Value: | + | $0 | |
| (+) Improvement Non-Homesite Value: | + | $236,298 | |
| (+) Land Homesite Value: | + | $0 | |
| (+) Land Non-Homesite Value: | + | $210,000 | |
| (+) Curr Use (HS): | + | $0 | $0 |
| (+) Curr Use (NHS): | + | $0 | $0 |
| | | -------------------------- | |
| (=) Market Value: | = | $446,298 | |
| (–) Productivity Loss: | – | $0 | |
| | | -------------------------- | |
| (=) Subtotal: | = | $446,298 | |
| (+) Senior Appraised Value: | + | $0 | |
| (+) Non-Senior Appraised Value: | + | $446,298 | |
| | | -------------------------- | |
| (=) Total Appraised Value: | = | $446,298 | |
| (–) Senior Exemption Loss: | – | $0 | |
| (–) Exemption Loss: | – | $0 | |
| | | -------------------------- | |
| (=) Taxable Value: | = | $446,298 | |
Taxing Jurisdiction
| Owner: | RENEAU, BENJAMIN | | |
| % Ownership: | 100.0000000000% | | |
| Total Value: | $446,298 | | |
| Tax Area: | 112 - APPRAISER-OH Schl Dist, outside OH, improved, greater than 1 acre |
| CF | Conservation Futures | 0.0316035091 | $446,298 | $446,298 | $14.10 | | |
| CEM1 | Cemetery #1 | 0.0040320932 | $446,298 | $446,298 | $1.80 | | |
| FIRE2 | Fire & Rescue Dist #2 N Whidbey GEN | 0.5475949600 | $446,298 | $446,298 | $244.39 | | |
| HOBOND | Hospital BOND | 0.1910887512 | $446,298 | $446,298 | $85.28 | | |
| HOGEN | Hospital GEN | 0.3902502903 | $446,298 | $446,298 | $174.17 | | |
| CE | County Current Expense | 0.3708482477 | $446,298 | $446,298 | $165.51 | | |
| CR | County Roads | 0.4584763726 | $446,298 | $446,298 | $204.62 | | |
| ISLANDEMS | Hospital GEN (EMS) | 0.5000000000 | $446,298 | $446,298 | $223.15 | | |
| LIB | Library Sno-Isle GEN | 0.3153421757 | $446,298 | $446,298 | $140.74 | | |
| NWHIDPRMT | P & R N Whidbey GEN | 0.2004466701 | $446,298 | $446,298 | $89.46 | | |
| SCH201MO | School 201 Enrichment | 1.8559231640 | $446,298 | $446,298 | $828.29 | | |
| ST | State School | 1.3035497053 | $446,298 | $446,298 | $581.77 | | |
| ST2 | State School Part 2 | 0.8169543533 | $446,298 | $446,298 | $364.61 | | |
| | Total Tax Rate: | 6.9861102925 | | | | | |
| | | | | Taxes w/Current Exemptions: | $3,117.89 | | |
| | | | | Taxes w/o Exemptions: | $3,117.89 | | |
Improvement / Building
| Improvement #1: | MANUFACTURED HOME | State Code: | Y | 1566.0 sqft | Value: | $236,298 |
| Bathrooms: | 1 | Bedrooms: | 2 | | Ceiling: | PLASTER PAINTED | Cooling: | EVAP NO DUCT | | Exterior Wall/Cover: | VINYL | Floor Covering: | CARPET 100% | | Floor Structure: | SLAB ON GRADE | Foundation: | SLAB | | Heating: | FHA ELECTRIC | Interior Finish: | PLASTER | | Roof Slope: | FLAT | Roof Structure/Cover: | CJ ALUMINIUM HEAVY |
|
| | Type | Description | Class CD | Sub Class CD | Year Built | Area |
| | BAS | BASE/MAIN FLOOR | 5 | 0 | 2018 | 1566.0 |
| | OWP | OPEN WOOD PORCH W/STEPS | 5 | 0 | 2018 | 216.0 |
| | DGR | DETACHED GARAGE | 5 | 0 | 2018 | 1456.0 |
Sketch
Property Image
Land
| 1 | 17 | AC (01.01-02.00) | 1.2500 | 54450.00 | 0.00 | 0.00 | 1.00 | $210,000 | $0 |
Roll Value History
| 2026 | N/A | N/A | N/A | N/A | N/A |
| 2025 | $236,298 | $210,000 | $0 | $446,298 | $446,298 |
| 2024 | $241,326 | $200,000 | $0 | $441,326 | $441,326 |
| 2023 | $212,032 | $200,000 | $0 | $412,032 | $412,032 |
| 2022 | $265,125 | $200,000 | $0 | $465,125 | $465,125 |
| 2021 | $232,961 | $170,000 | $0 | $402,961 | $402,961 |
| 2020 | $228,398 | $145,000 | $0 | $373,398 | $373,398 |
| 2019 | $181,870 | $155,000 | $0 | $336,870 | $336,870 |
| 2018 | $181,870 | $150,000 | $0 | $331,870 | $331,870 |
| 2017 | $21,841 | $125,000 | $0 | $146,841 | $146,841 |
| 2016 | $21,841 | $100,000 | $0 | $121,841 | $121,841 |
| 2015 | $13,942 | $85,000 | $0 | $98,942 | $98,942 |
| 2014 | $13,942 | $80,000 | $0 | $93,942 | $33,942 |
| 2013 | $13,942 | $72,675 | $0 | $86,617 | $26,617 |
| 2012 | $13,942 | $72,675 | $0 | $86,617 | $26,617 |
| 2011 | $13,942 | $85,500 | $0 | $99,442 | $38,436 |
| 2010 | $25,269 | $85,500 | $0 | $110,769 | $38,436 |
| 2009 | $42,324 | $94,205 | $0 | $136,529 | $38,435 |
| 2008 | $42,747 | $79,387 | $0 | $122,134 | $38,435 |
| 2007 | $43,008 | $79,872 | $0 | $122,880 | $38,435 |
Deed and Sales History
| 1 | 04/29/2025 | WD | Warranty Deed | CALLEN, GARY | RENEAU, BENJAMIN | | | $515,000.00 | 63361 | 4585347 |
| 2 | 03/12/2019 | MANHOME | Manufactured Home | WESTGATE MOBILE HOMES INC | CALLEN, GARY | | | $77,500.00 | 37856 | |
| 3 | 03/08/2019 | WD | Warranty Deed | WESTGATE MOBILE HOMES INC | CALLEN, GARY | | | $247,500.00 | 37855 | 4460419 |
| 4 | 02/21/2019 | QCD | Quit Claim Deed | WESTGATE MOBILE HOMES INC | | | | | 37663 | 4459611 |
| 5 | 07/15/2015 | WD | Warranty Deed | ASHER, CHARLES ELLIS | WESTGATE MOBILE HOMES INC | | | $83,000.00 | 20601 | 4382727 |
|   | |
| 6 | 10/05/2007 | OTHER | Other - Misc. Documents | ASHER, MARILU M | ASHER, CHARLES ELLIS | | | $0.00 | 80855 | 0 |
| 7 | 01/01/1900 | OTHER | Other - Misc. Documents | Unknown | ASHER, MARILU M | | | $0.00 | 0 | 0 |
Payout Agreement
| No payout information available.. |