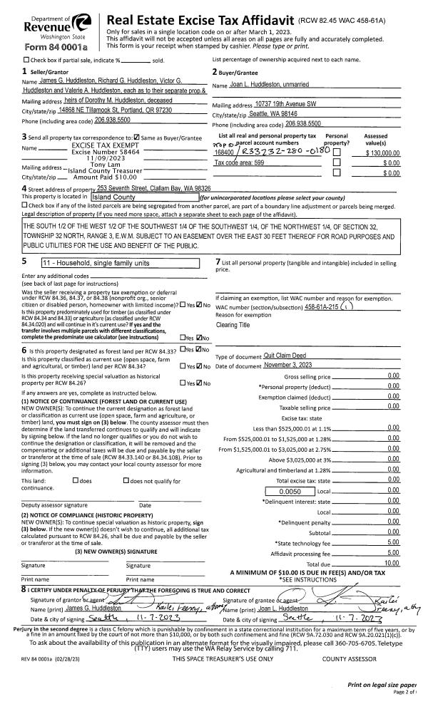
Property
Account |
| Property ID: | 403637 | Abbreviated Legal Description: | SUNSET RIDGE 1 LOT 6 BLK 2 |
| Geographic ID: | S8265-00-02006-0 | Agent Code: | |
| Type: | Real | | |
| Tax Area: | 112 - APPRAISER-OH Schl Dist, outside OH, improved, greater than 1 acre | Land Use Code | 11 |
| Open Space: | N | DFL | N |
| Historic Property: | N | Remodel Property: | N |
| Multi-Family Redevelopment: | N | | |
| Township: | | Section: | |
| Range: | |
Location |
| Address: | 232 SUNSET DR OAK HARBOR, WA 98277 | Mapsco: | |
| Neighborhood: | Cycle 6 | Map ID: | 610 |
| Neighborhood CD: | 6 |
Owner |
| Name: | WILCOX, ERICK B | Owner ID: | 309204 |
| Mailing Address: | CRISTETA A WILCOX 232 SUNSET DR OAK HARBOR, WA 98277 | % Ownership: | 100.0000000000% |
| | | Exemptions: | |
Taxes and Assessment Details
Values
| (+) Improvement Homesite Value: | + | $0 | |
| (+) Improvement Non-Homesite Value: | + | $440,486 | |
| (+) Land Homesite Value: | + | $0 | |
| (+) Land Non-Homesite Value: | + | $250,000 | |
| (+) Curr Use (HS): | + | $0 | $0 |
| (+) Curr Use (NHS): | + | $0 | $0 |
| | | -------------------------- | |
| (=) Market Value: | = | $690,486 | |
| (–) Productivity Loss: | – | $0 | |
| | | -------------------------- | |
| (=) Subtotal: | = | $690,486 | |
| (+) Senior Appraised Value: | + | $0 | |
| (+) Non-Senior Appraised Value: | + | $690,486 | |
| | | -------------------------- | |
| (=) Total Appraised Value: | = | $690,486 | |
| (–) Senior Exemption Loss: | – | $0 | |
| (–) Exemption Loss: | – | $0 | |
| | | -------------------------- | |
| (=) Taxable Value: | = | $690,486 | |
Taxing Jurisdiction
| Owner: | WILCOX, ERICK B | | |
| % Ownership: | 100.0000000000% | | |
| Total Value: | $690,486 | | |
| Tax Area: | 112 - APPRAISER-OH Schl Dist, outside OH, improved, greater than 1 acre |
| CF | Conservation Futures | 0.0316035091 | $690,486 | $690,486 | $21.82 | | |
| CEM1 | Cemetery #1 | 0.0040320932 | $690,486 | $690,486 | $2.78 | | |
| FIRE2 | Fire & Rescue Dist #2 N Whidbey GEN | 0.5475949600 | $690,486 | $690,486 | $378.11 | | |
| HOBOND | Hospital BOND | 0.1910887512 | $690,486 | $690,486 | $131.94 | | |
| HOGEN | Hospital GEN | 0.3902502903 | $690,486 | $690,486 | $269.46 | | |
| CE | County Current Expense | 0.3708482477 | $690,486 | $690,486 | $256.07 | | |
| CR | County Roads | 0.4584763726 | $690,486 | $690,486 | $316.57 | | |
| ISLANDEMS | Hospital GEN (EMS) | 0.5000000000 | $690,486 | $690,486 | $345.24 | | |
| LIB | Library Sno-Isle GEN | 0.3153421757 | $690,486 | $690,486 | $217.74 | | |
| NWHIDPRMT | P & R N Whidbey GEN | 0.2004466701 | $690,486 | $690,486 | $138.41 | | |
| SCH201MO | School 201 Enrichment | 1.8559231640 | $690,486 | $690,486 | $1,281.49 | | |
| ST | State School | 1.3035497053 | $690,486 | $690,486 | $900.08 | | |
| ST2 | State School Part 2 | 0.8169543533 | $690,486 | $690,486 | $564.10 | | |
| | Total Tax Rate: | 6.9861102925 | | | | | |
| | | | | Taxes w/Current Exemptions: | $4,823.81 | | |
| | | | | Taxes w/o Exemptions: | $4,823.81 | | |
Improvement / Building
| Improvement #1: | RESIDENTIAL | State Code: | Y | 2261.8 sqft | Value: | $440,486 |
| Bathrooms: | 2 | Bedrooms: | 3 | | Ceiling: | DRYWALL PAINTED | Cooling: | HEAT PUMP/CONV/V | | Exterior Wall/Cover: | CEMENT FIBER | Floor Covering: | HARDWOOD/CARP 60-40 | | Floor Structure: | WOOD W/SUBFLOOR | Foundation: | CONCRETE | | Interior Finish: | DRYWALL PAINT | Plumbing Fixture Cnt: | 10 | | Roof Slope: | 6" IN 12" | Roof Structure/Cover: | CJ ASPHALT |
|
| | Type | Description | Class CD | Sub Class CD | Year Built | Area |
| | BAS | BASE/MAIN FLOOR | 3 | 0 | 2015 | 2261.8 |
| | AGR | ATTACHED GARAGE | 3 | 0 | 2015 | 816.0 |
| | OWP | OPEN WOOD PORCH W/STEPS | 3 | 0 | 2015 | 530.2 |
| | UTY | STORAGE/UTILITY | 3 | 0 | 2015 | 100.0 |
| | DGR | DETACHED GARAGE | 3 | 0 | 2015 | 216.0 |
Sketch
Property Image
Land
| 1 | 18 | AC (02.01-03.00) | 2.3800 | 103672.80 | 0.00 | 0.00 | 1.00 | $250,000 | $0 |
Roll Value History
| 2026 | N/A | N/A | N/A | N/A | N/A |
| 2025 | $440,486 | $250,000 | $0 | $690,486 | $690,486 |
| 2024 | $444,068 | $250,000 | $0 | $694,068 | $694,068 |
| 2023 | $441,042 | $200,000 | $0 | $641,042 | $641,042 |
| 2022 | $396,168 | $200,000 | $0 | $596,168 | $596,168 |
| 2021 | $347,278 | $170,000 | $0 | $517,278 | $517,278 |
| 2020 | $337,963 | $145,000 | $0 | $482,963 | $482,963 |
| 2019 | $267,277 | $155,000 | $0 | $422,277 | $422,277 |
| 2018 | $267,965 | $150,000 | $0 | $417,965 | $417,965 |
| 2017 | $269,339 | $125,000 | $0 | $394,339 | $394,339 |
| 2016 | $263,409 | $120,000 | $0 | $383,409 | $383,409 |
| 2015 | $268,784 | $90,000 | $0 | $358,784 | $358,784 |
| 2014 | $19,874 | $80,000 | $0 | $99,874 | $99,874 |
| 2013 | $20,018 | $80,750 | $0 | $100,768 | $100,768 |
| 2012 | $20,161 | $80,750 | $0 | $100,911 | $100,911 |
| 2011 | $20,304 | $95,000 | $0 | $115,304 | $115,304 |
| 2010 | $25,349 | $95,000 | $0 | $120,349 | $120,349 |
| 2009 | $25,817 | $105,000 | $0 | $130,817 | $130,817 |
| 2008 | $26,150 | $135,000 | $0 | $161,150 | $161,150 |
| 2007 | $26,460 | $99,825 | $0 | $126,285 | $126,285 |
Deed and Sales History
| 1 | 06/30/2023 | WD | Warranty Deed | WRIGHT, DENNIS M | WILCOX, ERICK B | | | $660,000.00 | 57227 | 4561926 |
| 2 | 07/10/2009 | WD | Warranty Deed | O'CONNELL, NEIL J | WRIGHT, DENNIS M | | | $138,000.00 | 91927 | 4258713 |
| 3 | 03/01/1994 | OTHER | Other - Misc. Documents | O'CONNELL, NEIL J | O'CONNELL, NEIL J | | | $3,800.00 | 41133 | 0 |
| 4 | 03/01/1994 | QCD | Quit Claim Deed | O'CONNELL, NEIL J | O'CONNELL, NEIL J | | | $18,700.00 | 41128 | 94007205 |
| 5 | 09/01/1987 | WD | Warranty Deed | SWANKIE, BARBARA J | O'CONNELL, NEIL J | | | $20,000.00 | 73148 | 87013934 |
| 6 | 07/01/1984 | QCD | Quit Claim Deed | SWANKIE, DAVID A | SWANKIE, BARBARA J | | | $0.00 | 42190 | 84001174 |
| 7 | 01/01/1900 | OTHER | Other - Misc. Documents | Unknown | SWANKIE, DAVID A | | | $0.00 | 0 | 0 |
Payout Agreement
| No payout information available.. |