Property
Account |
| Property ID: | 403682 | Abbreviated Legal Description: | SUNSET RIDGE 2 LOT 3 BLK 3 EX W/2 |
| Geographic ID: | S8265-02-03003-2 | Agent Code: | |
| Type: | Real | | |
| Tax Area: | 112 - APPRAISER-OH Schl Dist, outside OH, improved, greater than 1 acre | Land Use Code | 11 |
| Open Space: | N | DFL | N |
| Historic Property: | N | Remodel Property: | N |
| Multi-Family Redevelopment: | N | | |
| Township: | | Section: | |
| Range: | |
Location |
| Address: | 261 SUNSET DR OAK HARBOR, WA 98277 | Mapsco: | |
| Neighborhood: | Cycle 6 | Map ID: | 611 |
| Neighborhood CD: | 6 |
Owner |
| Name: | RODRIGUEZ, CESAR | Owner ID: | 306421 |
| Mailing Address: | BRENDA RODRIGUEZ 261 SUNSET DR OAK HARBOR, WA 98277 | % Ownership: | 100.0000000000% |
| | | Exemptions: | |
Taxes and Assessment Details
Values
| (+) Improvement Homesite Value: | + | $0 | |
| (+) Improvement Non-Homesite Value: | + | $347,499 | |
| (+) Land Homesite Value: | + | $0 | |
| (+) Land Non-Homesite Value: | + | $210,000 | |
| (+) Curr Use (HS): | + | $0 | $0 |
| (+) Curr Use (NHS): | + | $0 | $0 |
| | | -------------------------- | |
| (=) Market Value: | = | $557,499 | |
| (–) Productivity Loss: | – | $0 | |
| | | -------------------------- | |
| (=) Subtotal: | = | $557,499 | |
| (+) Senior Appraised Value: | + | $0 | |
| (+) Non-Senior Appraised Value: | + | $557,499 | |
| | | -------------------------- | |
| (=) Total Appraised Value: | = | $557,499 | |
| (–) Senior Exemption Loss: | – | $0 | |
| (–) Exemption Loss: | – | $0 | |
| | | -------------------------- | |
| (=) Taxable Value: | = | $557,499 | |
Taxing Jurisdiction
| Owner: | RODRIGUEZ, CESAR | | |
| % Ownership: | 100.0000000000% | | |
| Total Value: | $557,499 | | |
| Tax Area: | 112 - APPRAISER-OH Schl Dist, outside OH, improved, greater than 1 acre |
| CF | Conservation Futures | 0.0316035091 | $557,499 | $557,499 | $17.62 | | |
| CEM1 | Cemetery #1 | 0.0040320932 | $557,499 | $557,499 | $2.25 | | |
| FIRE2 | Fire & Rescue Dist #2 N Whidbey GEN | 0.5475949600 | $557,499 | $557,499 | $305.28 | | |
| HOBOND | Hospital BOND | 0.1910887512 | $557,499 | $557,499 | $106.53 | | |
| HOGEN | Hospital GEN | 0.3902502903 | $557,499 | $557,499 | $217.56 | | |
| CE | County Current Expense | 0.3708482477 | $557,499 | $557,499 | $206.75 | | |
| CR | County Roads | 0.4584763726 | $557,499 | $557,499 | $255.60 | | |
| ISLANDEMS | Hospital GEN (EMS) | 0.5000000000 | $557,499 | $557,499 | $278.75 | | |
| LIB | Library Sno-Isle GEN | 0.3153421757 | $557,499 | $557,499 | $175.80 | | |
| NWHIDPRMT | P & R N Whidbey GEN | 0.2004466701 | $557,499 | $557,499 | $111.75 | | |
| SCH201MO | School 201 Enrichment | 1.8559231640 | $557,499 | $557,499 | $1,034.68 | | |
| ST | State School | 1.3035497053 | $557,499 | $557,499 | $726.73 | | |
| ST2 | State School Part 2 | 0.8169543533 | $557,499 | $557,499 | $455.45 | | |
| | Total Tax Rate: | 6.9861102925 | | | | | |
| | | | | Taxes w/Current Exemptions: | $3,894.75 | | |
| | | | | Taxes w/o Exemptions: | $3,894.75 | | |
Improvement / Building
| Improvement #1: | RESIDENTIAL | State Code: | Y | 1723.0 sqft | Value: | $347,499 |
| Bathrooms: | 2 | Bedrooms: | 3 | | Ceiling: | DRYWALL PAINTED | Cooling: | HEAT PUMP/CONV/V | | Exterior Wall/Cover: | CEMENT FIBER | Floor Covering: | CARPET/VINYL 60-40 | | Floor Structure: | WOOD W/SUBFLOOR | Foundation: | CONCRETE | | Interior Finish: | DRYWALL PAINT | Plumbing Fixture Cnt: | 10 | | Roof Slope: | 6" IN 12" | Roof Structure/Cover: | CJ ASPHALT |
|
| | Type | Description | Class CD | Sub Class CD | Year Built | Area |
| | BAS | BASE/MAIN FLOOR | 3 | 0 | 2016 | 1723.0 |
| | OWC | OPEN WOOD PORCH W/STEPS/ROOF/C | 3 | 0 | 2016 | 80.0 |
| | AGR | ATTACHED GARAGE | 3 | 0 | 2016 | 484.0 |
| | OWC | OPEN WOOD PORCH W/STEPS/ROOF/C | 3 | 0 | 2016 | 45.0 |
Sketch
Property Image
Land
| 1 | 17 | AC (01.01-02.00) | 1.2900 | 56192.40 | 0.00 | 0.00 | 1.00 | $210,000 | $0 |
Roll Value History
| 2026 | N/A | N/A | N/A | N/A | N/A |
| 2025 | $347,499 | $210,000 | $0 | $557,499 | $557,499 |
| 2024 | $350,346 | $200,000 | $0 | $550,346 | $550,346 |
| 2023 | $353,195 | $200,000 | $0 | $553,195 | $553,195 |
| 2022 | $257,931 | $200,000 | $0 | $457,931 | $457,931 |
| 2021 | $226,071 | $170,000 | $0 | $396,071 | $396,071 |
| 2020 | $219,442 | $145,000 | $0 | $364,442 | $364,442 |
| 2019 | $164,608 | $155,000 | $0 | $319,608 | $319,608 |
| 2018 | $165,026 | $150,000 | $0 | $315,026 | $315,026 |
| 2017 | $167,539 | $125,000 | $0 | $292,539 | $292,539 |
| 2016 | $1 | $100,000 | $0 | $100,001 | $100,001 |
| 2015 | $1 | $85,000 | $0 | $85,001 | $85,001 |
| 2014 | $1 | $80,000 | $0 | $80,001 | $80,001 |
| 2013 | $1 | $80,750 | $0 | $80,751 | $80,751 |
| 2012 | $1 | $80,750 | $0 | $80,751 | $80,751 |
| 2011 | $1 | $95,000 | $0 | $95,001 | $95,001 |
| 2010 | $6,679 | $95,000 | $0 | $101,679 | $101,679 |
| 2009 | $6,747 | $105,000 | $0 | $111,747 | $111,747 |
| 2008 | $6,819 | $73,235 | $0 | $80,054 | $80,054 |
| 2007 | $6,891 | $73,235 | $0 | $80,126 | $80,126 |
Deed and Sales History
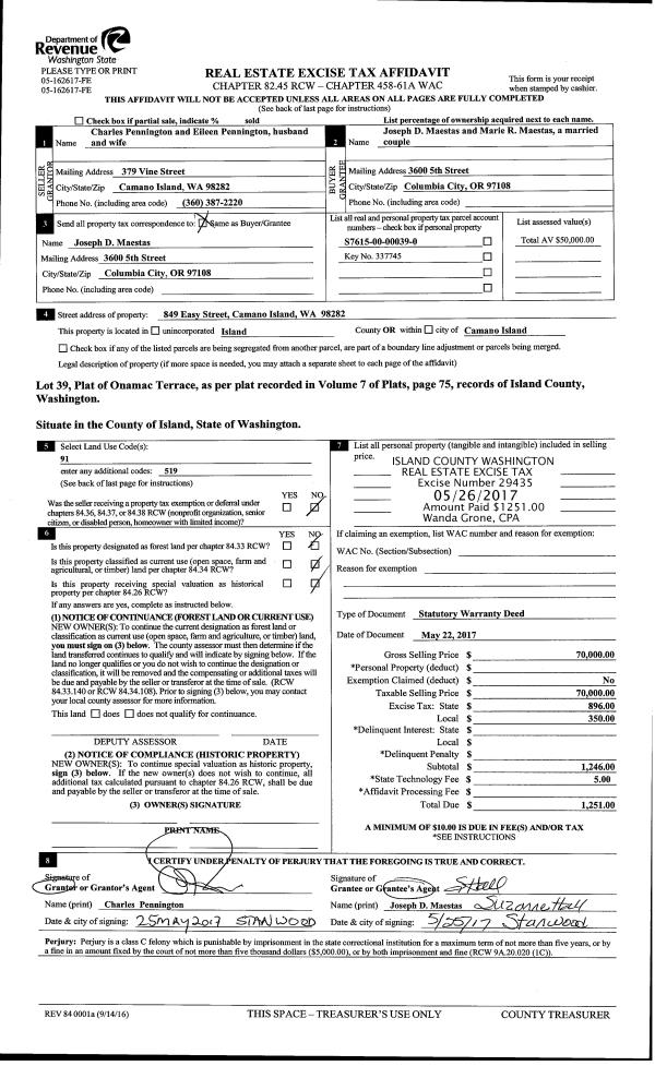
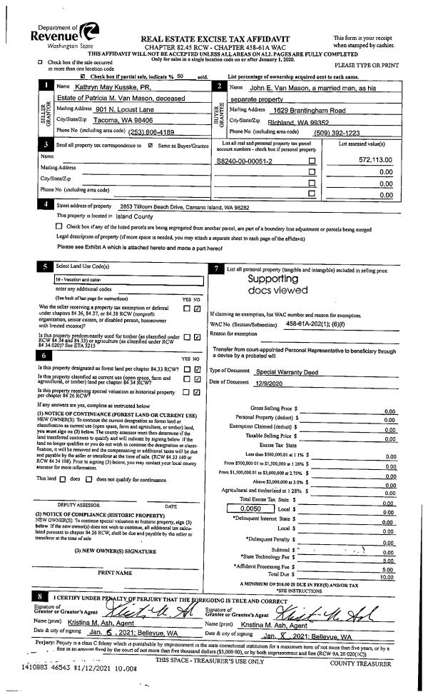
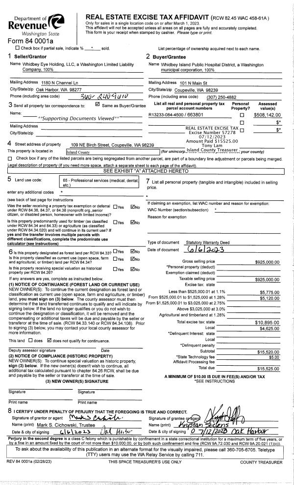
| 1 | 10/07/2022 | WD | Warranty Deed | PARISH, CHRISTIAN | RODRIGUEZ, CESAR | | | $540,000.00 | 54914 | 4552805 |
| 2 | 10/02/2020 | QCD | Quit Claim Deed | PARISH, CHRISTIAN | PARISH, CHRISTIAN | | | $0.00 | 45410 | 4500527 |
| 3 | 04/05/2017 | WD | Warranty Deed | SULLIVAN, RAYMOND P | PARISH, CHRISTIAN | | | $335,000.00 | 28793 | 4420323 |
| 4 | 08/10/2016 | WD | Warranty Deed | MARTINZ JTWROS, WALTER D | SULLIVAN, RAYMOND P | | | $171,000.00 | 25703 | 4405242 |
|   | |
| 5 | 05/28/2015 | QCD | Quit Claim Deed | MARTINZ, WALTER D | MARTINZ JTWROS, WALTER D | | | $0.00 | 21379 | 4386116 |
| 6 | 01/01/1900 | OTHER | Other - Misc. Documents | Unknown | MARTINZ, WALTER D | | | $0.00 | 0 | 0 |
Payout Agreement
| No payout information available.. |