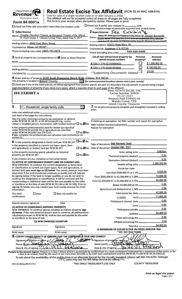
Property
Account |
| Property ID: | 403708 | Abbreviated Legal Description: | SUNSET RIDGE 2 W/2 LOT 5 BLK 3 |
| Geographic ID: | S8265-02-03005-1 | Agent Code: | |
| Type: | Real | | |
| Tax Area: | 110 - APPRAISER-OH Schl Dist, outside OH, improved & 1 acre or less | Land Use Code | 11 |
| Open Space: | N | DFL | N |
| Historic Property: | N | Remodel Property: | N |
| Multi-Family Redevelopment: | N | | |
| Township: | | Section: | |
| Range: | |
Location |
| Address: | 280 E SLEEPER RD OAK HARBOR, WA 98277 | Mapsco: | |
| Neighborhood: | Cycle 6 | Map ID: | 611 |
| Neighborhood CD: | 6 |
Owner |
| Name: | BRETT, CONNIE L | Owner ID: | 80741 |
| Mailing Address: | LORI L BRETT 280 E SLEEPER RD OAK HARBOR, WA 98277-9424 | % Ownership: | 100.0000000000% |
| | | Exemptions: | |
Taxes and Assessment Details
Values
| (+) Improvement Homesite Value: | + | $0 | |
| (+) Improvement Non-Homesite Value: | + | $227,835 | |
| (+) Land Homesite Value: | + | $0 | |
| (+) Land Non-Homesite Value: | + | $210,000 | |
| (+) Curr Use (HS): | + | $0 | $0 |
| (+) Curr Use (NHS): | + | $0 | $0 |
| | | -------------------------- | |
| (=) Market Value: | = | $437,835 | |
| (–) Productivity Loss: | – | $0 | |
| | | -------------------------- | |
| (=) Subtotal: | = | $437,835 | |
| (+) Senior Appraised Value: | + | $0 | |
| (+) Non-Senior Appraised Value: | + | $437,835 | |
| | | -------------------------- | |
| (=) Total Appraised Value: | = | $437,835 | |
| (–) Senior Exemption Loss: | – | $0 | |
| (–) Exemption Loss: | – | $0 | |
| | | -------------------------- | |
| (=) Taxable Value: | = | $437,835 | |
Taxing Jurisdiction
| Owner: | BRETT, CONNIE L | | |
| % Ownership: | 100.0000000000% | | |
| Total Value: | $437,835 | | |
| Tax Area: | 110 - APPRAISER-OH Schl Dist, outside OH, improved & 1 acre or less |
| CF | Conservation Futures | 0.0316035091 | $437,835 | $437,835 | $13.84 | | |
| CEM1 | Cemetery #1 | 0.0040320932 | $437,835 | $437,835 | $1.77 | | |
| FIRE2 | Fire & Rescue Dist #2 N Whidbey GEN | 0.5475949600 | $437,835 | $437,835 | $239.76 | | |
| HOBOND | Hospital BOND | 0.1910887512 | $437,835 | $437,835 | $83.67 | | |
| HOGEN | Hospital GEN | 0.3902502903 | $437,835 | $437,835 | $170.87 | | |
| CE | County Current Expense | 0.3708482477 | $437,835 | $437,835 | $162.37 | | |
| CR | County Roads | 0.4584763726 | $437,835 | $437,835 | $200.74 | | |
| ISLANDEMS | Hospital GEN (EMS) | 0.5000000000 | $437,835 | $437,835 | $218.92 | | |
| LIB | Library Sno-Isle GEN | 0.3153421757 | $437,835 | $437,835 | $138.07 | | |
| NWHIDPRMT | P & R N Whidbey GEN | 0.2004466701 | $437,835 | $437,835 | $87.76 | | |
| SCH201MO | School 201 Enrichment | 1.8559231640 | $437,835 | $437,835 | $812.59 | | |
| ST | State School | 1.3035497053 | $437,835 | $437,835 | $570.74 | | |
| ST2 | State School Part 2 | 0.8169543533 | $437,835 | $437,835 | $357.69 | | |
| | Total Tax Rate: | 6.9861102925 | | | | | |
| | | | | Taxes w/Current Exemptions: | $3,058.79 | | |
| | | | | Taxes w/o Exemptions: | $3,058.79 | | |
Improvement / Building
| Improvement #1: | RESIDENTIAL | State Code: | Y | 1742.0 sqft | Value: | $227,835 |
| Bathrooms: | 1.75 | Bedrooms: | 4 | | Ceiling: | DRY WALL SPRAYED | Exterior Wall/Cover: | WOOD SIDING | | Floor Covering: | CARPET/VINYL 20-80 | Floor Structure: | WOOD W/SUBFLOOR | | Foundation: | CONCRETE | Heating: | BASEBOARD ELECTRIC | | Interior Finish: | DRYWALL PAINT | Plumbing Fixture Cnt: | 9 | | Roof Slope: | 6" IN 12" | Roof Structure/Cover: | CJ ASPHALT |
|
| | Type | Description | Class CD | Sub Class CD | Year Built | Area |
| | BAS | BASE/MAIN FLOOR | 3 | 0 | 1970 | 1742.0 |
| | OP3 | OPEN PORCH W/ROOF | 3 | 0 | 1970 | 108.0 |
| | OCP | OPEN CARPORT | 3 | 0 | 1970 | 247.0 |
| | UTY | STORAGE/UTILITY | 3 | 0 | 1970 | 84.0 |
| | ENP | ENCLOSED PORCH | 3 | 0 | 1970 | 480.0 |
Sketch
Property Image
Land
| 1 | 17 | AC (01.01-02.00) | 1.4300 | 62290.80 | 0.00 | 0.00 | 1.00 | $210,000 | $0 |
Roll Value History
| 2026 | N/A | N/A | N/A | N/A | N/A |
| 2025 | $227,835 | $210,000 | $0 | $437,835 | $437,835 |
| 2024 | $236,281 | $200,000 | $0 | $436,281 | $436,281 |
| 2023 | $239,847 | $200,000 | $0 | $439,847 | $439,847 |
| 2022 | $220,415 | $200,000 | $0 | $420,415 | $420,415 |
| 2021 | $194,475 | $170,000 | $0 | $364,475 | $364,475 |
| 2020 | $190,136 | $145,000 | $0 | $335,136 | $335,136 |
| 2019 | $139,685 | $155,000 | $0 | $294,685 | $294,685 |
| 2018 | $140,176 | $150,000 | $0 | $290,176 | $290,176 |
| 2017 | $141,156 | $125,000 | $0 | $266,156 | $266,156 |
| 2016 | $108,540 | $100,000 | $0 | $208,540 | $208,540 |
| 2015 | $110,551 | $85,000 | $0 | $195,551 | $195,551 |
| 2014 | $112,560 | $80,000 | $0 | $192,560 | $192,560 |
| 2013 | $114,572 | $80,750 | $0 | $195,322 | $195,322 |
| 2012 | $116,580 | $80,750 | $0 | $197,330 | $197,330 |
| 2011 | $118,591 | $95,000 | $0 | $213,591 | $213,591 |
| 2010 | $120,836 | $95,000 | $0 | $215,836 | $215,836 |
| 2009 | $126,632 | $105,000 | $0 | $231,632 | $231,632 |
| 2008 | $128,911 | $73,235 | $0 | $202,146 | $202,146 |
| 2007 | $131,192 | $73,235 | $0 | $204,427 | $204,427 |
Deed and Sales History
| 1 | 03/07/2006 | 5 | DNU - Marriage License/Name Change | SCHURR, LORI L | BRETT, CONNIE L | | | $0.00 | 62590 | 4173228 |
| 2 | 12/13/2004 | TRUSTEED | Trustee's Deed | MORTGAGE ASS., FEDERAL NATIONA | MORTGAGE ASSOC., FEDERAL NATIO | | | $129,230.00 | 25114 | 4041391 |
| 3 | 04/13/2003 | TRUSTEED | Trustee's Deed | MORTGAGE ASSOC., FEDERAL NATIO | SCHURR, LORI L | | | $147,500.00 | 31730 | 4056705 |
| 4 | 12/01/2000 | TRUSTEED | Trustee's Deed | SCHULTZ, JEFFREY T | MORTGAGE ASS., FEDERAL NATIONA | | | $129,066.00 | 4732 | 20021949 |
| 5 | 05/01/1996 | WD | Warranty Deed | CALAWAY, CHARLES C | SCHULTZ, JEFFREY T | | | $123,000.00 | 61840 | 96009248 |
| 6 | 08/01/1988 | WD | Warranty Deed | CRANDALL, DONALD R | CALAWAY, CHARLES C | | | $67,000.00 | 82719 | 88010272 |
| 7 | 01/01/1900 | OTHER | Other - Misc. Documents | Unknown | CRANDALL, DONALD R | | | $0.00 | 0 | 0 |
Payout Agreement
| No payout information available.. |