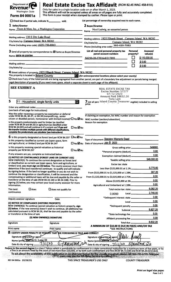
Property
Account |
| Property ID: | 403726 | Abbreviated Legal Description: | SUNSET RIDGE 2 W/2 LOT 6 BLK 3 |
| Geographic ID: | S8265-02-03006-1 | Agent Code: | |
| Type: | Real | | |
| Tax Area: | 112 - APPRAISER-OH Schl Dist, outside OH, improved, greater than 1 acre | Land Use Code | 11 |
| Open Space: | N | DFL | N |
| Historic Property: | N | Remodel Property: | N |
| Multi-Family Redevelopment: | N | | |
| Township: | | Section: | |
| Range: | |
Location |
| Address: | 277 SUNSET DR OAK HARBOR, WA 98277 | Mapsco: | |
| Neighborhood: | Cycle 6 | Map ID: | 611 |
| Neighborhood CD: | 6 |
Owner |
| Name: | RAMIREZ REYES, ADRIAN | Owner ID: | 304220 |
| Mailing Address: | NORMA CELESTINO VASQUEZ 277 SUNSET DR OAK HARBOR, WA 98277 | % Ownership: | 100.0000000000% |
| | | Exemptions: | |
Taxes and Assessment Details
Values
| (+) Improvement Homesite Value: | + | $0 | |
| (+) Improvement Non-Homesite Value: | + | $62,902 | |
| (+) Land Homesite Value: | + | $0 | |
| (+) Land Non-Homesite Value: | + | $210,000 | |
| (+) Curr Use (HS): | + | $0 | $0 |
| (+) Curr Use (NHS): | + | $0 | $0 |
| | | -------------------------- | |
| (=) Market Value: | = | $272,902 | |
| (–) Productivity Loss: | – | $0 | |
| | | -------------------------- | |
| (=) Subtotal: | = | $272,902 | |
| (+) Senior Appraised Value: | + | $0 | |
| (+) Non-Senior Appraised Value: | + | $272,902 | |
| | | -------------------------- | |
| (=) Total Appraised Value: | = | $272,902 | |
| (–) Senior Exemption Loss: | – | $0 | |
| (–) Exemption Loss: | – | $0 | |
| | | -------------------------- | |
| (=) Taxable Value: | = | $272,902 | |
Taxing Jurisdiction
| Owner: | RAMIREZ REYES, ADRIAN | | |
| % Ownership: | 100.0000000000% | | |
| Total Value: | $272,902 | | |
| Tax Area: | 112 - APPRAISER-OH Schl Dist, outside OH, improved, greater than 1 acre |
| CF | Conservation Futures | 0.0316035091 | $272,902 | $272,902 | $8.62 | | |
| CEM1 | Cemetery #1 | 0.0040320932 | $272,902 | $272,902 | $1.10 | | |
| FIRE2 | Fire & Rescue Dist #2 N Whidbey GEN | 0.5475949600 | $272,902 | $272,902 | $149.44 | | |
| HOBOND | Hospital BOND | 0.1910887512 | $272,902 | $272,902 | $52.15 | | |
| HOGEN | Hospital GEN | 0.3902502903 | $272,902 | $272,902 | $106.50 | | |
| CE | County Current Expense | 0.3708482477 | $272,902 | $272,902 | $101.21 | | |
| CR | County Roads | 0.4584763726 | $272,902 | $272,902 | $125.12 | | |
| ISLANDEMS | Hospital GEN (EMS) | 0.5000000000 | $272,902 | $272,902 | $136.45 | | |
| LIB | Library Sno-Isle GEN | 0.3153421757 | $272,902 | $272,902 | $86.06 | | |
| NWHIDPRMT | P & R N Whidbey GEN | 0.2004466701 | $272,902 | $272,902 | $54.70 | | |
| SCH201MO | School 201 Enrichment | 1.8559231640 | $272,902 | $272,902 | $506.49 | | |
| ST | State School | 1.3035497053 | $272,902 | $272,902 | $355.74 | | |
| ST2 | State School Part 2 | 0.8169543533 | $272,902 | $272,902 | $222.95 | | |
| | Total Tax Rate: | 6.9861102925 | | | | | |
| | | | | Taxes w/Current Exemptions: | $1,906.53 | | |
| | | | | Taxes w/o Exemptions: | $1,906.53 | | |
Improvement / Building
| Improvement #1: | MANUFACTURED HOME | State Code: | Y | 1344.0 sqft | Value: | $62,902 |
| Bathrooms: | 0 | Bedrooms: | 0 | | Ceiling: | PLASTER PAINTED | Cooling: | EVAP NO DUCT | | Exterior Wall/Cover: | VINYL | Floor Covering: | CARPET 100% | | Floor Structure: | SLAB ON GRADE | Foundation: | SLAB | | Heating: | FHA ELECTRIC | Interior Finish: | PLASTER | | Plumbing Fixture Cnt: | 1 | Roof Slope: | FLAT | | Roof Structure/Cover: | CJ ALUMINIUM HEAVY |   |   |
|
| | Type | Description | Class CD | Sub Class CD | Year Built | Area |
| | BAS | BASE/MAIN FLOOR | 3 | 0 | 1970 | 1344.0 |
| | CPD | OPEN CARPORT DIRT FLOOR | 3 | 0 | 1970 | 331.1 |
Sketch
Property Image
Land
| 1 | 17 | AC (01.01-02.00) | 1.4200 | 61855.20 | 0.00 | 0.00 | 1.00 | $210,000 | $0 |
Roll Value History
| 2026 | N/A | N/A | N/A | N/A | N/A |
| 2025 | $62,902 | $210,000 | $0 | $272,902 | $272,902 |
| 2024 | $65,190 | $200,000 | $0 | $265,190 | $265,190 |
| 2023 | $68,621 | $200,000 | $0 | $268,621 | $268,621 |
| 2022 | $12,410 | $200,000 | $0 | $212,410 | $212,410 |
| 2021 | $19,866 | $170,000 | $0 | $189,866 | $189,866 |
| 2020 | $19,545 | $145,000 | $0 | $164,545 | $164,545 |
| 2019 | $15,501 | $155,000 | $0 | $170,501 | $170,501 |
| 2018 | $15,602 | $150,000 | $0 | $165,602 | $165,602 |
| 2017 | $15,806 | $125,000 | $0 | $140,806 | $140,806 |
| 2016 | $18,544 | $100,000 | $0 | $118,544 | $118,544 |
| 2015 | $18,758 | $85,000 | $0 | $103,758 | $103,758 |
| 2014 | $19,434 | $80,000 | $0 | $99,434 | $99,434 |
| 2013 | $20,111 | $80,750 | $0 | $100,861 | $100,861 |
| 2012 | $20,609 | $80,750 | $0 | $101,359 | $101,359 |
| 2011 | $21,284 | $95,000 | $0 | $116,284 | $116,284 |
| 2010 | $45,876 | $95,000 | $0 | $140,876 | $140,876 |
| 2009 | $63,941 | $99,750 | $0 | $163,691 | $163,691 |
| 2008 | $65,294 | $78,450 | $0 | $143,744 | $143,744 |
| 2007 | $66,393 | $78,450 | $0 | $144,843 | $144,843 |
Deed and Sales History
| 1 | 05/09/2022 | WD | Warranty Deed | MASSEY JR, WILLIAM L | RAMIREZ REYES, ADRIAN | | | $210,000.00 | 53061 | 4544943 |
| 2 | 08/31/2021 | MANHOME | Manufactured Home | CRUTCHER, DEBORAH | MASSEY JR, WILLIAM L | | | $0.00 | 49868 | |
| 3 | 08/31/2021 | WD | Warranty Deed | CRUTCHER, DEBORAH | MASSEY JR, WILLIAM L | | | $130,000.00 | 49867 | 4528156 |
| 4 | 03/31/2003 | QCD | Quit Claim Deed | DEJESSA, GREGORY C | CRUTCHER, DEBORAH | | | $0.00 | 31399 | 4053670 |
| 5 | 07/01/1997 | OTHER | Other - Misc. Documents | DEJESSA, GREGORY C | DEJESSA, GREGORY C | | | $8,000.00 | 72348 | 0 |
| 6 | 07/01/1997 | WD | Warranty Deed | JOHNSON, CORNELIUS E | DEJESSA, GREGORY C | | | $30,000.00 | 72352 | 97011076 |
| 7 | 12/01/1991 | OTHER | Other - Misc. Documents | JOHNSON, CORNELIUS E | JOHNSON, CORNELIUS E | | | $18,792.00 | 14556 | 373337 |
| 8 | 12/01/1991 | WD | Warranty Deed | TRAVIS, PAUL N | JOHNSON, CORNELIUS E | | | $45,000.00 | 14424 | 91019345 |
| 9 | 07/01/1991 | REC | Real Estate Contract | ROSEMIRE, CARL J | TRAVIS, PAUL N | | | $49,500.00 | 13242 | 91013807 |
| 10 | 08/01/1980 | REC | Real Estate Contract | ROSEMIRE, CARL J | ROSEMIRE, CARL J | | | $35,950.00 | 2956 | 373337 |
| 11 | 08/01/1980 | REC | Real Estate Contract | MASSEY, WILLIAM L | ROSEMIRE, CARL J | | | $35,950.00 | 2956 | 373337 |
| 12 | 06/01/1979 | WD | Warranty Deed | LOCKWOOD, GARY D | MASSEY, WILLIAM L | | | $27,000.00 | 928660 | 3538700 |
| 13 | 06/01/1979 | REC | Real Estate Contract | SLOAN, ROBERT D | LOCKWOOD, GARY D | | | $27,357.00 | 92867 | 353871 |
| 14 | 01/01/1900 | OTHER | Other - Misc. Documents | SLOAN, ROBERT D | SLOAN, ROBERT D | | | $0.00 | 0 | 0 |
| 15 | 01/01/1900 | OTHER | Other - Misc. Documents | Unknown | SLOAN, ROBERT D | | | $0.00 | 0 | 0 |
Payout Agreement
| No payout information available.. |