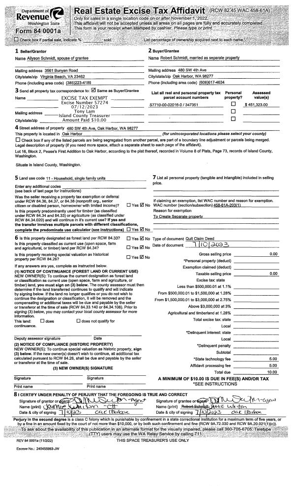
Property
Account |
| Property ID: | 403771 | Abbreviated Legal Description: | SUNSET RIDGE 2 LOT 9A SP V1 SP P2 AF#230968 PT LOT 9 BLK 3 |
| Geographic ID: | S8265-02-03009-1 | Agent Code: | |
| Type: | Real | | |
| Tax Area: | 110 - APPRAISER-OH Schl Dist, outside OH, improved & 1 acre or less | Land Use Code | 11 |
| Open Space: | N | DFL | N |
| Historic Property: | N | Remodel Property: | N |
| Multi-Family Redevelopment: | N | | |
| Township: | | Section: | |
| Range: | |
Location |
| Address: | 358 E SLEEPER RD OAK HARBOR, WA 98277 | Mapsco: | |
| Neighborhood: | Cycle 6 | Map ID: | 611 |
| Neighborhood CD: | 6 |
Owner |
| Name: | BILLUPS II, LLOYD L | Owner ID: | 197002 |
| Mailing Address: | LORI M BILLUPS PSC 561 #952 FPO, AP 96310-0010 | % Ownership: | 100.0000000000% |
| | | Exemptions: | |
Taxes and Assessment Details
Values
| (+) Improvement Homesite Value: | + | $0 | |
| (+) Improvement Non-Homesite Value: | + | $121,037 | |
| (+) Land Homesite Value: | + | $0 | |
| (+) Land Non-Homesite Value: | + | $210,000 | |
| (+) Curr Use (HS): | + | $0 | $0 |
| (+) Curr Use (NHS): | + | $0 | $0 |
| | | -------------------------- | |
| (=) Market Value: | = | $331,037 | |
| (–) Productivity Loss: | – | $0 | |
| | | -------------------------- | |
| (=) Subtotal: | = | $331,037 | |
| (+) Senior Appraised Value: | + | $0 | |
| (+) Non-Senior Appraised Value: | + | $331,037 | |
| | | -------------------------- | |
| (=) Total Appraised Value: | = | $331,037 | |
| (–) Senior Exemption Loss: | – | $0 | |
| (–) Exemption Loss: | – | $0 | |
| | | -------------------------- | |
| (=) Taxable Value: | = | $331,037 | |
Taxing Jurisdiction
| Owner: | BILLUPS II, LLOYD L | | |
| % Ownership: | 100.0000000000% | | |
| Total Value: | $331,037 | | |
| Tax Area: | 110 - APPRAISER-OH Schl Dist, outside OH, improved & 1 acre or less |
| CF | Conservation Futures | 0.0316035091 | $331,037 | $331,037 | $10.46 | | |
| CEM1 | Cemetery #1 | 0.0040320932 | $331,037 | $331,037 | $1.33 | | |
| FIRE2 | Fire & Rescue Dist #2 N Whidbey GEN | 0.5475949600 | $331,037 | $331,037 | $181.27 | | |
| HOBOND | Hospital BOND | 0.1910887512 | $331,037 | $331,037 | $63.26 | | |
| HOGEN | Hospital GEN | 0.3902502903 | $331,037 | $331,037 | $129.19 | | |
| CE | County Current Expense | 0.3708482477 | $331,037 | $331,037 | $122.76 | | |
| CR | County Roads | 0.4584763726 | $331,037 | $331,037 | $151.77 | | |
| ISLANDEMS | Hospital GEN (EMS) | 0.5000000000 | $331,037 | $331,037 | $165.52 | | |
| LIB | Library Sno-Isle GEN | 0.3153421757 | $331,037 | $331,037 | $104.39 | | |
| NWHIDPRMT | P & R N Whidbey GEN | 0.2004466701 | $331,037 | $331,037 | $66.36 | | |
| SCH201MO | School 201 Enrichment | 1.8559231640 | $331,037 | $331,037 | $614.38 | | |
| ST | State School | 1.3035497053 | $331,037 | $331,037 | $431.52 | | |
| ST2 | State School Part 2 | 0.8169543533 | $331,037 | $331,037 | $270.44 | | |
| | Total Tax Rate: | 6.9861102925 | | | | | |
| | | | | Taxes w/Current Exemptions: | $2,312.65 | | |
| | | | | Taxes w/o Exemptions: | $2,312.65 | | |
Improvement / Building
| Improvement #1: | MANUFACTURED HOME | State Code: | Y | 1404.0 sqft | Value: | $121,037 |
| Bathrooms: | 2 | Bedrooms: | 3 | | Ceiling: | PLASTER PAINTED | Cooling: | EVAP NO DUCT | | Exterior Wall/Cover: | VINYL | Floor Covering: | CARPET 100% | | Floor Structure: | SLAB ON GRADE | Foundation: | SLAB | | Heating: | FHA ELECTRIC | Interior Finish: | PLASTER | | Plumbing Fixture Cnt: | 1 | Roof Slope: | FLAT | | Roof Structure/Cover: | CJ ALUMINIUM HEAVY |   |   |
|
| | Type | Description | Class CD | Sub Class CD | Year Built | Area |
| | BAS | BASE/MAIN FLOOR | 4 | 0 | 2003 | 1404.0 |
| | UTY | STORAGE/UTILITY | 4 | 0 | 2003 | 120.0 |
| | OWP | OPEN WOOD PORCH W/STEPS | 4 | 0 | 2003 | 160.0 |
Sketch
Property Image
Land
| 1 | 17 | AC (01.01-02.00) | 1.1400 | 49658.40 | 0.00 | 0.00 | 1.00 | $210,000 | $0 |
Roll Value History
| 2026 | N/A | N/A | N/A | N/A | N/A |
| 2025 | $121,037 | $210,000 | $0 | $331,037 | $331,037 |
| 2024 | $124,353 | $200,000 | $0 | $324,353 | $324,353 |
| 2023 | $111,010 | $200,000 | $0 | $311,010 | $311,010 |
| 2022 | $90,241 | $200,000 | $0 | $290,241 | $290,241 |
| 2021 | $80,459 | $170,000 | $0 | $250,459 | $250,459 |
| 2020 | $80,035 | $145,000 | $0 | $225,035 | $225,035 |
| 2019 | $64,573 | $155,000 | $0 | $219,573 | $219,573 |
| 2018 | $65,333 | $150,000 | $0 | $215,333 | $215,333 |
| 2017 | $66,093 | $125,000 | $0 | $191,093 | $191,093 |
| 2016 | $63,803 | $100,000 | $0 | $163,803 | $163,803 |
| 2015 | $65,292 | $85,000 | $0 | $150,292 | $150,292 |
| 2014 | $66,037 | $80,000 | $0 | $146,037 | $146,037 |
| 2013 | $66,782 | $80,750 | $0 | $147,532 | $147,532 |
| 2012 | $68,271 | $80,750 | $0 | $149,021 | $149,021 |
| 2011 | $69,016 | $95,000 | $0 | $164,016 | $164,016 |
| 2010 | $74,629 | $95,000 | $0 | $169,629 | $169,629 |
| 2009 | $94,805 | $105,000 | $0 | $199,805 | $199,805 |
| 2008 | $97,670 | $82,770 | $0 | $180,440 | $180,440 |
| 2007 | $99,807 | $82,770 | $0 | $182,577 | $182,577 |
Deed and Sales History
| 1 | 06/13/2006 | WD | Warranty Deed | LAVEN, RONALD J | BILLUPS II, LLOYD L | | | $225,000.00 | 62658 | 4173496 |
| 2 | 05/23/2003 | WD | Warranty Deed | WESTGATE HOMES INC, | LAVEN, RONALD J | | | $148,800.00 | 32304 | 4060990 |
| 3 | 12/19/2002 | TRUSTEED | Trustee's Deed | MINNESOTA NATIONAL ASSOC, WELL | WESTGATE HOMES INC, | | | $60,000.00 | 25139 | 4041550 |
| 4 | 09/09/2002 | TRUSTEED | Trustee's Deed | LEMAS, MARTIN & | MINNESOTA NATIONAL ASSOC, WELL | | | $63,333.00 | 23942 | 4033103 |
| 5 | 05/01/1994 | OTHER | Other - Misc. Documents | MASSEY, WILLIAM L | LEMAS, MARTIN / | | | $34,900.00 | 42078 | 0 |
| 6 | 05/01/1994 | WD | Warranty Deed | LEMAS, MARTIN / | LEMAS, MARTIN & | | | $35,000.00 | 42077 | 94012051 |
| 7 | 09/01/1993 | WD | Warranty Deed | MASSEY, WILLIAM L | MASSEY, WILLIAM L | | | $9,500.00 | 33516 | 93018262 |
| 8 | 03/01/1989 | OTHER | Other - Misc. Documents | COLLIER, JOE T | MASSEY, WILLIAM L | | | $15,000.00 | 90902 | 0 |
| 9 | 08/01/1987 | WD | Warranty Deed | CORRELL, JOHN D | COLLIER, JOE T | | | $6,000.00 | 72621 | 87011925 |
| 10 | 01/01/1900 | OTHER | Other - Misc. Documents | Unknown | CORRELL, JOHN D | | | $0.00 | 0 | 0 |
Payout Agreement
| No payout information available.. |