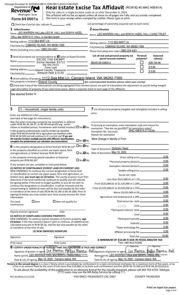
Property
Account |
| Property ID: | 403931 | Abbreviated Legal Description: | SUNSET TERR LOT 3 BLK A |
| Geographic ID: | S8270-00-0A003-0 | Agent Code: | |
| Type: | Real | | |
| Tax Area: | 300 - APPRAISER-Cpvl Schl Dist, in Cpvl | Land Use Code | 11 |
| Open Space: | N | DFL | N |
| Historic Property: | N | Remodel Property: | N |
| Multi-Family Redevelopment: | N | | |
| Township: | | Section: | |
| Range: | |
Location |
| Address: | 205 NE FARIS ST COUPEVILLE, WA 98239 | Mapsco: | |
| Neighborhood: | Cycle 2 | Map ID: | 177 |
| Neighborhood CD: | 2 |
Owner |
| Name: | TRUSSLER, DORRIS | Owner ID: | 89829 |
| Mailing Address: | PO BOX 1742 COUPEVILLE, WA 98239-1742 | % Ownership: | 100.0000000000% |
| | | Exemptions: | |
Taxes and Assessment Details
Values
| (+) Improvement Homesite Value: | + | $0 | |
| (+) Improvement Non-Homesite Value: | + | $348,883 | |
| (+) Land Homesite Value: | + | $0 | |
| (+) Land Non-Homesite Value: | + | $270,000 | |
| (+) Curr Use (HS): | + | $0 | $0 |
| (+) Curr Use (NHS): | + | $0 | $0 |
| | | -------------------------- | |
| (=) Market Value: | = | $618,883 | |
| (–) Productivity Loss: | – | $0 | |
| | | -------------------------- | |
| (=) Subtotal: | = | $618,883 | |
| (+) Senior Appraised Value: | + | $0 | |
| (+) Non-Senior Appraised Value: | + | $618,883 | |
| | | -------------------------- | |
| (=) Total Appraised Value: | = | $618,883 | |
| (–) Senior Exemption Loss: | – | $0 | |
| (–) Exemption Loss: | – | $0 | |
| | | -------------------------- | |
| (=) Taxable Value: | = | $618,883 | |
Taxing Jurisdiction
| Owner: | TRUSSLER, DORRIS | | |
| % Ownership: | 100.0000000000% | | |
| Total Value: | $618,883 | | |
| Tax Area: | 300 - APPRAISER-Cpvl Schl Dist, in Cpvl |
| CF | Conservation Futures | 0.0316035091 | $618,883 | $618,883 | $19.56 | | |
| CEM2 | Cemetery #2 | 0.0095056933 | $618,883 | $618,883 | $5.88 | | |
| COUP | City: Town of Coupeville | 0.8426414490 | $618,883 | $618,883 | $521.50 | | |
| FIRE5 | Fire & Rescue Dist #5 C Whidbey GEN | 1.2008080668 | $618,883 | $618,883 | $743.16 | | |
| FIRE5BOND | Fire & Rescue Dist #5 C Whidbey BOND | 0.1400090713 | $618,883 | $618,883 | $86.65 | | |
| HOBOND | Hospital BOND | 0.1910887512 | $618,883 | $618,883 | $118.26 | | |
| HOGEN | Hospital GEN | 0.3902502903 | $618,883 | $618,883 | $241.52 | | |
| CE | County Current Expense | 0.3708482477 | $618,883 | $618,883 | $229.51 | | |
| ISLANDEMS | Hospital GEN (EMS) | 0.5000000000 | $618,883 | $618,883 | $309.44 | | |
| LIB | Library Sno-Isle GEN | 0.3153421757 | $618,883 | $618,883 | $195.16 | | |
| LIBCAP | Library Sno-Isle BOND (Cap Fac Imp Area) | 0.0543427938 | $618,883 | $618,883 | $33.63 | | |
| POCOUP | Port of Coupeville GEN | 0.1093371703 | $618,883 | $618,883 | $67.67 | | |
| POCOUPIDD | Port of Coupeville IDD | 0.3409740022 | $618,883 | $618,883 | $211.02 | | |
| COUPSDTECH | School 204 CP (TECH) | 0.7545480007 | $618,883 | $618,883 | $466.98 | | |
| SCH204MO | School 204 Enrichment | 0.6716186034 | $618,883 | $618,883 | $415.65 | | |
| ST | State School | 1.3035497053 | $618,883 | $618,883 | $806.74 | | |
| ST2 | State School Part 2 | 0.8169543533 | $618,883 | $618,883 | $505.60 | | |
| | Total Tax Rate: | 8.0434218834 | | | | | |
| | | | | Taxes w/Current Exemptions: | $4,977.93 | | |
| | | | | Taxes w/o Exemptions: | $4,977.93 | | |
Improvement / Building
| Improvement #1: | RESIDENTIAL | State Code: | Y | 2697.4 sqft | Value: | $348,883 |
| Bathrooms: | 2.5 | Bedrooms: | 3 | | Ceiling: | DRYWALL PAINTED | Exterior Wall/Cover: | CEMENT FIBER | | Floor Covering: | CARPET/VINYL 80-20 | Floor Structure: | WOOD W/SUBFLOOR | | Foundation: | CONCRETE | Heating: | WALL HEAT ELECTRIC | | Interior Finish: | DRYWALL PAINT | Plumbing Fixture Cnt: | 11 | | Roof Slope: | 5" IN 12" | Roof Structure/Cover: | CJ ASPHALT |
|
| | Type | Description | Class CD | Sub Class CD | Year Built | Area |
| | BAS | BASE/MAIN FLOOR | 3 | 0 | 1994 | 2137.4 |
| | BGR | BASEMENT GARAGE | 3 | 0 | 1994 | 728.0 |
| | OWP | OPEN WOOD PORCH W/STEPS | 3 | 0 | 1994 | 115.0 |
| | OWP | OPEN WOOD PORCH W/STEPS | 3 | 0 | 1994 | 194.6 |
| | OWP | OPEN WOOD PORCH W/STEPS | 3 | 0 | 1994 | 435.0 |
| | DWN | DOWNSTAIRS LIVING AREA | 3 | 0 | 1994 | 560.0 |
Sketch
Property Image
Land
| 1 | 15 | SQ (12001-21780) | 0.4698 | 20464.49 | 0.00 | 0.00 | 1.00 | $270,000 | $0 |
Roll Value History
| 2026 | N/A | N/A | N/A | N/A | N/A |
| 2025 | $348,883 | $270,000 | $0 | $618,883 | $618,883 |
| 2024 | $344,247 | $260,000 | $0 | $604,247 | $604,247 |
| 2023 | $348,883 | $240,000 | $0 | $588,883 | $588,883 |
| 2022 | $320,121 | $230,000 | $0 | $550,121 | $550,121 |
| 2021 | $282,018 | $180,000 | $0 | $462,018 | $462,018 |
| 2020 | $275,605 | $160,000 | $0 | $435,605 | $435,605 |
| 2019 | $217,203 | $200,000 | $0 | $417,203 | $417,203 |
| 2018 | $203,945 | $150,000 | $0 | $353,945 | $353,945 |
| 2017 | $205,260 | $130,000 | $0 | $335,260 | $335,260 |
| 2016 | $207,891 | $115,000 | $0 | $322,891 | $322,891 |
| 2015 | $210,523 | $90,000 | $0 | $300,523 | $300,523 |
| 2014 | $213,155 | $85,000 | $0 | $298,155 | $298,155 |
| 2013 | $215,785 | $85,000 | $0 | $300,785 | $300,785 |
| 2012 | $215,645 | $90,950 | $0 | $306,595 | $306,595 |
| 2011 | $218,305 | $107,000 | $0 | $325,305 | $325,305 |
| 2010 | $222,510 | $107,000 | $0 | $329,510 | $329,510 |
| 2009 | $232,114 | $125,000 | $0 | $357,114 | $357,114 |
| 2008 | $234,865 | $145,000 | $0 | $379,865 | $379,865 |
| 2007 | $237,616 | $145,000 | $0 | $382,616 | $382,616 |
Deed and Sales History
| 1 | 02/15/2001 | QCD | Quit Claim Deed | CHARLETON, CHARLES F | TRUSSLER, DORRIS | | | $88,212.00 | 10556 | 20025918 |
| 2 | 09/01/1997 | WD | Warranty Deed | HAMPTON, THOMAS L | CHARLETON, CHARLES F | | | $225,000.00 | 73301 | 97015553 |
| 3 | 02/01/1994 | WD | Warranty Deed | KROLL, KENNETH M | HAMPTON, THOMAS L | | | $17,500.00 | 40599 | 94003795 |
| 4 | 02/01/1991 | DECREE | Divorce Decree/Legal Separation | KROLL, KENNETH | KROLL, KENNETH M | | | $0.00 | 11288 | 91005590 |
| 5 | 03/01/1980 | EXECUTORD | Executor Deed | FARRIS, EMERSON | KROLL, KENNETH | | | $16,950.00 | 992 | 366736 |
| 6 | 01/01/1900 | OTHER | Other - Misc. Documents | CENTER, ISLE R | FARRIS, EMERSON | | | $0.00 | 0 | 0 |
| 7 | 01/01/1900 | OTHER | Other - Misc. Documents | ARNOLD, GARY N | CENTER, ISLE R | | | $0.00 | 50926 | 0 |
| 8 | 01/01/1900 | OTHER | Other - Misc. Documents | Unknown | ARNOLD, GARY N | | | $0.00 | 70866 | 0 |
Payout Agreement
| No payout information available.. |