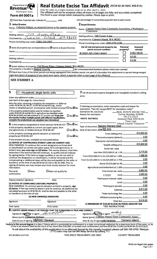
Property
Account |
| Property ID: | 404020 | Abbreviated Legal Description: | SUNSET TERR LOT 10 BLK A |
| Geographic ID: | S8270-00-0A010-0 | Agent Code: | |
| Type: | Real | | |
| Tax Area: | 300 - APPRAISER-Cpvl Schl Dist, in Cpvl | Land Use Code | 11 |
| Open Space: | N | DFL | N |
| Historic Property: | N | Remodel Property: | N |
| Multi-Family Redevelopment: | N | | |
| Township: | | Section: | |
| Range: | |
Location |
| Address: | 905 NE PENNINGTON LOOP COUPEVILLE, WA 98239 | Mapsco: | |
| Neighborhood: | Cycle 2 | Map ID: | 177 |
| Neighborhood CD: | 2 |
Owner |
| Name: | ANDERSON JTWROS, LEON | Owner ID: | 314323 |
| Mailing Address: | TIMOTHY ANDERSON JTWROS 905 NE PENNINGTON LOOP COUPEVILLE, WA 98239 | % Ownership: | 100.0000000000% |
| | | Exemptions: | SNR/DSBL |
Taxes and Assessment Details
Values
| (+) Improvement Homesite Value: | + | $239,960 | |
| (+) Improvement Non-Homesite Value: | + | $0 | |
| (+) Land Homesite Value: | + | $240,000 | |
| (+) Land Non-Homesite Value: | + | $0 | |
| (+) Curr Use (HS): | + | $0 | $0 |
| (+) Curr Use (NHS): | + | $0 | $0 |
| | | -------------------------- | |
| (=) Market Value: | = | $479,960 | |
| (–) Productivity Loss: | – | $0 | |
| | | -------------------------- | |
| (=) Subtotal: | = | $479,960 | |
| (+) Senior Appraised Value: | + | $242,163 | |
| (+) Non-Senior Appraised Value: | + | $0 | |
| | | -------------------------- | |
| (=) Total Appraised Value: | = | $242,163 | |
| (–) Senior Exemption Loss: | – | $145,298 | |
| (–) Exemption Loss: | – | $0 | |
| | | -------------------------- | |
| (=) Taxable Value: | = | $96,865 | |
Taxing Jurisdiction
| Owner: | ANDERSON JTWROS, LEON | | |
| % Ownership: | 100.0000000000% | | |
| Total Value: | $479,960 | | |
| Tax Area: | 300 - APPRAISER-Cpvl Schl Dist, in Cpvl |
| CF | Conservation Futures | 0.0316035091 | $479,960 | $96,865 | $3.06 | | |
| CEM2 | Cemetery #2 | 0.0095056933 | $479,960 | $96,865 | $0.92 | | |
| COUP | City: Town of Coupeville | 0.8426414490 | $479,960 | $96,865 | $81.62 | | |
| FIRE5 | Fire & Rescue Dist #5 C Whidbey GEN | 1.2008080668 | $479,960 | $96,865 | $116.32 | | |
| FIRE5BOND | Fire & Rescue Dist #5 C Whidbey BOND | 0.0000000000 | $479,960 | $0 | $0.00 | | |
| HOBOND | Hospital BOND | 0.0000000000 | $479,960 | $0 | $0.00 | | |
| HOGEN | Hospital GEN | 0.3902502903 | $479,960 | $96,865 | $37.80 | | |
| CE | County Current Expense | 0.3708482477 | $479,960 | $96,865 | $35.92 | | |
| ISLANDEMS | Hospital GEN (EMS) | 0.5000000000 | $479,960 | $96,865 | $48.43 | | |
| LIB | Library Sno-Isle GEN | 0.3153421757 | $479,960 | $96,865 | $30.55 | | |
| LIBCAP | Library Sno-Isle BOND (Cap Fac Imp Area) | 0.0000000000 | $479,960 | $0 | $0.00 | | |
| POCOUP | Port of Coupeville GEN | 0.1093371703 | $479,960 | $96,865 | $10.59 | | |
| POCOUPIDD | Port of Coupeville IDD | 0.3409740022 | $479,960 | $96,865 | $33.03 | | |
| COUPSDTECH | School 204 CP (TECH) | 0.0000000000 | $479,960 | $0 | $0.00 | | |
| SCH204MO | School 204 Enrichment | 0.0000000000 | $479,960 | $0 | $0.00 | | |
| ST | State School | 1.3035497053 | $479,960 | $96,865 | $126.27 | | |
| ST2 | State School Part 2 | 0.0000000000 | $479,960 | $0 | $0.00 | | |
| | Total Tax Rate: | 5.4148603097 | | | | | |
| | | | | Taxes w/Current Exemptions: | $524.51 | | |
| | | | | Taxes w/o Exemptions: | $3,860.50 | | |
Improvement / Building
| Improvement #1: | RESIDENTIAL | State Code: | Y | 1590.0 sqft | Value: | $239,960 |
| Bathrooms: | 2 | Bedrooms: | 3 | | Ceiling: | DRYWALL PAINTED | Exterior Wall/Cover: | WOOD SIDING | | Floor Covering: | CARPET/VINYL 80-20 | Floor Structure: | WOOD W/SUBFLOOR | | Foundation: | CONCRETE | Heating: | FHA OIL | | Interior Finish: | DRYWALL PAINT | Plumbing Fixture Cnt: | 9 | | Roof Slope: | 4" IN 12" | Roof Structure/Cover: | CJ ASPHALT |
|
| | Type | Description | Class CD | Sub Class CD | Year Built | Area |
| | BAS | BASE/MAIN FLOOR | 3 | 0 | 1959 | 1590.0 |
| | OP1 | OPEN PORCH SLAB | 3 | 0 | 1959 | 100.0 |
| | AGR | ATTACHED GARAGE | 3 | 0 | 1959 | 260.0 |
| | ENP | ENCLOSED PORCH | 3 | 0 | 1959 | 209.0 |
Sketch
Property Image
Land
| 1 | 16 | AC (00.51-01.00) | 0.5200 | 22651.20 | 0.00 | 0.00 | 1.00 | $240,000 | $0 |
Roll Value History
| 2026 | N/A | N/A | N/A | N/A | N/A |
| 2025 | $239,960 | $240,000 | $0 | $479,960 | $96,865 |
| 2024 | $233,409 | $225,000 | $0 | $458,409 | $96,865 |
| 2023 | $236,685 | $210,000 | $0 | $446,685 | $96,865 |
| 2022 | $217,287 | $210,000 | $0 | $427,287 | $172,163 |
| 2021 | $191,530 | $160,000 | $0 | $351,530 | $96,865 |
| 2020 | $162,124 | $140,000 | $0 | $302,124 | $86,547 |
| 2019 | $117,759 | $180,000 | $0 | $297,759 | $86,547 |
| 2018 | $98,701 | $160,000 | $0 | $258,701 | $86,547 |
| 2017 | $99,590 | $130,000 | $0 | $229,590 | $86,547 |
| 2016 | $101,368 | $115,000 | $0 | $216,368 | $86,547 |
| 2015 | $103,147 | $90,000 | $0 | $193,147 | $193,147 |
| 2014 | $104,925 | $85,000 | $0 | $189,925 | $189,925 |
| 2013 | $106,704 | $85,000 | $0 | $191,704 | $191,704 |
| 2012 | $107,713 | $90,950 | $0 | $198,663 | $198,663 |
| 2011 | $109,492 | $107,000 | $0 | $216,492 | $216,492 |
| 2010 | $120,825 | $107,000 | $0 | $227,825 | $227,825 |
| 2009 | $126,383 | $125,000 | $0 | $251,383 | $251,383 |
| 2008 | $128,347 | $125,000 | $0 | $253,347 | $253,347 |
| 2007 | $130,311 | $125,000 | $0 | $255,311 | $255,311 |
Deed and Sales History
| 1 | 07/29/2024 | QCD | Quit Claim Deed | ANDERSON, LEON P / SUELLEN | ANDERSON JTWROS, LEON | | | $0.00 | 60778 | 4578463 |
| 2 | 08/01/1995 | WD | Warranty Deed | MONLUX, RUTH F | ANDERSON, LEON P | | | $114,000.00 | 53055 | 95014109 |
| 3 | 09/01/1978 | OTHER | Other - Misc. Documents | Unknown | MONLUX, RUTH F | | | $43,500.00 | 84535 | 339785 |
Payout Agreement
| No payout information available.. |