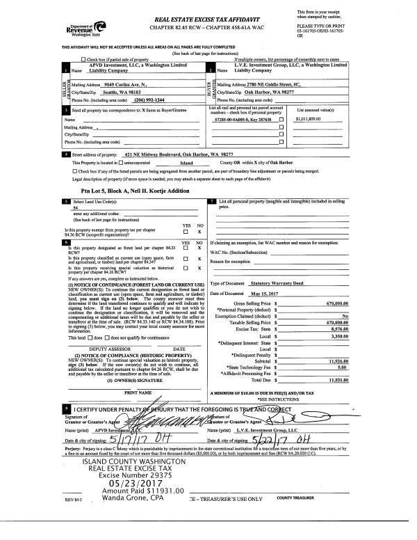
Property
Account |
| Property ID: | 404271 | Abbreviated Legal Description: | SUNSET TERR LOT 4 BLK B |
| Geographic ID: | S8270-00-0B004-0 | Agent Code: | |
| Type: | Real | | |
| Tax Area: | 300 - APPRAISER-Cpvl Schl Dist, in Cpvl | Land Use Code | 11 |
| Open Space: | N | DFL | N |
| Historic Property: | N | Remodel Property: | N |
| Multi-Family Redevelopment: | N | | |
| Township: | | Section: | |
| Range: | |
Location |
| Address: | 1030 NE SUMMIT LOOP COUPEVILLE, WA 98239 | Mapsco: | |
| Neighborhood: | Cycle 2 | Map ID: | 177 |
| Neighborhood CD: | 2 |
Owner |
| Name: | HARADA, ERICK KAMEYOSHI | Owner ID: | 295904 |
| Mailing Address: | CAITLIN BREANN HARADA 1030 NE SUMMIT LOOP COUPEVILLE, WA 98239 | % Ownership: | 100.0000000000% |
| | | Exemptions: | |
Taxes and Assessment Details
Values
| (+) Improvement Homesite Value: | + | $0 | |
| (+) Improvement Non-Homesite Value: | + | $467,117 | |
| (+) Land Homesite Value: | + | $0 | |
| (+) Land Non-Homesite Value: | + | $240,000 | |
| (+) Curr Use (HS): | + | $0 | $0 |
| (+) Curr Use (NHS): | + | $0 | $0 |
| | | -------------------------- | |
| (=) Market Value: | = | $707,117 | |
| (–) Productivity Loss: | – | $0 | |
| | | -------------------------- | |
| (=) Subtotal: | = | $707,117 | |
| (+) Senior Appraised Value: | + | $0 | |
| (+) Non-Senior Appraised Value: | + | $707,117 | |
| | | -------------------------- | |
| (=) Total Appraised Value: | = | $707,117 | |
| (–) Senior Exemption Loss: | – | $0 | |
| (–) Exemption Loss: | – | $0 | |
| | | -------------------------- | |
| (=) Taxable Value: | = | $707,117 | |
Taxing Jurisdiction
| Owner: | HARADA, ERICK KAMEYOSHI | | |
| % Ownership: | 100.0000000000% | | |
| Total Value: | $707,117 | | |
| Tax Area: | 300 - APPRAISER-Cpvl Schl Dist, in Cpvl |
| CF | Conservation Futures | 0.0316035091 | $707,117 | $707,117 | $22.35 | | |
| CEM2 | Cemetery #2 | 0.0095056933 | $707,117 | $707,117 | $6.72 | | |
| COUP | City: Town of Coupeville | 0.8426414490 | $707,117 | $707,117 | $595.85 | | |
| FIRE5 | Fire & Rescue Dist #5 C Whidbey GEN | 1.2008080668 | $707,117 | $707,117 | $849.11 | | |
| FIRE5BOND | Fire & Rescue Dist #5 C Whidbey BOND | 0.1400090713 | $707,117 | $707,117 | $99.00 | | |
| HOBOND | Hospital BOND | 0.1910887512 | $707,117 | $707,117 | $135.12 | | |
| HOGEN | Hospital GEN | 0.3902502903 | $707,117 | $707,117 | $275.95 | | |
| CE | County Current Expense | 0.3708482477 | $707,117 | $707,117 | $262.23 | | |
| ISLANDEMS | Hospital GEN (EMS) | 0.5000000000 | $707,117 | $707,117 | $353.56 | | |
| LIB | Library Sno-Isle GEN | 0.3153421757 | $707,117 | $707,117 | $222.98 | | |
| LIBCAP | Library Sno-Isle BOND (Cap Fac Imp Area) | 0.0543427938 | $707,117 | $707,117 | $38.43 | | |
| POCOUP | Port of Coupeville GEN | 0.1093371703 | $707,117 | $707,117 | $77.31 | | |
| POCOUPIDD | Port of Coupeville IDD | 0.3409740022 | $707,117 | $707,117 | $241.11 | | |
| COUPSDTECH | School 204 CP (TECH) | 0.7545480007 | $707,117 | $707,117 | $533.55 | | |
| SCH204MO | School 204 Enrichment | 0.6716186034 | $707,117 | $707,117 | $474.91 | | |
| ST | State School | 1.3035497053 | $707,117 | $707,117 | $921.76 | | |
| ST2 | State School Part 2 | 0.8169543533 | $707,117 | $707,117 | $577.68 | | |
| | Total Tax Rate: | 8.0434218834 | | | | | |
| | | | | Taxes w/Current Exemptions: | $5,687.62 | | |
| | | | | Taxes w/o Exemptions: | $5,687.62 | | |
Improvement / Building
| Improvement #1: | RESIDENTIAL | State Code: | Y | 2182.6 sqft | Value: | $467,117 |
| Bathrooms: | 2.5 | Bedrooms: | 3 | | Ceiling: | DRYWALL PAINTED | Cooling: | HEAT PUMP/CONV/V | | Exterior Wall/Cover: | CEMENT FIBER | Floor Covering: | SOFTWOOD/VINYL 60-40 | | Floor Structure: | WOOD W/SUBFLOOR | Foundation: | CONCRETE | | Interior Finish: | DRYWALL PAINT | Plumbing Fixture Cnt: | 13 | | Roof Slope: | 10" IN 12" | Roof Structure/Cover: | CJ ASPHALT |
|
| | Type | Description | Class CD | Sub Class CD | Year Built | Area |
| | BAS | BASE/MAIN FLOOR | 4 | 0 | 2005 | 1453.8 |
| | BIG | BUILT IN GARAGE | 4 | 0 | 2005 | 462.0 |
| | UPH | HALF STORY | 4 | 0 | 2005 | 728.8 |
| | OWP | OPEN WOOD PORCH W/STEPS | 4 | 0 | 2005 | 52.0 |
| | OWP | OPEN WOOD PORCH W/STEPS | 4 | 0 | 2005 | 360.0 |
| | OWC | OPEN WOOD PORCH W/STEPS/ROOF/C | 4 | 0 | 2005 | 171.5 |
Sketch
Property Image
Land
| 1 | 15 | SQ (12001-21780) | 0.5000 | 21780.00 | 0.00 | 0.00 | 1.00 | $240,000 | $0 |
Roll Value History
| 2026 | N/A | N/A | N/A | N/A | N/A |
| 2025 | $467,117 | $240,000 | $0 | $707,117 | $707,117 |
| 2024 | $461,881 | $225,000 | $0 | $686,881 | $686,881 |
| 2023 | $467,117 | $210,000 | $0 | $677,117 | $677,117 |
| 2022 | $426,529 | $200,000 | $0 | $626,529 | $626,529 |
| 2021 | $374,183 | $150,000 | $0 | $524,183 | $524,183 |
| 2020 | $362,962 | $130,000 | $0 | $492,962 | $492,962 |
| 2019 | $280,676 | $170,000 | $0 | $450,676 | $450,676 |
| 2018 | $251,325 | $150,000 | $0 | $401,325 | $401,325 |
| 2017 | $252,714 | $130,000 | $0 | $382,714 | $382,714 |
| 2016 | $232,836 | $115,000 | $0 | $347,836 | $347,836 |
| 2015 | $235,482 | $90,000 | $0 | $325,482 | $325,482 |
| 2014 | $238,127 | $85,000 | $0 | $323,127 | $323,127 |
| 2013 | $240,775 | $85,000 | $0 | $325,775 | $325,775 |
| 2012 | $241,730 | $90,950 | $0 | $332,680 | $332,680 |
| 2011 | $244,357 | $107,000 | $0 | $351,357 | $351,357 |
| 2010 | $255,815 | $107,000 | $0 | $362,815 | $362,815 |
| 2009 | $263,753 | $125,000 | $0 | $388,753 | $388,753 |
| 2008 | $266,571 | $125,000 | $0 | $391,571 | $391,571 |
| 2007 | $269,378 | $125,000 | $0 | $394,378 | $394,378 |
Deed and Sales History
| 1 | 08/27/2020 | WD | Warranty Deed | SMITH, KONNI | HARADA, ERICK KAMEYOSHI | | | $515,000.00 | 44523 | 4495342 |
| 2 | 05/02/2019 | WD | Warranty Deed | ADAMS, DAVIS C | SMITH, KONNI | | | $475,000.00 | 38547 | 4463562 |
| 3 | 01/13/2017 | WD | Warranty Deed | FASOLO, ROBERT L | ADAMS, DAVIS C | | | $394,000.00 | 27782 | 4415437 |
| 4 | 12/17/2003 | WD | Warranty Deed | CASON, DONNA G | FASOLO, ROBERT L | | | $48,000.00 | 35695 | 4086734 |
| 5 | 07/21/2003 | PRD | Personal Representatives Deed | WEST, DECIA A | CASON, DONNA G | | | $0.00 | 33267 | 4068710 |
| 6 | 04/01/1995 | OTHER | Other - Misc. Documents | WEST, BUEFORD W | WEST, DECIA A | | | $0.00 | 66400 | 234921 |
Payout Agreement
| No payout information available.. |