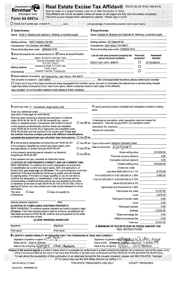
Property
Account |
| Property ID: | 404280 | Abbreviated Legal Description: | SUNSET TERR LOT 5 BLK B |
| Geographic ID: | S8270-00-0B005-0 | Agent Code: | |
| Type: | Real | | |
| Tax Area: | 300 - APPRAISER-Cpvl Schl Dist, in Cpvl | Land Use Code | 11 |
| Open Space: | N | DFL | N |
| Historic Property: | N | Remodel Property: | N |
| Multi-Family Redevelopment: | N | | |
| Township: | | Section: | |
| Range: | |
Location |
| Address: | 1014 NE SUMMIT LOOP COUPEVILLE, WA 98239 | Mapsco: | |
| Neighborhood: | Cycle 2 | Map ID: | 177 |
| Neighborhood CD: | 2 |
Owner |
| Name: | JURAS, CHARLES S | Owner ID: | 295801 |
| Mailing Address: | PO BOX 70 COUPEVILLE, WA 98239 | % Ownership: | 100.0000000000% |
| | | Exemptions: | |
Taxes and Assessment Details
Values
| (+) Improvement Homesite Value: | + | $0 | |
| (+) Improvement Non-Homesite Value: | + | $257,172 | |
| (+) Land Homesite Value: | + | $0 | |
| (+) Land Non-Homesite Value: | + | $240,000 | |
| (+) Curr Use (HS): | + | $0 | $0 |
| (+) Curr Use (NHS): | + | $0 | $0 |
| | | -------------------------- | |
| (=) Market Value: | = | $497,172 | |
| (–) Productivity Loss: | – | $0 | |
| | | -------------------------- | |
| (=) Subtotal: | = | $497,172 | |
| (+) Senior Appraised Value: | + | $0 | |
| (+) Non-Senior Appraised Value: | + | $497,172 | |
| | | -------------------------- | |
| (=) Total Appraised Value: | = | $497,172 | |
| (–) Senior Exemption Loss: | – | $0 | |
| (–) Exemption Loss: | – | $0 | |
| | | -------------------------- | |
| (=) Taxable Value: | = | $497,172 | |
Taxing Jurisdiction
| Owner: | JURAS, CHARLES S | | |
| % Ownership: | 100.0000000000% | | |
| Total Value: | $497,172 | | |
| Tax Area: | 300 - APPRAISER-Cpvl Schl Dist, in Cpvl |
| CF | Conservation Futures | 0.0316035091 | $497,172 | $497,172 | $15.71 | | |
| CEM2 | Cemetery #2 | 0.0095056933 | $497,172 | $497,172 | $4.73 | | |
| COUP | City: Town of Coupeville | 0.8426414490 | $497,172 | $497,172 | $418.94 | | |
| FIRE5 | Fire & Rescue Dist #5 C Whidbey GEN | 1.2008080668 | $497,172 | $497,172 | $597.01 | | |
| FIRE5BOND | Fire & Rescue Dist #5 C Whidbey BOND | 0.1400090713 | $497,172 | $497,172 | $69.61 | | |
| HOBOND | Hospital BOND | 0.1910887512 | $497,172 | $497,172 | $95.00 | | |
| HOGEN | Hospital GEN | 0.3902502903 | $497,172 | $497,172 | $194.02 | | |
| CE | County Current Expense | 0.3708482477 | $497,172 | $497,172 | $184.38 | | |
| ISLANDEMS | Hospital GEN (EMS) | 0.5000000000 | $497,172 | $497,172 | $248.59 | | |
| LIB | Library Sno-Isle GEN | 0.3153421757 | $497,172 | $497,172 | $156.78 | | |
| LIBCAP | Library Sno-Isle BOND (Cap Fac Imp Area) | 0.0543427938 | $497,172 | $497,172 | $27.02 | | |
| POCOUP | Port of Coupeville GEN | 0.1093371703 | $497,172 | $497,172 | $54.36 | | |
| POCOUPIDD | Port of Coupeville IDD | 0.3409740022 | $497,172 | $497,172 | $169.52 | | |
| COUPSDTECH | School 204 CP (TECH) | 0.7545480007 | $497,172 | $497,172 | $375.14 | | |
| SCH204MO | School 204 Enrichment | 0.6716186034 | $497,172 | $497,172 | $333.91 | | |
| ST | State School | 1.3035497053 | $497,172 | $497,172 | $648.09 | | |
| ST2 | State School Part 2 | 0.8169543533 | $497,172 | $497,172 | $406.17 | | |
| | Total Tax Rate: | 8.0434218834 | | | | | |
| | | | | Taxes w/Current Exemptions: | $3,998.98 | | |
| | | | | Taxes w/o Exemptions: | $3,998.98 | | |
Improvement / Building
| Improvement #1: | RESIDENTIAL | State Code: | Y | 1286.3 sqft | Value: | $257,172 |
| Bathrooms: | 2 | Bedrooms: | 3 | | Ceiling: | DRYWALL PAINTED | Exterior Wall/Cover: | CEMENT FIBER | | Floor Covering: | HARDWOOD/CARP 20-80 | Floor Structure: | WOOD W/SUBFLOOR | | Foundation: | CONCRETE | Heating: | FHA GAS | | Interior Finish: | DRYWALL PAINT | Plumbing Fixture Cnt: | 9 | | Roof Slope: | 5" IN 12" | Roof Structure/Cover: | CJ ASPHALT |
|
| | Type | Description | Class CD | Sub Class CD | Year Built | Area |
| | BAS | BASE/MAIN FLOOR | 3 | 0 | 1997 | 1286.3 |
| | AGR | ATTACHED GARAGE | 3 | 0 | 1997 | 460.0 |
| | OWC | OPEN WOOD PORCH W/STEPS/ROOF/C | 3 | 0 | 1997 | 123.4 |
Sketch
Property Image
Land
| 1 | 15 | SQ (12001-21780) | 0.4800 | 20908.80 | 0.00 | 0.00 | 1.00 | $240,000 | $0 |
Roll Value History
| 2026 | N/A | N/A | N/A | N/A | N/A |
| 2025 | $257,172 | $240,000 | $0 | $497,172 | $497,172 |
| 2024 | $254,083 | $225,000 | $0 | $479,083 | $479,083 |
| 2023 | $257,172 | $210,000 | $0 | $467,172 | $467,172 |
| 2022 | $235,675 | $200,000 | $0 | $435,675 | $435,675 |
| 2021 | $207,355 | $150,000 | $0 | $357,355 | $357,355 |
| 2020 | $199,413 | $130,000 | $0 | $329,413 | $329,413 |
| 2019 | $142,637 | $170,000 | $0 | $312,637 | $312,637 |
| 2018 | $142,754 | $150,000 | $0 | $292,754 | $292,754 |
| 2017 | $143,542 | $130,000 | $0 | $273,542 | $273,542 |
| 2016 | $128,707 | $115,000 | $0 | $243,707 | $243,707 |
| 2015 | $130,305 | $90,000 | $0 | $220,305 | $220,305 |
| 2014 | $131,905 | $85,000 | $0 | $216,905 | $216,905 |
| 2013 | $133,503 | $85,000 | $0 | $218,503 | $218,503 |
| 2012 | $135,102 | $90,950 | $0 | $226,052 | $226,052 |
| 2011 | $136,700 | $107,000 | $0 | $243,700 | $243,700 |
| 2010 | $143,479 | $107,000 | $0 | $250,479 | $250,479 |
| 2009 | $149,609 | $125,000 | $0 | $274,609 | $274,609 |
| 2008 | $151,361 | $125,000 | $0 | $276,361 | $276,361 |
| 2007 | $153,091 | $125,000 | $0 | $278,091 | $278,091 |
Deed and Sales History
| 1 | 08/17/2020 | WD | Warranty Deed | HARADA, ERICK KAMEYOSHI | JURAS, CHARLES S | | | $395,000.00 | 44423 | 4494826 |
| 2 | 03/14/2018 | QCD | Quit Claim Deed | HARADA JTWROS, ERICK KAMEYOSHI | HARADA, ERICK KAMEYOSHI | | | $0.00 | 33322 | 4440915 |
| 3 | 09/16/2016 | WD | Warranty Deed | TOWNSDIN, JAMES A | HARADA JTWROS, ERICK KAMEYOSHI | | | $290,000.00 | 26146 | 4407399 |
| 4 | 08/25/2003 | WD | Warranty Deed | SOUTHWICK, ARTHUR J | TOWNSDIN, JAMES A | | | $174,000.00 | 33857 | 4073109 |
| 5 | 06/24/1999 | QCD | Quit Claim Deed | SOUTHWICK, ARTHUR J | SOUTHWICK, ARTHUR J | | | $0.00 | 92476 | 99014981 |
| 6 | 12/01/1997 | WD | Warranty Deed | EDENHOLM, ROY | SOUTHWICK, ARTHUR J | | | $138,500.00 | 74427 | 97021171 |
| 7 | 10/01/1996 | WD | Warranty Deed | FARIS, KEVIN P | EDENHOLM, ROY | | | $38,000.00 | 63885 | 96018829 |
| 8 | 07/01/1996 | QCD | Quit Claim Deed | FARIS, EMERSON A | FARIS, KEVIN P | | | $0.00 | 62424 | 96011914 |
| 9 | 03/01/1996 | OTHER | Other - Misc. Documents | FARIS, KEVIN P | FARIS, EMERSON A | | | $0.00 | 66842 | 85001796 |
| 10 | 03/01/1996 | QCD | Quit Claim Deed | SIMMONDS, HELEN E | FARIS, KEVIN P | | | $0.00 | 60792 | 96004220 |
| 11 | 08/01/1984 | QCD | Quit Claim Deed | Unknown | SIMMONDS, HELEN E | | | $0.00 | 42498 | 84002369 |
Payout Agreement
| No payout information available.. |